本篇文章內容由[中國幕墻網ALwindoor.com]編輯部整理發布:
摘要:建筑師對建筑形體的追求永無止境,西岸會展中心作為西岸地區的門戶,以“世界的會客廳”為建筑定位,采用鉆石切面的玻璃幕墻,表達星光璀璨的建筑藝術效果。建筑整體為鋼結構,大跨度設計,由8根直棱、74根斜棱與7根水平方向的轉折線對建筑形體進行切割,形成了135個鉆石切面。項目設計中以BIM為基本工具,結合燈光設計,對細部構造進行多方案比選及反復論證,確保整體鉆石效果的實現。
關鍵詞:玻璃、鉆石、BIM、大跨度

1、 引語
上海西岸位于徐匯濱江地區,是上海十二五規劃的六大功能區之一,是上海中心城區最具公共活力的濱水新城區。該區域匯集了西岸傳媒港、上海夢中心、油罐藝術中心、西岸美術館等知名建筑。西岸會展中心位于西岸核心地區,建筑面積77350平米,幕墻面積約3萬平米,建成之后,將成為上海標志性的文化藝術空間之一,與著名的陸家嘴天際線競相媲美。

作為世界藝術博覽會展館,項目建成后將全年承辦多種會議、展覽,打造核心區的歷史人文科技交匯點,成為西岸的一顆璀璨明珠。

2、 項目概述
西岸會展中心建筑高度49.7米,7層,整體為鉆石造型,外立面為均為玻璃幕墻。內部主體結構為中心支撐鋼框架結構,項目容積率2.00,建筑密度(詞條“建筑密度”由行業大百科提供)53.65%,綠地率10.10%,結構安全等級為1級。項目主入口在北側,北側區域延伸到東西兩側,內部為大空間。南側為后勤區域。

根據項目表皮所在位置及系統類型,將建筑表皮系統劃分如下:

3、 建筑形體分析
為了表達建筑整體鉆石造型的設計理念,建筑形體由三角形切面和四邊形切面組成,經過分析,建筑共有135個切面,切面布置方式如下:

基于建筑形體的復雜造型,為了更好的確定幕墻系統及分格的劃分,本項目以BIM為工具,對建筑形體進行參數化分析,主要進行了以下參數的分析:
3.1板塊傾角分析

根據規范要求,表皮傾斜角度以建筑表皮與水平方向的夾角75°為界,小于75°的為采光頂,大于等于75°且小于90°的為斜幕墻。等于90°的為直幕墻。本項目只有位于腰棱位置的WT-02系統為直幕墻,其余均為斜幕墻和采光頂。
針對不同位置板塊傾角統計如下:

3.2 切面間夾角分析
除屋頂光伏區域外,建筑由8根直棱、74根斜棱與7根水平方向的轉折線共同組成了建筑的鉆石造型。
棱線表示面的轉折,轉折的夾角不同,對應的型材開模角度均不同。在模型中對棱進行編號,如下:

高度方向逐層對棱進行編號和分析,最終統計結果如下:
斜棱:157.7°-179.3°
直棱:123.7°-172.9°
4、 幕墻分格及典型幕墻系統解析
4.1 分格的劃分
根據《采光頂與金屬屋面技術規程》JGJ255-2012,“3.4.6 玻璃面板面積不宜大于2.5㎡”,同時上海地標《建筑幕墻工程技術規范》DG/TJ 08-56-2019,“18.2.10 采光頂或雨蓬所采用的玻璃板塊,單塊面積不宜大于2.5㎡,不應大于3㎡,長邊邊長不宜大于2m”。
根據BIM對幕墻板塊傾斜角度的分析,有超過一半的幕墻表皮屬于采光頂的范圍,主要范圍為首層大玻璃及大玻璃上邊一條及腰棱以上部位。因為整個建筑形體為異形,分格劃分需要兼顧美觀性及面積控制的要求。通過BIM參數化設計,對幕墻分格進行劃分,分格參數包含幕墻邊長、面積、傾斜角度等信息,為整個幕墻分格的控制提供了參數依據。

4.2 幕墻構造設計
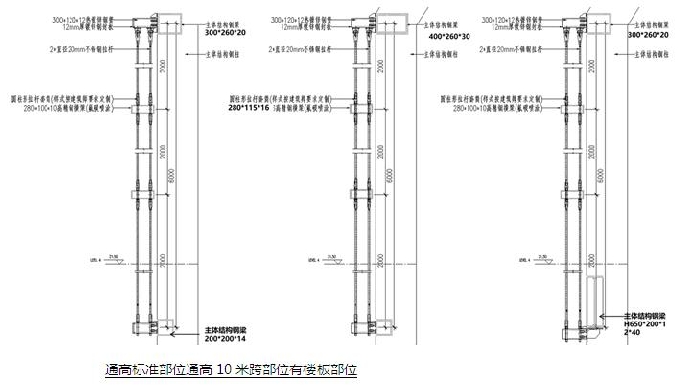
因為本項目的特殊造型及大跨度的受力模式,很難采用普通的幕墻龍骨系統實現。最終選擇了由主體結構完成整體鋼架,除首層、VIP部位外,其余位置幕墻分格背后均有主體鋼龍骨,主體鋼龍骨模型如下。

(1)標準部位做法
標準部位節點如下:

該系統設計以200*200的主體結構為生根點,考慮了主體結構可能產生的誤差,通過轉接件及抱箍設計,能夠實現三維六向調節。
切面交接部位為直棱或斜棱,不同位置棱的角度不同,且不同棱組合到一起的情況很多,依據BIM分析的棱的角度進行型材的開模涉及,同時對典型部位多棱交接的部位,進行交接情況的分析和歸類,根據不同交接情況,考慮棱的不同生根方式。

(2)腰棱部位做法
在腰棱部位,為了實現VIP部位極致通透的效果,幕墻系統采用了橫龍骨豎桿設計,橫龍骨采用高精鋼,用于承受玻璃傳遞的風荷載,豎向設置不銹鋼拉桿,用于承受重力。

拉桿在每根高精鋼橫梁的部位斷開,在高精鋼中預先連接帶螺紋的套桿,每段拉桿上下設置套筒,通過套筒與螺桿(詞條“螺桿”由行業大百科提供)的進出實現螺桿的安裝。

玻璃安裝在前邊,與拉桿存在重力偏心,會產生偏心扭矩,不銹鋼拉桿本身為柔性構件,只能受拉不能受壓,為了避免拉桿因為偏心扭矩產生受壓的情況,在早期方案中考慮過設置一定的預應力,分析下來,因為上下主體鋼龍骨太弱,無法承受該預應力,方案不成立。后續方案考慮用玻璃及高精鋼的重力產生的拉力去抵抗重力偏心產生的扭矩,最終經過計算,在各種工況下,拉桿均為拉應力狀態,不會出現壓應力,滿足受力要求。

最下邊一根拉桿不受力,為裝飾拉桿,拉桿底部設置可自由伸縮的套筒,最大可實現正負40mm的變形。實際拉桿變形最大21.96mm,目前構造能夠滿足最大變形

(3)首層玻璃幕墻做法
首層玻璃與水平面(詞條“平面”由行業大百科提供)夾角小于75°,玻璃面積超過9平米,為超大玻璃。該玻璃整體外傾斜,為了避免超大玻璃自爆產生傷害,通過在室外設置景觀,避免人員進入玻璃下方。在系統設計過程中,考慮過帶玻璃肋的全玻璃幕墻,對邊支撐的櫥窗幕墻等做法。因為玻璃整體外傾,采用玻璃肋全玻璃幕墻,會讓結構膠長期受力,有安全隱患。對邊支撐的櫥窗類玻璃做法,需要對玻璃進行加厚,而且玻璃與水平面的夾角小于75°,玻璃需要按照長期荷載(詞條“荷載”由行業大百科提供),且玻璃加厚之后,玻璃自身的強度會降低,形成惡性循環,無法滿足受力需求。最終選擇了高精鋼系統作為幕墻豎向龍骨,上下入槽的四邊固定方式。豎向高精鋼充分利用了玻璃的厚度空間,盡可能在視覺上弱化立柱。在折線部位,立柱在工廠一體加工成型,避免現場焊接。
(4)開放式屋面做法
開放式屋面位置做法與標準版為類似,板塊之間預留縫隙,用于排水(詞條“排水”由行業大百科提供)。
5、 幕墻結構安全性分析
本項目為整體為鉆石造型,大部分玻璃為內傾或外傾,相比立面幕墻,傾斜幕墻有更大的破壞及脫落風險,本項目考慮了以下加強措施。
5.1 玻璃的選擇
為了避免玻璃自爆脫落,玻璃內外均采用了夾膠玻璃,且夾膠片采用了SGP膠片,SGP膠片相比PVB膠片,在玻璃破碎后有更高的殘余強度,足以支撐玻璃,避免玻璃脫落。
5.2 玻璃的防墜落措施
玻璃上下設置護邊及防墜落鋼絲繩,鋼絲繩經過受力計算,足以承受玻璃墜落時候產生的拉力。
5.3 加厚壓板及螺栓(詞條“螺栓”由行業大百科提供)設計
考慮到玻璃外傾,會對壓板及螺栓產生長期荷載,在設計中對壓板及螺栓進行加厚加大處理,預留足夠的安全余量,保證極端情況下幕墻的安全性。
5.4 計算參數的考慮
(1)玻璃按照長期荷載考慮強度
根據上海幕墻地標3.2.1,鋼化玻璃短期荷載強度設計值是長期荷載強度設計值的兩倍,如5~12mm鋼化玻璃,中部強度,短期荷載為84N/mm2,長期荷載為42N/mm2。本項目整體為內傾或外傾,重力會產生垂直玻璃的長期荷載,鋼化玻璃應按照長期荷載考慮強度。
(2)SGP膜的剪切模量取值
SGP剪切模量受溫度影響較大,本項目按照50℃進行取值。
(3)考慮一塊玻璃破損情況下的強度校核
為了避免一塊玻璃自爆引起整塊玻璃的破壞,在玻璃計算中考慮了一塊玻璃破損情況下殘余玻璃強度滿足要求,大大提高了項目的整體安全系數。
(4)數字風洞模擬
考慮到項目整體為鉆石造型,結構荷載規范中沒有完全匹配的風荷載取值依據,為了避免風荷載取值偏小的情況,本項目進行了數字風洞模擬,且在計算中風荷載取值按照規范及數字風洞模擬中不利的值進行計算。

6、 關于幕墻的美觀性-玻璃的顏色及玻璃平整度控制
作為鉆石切面的玻璃盒子,要想實現類似鉆石晶瑩剔透的效果,在玻璃顏色、反射率、透光率、玻璃平整度等方面都至關重要。為了提高幕墻的鏡面效果,幕墻玻璃選用了15%的反射率玻璃。在玻璃顏色選擇方面,通過樣板對不同參數的玻璃進行比選。

本項目周圍有高層建筑物,在特定的角度下,高層建筑會反射到本項目建筑立面。高層建筑的豎向線條在投射到建筑表面上會產生變形,這個是鋼化玻璃的本質決定的。鋼化玻璃在加工過程中會產生弓形變形或者波形變形,國家規范對弓形變形和波形變形均有嚴格的限制。考慮到本項目為傾斜玻璃,在重力的作用下,玻璃會產生變形,加大鋼化玻璃的弓形或者波形缺陷,所以本項目玻璃進行了從嚴要求,對弓形變形,最大弓形值要求:≤0.15%(規范值為≤0.3%),對波形變形,最大波形測量值要求:<0.1mm(規范值為≤0.2%)。
7、 光伏建筑一體化
光伏作為重要的節能降碳措施,越來越多的應用在建筑中,光伏在建筑中的應用有BAPV和BIPV兩種形式。
BAPV為“后安裝型”建筑太陽能光伏,光伏材料僅用于發電,不承擔建筑防水、遮陽等建筑功能,可在已有建筑上安裝,一般安裝于屋頂部位。
BIPV為光伏建筑一體化,光伏系統與建筑同時設計、同時施工、同時投入使用。它作為建筑的一部分,既用于發電,又能夠替代部分建筑立面的材料。
本項目整體為鉆石造型,為了保證完整的鉆石效果,屋頂部位采用了半開放式設計,平頂部位采用了碲化鎘薄膜電池(詞條“薄膜電池”由行業大百科提供)玻璃替代普通的鋼化玻璃,玻璃安裝方式采用了標準的幕墻系統做法,保證了建筑第五立面的效果。

8、 清洗方案
根據以往工程經驗,傾斜的建筑表皮相比立面的建筑表皮更容易臟,原因是傾斜朝上的面容易積灰,在下雨的時候,積灰會變成泥水流下,最終污染整個建筑立面。雖然本項目在細節設計上考慮了減少污染的措施,但無法改變因為建筑形體而造成的易臟的根本特性。所以考慮清洗措施就顯得尤為重要。
本項目整體為鉆石效果,且要保證完整的鉆石造型,在屋頂設置傳統的擦窗機不太現實,且傳統的擦窗機很難滿足清洗需求。考慮到建筑的高度、形體等特性,以腰棱為界面,腰棱以下玻璃高度不高,且整體外傾,適合地面設備進行清洗,最終選擇蜘蛛車進行清洗。腰棱以上部位,蜘蛛車無法達到,且玻璃傾斜向上,有利于蜘蛛人清洗,最終選擇在屋頂設置蜘蛛人用安全生根點,可以連接安全繩和工作繩,保證擦窗的方案。
9、 關于規范的思考
隨著三維軟件在建筑行業的普及,異形形體建筑越來越多,作為幕墻中最重要的玻璃幕墻,也開始出現了越來越多的異形玻璃幕墻。新事物的產生往往依賴于技術的進步,幕墻行業從上世紀出現到現在,已經取得了長足的進步,以玻璃為例,超大玻璃、雙曲玻璃、多層中空玻璃、多層夾膠玻璃、真空玻璃(詞條“真空玻璃”由行業大百科提供)、中置遮陽玻璃等新產品層出不窮。在異形幕墻的落地過程中,會受到很多規范的限制,以本項目為例,為了達到通透的建筑效果,建筑師傾向于玻璃板塊適當加大,在項目設計過程中,為了突破規范中不應超過3平米的要求,在設計中考慮了采用SGP玻璃、設置防脫鏈、考慮一塊玻璃破損等加強措施,最終還是因為規范原因無法通過評審。超過3平米的案例并不是沒有,如升級之后的浦東蘋果店,玻璃筒直徑9.75米,頂部共有13塊玻璃,平均一塊玻璃面積為5.75平米。

上海圖書館東館,玻璃傾角為66.753平米,幕墻尺寸為4.2米寬,1.55米高,玻璃面積為6.5平米。項目2021年完成至今,未出現安全問題。

基于以上分析,為了滿足日益豐富的建筑形體,在保證安全的前提下,建議更加靈活的執行規范,通過技術論證等途徑,為突破規范的項目提供可行的方向。

10、 結語
西岸會展中心幕墻從2022年開始論證到2024年開始施工,預計2025年完工。其整體鉆石造型的建筑形體將融入西岸整體建筑群,助力西岸地區成為“上海2035”城市總體規劃中高品質中央活動區核心功能的重要承載區。
作者單位:上海市建筑裝飾工程集團有限公司
華東建筑設計研究院有限公司