本篇文章內容由[中國幕墻網ALwindoor.com]編輯部整理發布:
西北旺萬象匯項目以“百望觀山,云潮萬象”為設計理念,讓建筑融入生態,讓生態融入城市,形成內斂輕盈、流暢簡約的整體設計風格。項目幕墻系統多樣,本文重點針對自由角度裝飾格柵幕墻、Skywalk空中玻璃走廊、屋頂異形采光頂等重難點進行分析總結,旨在為類似項目提供參考和借鑒。
關鍵詞:自由角度格柵,裝配式空中走廊,異形采光頂,參數化設計

1、工程概況
西北旺萬象匯項目幕墻工程項目,位于海淀區西北旺鎮A3地塊,基地與地鐵西北旺站東側相鄰,用地東西長約280m,南北長約240m。總建筑面積為50845㎡,建筑高度41.7m,幕墻面積31000㎡。本項目幕墻包括地上7#商業樓和地下下沉廣場部分幕墻,幕墻系統主要包括立面裝飾格柵、玻璃地板走廊、玻璃欄板、屋頂采光頂幕墻、UHPC板、彩釉玻璃幕墻、首二層大跨度玻璃幕墻、主入口玻璃幕墻等。該項目作為海淀科學城北區近年來重點布局的大型商業項目,以“自然生活創想地”為定位,致力于打造“自然、社交、戶外”的特色標簽,成為區域型生活、商業空間,集購物、時尚休閑、娛樂社交于一體的商業新地標。(圖1.1~圖1.2)


2、幕墻系統重難點介紹
2.1、建筑設計分析
建筑整體外觀設計與周圍環境相融合,建筑幕墻外立面前后錯動,通過巧妙的結構和色彩對比形成凹凸有致的律動感。彩釉玻璃采用了大面板設計,部分玻璃高度達到了6000mm,不僅具有通透性,還使建筑具有色彩和科幻現代感,增加了視覺上的美觀性和裝飾性;建筑二層以上立面采用裝飾格柵系統和彩釉玻璃幕墻系統交錯布置,鋁合金格柵設計具有多個自由角度、挺拔向上、整齊一致的效果,是幕墻設計及施工重難點部位。(圖2.1-1~圖2.1-2)


建筑室內打造了如同云端漫步的Skywalk空中玻璃走廊,走廊位于項目的頂層,橫跨整個商業綜合體,連接了不同的購物區域和休閑空間。走廊構造上采用全玻璃設計,不僅提供了極佳的視野,同時也增強了項目的現代感和科技感。走廊與向陽生長的藍色飛鳥、充滿異域情調的懸浮菠蘿以及通透晶瑩的采光頂天窗相互融合,為消費者提供了一個獨特的休閑空間。玻璃走廊采用高強度玻璃和鋼結構構造,確保了其堅固性和安全性。面板均為異形的超大玻璃,尺寸達2000x4500mm,且每塊尺寸都不一樣,同時支撐玻璃地板的變截面鋼梁懸挑最大尺寸達到4.5米,是設計及施工的重難點部位。(圖2.1-4~圖2.1-5)


本項目屋頂有三個玻璃采光頂,1個為鋼結構單層網殼玻璃采光頂,2個平面鋼結構玻璃采光頂。單層網殼玻璃采光頂采用三角形面板擬合曲面造型,平面玻璃采光頂主要采用矩形平板面板,采光頂的設計使得室內的環境通透、明亮,形成一種藍天、白云的裝飾效果,與周圍曲面造型鋁板、UHPC板和格柵線條系統及自然環境相互融合、相互襯托,突顯整個建筑的自然氣息,同時又不失現代科幻的建筑效果。其中單層網殼玻璃采光頂為空間雙曲面網殼結構,構件及節點(詞條“節點”由行業大百科提供)數量多,形式復雜,采光頂最大跨度約為33.4米,是設計及施工的重難點部位。(圖2.1-6~圖2.1-8)




2.2、幕墻系統重難點分析
2.2.1自由角度裝飾格柵系統
2.2.1.1自由角度裝飾格柵設計
自由角度裝飾格柵,分布于建筑的東、南、西、北立面(圖2.2.1.1-1),由二層到屋頂檐口位置,層高5m。格柵豎向模數為1250mm,水平模數為300mm。鋁格柵共計1.7萬多件,格柵朝向角度極不規則,角度范圍0o~±90o,每隔一定度數為一個變化角度。如西立面,二層S-J軸位置,格柵豎向一列起始角度為-65~-90度,以其中起始-70度的一排格柵(格柵編號為:W_S2_H302_-70,編號最后面的數字為角度值)為例,從-70度開始每間隔6個相同角度后增加5度到-65度,然后排布6個-65度后,增加5度到-60度排布,同理逐步增加一直到0度(圖2.2.1.1-2~4)。格柵同排跟同列豎直方向的角度均不一致,如何精準保證格柵的朝向角度是設計及施工過程中的關鍵。


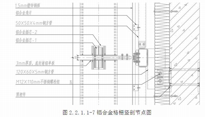
格柵系統整體構造:格柵截面為50~100x250mm,格柵采用鋁合金轉接件(詞條“轉接件”由行業大百科提供)與橫向鋼龍骨進行連接,格柵背部設置1.5mm鍍鋅鋼板,抹膠密封,作為防水立面,從鍍鋅鋼板縫中挑出T型鋁合金底座,用于連接格柵,通過鋁合金插芯調節格柵的角度。(圖2.2.1.1-5~7)



格柵片及插芯構造:格柵片截面設置兩螺釘孔眼及兩連接卡槽,鋁合金插芯-2內腔設置四個卡位點,外側設置兩螺釘孔眼及兩插翅,頂、底封堵鋁單板中部設置大圓孔,兩側設置螺釘孔。鋁合金插芯-2的插翅與格柵的卡槽進行卡接,后與封堵鋁單板進行連接,通過封堵鋁單板的四個螺釘孔旋入沉頭螺釘(圖2.2.1.1-8)。

格柵連接構造:鋁合金底座型材(詞條“型材”由行業大百科提供)為T型,一端與龍骨立柱連接,一端與夾板型材連接。上下片鋁合金夾板型材與底座型材夾在一起。鋁合金旋轉格柵與鋁合金插芯-2連接;封堵鋁板開有圓孔,頂底封堵鋁板與格柵頂底連接進行封閉,形成完整的格柵片。鋁合金夾板型材與鋁合金插芯-1連接后,完整的格柵片與鋁合金插芯-1進行插接,形成懸挑格柵系統。鋁合金底座可實現上下、左右、前后方位調節,插芯-1可實現各種角度的旋轉調節。(圖2.2.1.1-9)

2.2.1.2自由角度裝飾格柵安裝
自由角度格柵系統的難點在于旋轉格柵的角度定位,需要定位到每一根格柵,格柵角度均通過插芯型材開孔定位,安裝前掌握格柵編號與排版,格柵為單根安裝,由下至上,安裝背板之前需預先安裝好鋁合金底座,格柵上下采用插芯型材插接,具體如下:
(1)放網格控制線(垂直、水平)作為鋼龍骨安裝依據,鋼龍骨精確定位(水平、進出、左右);放網格控制線(垂直、水平)作為鋁合金底座安裝依據,鋁合金底座精確定位(水平、進出、左右)(圖2.2.1.2-1~3)。


(2)鋁合金夾板型材與鋁合金插芯-1調整好設計角度后,旋入沉頭機絲進行固定。
(3)帶有鋁合金插芯-2的格柵底部插入鋁合金插芯-1上,插芯-1兩側卡座與插芯-2的四個卡位點進行卡接,限制格柵水平方向的轉動。
(4)將帶有鋁合金插芯-1的上部鋁合金夾板型材插入格柵頂部的鋁合金插芯-2,快速完成安裝。格柵現場安裝順序為從左到右,從下到上安裝。(圖2.2.1.2-4~8)





2.2.2 Skywalk空中玻璃走廊系統
2.2.2.1 空中玻璃走廊系統設計
Skywalk空中玻璃走廊位于室內七層周圈觀光連廊部位,主要由欄板玻璃與地板玻璃組成,地板玻璃底部設有從主體鋼結構外挑的變截面鋼梁,鋼梁外包防火板+不銹鋼飾面,上面滿鋪防火地板玻璃:玻璃采用10(TP)(酸蝕高硼硅玻璃)+1.52SGP+10(TP)(高硼硅玻璃)+1.52SGP+10(TP)(高硼硅玻璃)+1.52SGP+10(TP)(高硼硅玻璃)+1.52SGP+10(TP)(高硼硅玻璃)mm全鋼化超白夾膠玻璃;外側設置不銹鋼立柱+半鋼化玻璃護欄,欄桿玻璃采用8(HS)+1.52SGP+8(HS)mm半鋼化超白夾膠玻璃。整個連廊玻璃為異形超大玻璃造型,面板尺寸達2000x4500mm,且每塊面板尺寸都不一樣,同時支撐玻璃的變截面鋼梁懸最大懸挑尺寸達到4.5米,設計及施工難度極大。(圖2.2.2.1-1~2)


變截面低碳鋼懸挑梁構造:變截面低碳鋼(詞條“碳鋼”由行業大百科提供)懸挑梁與低碳鋼端件焊接成整體,2塊20mm厚低碳加勁鋼板和2塊15mm厚低碳加勁鋼板分別焊接在懸挑梁兩側,提高懸挑梁的穩定性,以上組成懸挑梁的整體,稱為變截面懸挑結構,懸挑結構通過螺栓固定在主體結構支撐上。(圖2.2.2.1-3~4)


玻璃地板構造:8mm不銹鋼板作為副框安裝在玻璃地板上,整體俯視為凹凸造型,副框地板玻璃拼裝時,兩片玻璃的凹凸塊相互契合,各自形成連接塊。凸塊上設有一個長條孔,在凸塊表面設置2mm厚鋼墊片(詞條“墊片”由行業大百科提供),鋼墊片上設有一個大圓孔和兩個小圓孔,2個M5的螺栓通過鋼墊片與凸塊連接,長條孔的設置,使得地板可在平面內進行安裝定位調節,調節完畢后,通過大圓孔往凸塊的長條孔內灌環氧樹脂膠,進行固定,大圓孔為灌漿孔,兩個小圓孔為排氣孔,保證環氧樹脂膠充滿長條孔。灌漿設計使得結構牢固,安裝簡便,全過程無焊接作業。(圖2.2.2.1-5~7)
在10mm連續低碳鋼板下部,設置凸型低碳鋼墊塊,鋼墊塊凸出部位與10mm連續低碳鋼板連接,兩側下沉部位與變截面鋼梁連接,間隔250mm布置。凸型低碳鋼墊塊設計,不僅起到承托作用,還能抵抗一部分樓板彈性變形,使結構更加可靠,人們行走在走廊上具有更高的舒適度。(圖2.2.2.1-6~7)



一體式欄桿構造:2塊10mm厚不銹鋼板組成夾具,一端夾在欄桿立柱上(焊接固定),5塊6mm厚不銹鋼板組成整體鋼架。1塊365×121×6mm不銹鋼板、2件鋼架、1塊365×121×10mm不銹鋼板(欄板托塊)組成玻璃槽,形成一體式欄桿連接架。懸挑梁前端開有凹口,組合件中230×150×20mm低碳鋼板插到凹口內,焊接固定,形成連接座。(圖2.2.2.1-8~10)



針對懸挑空中玻璃走廊系統結構,合理考慮結構特征、受載與邊界條件以及連接方式,對連廊結構的變形、應力、舒適度等進行控制,對地震下結構、鋼梁穩定性、人行舒適度等進行分析,同時對懸挑梁節點構建力學有限元分析模型,保證結構的安全及符合設計使用要求。(圖2.2.2.1-11~18)








2.2.2.2 空中玻璃走廊系統安裝
該系統位于7F空中連廊位置,采用鋼結構玻璃幕墻設計,玻璃厚度較大,單塊玻璃重量較大,搭設組合移動架進行鋼龍骨的安裝,玻璃面板利用龍門(詞條“門”由行業大百科提供)架進行吊裝,并在骨架上鋪設腳手板(底部掛設防墜兜網)進行玻璃面板安裝。(圖2.2.2.2-1)

(1)變截面低碳鋼懸挑梁安裝
懸挑結構裝配前,在變截面鋼梁后部的底端,連接倒T形的鋼件,鋼件長度為150mm,焊接在50mm厚鋼板上,50mm厚鋼板與倒T型交接位置,設置T型開口,T型開口上部,從主體結構支撐面板伸出2-15mm厚縱向布置鋼板,兩個鋼板各自穿上M16調節螺栓,通過旋轉調節螺栓,可調節懸挑結構的左右位置;T型開口的下部,從主體結構支撐面板伸出25mm厚橫向布置鋼板,鋼板各自穿上M16調節螺栓,通過旋轉調節螺栓,可調節懸挑結構的上下位置,達到快速調節定位的目的。待調整到滿足安裝要求的位置,將懸挑結構與主體支撐結構通過螺栓進行連接固定,完成懸挑結構的安裝。(圖2.2.2.2-2~5)


(2)一體式欄桿安裝
1)首先將一體式連接架與連接座對接,通過2個M20螺栓進行連接;
2)玻璃槽放置成品三元乙丙(詞條“三元乙丙”由行業大百科提供)U型槽膠墊,將玻璃面板放置在膠墊U槽上;
3)安裝6mm厚不銹鋼夾板,通過4顆M10沉頭螺釘固定;
4)玻璃上部裝配U型膠墊,將上部扶手鋼板連接,完成欄桿的安裝。(圖2.2.2.2-6~9)



2.2.3屋面采光頂幕墻
2.2.3.1 屋面采光頂設計
屋頂位置設置3個采光頂:1個單層網殼鋼結構玻璃采光頂,2個平面異形鋼結構玻璃采光頂。采光頂為玻璃及鋁單板組合,面板采用10+12Ar+8+1.52PVB(詞條“PVB”由行業大百科提供)+8mm中空三銀Low-E彩釉夾膠玻璃,龍骨采用焊接直角鋼龍骨,表面采用防腐底漆+防火涂料,鋼龍骨外側設置鋁合金底座轉接調節,排水方式為全隱無組織外排。(圖2.2.3.1-1~2)

單層網殼采光頂為空間雙曲面造型,采用雙面鋁單板與玻璃間隔布置的形式,鋼結構桿件為150x70x250x10mm厚熱軋梯形鋼龍骨;12mm厚鋼板焊接中心件,中心件采用鑄鋼件,四周采用150x70x250x10mm厚熱軋梯形鋼龍骨,鋼件與鋼件及龍骨之間采用坡口等強連接。支座(詞條“支座”由行業大百科提供)鋼件與鋁合金底座連接,可調節鋁合金底座的高低,定位后通過螺釘擰緊固定;支撐輔助型材通過鋁合金壓塊固定在底座上,支撐輔助型材與鋁合金邊框連接一端設置有球頭構造,鋁合金邊框設置有凹槽構造,球頭嵌入凹槽里面,可調節采光頂面板的角度。(2.2.3.1-3~5)



平面異形采光頂面層采用三銀Low-E玻璃,主、次龍骨桿件均采用150x250x10mm厚熱軋矩形鋼龍骨,周圈環梁采用200x250x10mm厚矩形鋼管。(圖2.2.3.1-6)

2.2.3.2 屋面采光頂安裝
(1)建立采光頂鋼結構的參數化模型,生成鋼構(詞條“鋼構”由行業大百科提供)件加工圖。本項目單層網殼采光頂鋼結構節點采用“鑄鋼件”形式,鑄鋼件數量共141個,通過鑄鋼件與桿件進行拼接,有效提高拼裝效率,保證安裝精度及質量。(圖2.2.3.2-1~3)


(2)采光頂鋼立柱定位安裝。(圖2.2.3.2-3)

(3)采光頂鋼結構鋼節點定位安裝。(圖2.2.3.2-4~5)


(4)采光頂鋼結構連接桿件安裝。(圖2.2.3.2-6)

(5)采光頂面層安裝。(圖2.2.3.2-7)



2.2.4下沉廣場UHPC板幕墻系統
UHPC板幕墻系統,位于下沉廣場負一層、負二層位置,UHPC表面為波浪紋,采用干掛形式,接縫位置退縫打膠,龍骨采用鋼結構支撐。UHPC幕墻板采用模塊化設計,工廠預制,現場安裝,有效提高施工效率。此外,UHPC幕墻板具有出色的裝飾效果,可以呈現出天然石材材料的質感,同時可塑性(詞條“可塑性”由行業大百科提供)強,通過表面加工成波浪紋的效果,增加了建筑的曲線質感,使建筑外觀更加美觀大氣。(圖2.2.4-1~6)





2.2.5不銹鋼駁接件彩釉玻璃幕墻系統
不銹鋼駁接件彩釉玻璃幕墻系統位于二層到檐口位置東、西立面,面板由15mm鋼化彩釉玻璃構成,采用豎向大板塊,玻璃分格高度達6000mm,玻璃中部采用不銹鋼夾具六點支撐形式,頂底入槽固定,主龍骨(詞條“主龍骨”由行業大百科提供)立柱采用鋼方管,表面氟碳涂裝。六層局部位置為中空玻璃區域,采用12Low-E+12Ar+12mm超白鋼化中空彩釉玻璃,立柱龍骨為鋼鋁結合,面板為條紋彩釉圖案,通過彩釉圖案,給建筑增添色彩和現代感。(圖2.2.5-1~3)


2.2.6主入口大跨度玻璃幕墻系統
主入口大跨度玻璃幕墻系統,為豎明橫隱玻璃幕墻系統,豎向裝飾線條寬度80mm,外包1.2mm不銹鋼板,玻璃面板為12+12A+12mm超白鋼化中空玻璃,首二層鋼龍骨通高連續,跨度高達10米左右,直角鋼氟碳噴涂表面。中部隱框分格,頂底入槽或者明框,鋼立柱為豎向受壓桿(詞條“壓桿”由行業大百科提供)件,外側采用鋁合金壓板及扣蓋固定玻璃。(圖2.2.6-1~3)



3、BIM技術應用
本項目幕墻系統多,大面采用框架式幕墻+格柵系統,面板分格多樣及格柵角度排布復雜;屋頂主要為雙曲面造型的采光頂,面板造型及尺寸多樣,設計、施工難度大;空中玻璃走廊為異形玻璃,每一塊都不一樣。為此,全過程運用BIM技術顯得尤為重要,通過建立參數化模型,進行平板擬合曲面、輸出面板加工圖、指導施工等工作,使得項目順利實施。
3.1參數化建模
利用犀牛+grasshopper 參數化平臺,以幕墻原始表皮為基礎,將構件參數的輸入數值與模型的設計數值 ( 長度、角度、空間位置關系等 ) 進行關聯。并確定各種幕墻構件之間邏輯關系,利用尺寸驅動快速生成1:1幕墻構件BIM三維模型。(如圖3.1~3.3)


設置平板擬合曲面、面板排版等參數化模塊,快速準確表達雙曲面幕墻構造,為幕墻提料階段打下基礎。(如圖3.4~3.5)

3.2 生成幕墻構件加工圖及數據信息導出
以參數化模型中幕墻構件的構件信息作為數據源,經過邏輯的處理及分析,自動生成零件(幕墻面板,龍骨等)的二維加工圖,加工圖的生成快速且準確。
自動生成提供的材料清單表格,并將所需面板或零件編號、材質、尺寸,圖號等加工數據信息自動輸入,比傳統的CAD加工圖的繪制方式,大大的縮短了設計和加工的時間,同時提高了下料設計的準確度。(如圖3.6~3.8)


4、結束語
西北旺萬象匯項目已順利竣工,成為了海淀科學城北區集購物、時尚休閑、娛樂社交于一體的商業新地標,為周邊人們提供高品質的消費體驗。項目實施過程中研發了自由角度格柵系統、裝配式玻璃走廊系統、BIM參數化設計等技術,獲得兩項技術專利:一種格柵片、一種懸挑走廊結構及裝配式玻璃走廊系統。本文通過對自由角度裝飾格柵幕墻、Skywalk空中玻璃走廊、屋頂采光頂幕墻的設計與施工重難點進行分析,為今后類似項目的實施提供了重要的參考價值。
作者單位:金剛幕墻集團有限公司