本篇文章內容由[中國幕墻網ALwindoor.com]編輯部整理發布:
摘要:本文從國家“雙碳”政策法規出發,講述了“雙碳”目標下,建筑幕墻門窗在宏觀戰略中的價值定位和技術路線,結合上海市綠色建筑規劃相關政府文件的要求,解讀上海市超低能耗建筑技術導則細節,明確了幕墻門窗(詞條“窗”由行業大百科提供)的具體性能要求,提出了超低能耗建筑幕墻門窗設計的具體策略和技術路線,在項目舉例分析進行實操后,指導工程應用。最后圍繞策略要求,介紹一些較適用的材料技術,提供給工程應用參考。
關鍵詞:“雙碳” 超低能耗

1 前言
“雙碳”目標是近年來國家主旋律國策,“雙碳”的概念是什么,和我們建筑行業關聯度多大,“雙碳”目標和超低能耗建筑有什么聯系,和建筑幕墻專業有什么聯系,現有幕墻的設計上有什么策略和技術路線可循,現階段有什么新材料和新技術可以在外立面上進行應用,都是涉及到幕墻門窗行業發展和行業亟需了解的話題。其中超低能耗建筑作為實現“雙碳”任務起步的重要階段,建筑幕墻門窗性能要求上有什么提升,需要進行技術上的梳理和研究。
2 歷史政策解讀
2.1 “雙碳”政策的由來
1992年發布的《聯合國氣候變化框架(詞條“框架”由行業大百科提供)公約》是世界第一個全面控制溫室氣體排放,以應對全球氣候變暖影響的國際公約。是國際社會在應對全球氣候變化問題上進行國際合作的基本框架。1997年發布的《京都協定》是世界第一個限制各國溫室氣體排放的國際法案,強制規定了發達國家的溫室氣體減排指標,2005年生效。2015年發布的《巴黎協定》規定了各方將以“自主貢獻”的方式參與全球應對氣候變化行動,2016年生效。“十三五”以來,國家陸續出臺了一系列政策和法規指導減排及節能工作。2020年啟動配額現貨交易,并在發電行業穩定運行的情況下,逐步擴大市場覆蓋范圍。國家主席2020年9月22日在第75屆聯合國大會一般性辯論上宣布中國將提高國家自主貢獻力度,采取更加有力的措施控制碳排放。自此,“雙碳”目標的概念正式出臺:二氧化碳排放力爭于2030年前達到峰值;努力爭取2060年前實現碳中和。如下圖所示:

數據來源:WIND 招商銀行研究院
《中共中央國務院關于完整準確全面貫徹新發展理念做好碳達峰碳中和工作的意見》(2021年9月22日),《國務院關于印發2030年前碳達峰行動方案的通知》(國發〔2021〕23號)(2021年10月24日)。兩個政策文件中明確了任務目標。
到2025年:綠色低碳循環發展的經濟體系初步形成,重點行業能源利用效率大幅提升單位國內生產總值能耗比2020年下降13.5%,單位國內生產總值二氧化碳排放比2020年下降18%,非石化能源消費比重達到20%左右,森林覆蓋率達到24.1%,森林蓄積量達到180億立方米。到2030年:經濟社會發展全面綠色轉型取得顯著成效,重點耗能行業能源利用效率達到國際先進水平,單位國內生產總值能耗大幅下降,單位國內生產總值二氧化碳排放比2005年下降65%,非化石能源消費比重達到25%左右,風電、太陽能發電總裝機容量達到12億千瓦以上,森林覆蓋率達到25%,森林蓄積量達到190億立方米。到2060年:綠色低碳循環發展的經濟體系和清潔低碳安全高效的能源體系全面建立,能源利用效率達到國際先進水平,非化石能源消費比重達到80%以上。

2021中央經濟工作會議 12月8日至10日 的會議精神明確了三個方面的優化改造方向。一是推進城鄉建設和管理模式低碳轉型。在城鄉規劃建設管理各環節全面落實綠色低碳要求,推動城市組團式發展,嚴格管控高能耗公共建筑(詞條“公共建筑”由行業大百科提供)建設,實施工程建設全過程綠色建造,杜絕大拆大建。二是大力發展節能低碳建筑,持續提高新建建筑節能標準,加快推進超低能耗、近零能耗、低碳建筑規模化發展,大力推進城鎮既有建筑和市政設施節能改造,全面推廣綠色低碳建材。三是加快優化建筑用能結構,深化可再生能源(詞條“可再生能源”由行業大百科提供)建筑應用,開展建筑屋頂光伏行動,因地制宜推進熱泵、燃氣、生物質能、地熱能等清潔低碳供暖。到2025年,城鎮建筑可再生能源替代率達到8%,新建公共機構建筑、新建廠房屋頂光伏覆蓋率力爭達到50%。立足以煤為主的基本國情,抓好煤炭清潔高效利用,盡早實現碳排放總量和強度“雙控”。
同時我們對比一下世界主要經濟體碳達峰、碳中和的預期速率預計,見下圖:

數據來源:世界銀行 清華大學 紅杉資本
中國作為世界上最大的發展中國家,將完成全球最高碳排放強度降幅,用全球歷史上最短時間實現從碳達峰到碳中和,史無前例!
在全國碳排放按行業分布如下圖,建材部分占比12%強,降碳任務艱巨。

數據來源:WIND 招商銀行研究院
作為建筑幕墻來講,在“雙碳”的目標下,有哪些技術路線和幕墻門窗行業相關,參考《北大金融評論》發布“雙碳”目標下的技術路線圖【1】,主要包括減少碳排放和增加碳吸收2條主路線。其中,減少碳排放包括能源結構調整、重點領域減排、金融減排支持三條路線,增加碳吸收又包括技術固碳、生態固碳兩條路線。其中建筑光伏一體化、裝配式節能技術、“光儲直柔”技術路線與建筑幕墻門窗行業息息相關。
2.2 建筑全生命周期碳排放
中國建筑節能協會建筑能耗與碳排放專委會中每年的報告中會列舉建筑全過程能耗與碳排放測算方法體系,建筑全過程能耗與碳排放包括四個階段:①建筑材料生產、運輸;②建筑施工;③建筑運行;④建筑拆除。其中隱含碳排放包括拆除過程中的能源消耗與用水、拆除過程中的減碳與碳抵消、廢舊材料運輸與填埋碳排放、原材料智造與運輸碳排放、建設過程中的能源消耗、建設過程的減碳與碳抵消、可再生能源利用量等內容。而在建筑運營階段碳排放是顯而易見,包括建筑管理和維修保養服務,電網電力消耗電量和用水量,建筑可再生能源利用量,減碳與碳抵消。
根據專委會2019年的研究報告,全國建筑全過程能耗總量22.33億tce,占據全國總建筑能耗的48.8%將近一半,而2019年全國建筑全過程碳排放總量為49.97億tCO2,占全國總建筑碳排放的50.6%。建筑全過程的降碳排污工作任重道遠。
針對以上情況,筆者認為落實到建筑幕墻門窗行業,圍繞開源節流的思想,可參考以下幾個方面的技術路線開展工作。
1) 新型高性能低碳材料的開發,在超低能耗建筑的增量市場中,逐漸代替傳統的高能耗鋁材。
2) 優先采購“碳中和”工業制造的產品,推動低碳發展,如服役后期的材料再生或回收轉換成另外用途的低碳產品,代表有再生鋁,再生聚氨酯(詞條“聚氨酯”由行業大百科提供)等復合材料。還可以考慮服役年限50年或更長時間的面材,減少后期維護階段的碳排放,如PVF涂層金屬板、搪瓷鋼板等材料。
3) 加快外立面幕墻門窗的節能改造,改造由整體拆除更換轉換成高性能低碳面材的更換或修繕,減少能源的額外消耗。如采用貼真空玻璃、貼節能膜等形式改造原有的非節能立面玻璃。
4) 優化幕墻體系的結構設計,簡化受力路徑上的節點層級數量,減少材料用量,合理分配材料和結構體系的冗余比重,做到既要安全又要化繁為簡的平衡。
5) 大力發展可再生能源的應用,如BIPV建筑光伏一體化,光電幕墻(詞條“光電幕墻”由行業大百科提供)、光熱幕墻的研發。
6) 提高幕墻整體的節能指標,配合發展超低能耗建筑、近零能耗建筑,降低建筑運營階段的負荷。
7) 推廣低碳綠色能效認證,出臺獎勵辦法。
2.3 超低能耗建筑
超低能耗建筑最早自20世紀80年代由德國、丹麥、美國、日本等國家提出,被動式超低能耗建筑是目前歐美建筑節能研發和應用的重要領域,歐美主要國家已經或正在制定適應本國國情的被動式超低能耗建筑技術體系。
在中國,2015年住房城鄉建設部制定的《被動式超低能耗綠色建筑技術導則》,2016年國家工程標準計劃《近零能耗建筑技術標準》,2021年國務院發布《2030年前碳達峰行動方案》,明確了大力發展節能低碳建筑:持續提高新建建筑節能標準,加快推進超低能耗、近零能耗、低碳建筑規模化發展的實施方向。2021年國務院發布《中國應對氣候變化的政策與行動》,提出了加大溫室氣體排放控制力度,推廣綠色建筑,逐步完善綠色建筑評價標準體系以及開展超低能耗、近零能耗建筑示范的要求。
早在2020年上海市住建委就出臺了節能和綠色建筑示范項目的專項扶持辦法的文件,獎勵力度達300元/平方米。2021年11月3日,上海市住建委頒布了《上海市綠色建筑“十四五”規劃》的規定,提出了推廣應用超低能耗建筑的要求,十四五期間累計落實超低能耗師范項目不少于500萬平方米。同時上海臨港新片區管理委員會也出臺了新片區低碳建設導則(試行)的通知,通知中指出在示范區范圍內的政府投資、大型公建及其他民用建筑執行《上海市超丟能耗建筑技術導則(試行)》,且通過超低能耗認定。開展近零能耗建設示范,鼓勵試點實施零能耗或者產能建筑試點示范。以上種種政策現實出上海市政府大力推廣超低能耗建筑的決心。
3 執行標準和對策
3.1 執行標準【2】
《上海市超低能耗建筑技術導則(試行)》中相關外圍護要求重點摘入如下:
1) 外墻的傳熱系數要求如下表。

2) 外墻保溫應采用燃燒性能為 B1 級以上的保溫材料,優先選用高性能保溫材料,以減少保溫層厚度。
3) 屋面傳熱系數指標要求如下表。

4) 外窗(透光幕墻)的傳熱系數和遮陽系數指標要求如下表。

5) 遮陽(詞條“遮陽”由行業大百科提供)的要求
a) 東向、西向、南向外窗(透光幕墻)以及屋頂透光部分應設置外遮陽措施,優先采用活動外遮陽形式;
b) 采用固定(詞條“固定”由行業大百科提供)外遮陽時,應通過計算分析對外遮陽構件的尺寸、間距等進行優化設計。南向宜采用水平式外遮陽,東向、西向宜采用擋板式遮陽;
c) 采用活動外遮陽時,可采用金屬百葉、卷簾、中置百葉等形式。
6) 外窗及外遮陽的構造設計
a) 外窗外表面與基層墻體的聯結處應采用防水透汽材料粘貼,外窗內表面與基層墻體的聯結處應采用防水隔氣材料粘貼;
b) 外遮陽設計應與主體建筑結構可靠連接,聯結件與基層墻體之間應設置保溫隔熱墊塊;
c) 用卷簾外遮陽時,應將卷簾盒固定在保溫層外側。帶有電機的活動遮陽卷簾盒,電機電線的穿墻孔洞需密封處理。
7) 住宅建筑戶門應具有良好的保溫性,其傳熱系數 K 值宜小于 1.8 W/(m2·k)。
8) 應選用氣密性等級高的外門窗,依據國家標準《建筑外門窗氣密、水密、抗風壓性能分級及檢測方法》GB/T 7106,其氣密性等級應滿足如下要求:
a) 外窗氣密性能不宜低于 8 級;
b) 外門、分隔供暖空間與非供暖空間戶門氣密性能不宜低于 6 級。
9) 公共建筑宜設置太陽能光伏發電系統,進一步降低建筑對市政能源的需求。應與建筑一體化設計,宜采用建材型光伏構件。
10) 保溫材料的選擇與應用,保溫材料燃燒性能等級要求應符合現行國家標準《建筑設計防火規范》,GB50016 以及上海市《民用建筑外保溫材料防火技術規程》DGJ 08-2164 的要求,不應低于 B1 級。
11) 外窗玻璃應選用三玻兩腔中空玻璃或性能更優玻璃,玻璃間隔條宜使用耐久性良好的暖邊間隔條;型材宜采用鋁木復合、玻纖聚氨酯、增塑聚氯乙烯塑料、木材等保溫性能良好的材料。
12) 當外墻采用燃燒性能為 B1 級保溫材料時,外門窗的耐火完整性應滿足如下要求:
a) 建筑高度大于 24m 的公共建筑,外門窗的耐火完整性不應低于 0.5h;
b) 建筑高度大于 27m 的住宅建筑,外門窗的耐火完整性不應低于 0.5h
3.2 技術對策
被動式技術包括圍護結構節能措施,建筑氣密控制措施,圍護結構熱橋控制措施。可再生能源方面包括建筑光伏一體化的技術方案。
1) 圍護結構節能措施,根據華東建筑設計研究院綠色節能中心的研究成果,針對主要面材的要求和成本增量見下表。

2) 外窗氣密性及熱橋控制示意見下圖。

3) 可再生能源方面。太陽能光熱系統、光伏系統非強制要求,只要滿足能耗指標要求,可不設置。如不滿足,則需增加可再生能源或進一步降低建筑能耗;但應考慮經濟適度與技術適宜的原則。
4 案例分析
4.1 通過超低能耗評審項目的配置舉例
a) 顓橋鎮閔行新城項目
項目用地面積近8萬平米,申報示范面積為12萬平米。項目由小高層住宅、多層住宅、保障房、公共服務設施和其它室內、外配套用房(如物業管理用房、配電房)等組成。
外墻一體化保溫體系應用比例超過80%
外墻硅墨烯反打預制剪力墻和硅墨烯免拆模板現澆剪力墻
采用無熱橋設計
連續完整的氣密設計,規避非預期氣流滲透
采用高性能三玻兩腔中空填充氬氣中置百葉玻璃窗
一級能效的風冷熱泵機組
帶除霾凈化功能的全熱交換新風機組
應用太陽能提供生活熱水的比例達到50%9b) 江浦社區大橋街道住宅項目
項目用地面積近3萬多平米,申報示范面積為7萬平米。預計2023年底建設完工。
外墻一體化保溫體系應用比例超過80%
外墻硅墨烯反打預制剪力墻和硅墨烯免拆模板現澆剪力墻
采用無熱橋設計
連續完整的氣密設計,規避非預期氣流滲透
聚氨酯中空填充氬氣中置玻璃窗和帶百葉的三玻兩腔玻璃窗,傳熱系數達到1.2-1.4W/(㎡K)
變頻多聯式空調系統,并采用帶全熱交換、凈化、除濕等功能的新風系統
采用“上海市超低能耗建筑標準化配套工具”進行模擬分析

c) 天目社區C07-0102單元38-01地塊
項目位于上海市靜安區,北靠曲阜路,西靠烏鎮路,南靠國慶路,用地面積14329.3平方米,總建筑面積69295.58平方米。
外墻一體化保溫體系應用比例超過80%
外墻保溫形式:內外組合保溫系統
外墻保溫構造:兩種保溫結構一體化技術措施
硅墨烯預制反打保溫外墻
硅墨烯免拆膜板現澆混凝土外墻
外墻平均傳熱系數≤0.4W/(㎡·K)
外墻一體化保溫熱阻(詞條“熱阻”由行業大百科提供)占比≥60%

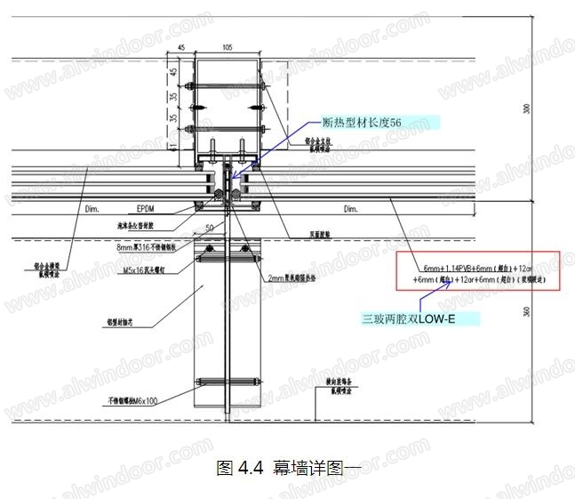
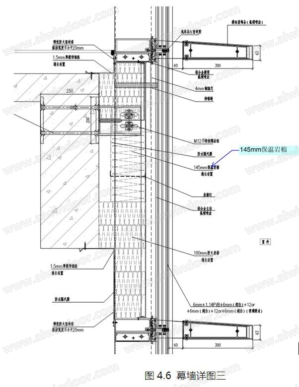
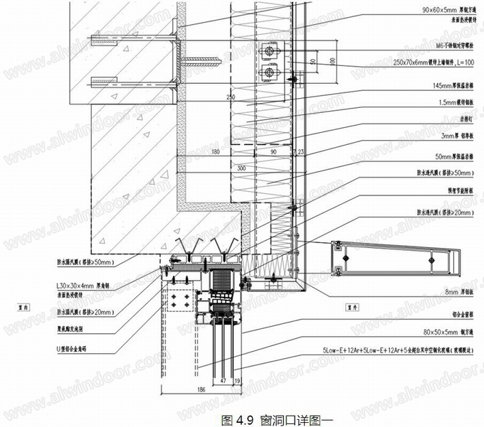
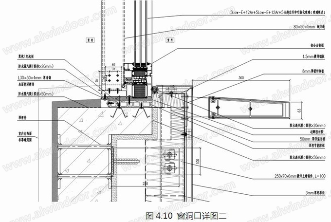
4.2 相關幕墻門窗構造設計詳圖
a) 標準玻璃幕墻水平剖面詳圖

b) 標準玻璃幕墻支座處水平剖面詳圖

c) 玻璃幕墻層間部分縱向剖面詳圖

d) 鋁合金窗的標準做法詳圖


e) 鋁合金窗洞口收邊做法詳圖


5 材料部分
綜上所述,上海市超低能耗建筑對幕墻玻璃K值、玻璃動態遮陽、支座處熱橋隔斷、墻體保溫,BIPV建筑光伏一體化,以及面維護更換等方面有著重要求。下面列舉一些較為適合的高性能低碳材料,供讀者參考。
動態遮陽部分常見配置有中置遮陽、電致變色、光致變色、溫致變色玻璃;節能玻璃有三玻兩腔雙面LOW-E超級節能玻璃,真空(詞條“真空”由行業大百科提供)玻璃;型材為有玻纖聚氨酯復合材料;墻體保溫有硅墨烯保溫板,氣凝膠絕熱涂料;再生能源:BIPV建筑光伏一體化;免更換:PVF鋁板(詞條“鋁板”由行業大百科提供)(50年質保);搪瓷鋼板(50年質保);通風器(詞條“通風器”由行業大百科提供)等。
下面列舉典型材料的指標參數作為借鑒。

上海市建筑幕墻光環境評審有玻璃反射率的控制要求。




目前用在BIPV上的主流電池是CdTe薄膜光伏組件,國內轉化率14%左右。
6 小結
隨著能源產業結構改革和升級換代,為實現“雙碳”目標的建筑節能排污工作也開始蓬勃發展起來,對比主體建筑行業來講,幕墻門窗的碳計算碳足跡工作還有待進一步深耕,針對本專業碳中和的技術白皮書也亟需提上日程,形成整個建筑行業的產業配套,才能趕上國家針對建筑綠色節能高性能低碳行動的步伐。
本文圍繞起步階段的超低能耗建筑對建筑幕墻門窗的性能要求,以上海為例,從政府發文、技術導則的解讀,到設計策略和技術路線的制定,從項目案例和材料運用上進行了梳理和例證。為提高行業同仁的認知和實操,提供了有益的思路和借鑒。
由于篇幅有限,有些“雙碳”議題沒有進一步展開,可在另篇中再和大家一同交流討論。歡迎批評指正。
參考文獻
【1】《北大金融評論》,2011,第3期,CNN44-1702/F,廣東南方報業傳媒集團有限公司;
【2】《上海市超低能耗建筑技術導則(試行)》,2019.3,上海市住房與城鄉建設管理委員會。
作者單位:華建集團華東建筑設計研究院有限公司