本篇文章內容由[中國幕墻網ALwindoor.com]編輯部整理發布:
摘要:深入理解現行國家標準JGJ/T 151-2008規范中關于幕墻熱工計算的原理,通過行業內通用的熱工計算軟件WINDOW、THERM進行熱工分析,闡述國標與美標計算方法的關系及差異。本文旨在輔助設計師在熱工計算過程中加深對規范的理解,通過計算步驟的推演,對實際操作提供指引。
關鍵詞:熱工計算;WINDOW;THERM;國標;美標
建筑節能技術的重心之一是控制建筑墻體、玻璃幕墻(窗)、屋面的保溫隔熱指標,通過材料選用、系統和構造設計、避免冷橋結露,實現建筑的低能耗。
目前國外對幕墻、門窗的熱工分析方法主要有兩個標準體系:ISO(EN)標準體系和美國NFRC標準體系。由于ISO在建筑門窗(詞條“建筑門窗”由行業大百科提供)幕墻熱工計算標準主要引用歐盟(EN)的技術標準,所以將ISO和EN標準歸為一類。ISO(EN)標準體系是一個較完整的體系,NFRC根據ISO和美國標準編制了相應的門窗熱工標準體系,即NFRC標準體系。
我國在歐美國家相關技術標準的基礎上,結合我國的實際情況,于2009年頒布了《建筑門窗玻璃幕墻熱工計算規程》(JGJ/T151-2008),于2009年5月計1日起實施。
我國JGJ/T151和美國NFRC標準體系在編制的過程中都參考和引用了ISO(EN)的計算方法,但兩個體系存在一定的差異。本文主要闡述幕墻熱工計算中,美標與國標關于傳熱系數的計算思路和國標規定的計算方法。
1 美國NFRC體系與國標體系計算傳熱系數的計算原理和方法的比較


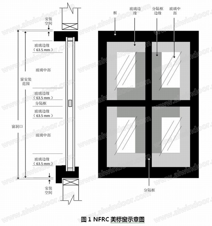
對美標的計算原理和方法的理解:由窗框、玻璃邊緣(63.5mm范圍內)及玻璃中心位置傳遞的熱流量總和,進行對整個窗面積的加權平均,所得到的就是整樘窗的傳熱系數。
1.2 國標傳熱系數的計算原理和方法:


國標的計算原理和方法的理解:由窗框傳熱(框投影面積)、玻璃與框連接位置傳熱(線傳熱)及玻璃傳熱(玻璃投影面積)的熱流量總和,進行對整個窗面積的加權平均,所得到的就是整樘窗的傳熱系數。
2 國標體系與美國NFRC體系計算傳熱系數的計算實例演示



注:一副幕墻框傳熱系數的面積取框的一半寬度計算。

2.1 國標體系計算方法建模計算
2.1.1 WINDOW進行中空玻璃傳熱系數計算
1) WINDOW進行首選項設置;
2) WINDOW進行環境邊界條件設置;
根據《建筑門窗玻璃幕墻熱工計算規程》(JGJ/T151-2008),傳熱系數計算應采用冬季標準設計條件;遮陽系數、太陽光總透射比計算應采用夏季標準設計條件。
設置WINDOW環境條件;


玻璃傳熱系數Ug=1.495 W/(㎡·K)
2.1.2 THERM進行立柱框傳熱系數及線傳熱系數計算
1) THERM進行首選項設置;
2) THERM進行環境邊界條件設置;

3) THERM進行幕墻立柱建模計算;
a. 計算框傳熱系數
第一步將玻璃面板(詞條“玻璃面板”由行業大百科提供)轉換為導熱系數λ=0.03 W/(m·K)替代面板(JGJ/T151-2008 7.1.2-2)


替代面板條件下,整個截面的熱流為73.658 W/㎡;
第二步建導熱系數λ=0.03 W/(m·K)替代面板模型進行計算

替代面板的傳熱系數為1.033 W/(㎡·K);
第三步根據GJ/T151-2008 7.1.2-3規定,計算框的傳熱系數:


在實際項目中,經常有計算人員將框與替代面板單獨定義名稱,直接讀取框的數值,如下:

雖然結果與上述計算結果相近,但沒有理論支撐。
b. 計算線傳熱系數
第一步建實際模型進行計算




2.2 美國NFRC體系傳熱系數的計算方法

2.2.1 利用WINDOW進行中空玻璃傳熱系數計算(步驟同國標,環境邊界條件選擇NFRC 100)

玻璃傳熱系數Ug=1.484 W/(㎡·K)
2.2.2 THERM進行立柱、橫梁框傳熱系數及邊緣傳熱系數計算(環境邊界條件選擇 NFRC 100)
立柱的框傳熱系數和邊緣傳熱系數(邊緣寬度為63.5mm):

橫梁的框傳熱系數和邊緣傳熱系數(邊緣寬度為63.5mm):

2.2.3 WINDOW進行整幅幕墻傳熱系數計算

THERM計算整幅幕墻傳熱系數為2.148W/(㎡·K)
以上是采用國標體系和美標NFRC體系進行幕墻(窗)傳熱系數的計算,兩種計算方法的區別在于國標的需要計算線傳熱系數和美標需要計算邊緣傳熱系數。但追根溯源,都基于玻璃在嵌入幕墻(窗)框的位置會受到框的因素的影響,兩種方法都力求通過計算反映出真實的情況。作為設計人員,可在學習計算方法的同時,深刻理解規范的內容,不僅有利于對計算結果的分析,亦對優化節點設計有所幫助。
參考文獻:
[1] 《建筑門窗玻璃幕墻熱工計算規程》JGJ/T 151-2008.
[2]馬揚,楊士超,楊華秋.中外建筑門窗幕墻熱工計算標準體系.
[3]THERM 6.3 / WINDOW 6.3 NFRC Simulation Manual
作者單位:北京市建筑設計研究院有限公司