5.2操作要點
5.2.1施工準備
1 幕材進場首先進行質量檢查驗收,幕材質量證明文件應齊全,顏色、花紋等應符合設計要求。幕材表面應無針孔、斷絲、裂縫和破損等嚴重質量問題,不得有油污和異物,熱合縫表面不得有變色(過熱)等現象。幕材檢查應根據材料的幅度多人同時進行。(見圖5.2.1)

圖5.2.1幕材現場檢查
2 作為幕墻結構的鋼結構主體驗收合格,外圍護結構完成并驗收合格。
3 檢查幕墻支撐桿件的軸線位置、標高等項目應符合設計和規范要求并按設計要求在支桿位置進行測量放線。
4 按照工程設計要求,對固定在主體結構上的鋼支桿進行檢查驗收,要求其規格、型號、數量以及表面涂裝等均應符合設計要求。
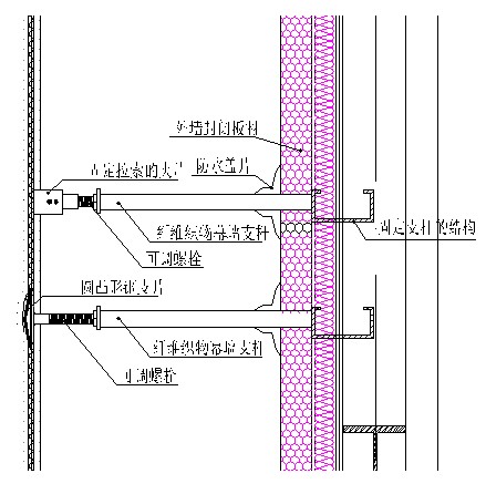
5.2.2 支桿安裝定位
1 支桿安裝定位采用焊接方法固定在主體鋼結構上(見圖5.2.2)。
2 按設計圖紙位置在已經測量放線完畢的位置進行支桿的焊接安裝,要求所有支桿三維定位必須準確,水平及豎向允許偏差限值5mm,安裝過程中應用水準儀和經緯儀隨時測量檢查復核定位,校核無誤后進行正式施焊。由于支桿長度方向具有可調性,故安裝過程中要求其允許偏差限制為±10mm,限值以內可通過調整可調螺栓進行找補,超出限值則需要修改支桿位置,重新施焊。
3 支桿安裝全部完畢后由質量部門對所有支桿進行測量檢查其定位是否合格,如有不合格點則應進行返工處理。
4 檢查建筑物主體結構上預埋固定支桿是否牢固,支桿焊接應符合規范要求。
5 現場焊接焊縫處、運輸及安裝過程中破損部位要進行防火涂料和防銹漆的補涂。

圖5.2.2支桿固定在主體結構示意圖
5.2.3 支桿根部防水處理
1 織物幕墻的防滲漏問題應做為施工質量控制重點。支桿和幕墻轉換連接桿件穿結構外墻,采用定制專用橡膠防水蓋板將桿件與墻體柔性過度,防止雨水滲漏。(見圖5.2.3)
2 橡膠防水蓋板在支桿安裝前應提前套入桿件內,支桿安裝完成后將蓋板推拉就位,用防水螺栓將蓋板與圍護結構連接固定。要求蓋板應盡可能與墻面壓平,減少縫隙。
3 橡膠防水蓋板與墻體、桿件之間的接觸面需用耐候密封膠進行防水密封處理。

圖5.2.3桿件穿結構外墻防水處理
上一頁123456下一頁

[摘 要] 近年來隨著點支式玻璃帷幕結構的廣泛應用,各種新型的支承結構孕育而生,但對于結構性能的研究往往滯后于實際工程,開展新型結構的研究顯得尤為重要。某重屋蓋柔性支承結構點支式玻璃走廊即為將剛性梁和柔性索(包括攬風索、懸索和立面的豎索

隨著一塊4.5米×2.2米、重達800公斤的玻璃幕墻安裝在上海中心的8樓,總面積達14萬平方米的上海中心玻璃幕墻安裝正式開始。當天,上海已受雙臺風“蘇拉”和“達維”的外圍環流影響,風力逐漸加大,不過這座申城的第一高樓玻璃幕墻因其獨特的柔

10月末,從國家建筑工程質量監督檢驗中心上海建科院檢測中心傳來喜訊,遠大承建的上海中心大廈外幕墻“四性測試”主要試驗一次性通過國標,目前正在積極準備接受“美標”考驗,預計11月中旬左右完成美標全部檢測項目。