本篇文章內容由[中國幕墻網ALwindoor.com]編輯部整理發布:
摘要:建筑幕墻一般應用于現代城市商業體、酒店、辦公樓等高層建筑,民宿建筑上使用較少。近些年隨著民宿行業的快速發展,民宿建筑開始朝著個性化、舒適化、豪華化、高服務化的方向發展,民宿建筑的升級換代迫在眉捷。將各種幕墻形式應用在民宿建筑中,可以顯著提高民宿建筑的檔次和競爭力,符合現代民宿建筑的發展方向,也為建筑幕墻的應用拓寬了領域。
關鍵詞:建筑幕墻;民宿;雙層幕墻;

1引言
民宿在國內經過多年的發展,已具備一定規模,且隨著旅游市場火爆,民宿行業還在快速發展。早期民宿的經營,大都是以家庭副業的方式進行,隨著民宿行業的快速發展,民宿商業價值越來越大,其經營方式逐漸轉換為家庭主業經營,并進而吸引到專業投資公司規模化經營。隨著競爭的加劇,名宿建筑也逐漸擺脫農村自建民房的低端形式,開始朝著個性化、舒適化、豪華化、高服務化的方向發展。普通民宿建筑以磚瓦結構和玻璃窗為主,設計風格偏重于鄉村風。而建筑幕墻以其大氣的外觀效果、優異的采光性能和熱工性能成為現代城市商業體、酒店、辦公樓等高層建筑的標準配置,若將各種幕墻形式應用在民宿建筑中,則可以顯著提高民宿建筑的檔次和競爭力,更符合現代民宿建筑的發展方向。
2 民宿幕墻的設計原則
幕墻主要用于高層、超高層建筑,因此規范對幕墻結構的安全性要求是很嚴格的,民宿建筑普遍層數少,高度較低,但民宿建筑上的幕墻仍應嚴格遵照幕墻規范進行設計,不能隨意降低設計標準,民宿幕墻設計原則如下:
2.1 安全性
不管哪種類型的建筑,設計時安全性必須放在第一位。建筑的安全性包括選擇適當的結構體系、材料和施工方法,以確保建筑物能夠承受各種外部荷載和環境條件的影響。由于民宿建筑的高度較低,民宿幕墻嚴格按建筑幕墻的各項規范進行設計,則安全性是可以保證的。
2.2 美觀性
好的建筑一定是美的建筑,追求美是人類的內在需求,美學是建筑設計中不可或缺的一個方面。一個成功的建筑不僅要滿足功能需求,還要具有藝術性和審美價值。設計師通過選擇合適的建筑風格、材料和色彩,以及精心設計的細節,來創造出富有表現力和吸引力的建筑作品。
2.3 經濟、實用性
建筑設計需考慮建筑的建造和使用成本,不宜過分追求某一方面的表達而忽視了實際的使用需求。
2.4 可持續性
可持續性是現代建筑設計的重要原則之一。設計師們致力于通過使用各種手段,減少建筑對環境的影響,并提高建筑的資源利用效率。可持續性不僅有助于保護環境,還可以降低建筑的運營成本,提高使用者的舒適度。
3 項目概況及總體設計
本文將結合某民宿項目的實例來詳細介紹建筑幕墻在民宿設計上的具體應用。
3.1 項目概況
項目名稱:北京市延慶區八達嶺長城某民宿項目,如下圖1所示。
項目地點:北京市延慶區八達嶺鎮
建筑工程等級:四級
建筑使用性質:居住
設計使用年限:25年
建筑總高度:9.558m
建筑層數:地上2層
建筑層高:3.3m
建筑總面積:459.21㎡
結構類型:磚混結構(詞條“磚混結構”由行業大百科提供)
基礎型式:條形基礎
場地類比:Ⅱ類
抗震設防烈度:8度
結構抗震等級:三級
建筑抗震類別:標準設防類
防雷級別:三類

3.2 采光設計
本項目在民宿建筑上引入了大量玻璃幕墻元素,借助玻璃的通透性,大幅提高了建筑的采光性能。具體來說:
(1)每個房間都設計有大的落地玻璃窗,窗戶寬度為3米或3.6米,高度為2.65米;
(2)二層東側的接待室東立面設計有一幅大尺寸玻璃幕墻,尺寸為6005mm*2650mm。
(3)大堂入口為雙層玻璃幕墻;
(4)大堂屋頂設計有全玻璃采光頂;
(5)大堂北面設計有一幅3000mm*1200mm的高窗;
(6)衛生間均設計有800mm*600mm的高窗;
(7)二層走廊設計有一塊6020mm*1150mm的玻璃地板;
(8)大堂懸浮樓梯、大堂空中小島、南側露臺及臨邊的護欄均為夾層玻璃欄板。
3.3 節能設計
本項目地處北方,節能設計是重點,尤其是建筑的保溫性能要求較高。
(1)外墻保溫做法:墻體外側鋪貼80mm厚擠塑保溫板;
(2)屋面保溫做法:屋面保溫為150mm厚保溫層;
(3)砌體空斗墻內填充膨脹珍珠巖,提高墻體保溫性能;
(4)所有窗戶與結構接口處均采用保溫巖棉填充嚴實;
(5)大堂入口采用雙層呼吸式玻璃幕墻,熱工性能優異;
(6)大堂屋頂采光頂上方設計有可移動式遮陽板;
(7)面對庭院的東、南兩個立面走廊最外側設計有高性能的折疊門窗,在冬季時打開折疊門窗將走廊封閉,增強建筑的保溫性能;其它季節折疊門窗保持開啟,使建筑具有良好的通風和采光性能;
(8)南側屋面閣樓的坡屋面上方安裝光伏板,結合家庭綠電儲能系統,利用太陽能解決部分用電需求,降低建筑的能耗。
3.4 防雷設計
本項目位于山區,本建筑周圍較空曠,且高于周圍其它建筑,需設計獨立的防雷系統。
防雷系統具體做法為:
(1)接閃器:利用女兒墻鋼欄桿及坡屋頂的鋁板做接閃器,屋頂全部連通。
(2)凡突出屋面的所有金屬構件、金屬攔桿、金屬屋面、金屬屋架等均與接閃器不少于兩點可靠焊接。
(3)引下線分別設置在構造柱及框架柱的最外角鋼筋上,間距按軸線7800mm;作為引下線的鋼筋除了綁扎外,還要焊接,須雙面焊接,焊接長度不小于6d=72mm,與女兒墻上的埋件也要焊接。
(4)引下線在地基圈梁上,要與圈梁最外側的底部鋼筋全部焊接連通,形成焊接閉合的防雷網。
(5)防雷接地:引下線與圈梁外側底部鋼筋全部焊接后,每處引下線位置都要設置一個接地樁。接地樁采用50*50*5的鍍鋅角鋼,對應引下線位置避開地基墊層混凝土,就近打入地面以下不小于2.0米。接地樁與地基圈梁上的避雷鋼筋用∅12的鋼筋焊接連通,雙面焊接焊縫長度不小于6d=72mm,接地完成后才能回填土和搗一層地面墊層混凝土。
(6)接地樁角鋼打入地下土層后,角鋼周圍400mm*400mm范圍要用鹽水澆透再填土,增強導電性能。
3.5 預埋件設計
本項目不同于普通的民宿建筑,需給幕墻安裝預埋鐵件。預埋件設計需滿足土建和幕墻相關規范,隨土建結構施工時預埋。
4 民宿幕墻的具體實施方案
4.1玻璃幕墻的應用
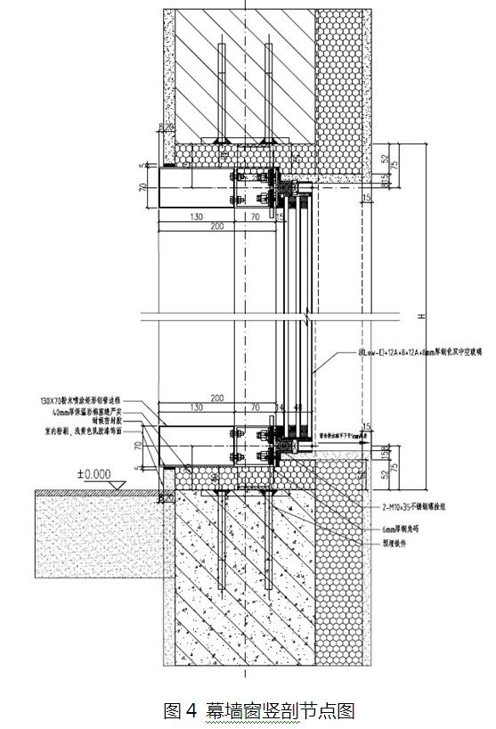
玻璃幕墻外觀漂亮,通透性好,是一種重要的幕墻形式,本項目采用幕墻窗替代民宿上常用的普通斷熱鋁窗。與普通斷熱鋁窗相比,幕墻窗有以下優點:
(1)鋁型材壁厚更厚:GB/T 8478-2020《鋁合金門窗》對窗戶鋁型材壁厚的要求為:外窗不應小于1.8mm,內窗不應小于1.4mm;JGJ102-2003《玻璃幕墻工程技術規范》要求當幕墻橫梁跨度不大于1.2m時,鋁合金型材截面主要受力部位的厚度不應小于2.0mm;當橫梁跨度大于1.2m時,其截面主要受力部位的厚度不應小于2.5mm;幕墻立柱(詞條“立柱”由行業大百科提供)鋁型材截面開口部位的厚度不應小于3.0mm,閉口部位的厚度不應小于2.5mm。可知,幕墻窗比普通窗采用的鋁型材壁厚更厚,外截面尺寸相同時,承載力更高。
(2)玻璃配置高:普通窗采用的玻璃一般為5+9A+5mm厚或6+12A+6mm厚的單腔中空鋼化玻璃,熱工性能一般。幕墻窗根據使用地區的氣候特征,可采用厚度更厚的單腔中空玻璃(詞條“中空玻璃”由行業大百科提供),也可采用雙腔或多腔的中空鋼化玻璃,熱工性能優異。
(3)安裝方式更可靠:普通窗一般采用鋼連接片與結構連接,連接強度較低,抗震性能差。而幕墻窗采用不低于6mm厚的鋼角碼與結構上的預埋件連接,連接強度高且抗震性能好。
幕墻窗安裝詳圖如下圖2、圖3、圖4所示:



4.2大尺寸玻璃幕墻的應用
得益于玻璃幕墻的優異性能,本項目二層接待室的東立面設計了一幅大尺寸的玻璃幕墻,分格尺寸為6005*2650mm,外觀效果非常大氣,從室內透過無遮擋的大玻璃可以欣賞室外的美麗風景,如下圖5所示:

4.3雙層玻璃幕墻的應用
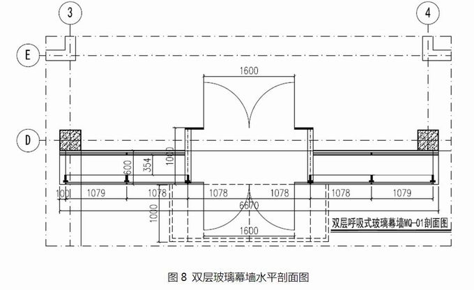
雙層幕墻又稱熱通道幕墻、呼吸式幕墻、通風式幕墻、節能幕墻等,是高端的幕墻產品。雙層幕墻由內外兩層立面構造組成,兩層立面中間形成一個室內外之間的空氣緩沖層通道,在不同的季節通過控制進風口和出風口的啟閉,使雙層幕墻處于不同的工作模式,從而達到通風和節能的目的。
本項目大堂入口處采用雙層玻璃幕墻,如下圖6、圖9所示,大幅提高了本項目檔次。雙層幕墻的進風口在外層幕墻底部,為常開設計,采用鋁合金百葉裝飾;出風口在內層幕墻頂部,可控制啟閉。
如圖7、圖8所示,在夏季,出風口打開,通道內的空氣吸收熱量后上升,從出風口排出;同時室外溫度較低的新鮮空氣從進風口進入通道,雙層幕墻如同在呼吸,使通道內的空氣降溫,進而起到降低室內溫度的作用。
在冬季,關閉出風口,通道內的空氣在陽光照射下升溫并保留在通道內,可以減少室內的熱量損失從而提高室內溫度。




4.4石材幕墻的應用
石材幕墻外觀大氣、莊重,加之石材不同于人造材料的天然屬性和質感,很受設計師青睞,越來越多的別墅建筑外立面已大面積采用石材幕墻。
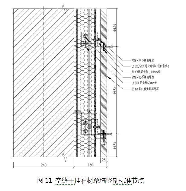
本項目東立面采用空縫干掛石材幕墻,如圖12所示,無密封膠可避免膠縫吸附灰塵,石材幕墻能長期保持外表面干凈、整潔,減少清洗次數。此立面石材的莊重感與大尺寸玻璃幕墻的輕盈感虛實結合,對比強烈。石材幕墻厚度為130mm,石材面板選用25mm厚白麻花崗巖,立柱采用50*50*5鍍鋅鋼方管,橫梁采用L65*35*5銀白氧化(詞條“氧化”由行業大百科提供)角鋁。石材幕墻豎向留2mm空縫,橫向留5mm空縫,橫梁角鋁在橫向空縫處外露,起到裝飾的作用。
以下圖10、圖11為干掛空縫石材幕墻的標準節點:



4.5金屬板幕墻(詞條“金屬板幕墻”由行業大百科提供)的應用
金屬板幕墻的種類較多,常用的金屬板有鋁單板、鋁塑板(詞條“鋁塑板”由行業大百科提供)、蜂窩鋁板、不銹鋼板等,業主可根據自身喜好和工程預算自由選擇。
金屬板幕墻有以下主要優點:(1)適應性強,能用于各種造型復雜的建筑;(2)室外用金屬板表面一般采用氟碳噴涂,面板色彩豐富,且能做仿石材、仿木紋等效果,選擇豐富;(3)金屬板經久耐用,不褪色;(4)防水(詞條“防水”由行業大百科提供)效果好。
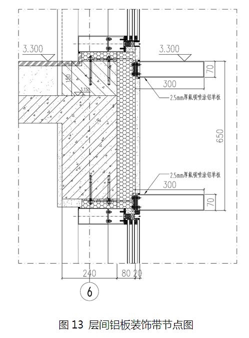
本工程立面上未大面積采用金屬板,如下圖13僅層間設計有兩道300*70mm的2.5mm厚鋁單板裝飾帶,圖14及圖15所示雙層幕墻上的入口門頂部采用2.5mm厚鋁單板雨棚,庭院的涼亭懸浮鋁板上表面采用2.5mm厚鋁單板,下表面采用4mm厚空縫鋁單板。



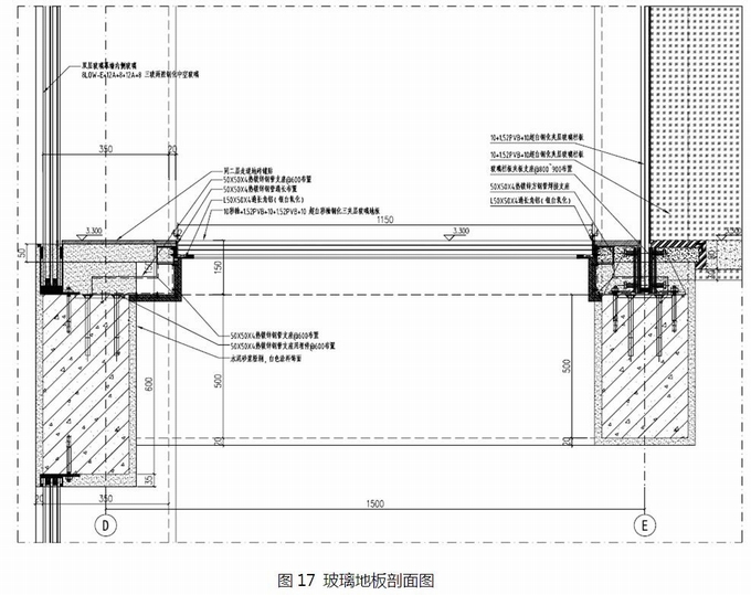
4.6玻璃地板的應用
本項目二層走廊的地面設計有一塊6020*1150mm尺寸的玻璃地板,如下圖16、圖17、圖18所示。玻璃采用10彩釉+1.52PVB+10+1.52PVB+10mm超白彩釉鋼化三夾層玻璃,人行走在上面仿佛置身于景區的玻璃棧道上。玻璃地板上的彩釉圖案可訂制。
玻璃地板圖紙如下:


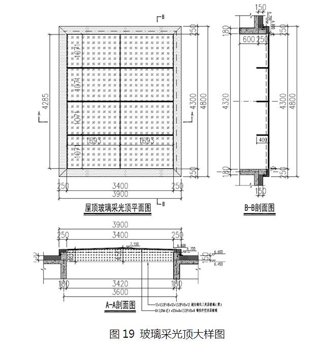
4.7玻璃采光頂的應用
如下圖19、圖20所示,本項目大堂屋頂設計有玻璃采光頂,為增強采光頂的通透性,采光頂采用玻璃面板+玻璃肋的全玻璃結構。采光頂玻璃面積為4.3*3.4=14.62㎡,玻璃四周采用250mm寬2.5mm厚氟碳噴涂鋁單板包邊。采光頂玻璃面板采用8(Low-E)+12A+8+1.52PVB+8mm鋼化中空夾層玻璃,單塊玻璃分格尺寸為1071mm*1693mm。玻璃肋采用12+1.52PVB+12+1.52PVB+12mm超白鋼化三夾層玻璃,玻璃肋跨度為3400mm,兩端高度400mm,中心高度為450mm。施工時先在結構洞口側面安裝鋼槽,玻璃肋安裝在兩側的鋼槽中,再在玻璃肋頂部安裝玻璃面板。
玻璃采光頂大樣圖如下:


4.8電動遮陽板的應用
為提高建筑的節能性能,本項目在屋頂玻璃采光頂上方設計了電動遮陽板,遮陽板材料選用梭形截面的鋁型材,如下圖21所示。遮陽板底部距玻璃采光頂最高點30mm。遮陽板長度方向沿南北方向布置,根據陽光照射方向的不同,遮陽板自身可電動旋轉葉片角度,以達到最佳的遮陽效果。遮陽板為可移動式設計,在炎熱的夏季,遮陽板正常工作;在其它季節,需通過采光頂加強采光,則將遮陽板平移至采光頂旁邊,采光頂完全無遮擋,如下圖22、圖23所示。


5 結語
本文以某民宿項目實例詳細介紹了建筑幕墻在民宿建筑中的具體應用,打破了幕墻只適用于城市高層建筑的常規思路。獨棟民宿建筑一般建筑面積較小,雖然無法大面積使用幕墻,但仍可通過精心設計將各種幕墻型式巧妙組合在一起應用于民宿的外裝飾上,設計出優秀的民宿建筑。如局部的雙層幕墻的設計,即使在城市很多高端酒店的幕墻上都沒有選擇使用。幕墻在民宿建筑上的應用,不僅使民宿在功能性、美觀性上大幅提升,更重要的是提高了民宿建筑的檔次和市場競爭力。希望本文能對高端民宿建筑的外裝飾設計起到拋磚引玉的作用,促進民宿建筑更好、更快發展,同時也為當前建筑幕墻市場大幅萎縮提供一條新的應用嘗試途徑。
參考文獻
[1] 《建筑幕墻術語》GB/T34327-2017
[2] 《玻璃幕墻工程(詞條“玻璃幕墻工程”由行業大百科提供)技術規范》JGJ102-2003
[3] 《金屬與石材幕墻工程技術規范》JGJ133-2001
作者單位:乘方開方建設科技(武漢)有限公司