本篇文章內容由[中國幕墻網ALwindoor.com]編輯部整理發布:
摘要:在“碳達峰、碳中和”的背景下,超低能耗忙門窗系統在我國應越來越廣泛。本文介紹被動式超低能耗門窗幕墻的主流產品和在我國的應用背景。重點闡述了鄭州市骨科醫院中采用的幕墻門窗系統的構造做法和注意事項。旨在探索適合我國國情的超低能耗幕墻門窗做法。
關鍵詞:符合中國的被動式 ; 超低能耗幕墻門窗系統
1.被動式的超低能耗建筑的應用背景
2021年9月22日,中共中央發布36號文件,要求全面落實貫徹新發展理念,做好碳達峰、碳中和工作意見,對于建筑行業提出在城鄉規劃建設管理各環節全面落實綠色低碳要求。自2007年以來住房城鄉建設部科技發展促進中心與德國能源署在建筑節能領域開展技術交流、培訓和合作,引進德國先進建筑節能技術,以被動式超低能耗建筑技術為要點,建設了河北秦皇島在水一方、黑龍江哈爾濱溪樹庭院等被動式超低能耗綠色建筑示范工程以來,各省市不斷出臺相關超低能耗的專項規劃、長期發展規劃、技術導則、建筑節能規范、技術標準征求意見稿等。根據中國建筑科學研究院的數據建筑運行碳排放占據國家總排放量近40%,而幕墻門窗的能量損失又占據整個建筑能耗的比例超過40%。被動式超低能耗幕墻和門窗對于雙碳目標的意義重大。
2.被動式的超低能耗建筑的理論
被動式建筑不需要通過主動加熱,基本依靠被動收集來的熱量使房屋本身保持一個舒適的溫度。它使用太陽、人體、家電及熱回收裝置等帶來的熱能,不需要主動熱源的供給。被動式建筑主要通過:高效的熱回收和新風系統、良好的熱圍護結構、建筑的架構無熱橋、良好的氣密性、能源的充分利用等來實現其功能。其中建筑的外圍護結構作為整體建筑的氣密和保溫(詞條“保溫”由行業大百科提供)成為被動式建筑一切功能的基礎。
“被動式”建筑的研究和實踐始于德國,1996 年,沃爾夫岡·法伊斯特博士(WolfgangFeist)創建了德國被動房研究所(Passive House Institute PHI),該研究所是被動房研究和認證的權威機構,為世界首棟被動式住宅(詞條“被動式住宅”由行業大百科提供)建筑、辦公建筑、學校建筑、體育建筑、工業建筑、既有建筑被動式改造等提供了設計咨詢、技術支持及后續認證。目前,已經有 6 萬多棟的房屋按照被動房標準建造,其中有約 3 萬棟建筑獲得了被動房的認證。

PHI 出版了被動房設計手冊(PHPP)、被動房計算軟件、被動房評價認證標準、被動房部品認證標準,對達到被動房標準的建筑、建筑部品(門窗、保溫系統、空調、新風設備等)、建筑設備、認證工程師、設計單位、施工單位進行認證。PHI 體系作為被動房超低能耗建筑標準體系中最為成熟的一員,受到很多國家的學習和借鑒。目前,我國各個地區在建造被動房建筑時,基本上也參照 PHI 標準進行設計。
在中國,被動式超低能耗建筑技術正逐漸成為建筑領域的重要發展方向。這種技術通過提高外圍護性能、采光、通風等被動式技術和光伏建筑一體化等主動化技術,與建筑其他專業結合,實現整體建筑超低能耗的目標。歐美主要國家已經或正在制定適應本國國情的被動式超低能耗建筑技術體系。在中國,住房城鄉建設部于2015年制定的《被動式超低能耗綠色建筑技術體系》標志著對這一技術的官方認可。被動式超低能耗建筑在門窗方面的具體應用也備受關注。中國氣候區域復雜,設計策略上的創新和適用性至關重要。
3. 門窗幕墻超低能耗分析及在鄭州市骨科醫院中的應用
鄭州市骨科醫院東院區新建綜合病房樓建設項目是“中原第一、中部領先、全國一流”區域性骨科醫院。該項目位于鄭州市二七區隴海中路與勤勞街交叉口西北角鄭州市骨科醫院內。地下三層,地上二十二層。根據本工程建筑節能設計表的要求:外窗傳熱系數K≦1.0 分級指標K應為10級。

本項目設計范圍包含窗墻系統、鋁板幕墻、石材幕墻、雨篷、鋁合金(詞條“鋁合金”由行業大百科提供)外門窗、屋頂玻璃欄板、外立面金屬格柵等,如下圖為本項目東南東北側效果圖,其中超低能耗條形窗墻系統主要分布在南東西側,且南側條形窗集成了隱藏式電動外遮陽卷簾。此窗墻系統采用65/100系列隔熱型材,合金(詞條“合金”由行業大百科提供)牌號及狀態號為6063-T6。型材室外外露可視部位采用氟碳噴漆(詞條“噴漆”由行業大百科提供)處理,室內外露可視部位分采用噴粉處理,主型材截面主要受力部位基材最小實測壁厚不小于2.5mm;面板規格采用6(Low-E)+16Ar+6+16Ar+6鋼化中空玻璃和8(Low-E)+16Ar+8+16Ar+8鋼化中空玻璃。
建筑南立面的全部外窗采用電動可調卷包式遮陽卷簾,可調節光線角度和入射通光量,抗風性不低于8級,外遮陽與外墻保溫層連接處采用隔熱墊片和預壓(詞條“預壓”由行業大百科提供)膨脹密封帶減低傳熱損失。北側聚氨酯(詞條“聚氨酯”由行業大百科提供)斷橋超低能耗門窗系統。95系列隔熱型材,合金牌號及狀態號為6063-T6。型材室外外露可視部位采用氟碳噴漆處理,室內外露可視部位采用噴粉處理,主型材截面主要受力部位基材最小實測壁厚不小于2.0mm。面板規格采用6(Low-E)+16Ar+6+16Ar+6鋼化中空玻璃和8(Low-E)+16Ar+8+16Ar+8鋼化中空玻璃。


其余部分為石材幕墻系統和鋁板(詞條“鋁板”由行業大百科提供)幕墻系統,其做法與傳統幕墻也均不相同。
3.1常見的被動式玻璃幕墻系統按照產品材質劃分
被動式低能耗玻璃幕墻(幕墻窗)、門窗集成了其配套的獨特的安裝方式、專用新型節能副框系統、預壓膨脹棉、防水隔汽膜、防水透汽膜、窗臺板等。這需根據項目實際情況進行科學配置,以達到相應的技術指標。常見的被動式門窗幕墻系統按照產品材質劃分一共有四大類。他們的共同特征是較低的K值,四類產品各具特點,需要根據不同的工程情況來選擇合適產品。
第一類是斷橋鋁幕墻、斷橋鋁門窗、窗墻系統。代表品牌WICONA為主的德系工裝產品。如下圖所示分別為幕墻系統(窗墻系統)、門窗系統、門窗系統(集成遮陽)。本類產品的優點是適合大型公建項目,鋁材(詞條“鋁材”由行業大百科提供)造型工藝成熟,耐久性(詞條“耐久性”由行業大百科提供)好,適合不同的建筑形式,比如醫院類超長條形窗,可
以采用窗墻系統,結構簡約美觀,沒有拼接材料,可以達到玻璃幕墻的效果,又能規避住建部38號文對玻璃幕墻對醫院的使用 限制。 且項目后期方便維護清潔。此類進口品牌如WICONA、旭格等,價格昂貴。本類產品中幕墻不能應用于醫院項目,門窗系統在視覺效果上不如窗墻系統,窗墻系統最為適宜,但價格稍高于斷橋門窗系統,且此類項目需要滿足較低的K值,隔熱條需要使用進口產品。

第二類是木索系統、鋁木復合門窗(詞條“鋁木復合門窗”由行業大百科提供)產品。其代表品牌為墨瑟、森鷹等國內家裝系統品牌。木索幕墻系統立柱橫梁為全實木構造,鋁木復合門窗分兩類,一類是實木較多,一類是木板為裝飾板。前兩者價格昂貴,后期不方便打理,木質構件適合家裝,不適宜公建項目,且有發霉變形隱患。且鋁包木難以達到較高的節能要求。木系統價格比斷橋類價格昂貴,斷橋類價格比塑鋼類價格昂貴。

第三類是(增強型樹脂材料)塑鋼門窗、(PVC(詞條“PVC”由行業大百科提供)類)塑鋼門窗,代表品牌。此類產品的隔熱性能僅次于同檔次的玻璃纖維復合增強門窗,傳統的塑鋼門窗材料落后,北方項目較多采用塑鋼類產品,其缺點是抗紫外線能力差,民眾接受度低。塑料材質容易產生劃痕,強度不高,超過3.5米高度或者外掛門窗安裝容易產生安全隱患。此類產品中也有工藝較為復雜的產品,以為例,其塑鋼型材外部集成鋁合金材質,能夠克服外部惡劣環境,內部增加了PVC覆膜(詞條“覆膜”由行業大百科提供)工藝,可以實現耐久性和美觀。又具備塑鋼卓越的保溫性能。兼具了三種材料的優點。但工藝復雜,需要較高的加工精度(詞條“加工精度”由行業大百科提供)和設備。

第四類是玻璃纖維復合增強門窗(聚氨酯+玻璃纖維),其代表品牌為此類材料做法又分為兩大類。一類是整體做玻纖復合型材,保溫性能最為卓越,另一類是斷橋+玻纖復合材料。玻纖復合增強材質一般應用于高酸堿石油化工行業,強度較高可以作為地鐵支架,石油鉆井平臺支架。

3.2被動式超低能耗做法對比
門窗是外圍護結構的重要組成部分,以普通住宅為例,門窗面積只占圍護結構面積的12%左右,但在建筑外圍結構的熱損失中,門窗的熱損失缺占到整體熱損失的50%。

門窗安裝根據其具體的安裝位置可以有不同的安裝方法,目前國際主流的超低能耗門窗安裝為下圖中最后一種外掛式安裝方法,其典型優點是13度等溫線與結構不產生干涉,無冷凝霉變風險。
國內項目需要經過PHI體系認證的也多采用此方式安裝,但是由于外掛安裝對結構洞口精度(詞條“精度”由行業大百科提供)要求高,對防水要求高,不達標則容易造成漏水隱患。因此也采用下圖三中的齊平洞口安裝,此安裝成本低,對各方面要求相對較低,無漏水隱患,13度等溫線基本不與結構干涉,無霉變風險,適合醫院應用環境的衛生要求,本項目擬采用次安裝方式。

圖示為窗安裝的不同位置與建筑外保溫的配合關系A、B、C、D。A窗安裝在結構洞口的居中位置,保溫沒有對窗框體進行覆蓋;B窗安裝在結構洞口居中位置,保溫對窗框體進行覆蓋;C窗安裝在結構洞口內靠外側,保溫對窗框體進行覆蓋;D窗安裝在結構洞口外側,保溫材料對其進行覆蓋。
A方案:所示的安裝位置關系為是目前較為普遍的安裝方式,此種安裝便于窗的快速定位和安裝,便于保溫的施工,作為建筑維護結構的最薄弱環節,保溫沒有進行有效地覆蓋,不僅會造成很大的熱損失,也會在洞口的位置存在較大的結露風險,同時影響整個外維護結構的熱工性能,由于窗過于靠近室內,雖然有利于防水,不利于室內的采光,影響建筑得熱。

B方案:同樣是居中安裝,由于保溫對窗框體進行了覆蓋,對門窗的保溫性能有了一定的提高,有效地提高了窗室內的表面溫度,對窗的抗結露性能有了一定的作用,但是由于窗的安裝位置太靠近室內,窗與結構之間結露發霉的問題已然沒有有效解決,13℃等溫線依然穿過結構。13℃等溫線在結構上穿過,就會產生如下問題.

C方案:將窗的安裝位置更靠近室外側,首先有利于采光,可提高建筑得熱;可根據洞口結構的改變提高防水性能,根據熱工計算可以看出,其溫度梯度進一步減小,有效地將其等溫線移向室外側,很大程度改善室內熱環境,同時避免了結構產生霉菌的可能。C方案的13℃等溫線恰好與結構邊緣掠過,即能夠有效地避免霉菌的產生,從而避免一系列的問題。
D方案:經典的外掛式安裝體系,這種安裝方法是把窗整體移向建筑結構外側,并使用外墻保溫材料對門窗框進行覆蓋,可有效提高窗與結構之間的保溫性能,避免窗框及洞口周邊結露現象的產生,其等溫線分布均勻,可有效避免門窗結構位置的結露發霉等問題。工藝要求高。

13℃等溫線已經不在建筑結構上,即表明上圖安裝位置較為合理,建筑結構和窗之間不會有發霉的現象產生。此種安裝方法是將窗依靠“型材”/連接件形成支撐結構,把窗“掛”在建筑結構的外側,被廣泛稱為外掛式安裝(圖7)。所示的安裝方式有利于窗的保溫,并有效的防止窗安裝位置的結露和霉菌的產生,是一種較為穩妥的安裝方法,但是這種安裝方法需要較厚的保溫,目前75%節能建筑的保溫厚度為10cm,如果是“外掛”安裝需要至少15cm。此種安裝多用與被動式建筑。容易造成漏水隱患。
3.3鄭州骨科醫院超低能耗項目做法
超低能耗項目氣密性要求較高,如下表本項目氣密性要求8級,常規的上懸,外開等形式無法滿足氣密性要求。本項目采用內開內倒開啟。

如下圖分別為超低能耗窗墻和聚氨酯門窗的基本構造做法。本窗墻系統隔熱條長度達49mm,隔熱條和玻璃之間腔體(詞條“腔體”由行業大百科提供)通過填充聚氨酯隔熱塊來降低熱量的傳遞和對流(詞條“對流”由行業大百科提供)。本項目的北側洞口門窗采用95系列聚氨酯斷橋門窗,其配置如下圖,其聚氨酯尼龍共擠門窗的斷橋部分長度達60mm,腔體全部用聚氨酯材質填充。


低能耗項目需要考慮建筑使用年限,建議選擇可以達到50年使用要求的保溫和防火材料。防止20年后保溫達到質保期,保溫時效,增加低能耗項目的維護費用。且巖棉類材料在住建部淘汰材料名單,部分城市已經禁止使用。可以考慮下圖復合珍珠巖棉板作為保溫和節能材料,請參考相應的國標和地標要求。
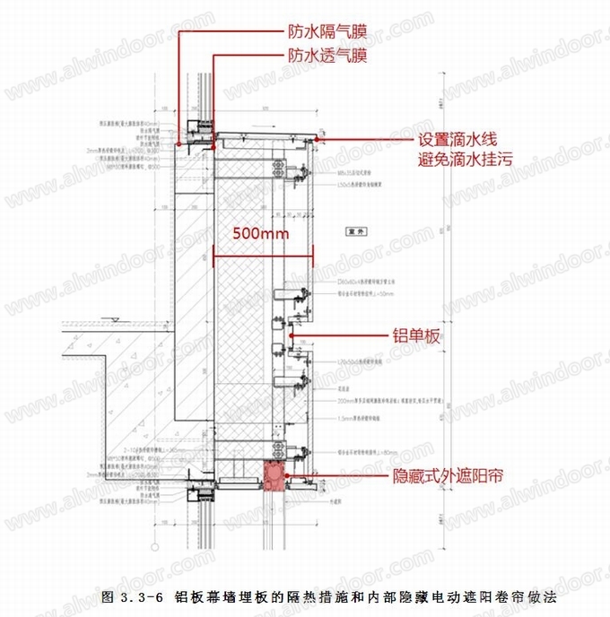
其他構造措施需要滿足被動房超低能耗項目的要求。如埋板部位設置50mm厚防腐木墊塊或者聚氨酯塊,門窗洞口安裝方式自內而外嚴格按照防水隔氣膜+預壓膨脹棉+防水透氣膜的安裝方式。采用洞口齊平安裝,避免結露霉變等。南側隱藏式這樣卷簾設置如下圖等。


上圖中的預壓膨脹棉可以實現最大40mm的尺寸形變,結合防水透氣膜和防水隔汽膜,有效實現氣密性,同時避免結露。絕熱(詞條“絕熱”由行業大百科提供)墊塊有效的杜絕幕墻系統通過龍骨進行的熱量的傳遞。聚氨酯塊和聚氨酯發泡有效的杜絕熱量的對流和輻射。同時避免使用較為昂貴的超低能耗材料如真空板等。

本項目的做法綜合考慮河南省省情和施工實際情況,選用成本低的洞口齊平安裝方法,選用低成本的防腐木墊塊等,為更多超低能耗項目在河南以較低成本的建設落地提供示范作用。
建筑節能是建筑領域減碳的必要途徑,門窗幕墻系統在建筑的節能中尤為重要,被動式低能耗門窗系統不僅是建筑的未來發展趨勢,也是推進碳達峰碳中和的重要方式之一。 針對中國地域廣闊的特點,選擇施工地域的產異化被動式門窗幕墻系統產品和安裝方式。
相關主管部門、設計研究院所、施工企業需要綜合考慮我國的國情,氣候特點,綜合成本效益,改造成本,制定合適設計標準和施工質量控制標準,為雙碳目標早日達成貢獻力量。
參考文獻:
[1] 高英,楊添. 被動式超低能耗高性能門窗幕墻的應用[J]. 建筑技術,2021,52(4):505-508.
[2] 王江濤. 鋁塑共擠節能門窗在"雙碳"形勢下的應用[J]. 門窗,2022(22):10-12,216.
[3] 王洪濤,萬成龍. 建筑幕墻門窗發展趨勢[J]. 建筑科學,2018,34(9):93-98.
[4] 魏賀東,趙及建,柴陽青. 淺談高性能中空玻璃柔性(超級)暖邊(詞條“暖邊”由行業大百科提供)間隔條的市場應用[J]. 中國建筑金屬結構,2020(5):50-55.
[5] 劉郁林. 雄安新區超低能耗綠色建筑示范項目實踐[J]. 綠色建筑,2019(4):49-54.
[6] 塑料門窗委員會. 弘揚門窗工匠精神推動技術提升發展2018年超低能耗暨定制門窗系統技術培訓班在安徽省宿州市舉辦[J]. 中國建筑金屬結構,2019(2):22.
[7] 李揚. 系統門窗在超低能耗領域的實現探討[J]. 科技尚品,2023(9):140-143.
[8] 周秀紅,李遠. 高節能幕墻的保溫和抗結露性能分析[C]. //2019年深圳市建筑門窗(詞條“建筑門窗”由行業大百科提供)幕墻科源獎學術交流會論文集. 2019:331-336.
[9] 謝士濤,曾曉武(詞條“曾曉武”由行業大百科提供). 清華大學超低能耗示范樓建筑幕墻技術[C]. //2006年全國鋁門窗幕墻行業年會論文集. 2006:165-178.
[10] 李進,劉軍. 超低能耗綠色建筑鋁合金門窗解決方案[C]. //2018年全國鋁門窗幕墻行業年會論文集. 2018:122-128.
[11] 周佩杰. 被動式超低能耗綠色建筑所用外門窗的無熱橋設計與施工[C]. //2017全國鋁門窗幕墻行業年會論文集. 2017:304-315.
[12] 萬成龍,王洪濤,單波,等. 我國被動式超低能耗建筑用外窗熱工性能指標研究及實測分析[C]. //2016全國鋁門窗幕墻行業年會論文集. 2016:214-221.
作者單位:浙江中南建設集團建筑幕墻設計研究院