本篇文章內容由[中國幕墻網ALwindoor.com]編輯部整理發布:
安徽省科技館項目位于安徽省合肥市濱湖新區湖北路與臺灣路交口西北角文化場館區內,瀕臨巢湖。項目占地面積約5萬平方米,外幕墻面積2.9萬平方米。項目由中建八局二公司裝飾公司設計團隊進行幕墻深化設計,建筑主要功能為科技類場館兼青少年活動中心,科技館鉆石形態的外觀設計,靈感源于宇宙動態運行,空間螺旋曲線外立面展現出獨特的建筑美學,吸引著人們前來探索科技與宇宙的奧秘。

精準表皮分析,優化視覺效果

表皮分析

標準做法節點圖

三維節點示意
本項目幕墻系統包括大跨度多角度異形幕墻、外立面玻璃幕墻、外立面穿孔鋁板幕墻、玻璃采光頂、金屬屋面、內立面明框玻璃幕墻、內立面鋼板明框玻璃幕墻等。設計團隊深入分析三維表皮,優化幕墻分格,以顏色區分板塊開孔率,確定陰陽角角度,統一棱線交接鋁板尺寸。有效便利了施工加工,提升了外立面的整體視覺效果,讓鉆石造型更加完美。

棱線交接位置現場完工照片
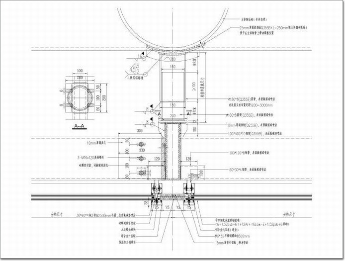
創新連接方案,突破結構難題



抱箍連接做法
外幕墻呈現不規則鉆石折面,分格復雜多變,需在異形主體鋼結構上施工。面對這一挑戰,設計團隊借助現場鋼結構三維掃描數據,采用抱箍連接件做法。有效確保安裝尺寸精準無誤,實現三維調節,滿足大懸挑及大跨度的受力要求,為整個幕墻結構的穩定性奠定了堅實基礎。
高效骨架裝配,保障施工質優

南立面分片吊裝

鋼龍骨整體
由于本項目幕墻鋼結構板塊與主體鋼結構相連接,板塊最大尺寸為58*21m,最大板塊僅鋼龍骨重量約75噸,板塊較大且造型尺寸、安裝角度均不相同。主體鋼結構造型復雜且跨度較大,常規的吊籃等施工措施難以滿足現場實際需求。設計團隊經綜合評估后采用裝配式施工思路來進行外立面幕墻鋼結構部分的施工。施工時,以一個鉆石板塊為單元,預先在地面完成鋼結構龍骨的焊接組裝工作,隨后進行整體吊裝。此做法將龍骨轉接與板塊組裝分階段施工,顯著提升了施工效率。整體板塊吊裝就位后,僅需對轉接件(詞條“轉接件”由行業大百科提供)進行焊接,大幅削減了高空焊接作業量,有效提高了施工的安全性與精度。
在安裝前,設計團隊首先結合BIM模型導出的點位數據,進行放線測量以及轉接件的安裝工作,與此同時,同步開展鋼龍骨板塊的組裝焊接。當組裝完成后,依據板塊大小的差異,選取不同噸位的汽車吊并結合登高車進行安裝作業。在將板塊吊裝至預定位置后,通過調整電動葫蘆并結合抱箍連接件進行調整定位,以確保安裝尺寸的準確性。焊接完成后對鋼龍骨進行氟碳噴涂。
特色材料工藝,打造漸變幕墻

彩釉大面效果

穿孔鋁板局部效果
玻璃幕墻選用彩釉玻璃,經網板印刷與高溫燒結,使材料同時兼具裝飾、遮陽(詞條“遮陽”由行業大百科提供)與安全性能。設計團隊從23%至100%設置11種彩釉透光率,通過巧妙設計彩釉圖案和顏色以實現外立面鉆石漸變效果。

BIM參數化提料及導出加工圖
彩釉效果的實現是通過40*40mm的彩釉點數量變化實現玻璃透光率變化,基于項目的折面及曲面造型,提料時應用BIM參數化方式對材料信息進行批量提取,并使用程序自動生成加工圖,大大提高了設計效率,減少了加工時間。
BIM 技術賦能,實現高效精準管理

BIM可視化應用
基于本項目復雜異型情況,設計團隊利用BIM技術實現施工現場可視化、虛擬化的協同管理。通過AR技術與工地現場的對接,實現模型指導現場施工。專業 BIM 工程師駐場,負責協調曲面異形環節深化工作,并配合現場施工。依托專業深化設計軟件平臺與 BIM 模型,精確計算節點坐標定位調整值,生成結構安裝布置圖、零構件圖及報表清單等。利用三維設計軟件模擬拼裝鋼結構分段構件,與理論模型比對,檢查加工拼裝精度,及時校正偏差,確保每一個環節都滿足高精度要求。
本項目大跨度多角度異形幕墻的深化應用及施工設計成功解決了類似項目的設計及安裝的技術難題,為業內類似形式幕墻提供了寶貴經驗,并獲得業內多項幕墻設計及施工大獎。