本篇文章內容由[中國幕墻網ALwindoor.com]編輯部整理發布:
摘要:本文對廣東“三館合一”幕墻工程進行介紹,重點針對直紋扭面陶板幕墻系統、玻璃采光頂及室內遮陽簾與拉網板系統、陶棍+玻璃雙層幕墻系統、水泥耐力板系統等進行了分析,結合“三館合一”項目特點闡述了陶板、陶棍、采光頂多面交接的構造形式及其實用性。
關鍵詞:三館合一;直紋扭面;陶板;采光頂;陶棍
廣東省“三館合一”項目(廣東美術館、廣東非物質文化遺產展示中心、廣東文學館)正在如火如荼地建設中。這個全新的地標工程外形宛如一艘停泊在珠江岸邊的輪船,建筑東西向長度為350米,建筑高度呈30米至80米疊級而上,寓意滿載古今嶺南文化藝術寶盒的巨輪即將揚帆起航。“三館合一”項目由中國工程院院士何鏡堂領銜的華南理工大學團隊設計,而為項目八萬余平幕墻“披外衣”的,則是幕墻行業老牌勁旅武漢凌云建筑裝飾工程公司。
項目共有11大幕墻系統、22個子系統。除了常規的玻璃幕墻[1],另一大特色是大量采用白色的陶板、陶棍,且均覆蓋著“冰裂紋”的釉面。陶瓷符合項目嶺南文化屬性,設計師在設計之初就考慮要放大這個文化元素。項目陶板面積超過 12000㎡,大大小小有12000塊;5000多根陶棍,總長超過 18000米。其中陶板的尺寸有數千種,每塊都對應4-6個不等的龍骨支撐安裝點位,加之項目獨特的造型和復雜的構造,僅是陶板的龍骨安裝面上就分布了超過4萬個的面材支撐固定點[2]。因此,如何準確安裝幕墻成為設計和施工的重中之重。
現場還有幕墻上不多見的進口水泥耐力板[3],其分布面積近4000㎡。水泥耐力板安裝上龍骨后,還需要4-5步工藝進行勾縫(詞條“勾縫”由行業大百科提供)、刮膩子、上漆……簡直讓幕墻玩成了內飾精裝修的活。
項目整體有超過10個不同區域的采光頂[4],采光頂的裝飾線條都分別設計了獨立的防水構造[5]。其中還有一個采光頂區域,因為設計的需求,顯現出特有的“六面共點”的造型。在美術館的部分,幕墻和采光頂合二為一,該區域的彩釉玻璃下方分布有電動遮陽簾和拉網板,其面積均超過6000㎡,建成后一定能讓人近距離感受到現代建筑和嶺南藝術疊加的氛圍。“三館合一”項目幕墻的看點還有很多,包括用大尺寸直板玻璃用現場冷彎封框成形的曲面效果、大面積高密度吊頂龍骨設計施工等,均是工程的看點和亮點!

圖1項目臨江面展示

圖2幕墻系統分類
項目幕墻形式主要包括:P01高透豎明橫隱玻璃幕墻系統、P02-1直紋扭面陶板幕墻系統、P02-2/3直紋扭面玻璃/采光頂系統、P02-4全玻幕墻系統、P03/06陶板幕墻系統(平板型、波浪型)、P04玻璃采光頂及室內遮陽簾與拉網板系統、P05陶棍+玻璃雙層幕墻系統、P07連橋-豎明橫隱玻璃幕墻/采光頂系統、P08大跨度豎明橫隱玻璃幕墻系統(空中花園)、P09豎明橫隱玻璃幕墻系統、P10-1~4室外雨蓬、屋頂格柵、吊頂蜂窩板(詞條“蜂窩板”由行業大百科提供)系統、P10-5水泥耐力板系統、P12防火(詞條“防火”由行業大百科提供)幕墻/防火采光頂系統。

圖3幕墻系統分類

圖4項目效果圖展示
一、直紋扭面陶板幕墻系統
項目北臨珠江,配套設有親水平臺和市民活動廣場,直紋扭面陶板幕墻是該項目的亮點,包含大小直紋扭面兩部分。其中大曲面東西跨度約22.8米,小曲面東西跨度約11米,采用板幅寬度500mm,厚度60mm的三種標準波浪型陶板截面沿著建筑曲面表皮排布,形成直紋扭面的外觀效果,其中每間隔3米豎縫寬度為30mm,其余豎縫寬度為10mm。

圖5項目西北視角展示

圖6項目BIM模型展示

圖7直紋扭面陶板及玻璃幕墻效果圖

圖8 60mm波浪型陶板標準板幅截面

圖9 60mm波浪型陶板樣品

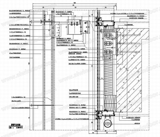
圖10 直紋扭面陶板節點

圖11 直紋扭面陶板節點效果圖

圖12 直紋扭面陶板節點爆炸圖
曲面陶板系統采用4600多塊規格為500mm×1600~2200mm的冰裂紋釉面陶板,實現直紋扭面的效果,通過BIM建模對曲面陶板系統進行分析,面板(詞條“面板”由行業大百科提供)最大翹曲值為17mm;結合LOD400的模型對轉接件、龍骨、陶板掛座等進行定位數據提取,掛點空間定位精度(詞條“精度”由行業大百科提供)要求高。通過雙曲變形幕墻陶板翹曲分析,確定了曲面幕墻直紋扭面處理方式,保證豎向分格縫位于同一平面,通過陶板背后掛件調節進出尺寸形成曲面漸變效果。


圖13直紋扭面陶板BIM模型及翹曲值分析
設計方案能實現陶板的三維調節,對結構產生的偏差也能通過轉接鋼管定尺而消除,還能利用橫龍骨連接角碼可旋轉角度的特性對翹曲值大的區域輔助調整,最后用掛座自身的齒墊設計進行微小數值范圍地調節。

圖14 橫梁連接細部模型(左)及安裝實拍(右)
施工團隊采用全站儀進行精準測量定位,高空車等設備進行輔助安裝,實現陶板順滑過渡的扭面效果,曲面陶板在陽光映襯下創造出波光粼粼的絕美視覺效果。


圖15 直紋扭面陶板安裝過程展示
大曲面內側豎向格柵造型,為陶板面內偏移的直紋扭面,采用50mm×250mm格柵型材間隔200mm布置,數量共有2111根格柵型材和2110條間隔鋁型材。

圖16 室內直紋扭面格柵節點圖

圖17 室內直紋扭面格柵模型
通過BIM建模分析格柵節點三維調節的尺寸范圍,同時借助模型提取海量數據,支撐現場放線、定位、安裝。


圖18龍骨定位示意及局部放線數據

圖19 室內直紋扭面格柵安裝
大曲面上部為寬度1.5m,高度4.4m~10.5m的豎明橫隱玻璃幕墻,玻璃面傾斜角度漸變,由東至西23°~90°漸變(玻璃面與水平面夾角),玻璃表皮為直紋曲面,縱向設有裝飾線條,每根豎型材均有不同程度的扭轉,最大玻璃尺寸為1.5m×10.5m,單塊玻璃重達1.6噸,玻璃四點不共面,最大翹曲值為97mm,施工難度極大。正式施工前,結合力學分析對玻璃面板進行冷彎值試驗驗證,達到設計要求后[6],進行后續施工。現場采用特制電動吸盤,并配玻璃專用綁帶進行保護,利用汽車吊將玻璃吊至安裝點,同時輔以兩臺高空作業車將其就位安裝,保證采光頂玻璃表皮過渡自然流暢,完美實現建筑效果。

圖20 超大玻璃翹曲值分析

圖21 超大玻璃受力分析

圖22 超大玻璃施工措施模擬效果

圖23 超大玻璃安裝措施

圖24超大玻璃安裝過程實拍
二、玻璃采光頂及室內遮陽簾與拉網板系統
項目共有10個傾斜角度,主次龍骨夾角各異的采光頂系統,傾斜角度范圍13.6°~77.1°,系統構造層次多樣,由外至內面材依次為Low-E中空夾膠彩釉玻璃、電動遮陽簾、金屬拉網板。采光頂內側主體鋼構(詞條“鋼構”由行業大百科提供)形式復雜,原方案要求對主體鋼構進行鋁板造型包飾,且鋁板造型尺寸需結合各采光頂主鋼構截面對應外偏一定數值,以滿足室內“工”字型的外觀效果;采光頂內側距室內最大跨度達35米,工序復雜,施工難度極大。


圖25 采光頂角度分析

圖26 采光頂原方案效果圖
項目團隊通過實體視覺樣板墻的對比展示,在建筑泰斗何鏡堂院士蒞臨視覺樣墻參觀考察時,主動向其介紹講解和說明,推動取消室內主體鋼構包飾鋁板造型,采用對主體鋼構表面噴涂防火涂料后,進行刮膩子和表面氟碳漆噴涂處理,以達到類似原建筑效果造型要求,但尺度更為纖細的室內觀感。此舉可極大程度減少室內高空作業量,降低施工難度。

圖27 采光頂內側主體鋼構包飾鋁板與不包飾鋁板的效果對比

圖28采光頂內側主體鋼構表面噴涂后實拍

圖29 采光頂主體鋼結構

圖30 采光頂安裝效果模擬
采光頂玻璃分格模數為1.5m×3m,主體鋼結構分格模數為3m×3m。主次鋁合金龍骨借助主體鋼構,結合BIM模型導出的定位數據進行安裝。使用汽車吊、蜘蛛車和大規格的定制玻璃吸盤安裝玻璃,室內側輔以剪刀車和蜘蛛車對電動遮陽簾和金屬拉網板進行安裝。通過彩釉玻璃、遮陽簾及拉網板的組合,實現富有層次感的絕佳室內觀感效果。

圖31 采光頂龍骨放線點位


圖32 采光頂主體鋼結構及幕墻龍骨安裝

圖33 采光頂龍骨和玻璃安裝
三、陶棍+玻璃雙層幕墻系統
本項目塔樓采用截面尺寸250×250mm的多腔體冰裂紋釉面陶棍裝飾,截面尺寸為國內目前最大,總長度達到18000米,規模形式罕見。內側玻璃幕墻采用全明框形式,可實現玻璃從室內安裝和更換[7]。

圖34 陶棍截面


圖35 節點效果圖
陶棍組件單元為裝配式,系統構造可實現三維調節,通過腔體內鋁合金插芯進行組裝限位,將4根長度約1米的陶棍組裝成整體,組裝精度需控制在1mm范圍內。

圖36 陶棍安裝節點(1)

圖37 陶棍安裝節點(2)

圖38 陶棍組件端部

圖39 陶棍組件中間部位縫隙
使用汽車吊運至對應部位順次掛裝,通過陶棍端部鋁封板與豎向插芯的插接配合,控制陶棍直線度,實現整體化一的外視效果[8]。


圖40 陶棍組件吊裝及安裝實景
本項目采用陶板、陶棍體量大,供貨周期緊張,設計前期與廠家進行全面地溝通和考察,解決廠家生產過程關于大截面陶棍和非標轉角陶板的加工工藝難題,確保按時供貨,保障現場工期。

圖41 陶棍、轉角陶板生產工藝

圖42 轉角陶板截面

圖43 轉角陶板生產現場
四、水泥耐力板系統
項目臨江面水泥耐力板幕墻東西跨度達到220米,呈現直紋曲面造型,空間定位復雜,背面龍骨安裝精度要求高,施工難度大。本系統面材采用12.5mm優質水泥耐力板,通過BIM技術提取鋼龍骨關鍵控制點并將其轉換為空間坐標,通過全站儀對控制點進行精確放樣,保證龍骨安裝準確;同時嚴把質量關,按照施工工藝標準對每道工序仔細檢查,精準控制螺釘數量及間距,做好接縫銜接、抹面找平及面漆噴涂處理,確保表皮順滑流暢,自然和諧。

圖44 水泥耐力板龍骨安裝

圖45水泥耐力板面板安裝
項目體量大,交界面眾多,處理好交接點收口也是保障項目效果的關鍵。設計團隊結合BIM模型,對交接部位逐一建模,完美還原各交接點施工效果。

圖46 交接部位效果

圖47項目交接面部位完成實拍

圖48 項目北面展示
面對外立面造型極為復雜的廣州“三館合一”項目,武漢凌云的項目團隊將幕墻工程細分成三個區十三個施工段,并采用“絕對坐標”及“網格相對距離”的方式,對幕墻安裝測量放線進行雙重控制。同時,充分利用了BIM(建筑信息模型)技術,進行項目雙曲面、斜屋面幕墻分格點位坐標定位,再根據定位坐標放線。另外,還采用三維掃描技術,掃描形成幕墻骨架點云模型,并與理論模型對比,復核曲面、斜面幕墻鋼結構龍骨安裝精度,再進行材料加工生產,確保材料尺寸互相吻合、安裝精確。

圖49 項目南面展示
高標準才能造就高品質,“三館合一”項目在建設過程中,業主、建筑師、總包、監理要求極高,針對幕墻施工有對應地管理手段和措施,現場驗收程序嚴謹;幕墻工程質量要求標準高,不僅要達到驗收合格標準,同時要確保整體工程獲得“魯班獎”,施工過程中項目還舉辦了多場省級和國家級的現場觀摩會。可以預見,今年年底前,將有一個超高標準的示范工程,宛如一艘“文化巨輪”揚帆珠江,呈現在世人面前。
參考文獻:
[1] JGJ 102-2003,《玻璃幕墻工程技術規范》,中國建筑工業出版社2004
[2] JG/T 324-2011,《建筑幕墻用陶板》,中國標準出版社2012
[3] JGJ 336-2016,《人造板材幕墻工程技術規范》, 中國建筑工業出版社2016
[4] JG/T 231-2018,《建筑玻璃采光頂技術要求》,中國標準出版社2018
[5] GB/T 34555-2017,《建筑采光頂氣密(詞條“氣密”由行業大百科提供)、水密、抗風壓性能檢測方法》,中國標準出版社2017
[6] GB/T 18250-2015,《建筑幕墻層間變形性能分級及檢測方法》,中國標準出版社2016
[7] GB/T 21086-2007,《建筑幕墻》,中國標準出版社2008
[8] GB 50429-2007,《鋁合金(詞條“合金”由行業大百科提供)結構設計規范》,中國計劃出版社2008
作者單位:武漢凌云建筑裝飾工程有限公司