本篇文章內容由[中國幕墻網ALwindoor.com]編輯部整理發布:
關鍵詞:橫琴國際金融中心、特異體型幕墻、安全優化、工藝優化、性能優化、BIM

一、珠海橫琴國際金融中心工程概況
珠海橫琴國際金融中心(IFC)坐落于珠海橫琴十字門中央商務區核心位置,是橫琴自貿區金融島標志性工程, 336米高度迄今雄踞粵港澳大灣區三極之一珠江西岸“最高天際線”。項目建筑面積22萬平方米,由一座集合了辦公和公寓的超高層塔樓以及連于一體的地面裙樓組成。
建筑體量生成的靈感則來自中國古典繪畫經典南宋陳容《九龍圖》中的造型,建筑的外形仿佛四條飛天神龍,交匯纏繞融合為一體直沖云霄。復雜多變的建筑造型仿佛神龍在滔天駭浪,變幻風云環境中縱橫穿梭的態勢。寓意該地區將匯聚珠海,澳門,香港和深圳(廣東)氣脈開天闊地、攜手進步。項目外觀全部為流暢飄逸又極富動感的自由曲線和曲面,主體和裙樓渾然一體無縫銜接(下圖1)。其中,又以裙樓部位體型變化最為復雜。裙樓商業部分跨越酒店入口處體型凌空180度旋轉,氣勢雄偉,但也造成裙樓部位幕墻系統多,交界面多。該部位外裝飾工程除玻璃幕墻、鋁板幕墻、金屬吊頂格柵和金屬屋面外還有大量的大截面裝飾線條,設計和安裝難度極高(下圖2)。


二、珠海橫琴國際金融中心裙樓幕墻系統分布
珠海橫琴國際金融中心塔樓展現高聳、挺拔、平直的硬朗風格,裙樓則以洄環、柔曲、旋轉的氣質展開。項目體型開始展現復雜變化的位置為主樓和裙樓交界處,為了變化又不脫離統一,幕墻效果設計遵循四個原則:材料延續——有玻璃逐漸過度到金屬;質感延續——由通透和輕盈逐漸過渡到厚重和閃亮;界面延續——所有直面到曲面的變化自然流暢平滑;線條延續——所有裝飾線條和縫隙從曲入直,相貫到底。基于如上原理,塔樓和裙樓在技術路線上分道揚鑣——塔樓使用了統一的工業化屬性較強的單元式幕墻,裙樓則變成了多種幕墻技術大薈萃的試驗場。(圖3)

珠海橫琴國際金融中心共15個幕墻系統, 其中13個在裙樓位置。該裙樓幕墻系統包括:首層EWS 4系統大堂為隱框玻璃幕墻(詞條“隱框玻璃幕墻”由行業大百科提供);EWS 10、12系統為隱框玻璃幕墻;EWS 11系統為開放式鋁板幕墻;三層EWS 7系統為鋼龍骨(詞條“龍骨”由行業大百科提供)豎明橫隱玻璃幕墻;四~八層室內中庭EWS 16系統為豎明橫隱玻璃幕墻;貫穿全部裙樓的EWS 3/5/8系統為鋼龍骨特異板塊規格結合裝飾線條的玻璃(含采光頂)、鋁板幕墻;貫穿全部裙樓的EWS 6/9系統為分離式金屬屋面;EWS 13系統為開放式銅板幕墻和夾板式結構幕墻;EWS 14系統為鋁百葉吊頂幕墻。另外還有下沉廣場玻璃、鋁板幕墻、各層間玻璃欄桿等、玻璃地彈門、旋轉門、鋁板門、格柵門等,各類幕墻系統總面積約3.5萬平方米(圖4)。

裙樓幕墻中自由曲面表皮的擬合是通過EWS 3/5/8/6/9系統中尺寸完全無規則的三角板材拼接實現的;裙樓幕墻中裝飾線條的扭轉和延續也是通過EWS 3/5/8/6/9系統上的百葉連接技術實現的;裙樓幕墻而從玻璃到金屬板之間龍鱗般的漸變和轉換是在EWS 5系統(采光頂)上完成的;EWS 6/9系統在大弧度扭轉曲面上使用分離式屋面系統。以上技術特點構成了珠海橫琴國際金融中心幕墻工程從概念設計到實施落地之間的重點技術瓶頸(圖5)。

圖5,平面和直線轉變為復雜扭曲面和空間扭曲線,3/5/8/6/9系統表皮單元以三角形分隔為主,單元規格完全特異化。
三、技術優化路徑
珠海橫琴國際金融中心幕墻工程2016年初開始啟動,招標時顧問公司每個系統僅提供了標準節點構造圖。承建方以建筑設計理念為指導原則,在顧問招標圖的基礎上展開了技術攻關和設計優化之路,從BIM軟件進行建筑表皮有理化分析(BIM反向驗證)、節點系統優化、收邊收口深化設計、樣板制作、工程實施到最終技術總結全過程,幾乎歷經了一個類似工業產品研發研制的全過程。通過細致的研究,兼顧幕墻的安全性、經濟型乃至安裝工藝的可行性等因素,技術團隊從EWS 3系統到EWS 15系統每一個系統都經行了優化和改進,本文重點介紹幕墻節點的系統優化部分內容。
3.1安全優化
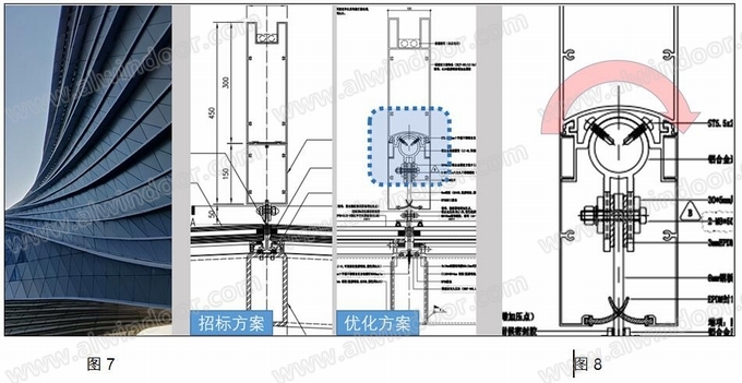
以EWS 3/5/8系統為例:該系統鋼龍骨框架式隱框幕墻系統,10 +12A+8 +1.52PVB+8 LOW-E 中空(詞條“中空”由行業大百科提供)鋼化夾膠玻璃,鋼立柱截面控制尺寸200 mm x 100mm;幕墻分格為三角形,分格尺寸1500mm到2100mm之間;幕墻最大跨度約5000mm。這三個系統貫穿裙樓樓體的自由曲面位置,既是立面幕墻也包含屋面采光頂,同時鄰近城市道路、建筑主入口和室內大廳等人流量較大的位置,有玻璃墜落傷人的安全隱患。但本項目招標圖成圖在2015年以前,對隱框幕墻相關風險問題未做充分的考慮。
優化方案:增加機械壓塊提高幕墻整體安全性能。首先在玻璃十字縫處增加圓形鋁合金壓塊,壓塊作為機械壓接方式為玻璃的固定和耐久性提供了保障。其次,利用外裝飾條的連接構造,增加鋁合金短肢角碼進一步強化了這種保障。(圖6)


3.2工藝優化
以EWS 3/5/8/6/9系統上的450裝飾線條為例:該項目從裙樓端部到主樓塔冠設置了450MM和80MM兩種尺度的裝飾線條,用來強化建筑外立面(詞條“建筑外立面”由行業大百科提供)線條的連貫性。其中高450MM線條如何沿建筑表皮完成大弧度的彎曲和扭轉、如何連接可靠并且安裝精準、如何均勻消化型材(詞條“型材”由行業大百科提供)對接位置的偏差等是本項目構造優化方面一系列重難點。因為復雜的扭曲變化,無法實現業主和建筑師提出的把型材拉彎的設想。于是技術問題的焦點就放在如何進行安裝角度調節和如何消化型材對接位置的必然偏差上。
原設計方案是通過短肢鋼板栓接150MM型材,再卡接300MM型材。這種連接方式三個問題:一是型材扭曲時的旋轉點位于短肢鋼板附近,型材對接時,最大偏差位置在型材的最外端;二是不能調整型材偏轉角度;三是型材角度偏轉依次通過鋼板到150MM型材再到300MM型材完成,鋼龍骨上的施工偏差會通過上述三個依次連接的構件逐步累積到最大,最后型材最外端的精度很難控制。
優化方案:通過BIM反向驗證、結合裝飾線條長度要素及視覺效果要求,確定型材對接位置(最大)錯位尺寸具體數值(該過程中要通過BIM軟件反復比對不同的型材長度下,型材對接狀態,找到外觀視覺效果和成本之間的平衡點)。保留300MM,把150MM型材分成左右相對的兩個蓋板。在裝飾線條中心部位增加了一對可以進行角度調節的公母料組件,兩個零件形成類似抱箍的連接裝置,直接對300MM型材進行角度調節。調節裝置以最直接的的方式對型材最外端進行偏差控制。而且由于旋轉點設在裝飾線條中部位置,與原方案相比,同樣的旋轉角度在型材斷面末端造型的尺寸偏差卻小了45%,拼接后外觀效果更加順滑美觀。同時,連接也更穩定可靠,安裝效率也有提升。

3.3 性能優化
以EWS 6/9金屬屋面系統為例:該系統使用功能層(防水層)與裝飾層(面材裝飾鋁板)相分離的分離式屋面系統概念,這個基本思路是正確的。但原設計從下往上暴露有三個適應性問題(圖9),導致該方案本質上無法實施:
首先,防水板(詞條“防水板”由行業大百科提供)立邊和面材龍骨走向適應性問題——防水板作為功能層其走向遵循沿建筑表皮與地面產生最大夾角(排水最有利)方向原則,而面板龍骨走向遵循美學原則。所以實際項目中不會出現原方案防水板立邊和面材龍骨正交90度那樣理想的工況,真實的夾角變化范圍是90度到0度之間一個任意值。
其次,三個方向面板龍骨之間的適應性問題——同上原理,面板龍骨從六個方向匯聚于一點,每兩根龍骨間角度也是一個變量,不可能用常規角碼來連接。
最后,面板和龍骨適應性問題——原方案裝飾鋁板側邊設置通常的型材與配套的型材龍骨搭接,然后用專用壓板固定,搭接位置是弧形,應該是考慮到板面需要角度變化的問題。但通常型材之間的“面”連接,需要精準的加工工藝配合才能實現。而本項目所有的三角形裝飾板面,每一塊都是一個特定規格。龍骨的現場安裝偏差,以及板面的加工難度都決定了這種高標準、高要求的雙向配合度是實現不了的。

上述三個問題,每一個都對項目的安裝造成的無法逾越的障礙,且三個問題互相關聯,逐一突破并無意義,于是技術團隊拋開原方案的基本概念,另辟蹊徑進行系統性的整體技術優化。
1、 針對防水板立邊和面材龍骨走向適應性問題:創新的使用橋式轉接組件從結構和構造兩方面進行優化。橋式組件由兩組或四組夾具結合一個鋁合金橫梁形成了一個類似“凳子”一樣的轉換平臺,通過這個平臺,之上的面板龍骨時可以不受平面內角度約束的連接和固定。這種橋式組件另一個優點在于該原方案中單夾具固定方式為2-4個夾具協同受力的“集束”效應,從而使屋面裝飾層的抗風掀性能更可靠(圖10)。
2、 針對三個方向面板龍骨之間的適應性問題:創新的使用槽式主次檁條轉接組件,這套組件由包括一主兩次3個槽式型材、一套抱箍、四套附帶轉軸的滑塊、四套插芯等幾十個部件組成。現場只要提供桿件交匯點坐標這一個定值,就可以快速的實現各個桿件的對位調節和固定工作,安裝快捷,對位精準(圖11)。
3、 針對面板和龍骨適應性問題:該線、面連接為“點”連接,并設置多維可調節的轉接角碼。降低復雜規格板材加工精度要求,同時適應面板的角度變化(圖12)。



以上分析了本項目三個比較典型的優化路徑。此外還有旨在保證金屬板平整度(EWS11系統改自攻釘固定為掛接)的連接節點優化、旨在提升濱海項目防腐性能(EWS14吊頂格柵系統鍍鋅鋼改為鋁和不銹鋼)的材質優化及大量的基于成本考慮方面的優化等等,限于篇幅,不在一一贅述。
四、關于技術優化一些總結和思考
4.1、設計先行和設計全控
特異體型幕墻工程系統種類繁多,收邊收口工作量大,又存在大量需要進行技術攻關問題點,設計研發工作投入需要很大,項目管理及決策人員要對此有充分的思想準備。橫琴國際金融中心裙樓幕墻項目前期的技術研發、方案優化設計共耗時約8個月。尤其是難度較大,但前期顧問方的方案卻不夠深入甚至在基本思路上存在問題的情況下,尤其要完善并認真細化施工圖設計。設計團隊要對每種類型的每一個系統、每一個收邊收口,都要反復斟酌并完成圖紙的準確表達。該類項目設計人員(包括BIM人員)在項目現場實施全過程都需要參與支持——即施工過程需要設計先導和設計全控。
4.2、實體樣板和檢測
對于研發屬性較強的設計工作,實體樣板是驗證設計成果可實施性的最科學的手段。橫琴國際金融中心裙樓幕墻施工樣板要求安裝在現場。項目要求觀察樣板通過后,才能根據進度安排進行材料等有采購。最終在13個系統中選定了6個體型變化最為復雜部位的系統(EWS 3/5/8/6/9/14,立面幕墻、采光頂和吊頂格柵等),組合成了4個視覺樣板。4個視覺樣板耗時73天,樣板安裝完后,各方按驗收標準進行檢查, 檢查分格尺寸是否與設計圖紙相符;連接是否安全可靠,是否符合設計要求;操作步驟是否正確;板塊整體安裝是否合格等(圖13)。

除了視覺樣板對安裝工藝和效果做驗證外,幕墻的性能檢測也是技術優化成果的重要步驟。由于橫琴國際金融中心大廈工程項目地處臺風頻現的珠海市(項目本身臨海且體型復雜),裙樓的EWS-09系統構造為內側直立鎖邊金屬板外側金屬鋁板的雙層幕墻,外側金屬鋁板通過夾具跟內側直立鎖邊肋連接,通過連接夾具和直立鎖邊之間的緊固摩擦力固定外側金屬鋁板,考慮到此連接非機械連接,為了驗證連接位置可靠性(詞條“可靠性”由行業大百科提供),項目各方組織現場靜載試驗,通過對試驗中兩次加載后破壞原因分析,得出對豎向龍骨長度>1000mm的分格通過增加支座(詞條“支座”由行業大百科提供)點分擔支座荷載的結論,也驗證了技術優化時提出的橋式連接組件的可靠性(圖14)。

4.3、關于BIM應用的一些看法和誤解
對于特、異型自由曲面表皮幕墻工程來說,因為建筑表皮往往是復雜不可數學解析的曲面,導致所涉及的相關建筑構件基本上是不易歸納的非標尺寸構件。而幾何信息作為建設工程的基礎信息,其信息量大放大意味著其他如物理信息和規則信息等這些關聯信息均指數級的放大。因此,特、異型自由曲面表皮幕墻工程必須通過以信息處理為基礎的BIM技術之路來實現。
特、異型自由曲面表皮幕墻工程BIM技術的首要工作是項目表皮有理化分析。有理化分析的目的是將虛擬的數字模型轉化為一組信息集合,這組信息集合所表達的幕墻裝飾構件產品必須滿足現有生成加工技術和項目既定的經濟條件。(圖15)

BIM參數化下料解決的是效率和出錯率的問題,不是為了“偷工減料”。BIM模型中的幾何信息與結構計算軟件的信息交互方式能提高部分結構構件的“使用效率”,從而產生成本優化。實質上,BIM正向推進了項目管理的規范化和嚴密性,從而更不易產生傳統意義上的偷工減料行為。但也有些技術人員認為,BIM導致項目材料規格和用量量“透明化”(包括人工),不利于幕墻公司在項目前期為項目加注“合理”利潤。還有人認為BIM的可視化優勢會導致某些外行領導把主觀的、非專業性的意見實時的帶入到專業工作中從而因新項目推進。我們認為這些都是技術手段推廣過程中不可避免的非技術性障礙。隨著建設市場的逐漸規范,那些因惡性競爭衍生的不良潛規則會逐步消失,并且,總體上來說BIM的模擬功能和強大的信息分析能力會更有助于我們快速準確的做出專業性決策。
有些技術管理人員喜歡盲目增加模型信息量,這也是個誤區。在BIM信息管理平臺上無關信息即為干擾。保證模型的輕量化,既,保證信息的有效性和關聯性才是信息模型的應用規則。
五、總結
IFC裙樓幕墻工程歷經14個月工期,嚴格遵照優化后的設計方案和BIM技術路線進行設計和施工管理,極大地提升了項目實施效率,實現了設計構想并保證了安裝質量。項目在施工過程中和完工以后經歷了“天鴿”和“天竺”兩個超強臺風的檢驗。該項目獲得2021年省級和國家級優秀裝飾工程獎和年度最喜愛幕墻工程獎等榮譽。
國內幕墻技術經過30多年的發展日趨成熟。隨著人們精神文化素質的不斷提升,現代建筑把建筑作為藝術屬性的意義更加進一步的確認,建筑師在建筑表面技術效果的要求上表現欲更強。未來必將出現更多的自由曲面表皮的工程案例。項目的策劃者和技術人員要明白特異自由曲面項目不僅僅每一個技術點的創新和突破,更是多個技術點之間的關聯性、技術體系的集成性和技術實踐過程的連貫性驗證。特異體型/自由曲面幕墻項目技術工作一定要遵循研發、加工、設計、安裝“四位一體”的體系化思維方式推進。技術人員要清醒地認識到對于自由曲面這種具有藝術和工業化雙重屬性的工程項目來說。不能拋開經濟條件和技術基礎去盲目追求。工程領域沒有“完美的”藝術效果,只有“高完成度的”工業產品。
作者單位:珠海市晶藝玻璃工程有限公司