本篇文章內容由[中國幕墻網ALwindoor.com]編輯部整理發布:
摘要:建筑門窗是建筑物重要的外圍護結構,屬于裝飾裝修工程范疇,在建筑物上起到“眼睛”的作用,在實現建筑物美觀、環保、節能、安全等多方面起到非常重要的作用,但最最重要的還是其自身的基本功能:防雨、防風功能,即門窗的水密性能及氣密性(詞條“氣密性”由行業大百科提供)能。
本文主要說明門窗在加工、安裝過程中的先進工藝作法(注膠(詞條“注膠”由行業大百科提供)組角、中梃軟連接結構、中梃注膠角片結構、門窗塞縫、披水板等),通過施工工藝的控制,施工材料的控制,達到整體門窗質量的綜合控制。有利于提高企業素質,參與市場競爭;促進全面質量管理工作的快速發展。
門窗防滲漏的加工工藝、施工工藝已轉化為成果,在工程項目中得到廣泛應用,并得到建設單位、檢測單位等的一致好評,對公司市場競爭起到關鍵作用。
百年大計,質量第一,質量是企業立足的核心因素,是決定企業發展的關鍵。本文在借鑒其他參考文獻的同時,創新性地列舉新的工藝節點并附圖加以說明,對門窗質量控制進行了詳細的論述。
關鍵詞:門窗工程;水密性能;氣密性能;加工工藝;注膠組角;中梃軟連接;中梃注膠角;施工工藝;門窗塞縫;披水板

緒論
門窗是建筑的重要組成部分,門窗加工、安裝質量對建筑工程的整體質量會產生很大影響,門窗工程是建筑工程中操作較為簡單、施工難度較小、工期較短的工程環節,所以在具體操作時比較容易。但正由于這些特點的存在,生產廠家往往對這一工程環節的重視程度不夠,造成門窗在加工、安裝過程中存在很多問題,不利于建筑工程質量的提高。在門窗工程中意義最重要的一項施工技術就是防滲漏(詞條“滲漏”由行業大百科提供)技術,門窗出現滲漏現象大大降低了建筑工程的質量,會對建筑門窗完整性造成一定程度破壞,同時還會給居民的正常生活帶來很大影響。門窗出現滲漏問題還會增加施工成本,門窗的后期維護及修理也需要耗費大量的人力、物力和財力,對工程施工效率和資金投入數量都會產生很大影響。本文將對門窗工程加工及施工中的滲漏防治技術進行簡要分析。這些技術的應用能夠有效提高門窗工程的質量,進而促進工程整體質量提高。
1.基本概念
建筑門窗的質量控制在工程項目建設中是一個很重要的環節,它的好壞直接影響到工程的企業的效益、信譽,產品的壽命。正確理解產品的基本概念,對于提高產品質量在源頭上起到了非常重要的現實意義。
1.1鋁合金門窗(詞條“鋁合金門窗”由行業大百科提供):采用鋁合金建筑型材制作框、扇桿件結構的門、窗的總稱。
1.2氣密性能:外門窗在正常關閉狀態時,阻止空氣滲透的能力。
1.3水密性能:外門窗正常關閉狀態時,在風雨同時作用下,阻止雨水滲漏的能力。
1.4嚴重滲漏:雨水從試件室外側持續或反復滲入外門窗試件室內側,發生噴濺或流出試件界面的現象。
2.門窗防滲漏質量控制意義
門窗工程項目質量控制是一項綜合性的指標,防滲漏是其中的一條重要指標,體現了合同中規定的或隱含的需要與需求的功能,其重要意義主要有以下幾個方面。
2.1穩定保證門窗企業項目質量
對于最基本的門窗性能要求,是每個門窗企業追求的第一目標,但真正做到“零”滲漏的項目,也是對門窗企業最好的質量證明案例,所以提高門窗防滲漏也就穩定了門窗企業的質量。
2.2有利于提高企業素質,參與市場競爭
在投標過程中,投標企業出示其質量保證手冊,證明建立了質量管理體系,具有對工程質量進行有效控制和保證能力,尤其是能夠提供對門窗防滲漏的工藝作法,達到零滲漏的項目案例,更可以提高自己的信譽,取得招標單位的信任,提高自己在工程市場的品牌力度。因此,企業應該從自身的經濟利益出發,全面有效地建立和建全質量控制體系。
3.門窗防滲漏的重點描述
門窗工程的滲漏特點是點多面廣,防治難度大,但從滲漏產生的根源來看,還是有一定的規律可循。只有掌握規律,有針對性地加強技術實施及施工管理,才能達到滲漏防治效果。具體有以下幾點:
3.1設計問題
由于設計未完全執行國家標準或設計雖執行了國家標準,但和現場情況不貼切,容易從源頭上造成滲漏。
3.2材料問題
設計要求采用的材料,但采購購買的材料達不到相應標準,造成由于材料問題而產生滲漏。
3.3加工及施工工藝問題
加工及施工工藝是保證門窗防滲漏的重中之重,采用先進實用的工藝作法,能有效的保證門窗的防滲漏功能。
3.4施工問題
施工中的門窗防滲漏也是非常重要的環節,由于涉及到多個施工隊伍共同完成防水作業,對各施工隊伍的把控就變得更加重要。
4.門窗防滲漏的保障措施
針對門窗工程中滲漏問題的通病,要有效的進行防治,做到真正的零滲漏工程,就要做到真正的保障措施,具體如下:
4.1合理的設計保證門窗的防滲漏功能
鋁合金門窗型材要采用等壓腔原理進行設計,設計合理的排水通道及排水孔、氣壓平衡孔尺寸數量,膠條形狀設計合理,以保證整個窗體能堵能疏。
4.2保證材料質量
鋁合金門窗防滲漏的材料主要涉及膠條、組角膠、發泡膠及耐候膠,采購的材料必須滿足設計圖紙的要求,并有材料質量證明文件,確保材料質量符合要求。
4.3采用先進的加工工藝
4.3.1注膠組角工藝
鋁合金門窗角部組裝采用沖鉚形式,屬于硬連接形式,很容易出現組角不嚴現象,即使在工廠組裝嚴密,但在裝卸車或運輸過程中,也有可能出現角部開裂現象,針對這個問題,采用專業的注膠組角工藝,能有效的起到防滲漏作用。附圖說明如下:
注膠組角

采用導流片+鋁角碼+導流片的組合角碼形式組角,組角前在型材斷面涂抹斷面膠。組角后在注膠孔(紅圈處)處注入雙組份組角膠,并采用注膠組角鋼片(詞條“鋼片”由行業大百科提供),能大大提高組角強度及防滲漏性能。
公司專利《一種窗框連接結構》


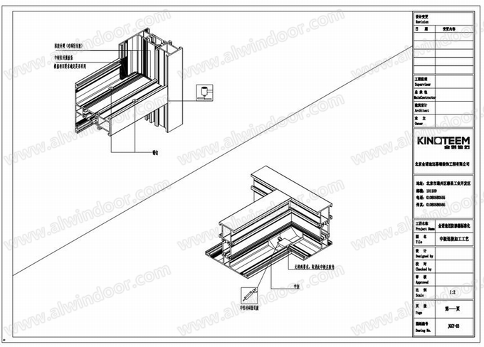
4.3.2中梃注膠角及軟連接
中梃與框的連接采用90度直角對接,也屬于硬連接形式,在框與梃的連接處也會出現滲漏現象,針對這個問題,采用專用的膠條及注膠角工藝,能有效的起到防滲漏作用。附圖說明如下:

在中梃與框連接的端面處加入膠條,
使其成為軟連接形式,既增加其防水性能
又增加它的耐腐蝕性能,且在框與中梃的
內角處開模定制專用注膠角件,以防止中
梃兩側的竄水,提高窗的整體密封性能。
公司專利《一種中梃注膠連接結構》

4.3.3合頁處發泡膠條密封
鋁合金內平開窗(詞條“平開窗”由行業大百科提供)一般采用合頁作為開啟的轉軸,但在加工過程中,由于膠條占用了合頁通道的位置,為了保證合頁能正常安裝到位,合頁下面的膠條需要割掉,這樣就會造成此位置的水密性能和氣密性能降低,最常見的表現就是合頁部位室內的墻體經常出現灰塵現象。針對此問題,要專門開發一款發泡膠條粘貼在合頁部位(紅圈標注),這種膠條柔軟,耐久性長,密封性能好,能有效提高門窗的氣密性能和水密性能。附圖如下:

4.4采用先進的施工工藝
4.4.1施工塞縫處理及打膠(詞條“打膠”由行業大百科提供)處理
門窗一 般采用后塞口形式安裝,即干法施工,但在施工過程中,由于要求趕工期,有些情況下要求進行濕法作業,即外墻保溫、涂料等還沒有施工,為了室內精裝作業,要求門窗先進行安裝封閉。由于門窗的加工尺寸都要小于門窗的洞口尺寸(一般情況每邊最小15mm),這樣窗框與洞口之間的縫隙填充就很難處理完好,可采用發泡膠填充,但發泡膠只起到阻水的作用,并不能真正做到防水,還是會存在滲漏隱患,針對此問題,我公司開發了幾種門窗安裝的工藝作法,附圖說明見下頁:

窗框安裝后,在框與墻體之間填充發泡膠,待發泡膠表干后按入框與墻體間,要求室內側按壓與框齊平,室外側按壓入框與墻體間隙10mm左右,發泡膠全干后,將中性硅硐密封膠打入框與墻體間隙,深度約10mm,形成第一道防水密封,外墻保溫收口后,在框與裝飾面層之間打中性硅硐密封膠,形成第二道防水密封。此施工工藝作法已在多個項目實施,并取得顯著效果。

窗框安裝后,在框與墻體之間填充發泡膠,待發泡膠表干后按入框與墻體間,要求室內、外側按壓與框齊平。發泡膠全干后,在室外側將防水透汽膜粘貼在框與墻體上,寬度約為100mm,與墻體粘貼寬度不小于50mm,與框粘貼寬度15mm,形成第一道防水密封。外墻保溫收口后,在框與裝飾面層之間打中性硅硐密封膠,形成第二道防水密封。此施工工藝作法多在超低能耗建筑門窗項目實施,效果顯著。
4.4.2室外下窗臺增加披水板工藝
門窗最容易滲漏的位置就是窗的下口位置,在室外側安裝披水板(窗臺板材質一般采用鋁合金板(詞條“鋁合金板”由行業大百科提供)或不銹鋼板),披水板的坡度不小于5%,披水板與窗下框和外墻之間的縫隙采用中性硅硐建筑密封膠進行防水密封。現在此工藝在國內使用的項目并不是很多,北方主要集中在被動房建筑上,若所有的項目均采用此工藝做法,對門窗的防滲漏性能會有很大的提高。
結論
門窗工程質量控制是現階段門窗企業勢在必行的趨勢,而門窗防滲漏性能的提高又是門窗企業必須保障的基本內容,對企業的生存發展來說,細節工藝做法將是企業取勝的法寶。雖然門窗并不是高精尖的產品,但真正能做好,達到地產行業對門窗各項性能更高的要求,還是需要對產品的不斷優化提升。要想在后續的工程項目中占有一席之地,那就要提高產品的質量,改善傳統的工藝作法,采用先進的加工施工工藝,不斷提高門窗的各項性能,為人民的安居生活提供完美的門窗產品。
百年大計,質量為本。企業要樹立“以質取勝”的觀念,只有在嚴格的質量控制之下,才能建設出優質的工程,才能使企業的知名度提高,增強市場競爭力,為企業帶來更多的經濟效益。
參考文獻
[1] 《建筑外門窗氣密、水密、抗風壓性能分級及檢測方法》GB/T7106-2019
[2] 《鋁合金門窗》GB/T8478-2020
[3] 《居住建筑門窗工程技術規范》DB111028-2013
[4] 《天津節能門窗技術標準》DB29-164-2013
[5] 《鋁合金門窗工程技術規范》JGJ214-2010
[6] 《萬科鋁合金門窗技術標準》
[7] 《一種窗框連接結構》專利文件 發明人 夏雙山
[8] 《一種中梃注膠連接結構》專利文件 發明人 夏雙山
[9] 《一種注膠角碼(詞條“膠角碼”由行業大百科提供)及其門窗組角結構》 發明人 夏雙山
[10] 《一種注膠角片》 發明人 夏雙山
[11] 《門窗施工組織設計方案》企業文件
作者單位:北京金諾迪邁幕墻裝飾工程有限公司