本篇文章內容由[中國幕墻網ALwindoor.com]編輯部整理發布:
即使房地產最好的年代,控成本仍然是地產開發商的共識,更別提現在這時期……吆喝著做成本控制的開發商不在少數,但真正能把成本控制好,特別是把外立面在“可控”范圍內做出精品的就更是少數。

通常我們“門窗(詞條“門窗”由行業大百科提供)幕墻人”接觸到的地產甲方,不是那種算不過來賬、拿不著地,連“成本失控”機會都沒有的開發商;就是那種把目標成本做的足夠高,怎么都不會超的開發商,所以成本控制并沒有想象的那么簡單,每一家地產都是“有故事”的。
今天,中國幕墻網ALwindoor.com的讀者,一起來聽聽央企標桿:華潤和保利他們的故事吧!

01、住宅立面的控制
一、 前 言
在房地產項目中,外墻飾面工程是設計和成本協同管理的重點,其重要性體現在以下三個方面:
① 在外立面工程中工程量最大,系統復雜;建筑外立面包含外墻涂飾、門窗幕墻系統、屋面花架、格柵等等。
、 建筑外立面材料豐富,成本波動性大,成本敏感性較高。戳我,讓成本算得準、管得全、控得住

常見的涂飾材料成本
案例1:以25層高層住宅為例,地上建面9,720m2,其中:大堂部分80m2,兩層基座850m2,其余約8,790m2;外墻面積約12,145m2,其中:大堂95m2,基座 1,050m2,其余11,000m2。我們以不同方案測算:

僅外墻涂飾的建面成本變化,從68元/m2~203元/m2,不同的材料構成其成本波動非常大。
案例2:資料來源《柏向·材料手冊 2.0》

假設以精裝高層建筑(詞條“高層建筑”由行業大百科提供)建安成本3000元/m2考慮,上述案例外墻飾面、門窗、欄桿等成本占比就高達33%左右,立面成本占比不可謂不大。
③ 直接影響建筑物的品質,最容易受到外界破壞;
二、方案階段控制要點
、 立面風格要與競品樓盤對比,符合大眾流行審美,要符合內控要求;
建筑風格和材質體現了樓盤的檔次需求。剛需樓盤建筑風格的業主敏感性較弱,業主對建筑風格的感知隨著樓盤檔次的提高越來越高。如項目定位于剛需跑量產品,建議建筑風格不高于競品樓盤;如定位于改善或再改的利潤性產品,建議在提高營銷溢價的部位下功夫,尤其是業主感知敏感的“近人尺度”位置。

競品樓盤立面對比
另外,住宅建筑的建筑風格越來越同質化,現代風格、新古典、新亞洲、新中式風格占據了市場主流產品,開發商比較容易進行建筑風格的標準化,建筑風格標準化便于規;瘡椭,降低成本。
最后,根據立面標準化進行產品的限額設計。立面限額設計的內容包含材料的選擇及占比,成本適配的標準及集采品牌。參下圖保利置業集團《住宅外立面適配標準》。


保利置業集團《住宅外立面適配標準》
商業建筑立面更為復雜,其材料選擇大多以幕墻、鋁板和石材為主,方案階段應進行立面的方案評選,簡化立面的造型,約束立面材質,降低屋面花架尺度。
建筑屋頂虛高部分不宜過于顯著,以避免造成主體結構、結構構件、立面材料等不必要浪費;應合理控制屋頂塔冠的高度,最大化減少虛高,節約成本。
② 控制體形系數、外立面率、窗地比
體形系數=建筑物外表面積㎡÷外表面積所包圍的體積 m³。
、 體形系數與建筑節能:體形系數每增加0.01,能耗增加2.5%;
、 體形系數與結構布墻率:體形系數越大,單體結構布墻率越高,含鋼量指標越高。
、 體形系數與結構產業化:體形系數越小,其建筑/結構越規整,其預制構件標準化越利于實現。
外立面率(只計算住宅部分)=地上建筑單體住宅部分的外墻(扣除門窗洞口)展開面積㎡÷地上建筑單體住宅部分的建筑面積㎡。
一般情況下,建筑的外立面率越高,其成本越高,樓盤的檔次也越高。根據標桿企業的工程經驗,外立面率控制如下:

窗地比(只計算住宅部分)=地上建筑單體住宅部分的外墻洞口門窗面積(非玻璃門窗除外,轉角飄窗按展開門窗面積計入)㎡÷地上建筑單體住宅部分的建筑面積㎡。

上圖來源:華潤置地住宅產品配置標準及建安成本限額指標(2015版 )
③ 住宅減少過度懸挑,影響采光,避免業主投訴
方案階段推敲立面線條,避免過度“立面化”,立面設計應以人為本。
案例3:

某項目業主提出由于外墻立面線條遮擋,在客廳無法看到園區景觀。銷售宣傳同實際情況之間的落差導致業主極其不滿。
案例反思
1.設計中考慮外立面效果的同時,需考慮對業主后期的生活影響;
2.銷售過程中對設計無法避免的缺陷,建議于銷售前告知客戶,避免后期矛盾。
三、施工圖階段控制精細化
、 立面材質施工界面細分
施工圖階段各項材質做法應細分,避免施工圖立面粗放,立面控制手冊要做到位。

涂飾做法細分到細節
② 成本不均衡投放、重點投放
案例4:我們以某地區中檔樓盤為例,基座兩層為石材干掛(單層建筑面積390m2),以上為多彩石涂料,其中樓盤北向為小區的主立面、南向為小區的主立面,東西立面為次要立面。

基座兩層外墻展開面積約950m2(其中南北向約670m2,東西向約280m2),原設計立面均采用石材干掛體系(干掛石材25mm,主次龍骨),單價800元/m2,總價約760,000元。
現根據立面的主次程度,將東西立面改為超薄石材一體板(石材飾面12mm,背栓固定),由于一體板能夠大幅度減輕自重,其固定方式省去了主次龍骨,其單價為450元/m2,優化后總價為662,000元,其優化成本98,000元,成本比原方案降低13%。
案例5:比如:公共區域及公建配套為非敏感區域,業主關注度較小,可以將公共區域及公建配套的鋁合金門窗改為塑鋼門窗。

② 注重線條構件設計


案例來源:《柏向·材料手冊 2.0》
案例6來源:昌建成本研究中心

某項目外立面線條造價占保溫總造價占比高達24%;
【線條優化案例】

、 門窗/幕墻的方案/施工圖設計深化,避免采用“免費設計”
門窗及幕墻的配置應從方案階段開始介入,并結合節能設計進行多方案比選,選擇材質類型和配置要求,施工圖階段進行二次精細化設計避免粗放型的“免費設計”。

02 、商業立面的控制
一、限額依然是現階段成本管控的最有效、最直接的手段
設計與成本的協同最有效的手段便是:產品配置標準化和成本限額設計;這也是成本策劃前置時代最簡單有效的手段。對于商辦類項目的外立面設計依然如此,但個人感覺外立面工程除了要考慮項目本身的成本利潤計算外,依然要考慮整個運營周期內的產品升級需求,即外立面做出來之后,不能僅考慮成本限額,還要考慮外立面的昭示性,否則做出來的外立面產品太low,對招商運營產生極大的負面效應。
以下為各業態立面限額設計要求,供讀者參考:
(1)公寓項目外立面:以窗墻體系為主,局部入口幕墻


公寓類項目的外立面限額
(2)集中商業外立面:分級分檔管控,外立面以幕墻體系為主,并控制成本較高材料的使用范圍,控制樓體泛光照明及室外大屏幕的單方與面積,控制屋面采光頂的遮陽形式和面積。


集中商業項目的外立面限額
(3)辦公外立面:分級分檔管控,低端產品用窗墻體系、中高端辦公用幕墻體系,控制成本高部品的使用范圍和檔次,關注五金配件等構造做法

辦公產品的外立面限額
(3)酒店外立面:分級分檔管控,約束窗地比、外立面系數,控制成本高部品的使用范圍和檔次等。

酒店類產品的外立面限額
二、關注節能設計,這是成本控制的核心要求
成本控制的本質便是:控制數量和單價,外立面材料的量和單價都通過設計限額進行約束,但是材料的單價影響因素從設計原理來說受建筑節能設計的影響,控制建筑節能可以從源頭解決外立面成本。
關注建筑節能,應該從以下關注以下幾個方面:
第一:節能直接判定法比節能權衡判斷更經濟,其關鍵因素是體形系數;
《山東省公共建筑節能設計標準》如下:

當體形系數不超限時,各外圍結構僅需要滿足各自的傳熱系數要求即可,這時的外圍護的經濟性最合理,此時的節能計算采用“直接判定法”;當體形系數超限時,外圍護結構的傳熱系數需要“統籌”“聯動”計算,即保溫工程和門窗工程可以“此消彼長”,原理上認為保溫厚一些、門窗即可以降低保溫性能,反之亦然,這種計算方案稱之為“權衡判斷”。
控制體形系數不超限,對于外立面成本的控制意義重大,尤其是能耗最為薄弱的玻璃部位,可以有效的降低玻璃配置,從來降低成本。
第二:窗墻比限制,可以有效約束能耗最不利不對,對降低整體能耗意義重大;
外窗的能耗約是外墻能耗的十倍以上,外窗的成本約是外墻成本的三倍到十倍左右,約束窗墻比的限制無論從哪個層面上來看,都對成本控制意義重大。
但從節能角度考慮,公建項目不同窗墻比對門窗K值及太陽能得熱系數均有不同要求,即窗墻比越低,門窗K值要求越低,其成本必然約節省。
【案例】不同窗墻比對幕墻成本的影響

幕墻典型剖面和立面
窗墻比0.5,幕墻傳熱系數K≤1.9,限值相對容易達到;幕墻相關材料需要配置斷熱型材、氬氣中空(詞條“中空”由行業大百科提供)low-e玻璃;
幕墻工程平均平米單價:1838元/㎡(框架幕墻);
窗墻比0.6,幕墻傳熱系數K≤1.8,限值比較低;幕墻相關材料需要配置高斷熱型材、氬氣中空暖邊雙膜low-e玻璃
幕墻工程平均平米單價:1847元/㎡(框架幕墻);
窗墻比0.7,幕墻傳熱系數K≤1.7,限值低,幕墻相關材料需要配置高斷熱型材、雙氬氣中空low-e玻璃,層間非透明占比小。
幕墻工程平均平米單價:1865元/㎡(框架幕墻);
三、關注線條和綠建設計,這是額外的成本投入
大量的幕墻線條是建筑設計時必須要關注的,線條的使用可以增加建筑的立體感和昭示性,但是對成本而言對影響重大,有的人認為線條對項目立面成本影響不大,實則十分錯誤的觀念,立面線條對一個十萬方的建筑體量,其成本高達百萬級以上;在不影響立面形象的情況下,控制立面線條的尺度,也是十分必要的。
此外,新的綠色建筑評價標準,對星級建筑的能耗提出來進一步降低的附加要求(如下):

綠色建筑評價標準
上述要求進一步的增加了外圍護系統的成本,那么建筑能耗控制顯得更加重要。
從一些開發商反饋的數據來看,綠建的星級影響都是百萬級別甚至千萬級別,鑒于目前綠建的星級要求來看,各地是以建筑規模、業態形式、投資主體以及建筑高度來區分的綠建級別的,所以在建筑設計時,應統籌考慮上述因素進行綠建的設計。

新綠建成本增量參考
案例來源:綠地集團

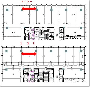
幕墻分格:在確保效果下,控制裝飾柱間距和數量,兼顧室內使用功能,減少成本;
原有設計幕墻裝飾柱體數量過多、造型過于復雜,同時造成室內視線遮擋,相對準甲辦公成本較高;優化方案裝飾柱間距擴大1.5倍,對位使用空間,造型尺寸簡化,節省造價2000多萬。
最后,中國幕墻網ALwindoor.com想說:建筑的外立面在成本管控方面是一個體系工程,切莫只關注成本控制本身,而忽略了公司制度和體系建設。