本篇文章內容由[中國幕墻網ALwindoor.com]編輯部整理發布:
近日,一份網帖和律師函圖片在網上流傳引發大量關注,可能很多業內人士都看過了。
深圳某設計院為江西九江市一小區樓盤設計的消防電梯前室寬度不足2.4m,違反《建筑設計防火規范》GB50016-2014(2018版)第73.5條2款的規定,導致消防驗收無法通過,開發商發律師函起訴設計單位,涉及損失可能高達15億。


住建部規范明確:消防電梯前室的短邊不應小于2.4m
電梯設計錯誤,設計院遭15億索賠!
律師函內容摘要:
致:**設計有限公司:
2023年3月9日消防驗收部門(詞條“門”由行業大百科提供)以專家提出項目連廊戶型的消防電梯前室短邊尺寸小于2.4m,違反《建筑設計防火規范》GB50016-2014(2018版)(以下簡稱18版規范)第73.5條2款的規定為由拒絕為****小區辦理驗收。事情發生后,**置業第一時間聯系了貴公司和施工圖審查公司予以協調解決。但事情過去至今已40天有余,仍未有任何實質進展。
項目連廊戶型的消防電梯前室短邊尺寸小于2.4m,違反《建筑設計防火規范》GB50016-2014(2018版)(以下簡稱18版規范)第73.5條2款的規定導致消防無法驗收的責任,按照相關規定,主要責任在于貴司,次要責任在于施工圖審查公司。
前述問題未解決可能帶來的后果:**置業現已銷售房屋1000余戶,銷售房款共計約15億左右,尚有600余戶還未對外出售,房款規模共計約5億左右;按照**置業與購房者簽訂的購房合同約定,房屋逾期在90天內的,逾期付款違約金在總房款的萬分之一每天;房屋逾期在90天外的,購房主可以選擇退房,并要求**置業按照購房款10%賠償違約金。值此房地產市場低迷之際,由于貴司與施工圖審查公司的過錯,**小區項目恐成為**市第一個開啟退房先河的項目,屆時損失粗略估計,恐在15億左右,影響之大,后果之嚴重,請貴司一定予以重視,并妥善予以解決。”


4月28日下午,有媒體記者致電九江市住房和城鄉建設局建設工程消防科。該科工作人員表示,情況屬實,已介入調查協調處理。 目前科室相關工作人員正在小區開現場協調會。”
住建部:消防電梯前室的短邊不應小于2.4m!
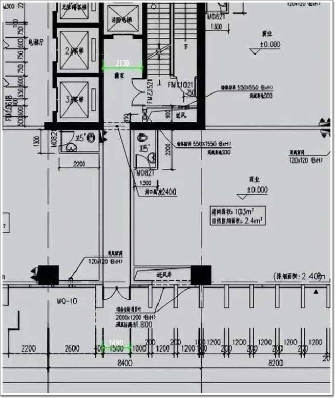
什么叫短邊尺寸?如下圖:

而這個項目的短邊尺寸卻不到2.2米,如下圖:

原因在哪里?消防電梯前室需要滿足短邊2.4M寬度,是《防火規范》2018年修訂版新增的,是從2018年10月1日開始執行的。
住建部關于消防電梯前室設計規范要求:

《建筑設計防火規范》GB50016-2014(2018年版):
7.3.5 除設置在倉庫連廊、冷庫穿堂或谷物筒倉工作塔內的消防電梯外,消防電梯應設置前室,并應符合下列規定:
1.前室宜靠外墻設置,并應在首層直通室外或經過長度不大于30m的通道通向室外;
2.前室的使用面積不應小于6.0m²,前室的短邊不應小于2.4m;與防煙樓梯間合用的前室,其使用面積尚應符合本規范第5.5.28條和第6.4.3條的規定;
3.除前室的出入口、前室內設置的正壓送風口和本規范第5.5.27條規定的戶門外,前室內不應開設其他門、窗、洞口;
4.前室或合用前室的門應采用乙級防火門,不應設置卷簾。
《建筑防火通用規范》GB55037-2022(2023年6月1日起施行):
2.2.8 除倉庫連廊、冷庫穿堂和筒倉工作塔內的消防電梯可不設置前室外,其他建筑內的消防電梯均應設置前室。消防電梯的前室應符合下列規定:
1.前室在首層應直通室外或經專用通道通向室外,該通道與相鄰區域之間應采取防火分隔措施。
2.前室的使用面積不應小于6.0m²,合用前室的使用面積應符合本規范第7.1.8條的規定;前室的短邊不應小于2.4m。
3.前室或合用前室應采用防火門(詞條“防火門”由行業大百科提供)和耐火極限(詞條“耐火極限”由行業大百科提供)不低于2.00h的防火隔墻與其他部位分隔。除兼作消防電梯的貨梯前室無法設置防火門的開口可采用防火卷簾分隔外,不應采用防火卷簾或防火玻璃墻等方式替代防火隔墻。
值得注意的是,《建筑防火通用規范》GB 55037-2022將于2023年6月1日起正式實施。同時廢止下列工程建設標準相關強制性條文:
《建筑設計防火規范》GB 50016-2014(2018年版)第3.2.2、3.2.3、3.2.4、3.2.7、3.2.9、3.2.15、3.3.1、3.3.2、3.3.4、3.3.5、3.3.6(2)、3.3.8、3.3.9、3.4.1、3.4.2、3.4.4、3.4.9、3.5.1、3.5.2、3.6.2、3.6.6、3.6.8、3.6.11、3.6.12、3.7.2、3.7.3、3.7.6、3.8.2、3.8.3、3.8.7、4.1.2、4.1.3、4.2.1、4.2.2、4.2.3、4.2.5(3、4、5、6)、4.3.1、4.3.2、4.3.3、4.3.8、4.4.1、4.4.2、4.4.5、5.1.3、5.1.3A、5.1.4、5.2.2、5.2.6、5.3.1、5.3.2、5.3.4、5.3.5、5.4.2、5.4.3、5.4.4(1、2、3、4)、5.4.4B、5.4.5、5.4.6、5.4.9(1、4、5、6)、5.4.10(1、2)、5.4.11、5.4.12、5.4.13(2、3、4、5、6)、5.4.15(1、2)、5.4.17(1、2、3、4、5)、5.5.8、5.5.12、5.5.13、5.5.15、5.5.16(1)、5.5.17、5.5.18、5.5.21(1、2、3、4)、5.5.23、5.5.24、5.5.25、5.5.26、5.5.29、5.5.30、5.5.31、6.1.1、6.1.2、6.1.5、6.1.7、6.2.2、6.2.4、6.2.5、6.2.6、6.2.7、6.2.9(1、2、3)、6.3.5、6.4.1(2、3、4、5、6)、6.4.2、6.4.3(1、3、4、5、6)、6.4.4、6.4.5、6.4.10、6.4.11、6.6.2、6.7.2、6.7.4、6.7.4A、6.7.5、6.7.6、7.1.2、7.1.3、7.1.8(1、2、3)、7.2.1、7.2.2(1、2、3)、7.2.3、7.2.4、7.3.1、7.3.2、7.3.5(2、3、4)、7.3.6、8.1.2、8.1.3、8.1.6、8.1.7(1、3、4)、8.1.8、8.2.1、8.3.1、8.3.2、8.3.3、8.3.4、8.3.5、8.3.7、8.3.8、8.3.9、8.3.10、8.4.1、8.4.3、8.5.1、8.5.2、8.5.3、8.5.4、9.1.2、9.1.3、9.1.4、9.2.2、9.2.3、9.3.2、9.3.5、9.3.8、9.3.9、9.3.11、9.3.16、10.1.1、10.1.2、10.1.5、10.1.6、10.1.8、10.1.10(1、2)、10.2.1、10.2.4、10.3.1、10.3.2、10.3.3、11.0.3、11.0.4、11.0.7(2、3、4)、11.0.9、11.0.10、12.1.3、12.1.4、12.3.1、12.5.1、12.5.4條(款)。
住建部37本全文強制性工程建設規范匯總
違反強制性規范的后果很嚴重,這件事情也重重敲響一記警鐘。
截至目前,住建部已經發布37本全文強制性工程建設規范(GB55001~55037),其中1本為征求意見稿,以下為37本規范匯總!