本篇文章內容由[中國幕墻網ALwindoor.com]編輯部整理發布:
摘要:建筑工程設計中應用BIM技術輔助建筑設計的應用越來越廣泛,雖發展時間短,發展速度卻令人嘆為觀止。目前,在建或已建成的形態各異的建筑中,或多或少都有應用BIM軟件輔助建筑設計。在各種常用的BIM軟件當中,Rhinoceros 軟件和Grasshopper插件組成的設計平臺是目前使用最為廣泛、最為流行的一套BIM軟件設計平臺,這主要得益于Rhinoceros 軟件強大的建模能力和Grasshopper插件獨特的可視化編程方式。
本文以江蘇園博園未來花園云池舞臺項目的石籠幕墻、銹蝕鋼板幕墻、水波紋板幕墻、UHPC墻板(詞條“墻板”由行業大百科提供)等工程實例,闡述石籠幕墻、銹蝕鋼板幕墻、水波紋板幕、墻UHPC墻板的設計經歷,以及Rhinoceros 軟件結合Grasshopper插件,在幕墻工程中的實際用。
關鍵詞:石籠幕墻。銹蝕鋼板幕墻。水波紋板幕墻。UHPC墻板。BIM技術。精準下料。精準施工。保質。保量。保時。
1 引言
中國幕墻自1984年北京長城飯店首個單元式玻璃幕墻建造到現在為止,我國的建筑幕墻經過了近四十年的發展,特別是近二十年建筑幕墻在各大工程項目上的廣泛應用,使得各項技術都逐步成熟,相關各類幕墻的標準、規范也都紛紛出臺。對現代幕墻從設計、加工制作到施工技術質量都有了相應的要求和規范,使得設計單位和幕墻公司在進行新項目的設計、施工時有章可循。在一定程度上保障了建筑幕墻的安全性、可靠性,也推動了建筑幕墻的發展。然而,由于時代的發展,各種形態各異的建筑造型和建筑風格,無疑增加了建筑幕墻設計的難度和精度。各幕墻設計單位和幕墻企業的技術能力上的差異,使得在對各類幕墻在設計和施工不可避免的會在技術層面上出現認識上的差異,特別是對于各類復雜的建筑造型,采用BIM技術輔助幕墻設計、生產的技術上,還存在不少認識上的差異和經驗不足的情況,需要強調技術的重點,以確保建筑工程項目的安全使用。
本文以工程項目為例(如下圖),結合工程特點、形式,闡述石籠幕墻、銹蝕鋼板幕墻、水波紋板幕墻設計思路和設計過程,同時對石籠幕墻、銹蝕鋼板幕墻、水波紋板幕墻的抗風、抗震、溫度變形等各項物理性能的實現和安全保障作深入介紹。

2.工程概況:
江蘇園博園孔山礦片區(未來花園)工程位于江蘇省南京市江寧孔山礦廢棄采石坑礦區域,基地北側山坡下為園博園二號入口,南側為現狀崖壁,西側山坡下為空中花園(13 個城市展園)。未來花園包括崖壁劇院及看臺、觀景平臺、云池舞臺。崖壁劇院及看臺地上三層,總座位數2418座,主要功能包括:兩組室外標準看臺(共650座)、貴賓包廂(71座)、三層室外臨時看臺(107座)、室外景觀看臺(約1590座)、觀眾休閑區、配套服務商業、輕餐飲、設備機房等相關設施。觀景平臺主要以觀景休憩和交通功能引導功能為主,云池舞臺主要服務于演出及秀場。

本文主要以云池舞臺為工程案例,系統講解云池舞臺子項中建筑幕墻設計及施工過程中采用的一些技術措施。

云池舞臺外形宛如空著飄逸的“祥云”,橫躺著的 “金魚”祥瑞。金魚乃祥龍化身的前身,故“金魚”肚底為“水波蕩漾”的龍鱗狀水波紋不銹鋼板吊頂。“金魚”橫臥上部為三個LED(詞條“LED”由行業大百科提供)舞臺,不銹鋼鑲邊,立面為層次分明的石籠幕墻和銹蝕鋼板造型曲面。云池舞臺作為未來花園中的子項,是未來花園的的點睛之作。
3.云池舞臺子項幕墻系統設計介紹
云池舞臺子項中的建筑幕墻主要包括水波紋不銹鋼金屬板幕墻、石籠墻幕墻、UHPC墻板、銹蝕鋼板幕墻、不銹鋼金屬板幕墻以及包括部分金屬鋁板、鋁合金格柵百葉、石材幕墻等,是未來花園所有子項中幕墻精品之作。水波紋不銹鋼金屬板幕墻、石籠墻幕墻、UHPC墻板作為云池舞臺子項的主要建筑幕墻,比重約占本子項幕墻總體的90%,約7500㎡。
3.1、水波紋不銹鋼板幕墻
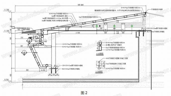
水波紋不銹鋼金屬板幕墻為云池舞臺吊頂幕墻,整個吊頂面為一扭曲的三維空間翹曲向上造型體,主體結構為鋼結構,施工完成后局部吊頂如下圖:

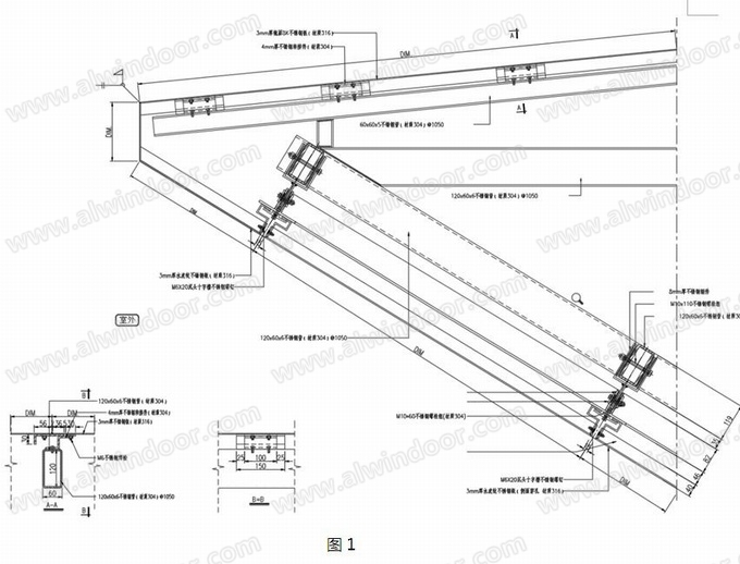
云池舞臺頂面為三個LED舞臺,舞臺周邊為碧波蕩漾的水池,南京地區雨水多,下雨天或池水外溢時,部分雨水順著舞臺檐口流向頂部吊頂,為此,吊頂面板采用3mm水波紋不銹鋼板,龍骨為120x80x6不銹鋼龍骨。所有面板為三角錐彎曲板,順著吊頂造型扭曲排列,形成“龍鱗”效果。三錐板之間開縫處理,翹曲側面穿孔,夜間可通過側面孔散發燈光效果,夜間效果更為壯觀。

3.2、石籠幕墻
石籠幕墻為云池舞臺子項的另一重點幕墻,其特色是與周圍天然礦坑石壁融為一體,渾然天成,獨顯建筑師的匠心精神和設計智慧。石籠幕墻面材選材原則為就地取材。

石籠幕墻主要由不銹鋼圓鋼筋編制的不銹鋼石籠,裝載礦壁碎石組裝成石籠幕墻面板材料。主要受力體系由不銹鋼鋼結構和UHPC墻板結構組成。不銹鋼石籠加工示意圖如下:

石籠幕墻結構受力體系為不銹鋼鋼架組成的鋼結構,與主體結構連接形成的受力結構系統,如下圖:

石籠幕墻承托體系主要由UHPC(超高性能混泥土墻板)板組成的墻板結構系統,如下圖:

石籠幕墻安裝示意下圖:

3.3、不銹鋼金屬板幕墻
不銹鋼金屬板幕墻可看作為云池舞臺子項外衣鑲嵌的邊條,主要分布于舞池檐口和舞臺檐口。如下圖鳥瞰示意。

不銹鋼金屬板幕墻面板采用3mm厚8K鏡面不銹鋼板,板塊之間采用無縫密拼對接處理。考慮舞池因常年蓄水,各檐口幕墻和水常年接觸,所有檐口不銹鋼金屬板幕墻受力龍骨采用不銹鋼龍骨,主受力龍骨為120x60x5不銹鋼鋼管。舞池檐口基本做法如下圖所示:

舞臺檐口基本做法如下圖所示:

4. 水波紋不銹鋼吊頂幕墻BIM設計
云池舞臺作為一個空間構造復制的建筑幕墻設計,必須完善建筑幕墻的施工圖紙。但通過常規的二維平板(詞條“平板”由行業大百科提供)設計圖紙,很難在二維的平面上看出該造型的幾何模型,也無法準確的定位、放線、施工。因此,必須進行三維空間建模設計,確定準確的建筑最終模型。我們采用Rhinoceros軟件對建筑師的設計意圖及相關圖紙進行設計完善和校對。
4.1、基礎控制線與控制面處理與分析優化
根據建筑提供的控制線條件進行處理,首先檢查曲線的控制點分布是否均勻,并對其進行在一定的誤差范圍內的重建優化設計工作;

利用曲率梳工具分析控制線曲率,并對其進行調整優化設計后,如下圖所示;

對生成曲面的路徑控制線及截面控制線分析及優化,截面控制線盡量成為最簡曲線或優化為固定半徑的弧線,方便后期龍骨的有理化工作;

控制面同樣保持曲面結構線的均勻原則,生成的曲面簡潔光順,方便后期面板的有理化工作;

對控制面進行曲率分析能夠大概知道曲面的平坦彎扭情況,細節的話可以對曲面進行采樣點的曲率半徑分析工作;

4.2、吊頂曲面分格線制作及板塊優化
根據建筑師提供的分格方案及板塊控制尺寸大小制作分格控制線;


根據建筑師提供的板塊造型需求制作獨立的吊頂板塊,最終板塊為兩個三角形平板組成的折板,形成龍鱗效果;

4.3、碰撞 檢查
建筑幕墻外表皮完成之后,下一步工作是檢測建筑幕墻表皮與建筑結構、建筑設備、建筑通風管道等之間會不會碰撞。
(1)重新抽取各層(建筑結構、建筑設備、建筑通風管道等)中的輪廓線,具體的位置對應每層的建筑標高。由于各專業設計存在誤差、偏差,使得建筑幕墻超容易超出建筑紅線,因此須重新根據紅線來定義建筑結構、建筑設備、建筑通風管道等的輪廓線。重新提取的建筑結構、建筑設備、建筑通風管道等結構線就是實際施工的結構線。
(2)抽取完各種結構線之后,對幕墻的表皮進行劃分。根據幕墻節點的尺寸進行面板板塊的定位,并根據定位線,提取到Grasshopper插件中。
(3)通過表皮的分割,得到了幕墻表皮板塊。
(4)相關工作完成后,運行軟件及插件,檢查建筑幕墻桿件(詞條“桿件”由行業大百科提供)、幕墻表皮是否和建筑結構、建筑設備、建筑通風管道等碰撞,干涉。若有重新調整建筑幕墻表皮、桿件。
4.4、施工下單、成品展現
幕墻施工下料是一個風險性極大的工作。涉及安全、進度、質量等各種問題,所有不慎,經濟損失不可估量,為了精準施工下料,保質、保量、保時的完成工程項目,必須對建筑幕墻的每個桿件、板塊等進行精準編號。所有工作都在模型中完成。
(1)為了施工、安裝方便,必須對板塊進行編號,首先要對三維空間的板塊進行“躺平”工作,如圖11。
(2)由于部分板塊相同,為了減少工作量,可以把相同的板塊進行分類。在分類之前,首先給板塊進行編號。圖10
(3)最終,我們得到了不同的板塊。提取每個板塊的編號、尺寸、對角線和角度等信息,生成數據表格。圖12。
(4)各種邏輯關系通過Grasshopper插件表達清楚之后,后續工作都可通過系統自動生成,批量下單,可大大節省設計師的時間。

利用參數化工具對板塊進行批量展平及尺寸標注,供加工使用。


5、結語
回顧整個建筑幕墻設計工作,實際上就是平、立、剖、節點圖的導入工作。在確定完建筑輪廓線之后,其它的工作都可以交由Grasshop-per插件來完成,通過編寫各種邏輯關系,實現參數化建模,極大地提高了幕墻設計和施工下單的效率,特別是空間造型比較復雜的建筑幕墻。
參考文獻
[[1]] 《玻璃幕墻工程技術規范》 JGJ102-2003
[2] 《建筑門窗幕墻用鋼化玻璃》 JG/T455-2015
[3] 《建筑玻璃應用技術規程》 JGJ 113-2015
[4] 《建筑幕墻》 GB/T 21086-2007
[5] 《鋁合金結構設計規范》 GB 50429-2007
[6] 《建筑結構荷載規范》 GB 50009-2012
[7] 《建筑物防雷設計規范》 GB 50057-2010
[8] 《建筑設計防火規范》 GB 50016—2014
[9]《公共建筑節能設計標準》 GB 50189-2015
[10]《鋼結構設計規范(詞條“鋼結構設計規范”由行業大百科提供)》 GB 50017-2003
作者單位:中國建筑設計研究院有限公司建筑帷幕設計咨詢中心