本篇文章內容由[中國幕墻網ALwindoor.com]編輯部整理發布:
摘要:不同于傳統構件式幕墻和單元式幕墻的設計方法,裝配式幕墻具有更加靈活和更加廣泛的應用范圍,尤其是更加經濟的價格優勢,在幕墻行業具有廣泛的推廣應用前景。本文以某科技園區項目多棟樓的系列幕墻設計為例,通過深化設計與原招標圖對比,系統提出裝配式幕墻的各項細節設計方法,為廣大設計師及業主方提供裝配式幕墻的系統解決方案,促進裝配式幕墻的推廣應用。
關鍵詞:構件式幕墻;單元式幕墻;裝配式幕墻;

1、引言
自2020年1月份新冠疫情爆發以來現已持續兩年時間,尤其在2020年爆發之后,疫情持續加重并蔓延至全球性災難,全國的工程建設項目也遭遇嚴冬。持續至2021年后全國建材行業則進入到價格飛漲時期,所有鋼材(詞條“鋼材”由行業大百科提供)鋁材金屬材料產業、玻璃產業、硅酮膠產業等均全面大幅漲價;而建設項目所必需的勞動力市場也遭受嚴重影響,勞動力流動收到嚴重限制,施工現場嚴重缺乏勞動力。再加上國家對于房地產管控力度的持續加強,房地產行業也遇到瓶頸,低價銷售降價銷售已成為房地產企業自救的主要途徑,而與房地產企業合作最多的幕墻企業,更是在夾縫中求生存,已簽訂的合同需要履約完成,而材料成本及人力成本持續上漲,現場作業勞動力人員數量又受到限制,在面臨巨大虧損的風險下,如何控制成本并按時履約則成為各幕墻企業的重點公關課題。而裝配式幕墻,則能夠按最接近構件式幕墻的成本實施單元式幕墻的設計和施工,同時可大幅度降低構件式幕墻對現場勞動力數量的需要,大大降低疫情風險。因此系統化地推廣裝配式幕墻的設計方法和施工方法,不僅是適應國家對建筑業提高裝配化率的要求,也是幕墻企業在技術發展和成本控制雙控條件下的必然選擇。而現有的有關幕墻的規范、標準、圖集等,基本都是只涉及到構件式幕墻和單元式幕墻,甚至各幕墻企業的內部圖集及設計施工規程基本上也沒有針對裝配式幕墻進行系統化的規劃和總結,本文則以具體項目的施工設計為例,詳細介紹裝配式幕墻的系統化設計,為裝配式幕墻的系統推廣奠定基礎;
2、裝配式幕墻的概念及與其他幕墻系統的區別
幕墻系統按照結構支撐系統的構造設計分類,現在最通用的系統類型包括構件式幕墻系統、單元式幕墻系統、半單元幕墻、小單元是幕墻系統等幾大類。
從《建筑幕墻(詞條“建筑幕墻”由行業大百科提供)術語》(GB/T34327-2017)的定義來看,“構件式幕墻stick curtain wall”是指在現場依次安裝立柱、橫梁和面板(詞條“面板”由行業大百科提供)的框支承建筑幕墻;“單元式幕墻unitized curtain wall”是指由面板與支承框架在工廠制成的不小于一個樓層高度的幕墻結構基本單位,直接安裝在主體結構上組合而成的框支承建筑幕墻;“半單元幕墻semi-unitized curtain wall”是指由小于一個樓層高度的不同幕墻單體直接安裝組合、或與先行安裝在主體結構上的立柱組合而成的建筑幕墻。根據JGT216-2007《小單元建筑幕墻》中的定義,“小單元幕墻”是指小單元板塊與構件式或單元式框架采用掛鉤和插接連接的、可方便安裝和拆換的幕墻。
如下圖1~圖3所示為構件式幕墻施工過程中的形象進度示意圖,圖1顯示為主體結構驗收移交給幕墻公司開始施工,先安裝裙樓的散裝式構件(立柱、橫梁等桿件),圖2顯示為主樓各立面從下往上逐層安裝幕墻構件(立柱橫梁等桿件),圖3顯示幕墻框架驗收后,開始安裝玻璃面板。


如圖4~圖6所示,隨著現場施工進度進一步推進,立面玻璃逐漸展開安裝,直至立面安裝封閉;從以上安裝施工流程中可以看出,構件式幕墻在工廠完成的工序很少,大部分工序都是在現場作業,因此現場的材料堆放比較雜,材料損耗也比較大,現場作業工人多,施工作業安全隱患也比較多,加大了現場管理的難度,同時現場工人都是在空中吊籃上進行作業,幕墻構件之間的裝配精度也收到一定的影響,同時現場的施工形象也收到一定的影響。
而如下圖7~圖11所示,則為單元式幕墻的施工過程示意圖,圖7顯示結構移交給幕墻公司后,幕墻公司只需安排少量人員進場先安裝單元板塊的支座,同時大批量單元板塊在工廠進行組裝。圖8顯示單元板塊進場從起底樓層開始吊裝,正常工況下,水平方向按逆時針方向依次吊裝。圖9顯示單元板塊垂直方向從低層向高層逐層依次安裝。圖10及圖11則顯示單元板塊逐漸向高層安裝,直至施工到頂層,完整立面的整體封閉。單元式幕墻的優勢也非常明顯,大部分工序在工廠內完成,現場作業工序很少,現場的作業人員數量大大減少,吊裝均為機械化作業,且現場吊裝時操作人員僅在室內吊裝作業,施工過程中的立面整體形象也很完整。


以上各種類型的幕墻均已在市場上使用對年,并已形成比較成熟的經驗,但這樣也限制了大多數設計人員的思路,形成了固定思維,一看到建筑平面立面圖后就形成了基本的幕墻設計思路,再加上很多業主在招標時就已限定了“幕墻投標限價”,甚至在很多幕墻招標文件中就已經直接確定了幕墻體系(即在構件式幕墻、單元式幕墻、半單元幕墻、小單元幕墻中選取一種)。尤其現在幕墻行業中又細分出一種類型的幕墻公司-幕墻顧問,這種顧問公司的業務以為業主提供前期的“幕墻技術咨詢”為主,實際就是以給業主出“幕墻招標圖”為主,這種幕墻圖專門用于幕墻工程招投標,在很大程度上更加限制了幕墻公司的設計思路,相當于限制了技術創新,有些幕墻公司本來可用提出更多具有創新思維的設計方案,但限于前期招標圖及招標條款的諸多技術條款和商務條款的限制,這些創新的技術和工藝并不被認可,在一定程度上只能局限于顧問公司的技術水平了。
按照招標條件及顧問公司的招標圖及招標技術條件,為了避免招標過程中發生爭議,這些招標圖及招標技術條件一般都相對比較簡單、比較保守,并盡量回避可能發生爭議的新技術新工藝,所以招標圖及招標技術條件基本都限于以傳統的“構件式幕墻”或“單元式幕墻”為主進行招標。而按照常規的市場規律,構件式幕墻主要用于不太規整的立面、裙樓、或造價較低的項目上;而單元式幕墻則一般用于比較規整的立面、主樓幕墻,或造價較高的項目中;再就是如果建筑師對幕墻的桿件尺寸有一定要求,如立柱橫梁等桿件的寬度尺寸要求比較纖細,如強制要求立柱橫梁的型材截面寬度不超過80mm,則正常設計就無法選用單元式幕墻而只能采用構件式幕墻了。如果建筑師對幕墻立柱橫梁的型材截面寬度無要求,或要求不小于90mm,則各種幕墻結構體系都可以選擇。如果業主對幕墻單方造價有一定限制,則構件式幕墻與單元式幕墻之間就基本上不能互相代替了。
市場上的實際情況則是千變萬化的,行業內以上的傳統分類方式只是將千變萬化的各種工程項目強行限制分配在這些分類類型之中,實際對各項目并不完全適配,也就是并不能做到“量身定制”。因此通過多項目的“量身定制”式的設計,并打破以上分類類型的條框限制、打破商務條款的限制,且不同于以上構件式幕墻、單元式幕墻、半單元幕墻、小單元幕墻等這些類型,而創新出一種新型幕墻形式,因此“裝配式幕墻”就應運而生,這里所提出來的“裝配式幕墻”,其使用條件和適用范圍均不受以上“構件式幕墻”和“單元式幕墻”的限制,其加工方式、運輸方式、現場施工方式,則與單元式幕墻完全相同,尤其是其造價能夠與構件式幕墻的低成本相適應,而不受招標商務條款的限制,因此這種裝配式幕墻具有更廣泛的適用范圍,具備更廣闊的推廣前景。“裝配式幕墻”與“單元式幕墻”的工藝非常相似但又不完全相同,不再受到傳統認識的單元式幕墻通用特點的限制,這些單元式幕墻的特點包括利用“雨屏原理”進行等壓防水設計、利用“同層排水(詞條“排水”由行業大百科提供)”或“隔層排水”工藝排除滲漏水、空縫式安裝單元板塊等。而單元式幕墻的這些特點,也客觀導致了單元式幕墻的成本造價居高不下,商務條款方面受到較多限制。而“裝配式幕墻”重點在于突出“整體裝配”的概念,并結合和利用構件式幕墻的防水設計原理,而并不強調或要求“等壓設計防水”的特點,這樣既能夠按照單元式幕墻的工藝特點進行整體預制、整體吊裝,又能夠把成本造價降低到構件式幕墻同檔次的低價格水平,這才是裝配式幕墻值得推廣的關鍵所在。

如上圖12~圖14所示為裝配式幕墻的施工過程示意圖,立面為石材柱與玻璃相間隔的造型效果,為了配合板塊整體吊裝,玻璃按整體單元預制、整體吊裝,而石材柱框架(含防水板、保溫層等)則單獨按單元體整體預制整體吊裝,石材柱板塊采用鋼框架,玻璃板(詞條“玻璃板”由行業大百科提供)塊采用鋁框架,因此石材柱板塊單元與玻璃單元之間,并不符合單元式幕墻的設計和施工條件,但仍可以采用各自獨立的“裝配單元”各自獨立設計、現場獨立吊裝,現場外立面的施工吊裝流程與單元式幕墻的施工流程非常接近。而在立面上各裝配單元安裝完成后,再從室外二次安裝石材柱造型的石材面板,并同時完成室外立面各板塊之間的注膠密封,最后經淋水試驗檢查驗證,確保整體外立面的密封防水。
從以上的設計施工流程可以看出,“裝配式幕墻”可以從更寬更廣的范圍進行定義,只要能滿足支撐桿(詞條“支撐桿”由行業大百科提供)件結構安全設計要求,滿足建筑幕墻的材料標準要求,滿足建筑幕墻的構造要求和功能要求(抗風壓性能、水密性能、氣密性能、保溫性能、隔聲(詞條“隔聲”由行業大百科提供)性能、變形性能、抗震性能、防火性能、防雷性能、耐久性能等),全部(或大部分)幕墻構件、全部(或大部分)面板在工廠整體預制、現場整體吊裝的建筑幕墻,都可以統稱為“裝配式幕墻”。因此裝配式幕墻的裝配單元,不再限制寬度分格(一跨或多跨),高度也不再限制為一層以上或一層以內甚至多層以上,只要能夠滿足制造條件、滿足運輸條件、滿足現場吊裝條件,均可按“裝配式幕墻”進行設計和施工。
本文通過某科技園區項目的多棟樓盤(以下簡稱為本項目)不同復雜體型的幕墻設計為例,通過對構件式幕墻、單元式幕墻與裝配式幕墻等各種不同的幕墻系統結構的選型對比分析,系統介紹和探討裝配式幕墻設計方案的各種細節設計方法。
3、裝配式幕墻的設計基礎-裝配單元劃分
與構件式幕墻的最大區別在于裝配式幕墻需要整體預制、整體吊裝,因此“裝配單元”就成為“裝配式幕墻”設計的最基礎工作,即首先須選擇和劃分“裝配單元”。“裝配單元”的選擇方法與單元式幕墻相似,但并不完全相同。因為“裝配式幕墻”并不一定要求全部構件均整體預制、整體吊裝,如果遇到有些高度分格比較特殊,無法實現在層間斷開單元板塊的情況下,就無法實現單元式幕墻,而裝配式幕墻則可以實現這種要求,即裝配式幕墻可以與局部散裝的構件式幕墻同時配合使用,或者說裝配式幕墻可以先進行整體吊裝,同時再利用散裝構件對裝配式幕墻的接口部位進行補充完善,而單元式幕墻則不能在單元板塊之間頻繁使用散裝構件進行補充施工,只能成片安裝單元板塊,僅單元式幕墻的邊角部位采用構件式幕墻完成收邊收口。這也是裝配式幕墻比單元式幕墻的應用范圍更廣的原因。
如圖15~圖18立面圖所示,本項目外立面造型復雜,立面面板主要為空縫陶土板(詞條“陶土板”由行業大百科提供)柱、陶土板梁及間斷式玻璃幕墻,且玻璃幕墻的外立面有很復雜的鋁合金裝飾線。遇到這種立面效果,通常設計師就不會再考慮選用單元式幕墻了,因此幕墻顧問公司所提供的招標圖全部都為“構件式幕墻”的設計圖紙;


圖16、圖17所示,園區各棟樓都是以陶土板包柱包梁、點式幕墻窗、局部玻璃幕墻組合而成的立面,圖18所示局部玻璃立面室外全部設置有大裝飾線,且鋁材室內外型材截面寬度均為80mm。圖19所示為局部立面陶土板包柱包梁,因此按正常設計思路,本園區的各樓都無法采用單元式幕墻。
原招標圖陶土板典型節點圖如下圖20~圖21所示。

圖20及圖21所示為陶土板幕墻安裝的典型節點圖圖,因涉及到凸出玻璃幕墻面500的包梁和包柱,故最通用的設計和施工方法就是按構件式現場依次安裝支座、支臂鋼構件、鋼立柱、鋼橫梁、鋁立柱、鋁橫梁、保溫面背板、保溫層、防水板背板、點窗的玻璃面板、注膠密封、陶土板面板等,直至完成立面封閉;
以上傳統構件式陶土板幕墻和點窗玻璃幕墻的設計施工方法,全部工序都是現場散裝施工的,工序繁雜,耗用勞動力多,現場焊接作業量大,安全隱患大。而按照裝配式的設計施工方法,則仍然可以將大部分工序改為在工廠預制加工、現場整體吊裝。僅將空縫陶土板面板在現場鋼框架單元吊裝完成后再二次安裝即可。因此涉及到陶土板包柱和陶土板包梁的立面,其裝配單元劃分如下:
如圖22所示,可將立面圖按圖中云線所示劃分為三種裝配單元,即“點窗裝配單元”、“陶土板柱裝配單元”、“陶土板梁裝配單元”,這三種“裝配單元”可組成完整的立面,而很顯然這三種裝配單元與傳統意義上單元式幕墻的“單元板塊”的劃分方法是完全不同的。基于構件式幕墻的種種缺陷及單元式幕墻的諸多限制,現在可采用“裝配式幕墻”的思路對本項目此類立面進行重新設計,不再局限于按原構件式幕墻的思路進行設計和安裝了。
以上為陶土板幕墻與玻璃幕墻的混合立面按照裝配式幕墻設計時的裝配單元的劃分方法,基本上類似此類石材幕墻與玻璃幕墻混合的立面都可以按此方法劃分

裝配單元劃分清楚后,繼續將各裝配單元分別進行細節設計,各裝配單元均在工廠進行預制組裝成整體單元,運輸到現場后即可整體吊裝,按與單元式幕墻相似的施工流程進行施工。需要說明的是為了保證空縫陶土板面板的最終安裝不變形,可以將陶土板面板單列出來在現場二次安裝,而將除陶土板面板之外的其他所有構件均預制組裝成裝配單元進行整體吊裝。
除以上混合幕墻外,本項目的局部玻璃幕墻也比較特殊,型材截面寬度要求為80mm不允許加大,玻璃的外表面全部均設置有凸出玻璃面450的橫向及豎向鋁合金裝飾翼。玻璃分格寬度分別為600與1200間隔布置。總結出玻璃的分格劃分規律后,最終按虛線所示范圍劃分玻璃幕墻的裝配單元,如圖23所示。

4、裝配式幕墻主受力桿件-立柱設計
原招標圖典型的玻璃幕墻構件式節點圖如下圖24所示,按裝配式設計時節點圖如下圖25所示:

上圖24所示為傳統常規的構件式幕墻設計節點,方管鋁立柱明框方式安裝玻璃,立柱上安裝鋁支臂用于固定80X450的豎向懸挑鋁合金裝飾翼,所有桿件全部須在現場逐一依次安裝。上圖25所示為改為裝配式設計的節點,兩個分格合計1800寬度為裝配單元,單元左右立柱為組合立柱,單元中立柱則仍為方管整體立柱。
從右圖26與圖27的立柱的區別可以看出,裝配式立柱設計要求如下:
(1)裝配式立柱須類似單元式幕墻立柱分為可以對插的公料立柱和母料立柱;立柱強度(詞條“強度”由行業大百科提供)及穩定性計算須滿足結構計算要求;
(2)裝配式幕墻立柱豎向層間采用鋁芯套連接固定,公料立柱和母料立柱各自設置立柱芯套;
裝配式幕墻立柱采用開口型材,除其強度按折減計算后須滿足規范及設計要求外,同時須按立柱側向剛度要求增大前后雙肢的側向寬度尺寸;

(3)裝配式幕墻立柱的型材總截面寬度仍須按80mm不變,為保證開口型材的側向剛度,公母料的型材截面寬度各自仍達到60~65mm,因此公母料的搭接(詞條“搭接”由行業大百科提供)深度較大,搭接尺寸已達到35mm,遠遠大于一般單元式幕墻公母料的搭接深度;
(4)從原構件式幕墻改為裝配式幕墻設計后,節點所有室內外的外觀尺寸均不能改變。
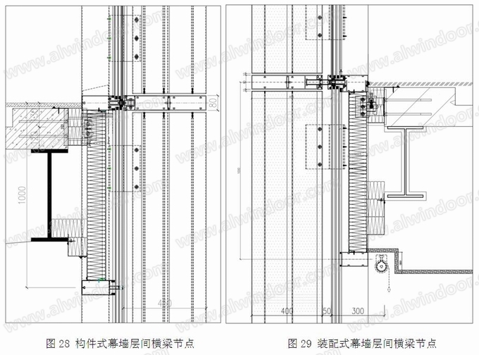
5、裝配式幕墻的裝配單元橫梁及層間伸縮縫設計
按上所述,裝配式幕墻劃分“裝配單元”后,后面的細節設計就是要處理好各個裝配單元之間的接口設計.裝配單元的立柱按照以上公母料分開為兩個獨立的立柱,裝配單元的橫梁也需要按照類似單元式幕墻的設計劃分為公母料的上下單元橫梁,如下圖28、圖29所示。

構件式幕墻層間橫梁均位于立柱伸縮縫以上,而裝配式幕墻的層間伸縮縫正位于裝配式橫梁的中心位置,故裝配式橫梁與構件式橫梁設計的最大區別是裝配式橫梁除對插裝配之外,還要考慮層間的伸縮縫須達到15~20mm,并須滿足主體結構對容納層間位移的要求。
如圖30所示,裝配式橫梁的上下單元橫梁的搭接深度為35mm,可容納位移量為27.5mm;
上下層裝配單元之間的接口,除上下層單元橫梁的插接搭接之外,上下層的立柱內均有豎向可滑動過的鋁合金芯套進行連接;

從以上裝配式單元橫梁節點可以看出裝配式橫梁節點與單元式橫梁的節點要簡化得多,由于裝配式幕墻采用了構件式幕墻的注膠密封防水方法,因此不需要再設置等壓腔,也無需考慮排水腔、排水通道等防水排水措施,這也是裝配式幕墻與單元式幕墻的最明顯的區別。
6、裝配式幕墻的密封防水設計
單元式幕墻造價較高的主要原因就是“依靠等壓構造防水”,為了實現這一效果,單元式幕墻額外增加了很多材料和措施,而這些并不是滿足幕墻結構強度計算所必須的,同時也不是密封防水所必須的唯一措施。裝配式設計正式基于這兩方面的考慮,采用了構件式幕墻造價較低的注膠密封防水措施,回避了單元式等壓構造防水導致造價增高的各項措施,因此達到既能夠降低成本又能夠實現整體預制整體吊裝的“裝配式”施工工藝,大大提高了裝配化率。
如下圖31、圖32所示,裝配式幕墻的防水采用了與構件式幕墻相似的防水措施,同時為了提高密封防水的可靠性,所有玻璃幕墻部位均采用了兩道注膠密封防水措施,其中第一道內側的注膠密封防水均在工廠組裝單元體時完成,單元體內的第二道注膠密封防水也在工廠組裝時完成,而單元體之間的接縫部位的第二道注膠密封防水,則在現場吊裝完成單元體之后再實施,此工序則與構件式幕墻的現場注膠密封防水工序相似,但現場注膠密封的作業量則減少到30%以下了。

圖31 水平節點密封防水示意圖 圖32 垂直節點密封防水示意圖
7、裝配式幕墻的防火防煙設計
建筑幕墻的防火、防煙等要求在《玻璃幕墻工程技術規范》及《建筑防火封堵應用技術標準》中都有明確的規定,其具體的構造設計及施工方法已多年來已形成了約定俗成的各種細節措施。裝配式幕墻之所以在此對防火防煙設計單獨提出來,是因為裝配式幕墻與傳統常規的構件式幕墻和單元式幕墻的具體措施還是有所區別。
裝配式幕墻因為立柱設計為開口的公母料對插式安裝,室外側均已有兩道注膠密封措施以防風防雨防滲(詞條“防滲”由行業大百科提供)漏,故室內側的插接接口僅為兩道EPDM膠條密封連接,且均位于室內,并無防水密封要求,但此開口部位在室內可能會成為煙霧的入口,以至在發生火災時煙霧可能從此室內開口進入到立柱的空腔內。單元式幕墻現在最常用的是“橫滑型”設計,在每層的單元體上口沿整樓都形成了封閉的“水槽”,此水槽既能用于防水排水,同時也阻斷了立柱的豎向通道,使立柱層層斷開。而裝配式幕墻的立柱采用了更簡化的構造措施,上下層立柱之間仍然采用鋁合金芯套滑動式連接,這樣就導致立柱上下層之間未完全斷開,其中的立柱空腔則可能成為火災情況下的“竄煙通道”,因此須對裝配式幕墻的立柱層間防火防煙特別強調須進行封堵。


如圖33、圖34、圖35所示,裝配式幕墻的防火防煙封堵,除須按照《建筑防火封堵應用技術標準》執行外,還須達到如下要求:
(1)每層單元板塊吊裝完成后,均統一在立柱上端內腔進行注膠封堵(防火密封膠(詞條“防火密封膠”由行業大百科提供)+彈性防火密封漆)。(2)每層單元板塊的上端口全部形成連續的密封界面,并與室內樓板上口與幕墻間隙之間的防火防煙封堵形成連續的防火防煙封堵密封界面。

8、結語
本文通過具體項目的裝配式幕墻各細節設計,系統總結了裝配式幕墻設計的基礎工作、設計流程、各細節設計的注意事項,通過本案列的具體分析,總結出解決裝配式幕墻設計的途徑,從而找到構件式幕墻和單元式幕墻改為按裝配式幕墻設計的具體方法,在并不明顯增加幕墻成本的前提下,大大提高建設項目的裝配化率,為裝配式幕墻的系統推廣做好前期設計及技術鋪墊工作。
參考文獻
[1] 《建筑幕墻術語》GB/T34327-2017
[2] 《玻璃幕墻工程技術規范》JGJ102-2003
[3] 《裝配式鋼結構建筑技術標準》GB/T51232-2016
[4] 《建筑防火封堵應用技術標準》GB/T 51410-2020
[5] 《特殊造型幕墻裝配式設計施工方法研究》,詳見《2021年建筑門窗幕墻創新與發展》論文集,姜清海、姜輝等;
作者單位:姜清海幕墻系統工程(武漢)有限公司