本篇文章內容由[中國幕墻網ALwindoor.com]編輯部整理發布:
摘要:單元式幕墻背板區的排氣孔不僅僅只保持氣壓平衡,同時也對該區域的排水(詞條“排水”由行業大百科提供)、防潮起到關鍵作用。本文結合某個項目的生產情況,探討排氣孔不同設置方式下對背板區排水和防潮功能的影響,并提出排氣孔位置選擇的建議及相關幕墻斷面(詞條“斷面”由行業大百科提供)設計應考慮的細節。
關鍵詞:背板區、墊框、結露、排氣孔、除濕、滲水(詞條“滲水”由行業大百科提供)、排水

1 概述
隨著建筑工業化的快速推進,單元式幕墻的占比越來越多。但就其標準化程度而言,仍不是很高。以我們近兩年所生產的單元式幕墻產品為例,幾乎每一個項目都是重新設計的。雖然這是滿足個性化需求的一種無奈,但也確實帶來不少潛在缺陷及工藝性問題的困擾。
單元式幕墻在背板部位由于是一個密封嚴密的封閉區域,受陽光照射時區域溫升很高,所以必須開排氣口。這本來是一個非常簡單和普通的工藝措施,但我們所生產的一批板塊卻在養護期出了問題:不少板塊在背板區域的玻璃出現起霧甚至水汽結露的現象。通過分析和處理,發現是排氣孔的工藝設計存在缺陷。我們隨即采取了措施并完善了排氣孔的工藝設計,通過一段時間的追蹤觀察,上述質量問題再未發生,證明相關工藝改進是成功的。
在此基礎上,我們對近幾年所生產的單元式幕墻產品逐一做了專項分析,發現排氣孔的設置五花八門,沒有形成一個同一的標準。由此,應公司要求,我們對排氣孔的設計做了進一步的分析和試驗,初步形成一些思路,并準備將其標準化,用于今后的設計及生產之中。
2 問題的提出及分析
在前述的質量事故中,庫存單元板(詞條“單元板”由行業大百科提供)塊有近10%的比例出現玻璃起霧甚至水汽凝結成水珠的情況。對此我們第一反應就是背板區域的密封處理在缺陷,導致板塊在存放過程中遭遇雨水滲入背板區域。

圖1 背板區玻璃表面結露
由于鋁(詞條“鋁”由行業大百科提供)背板周邊是打膠密封的,而面層玻璃也是周邊打膠密封的,所以滲入到該區域的雨水在陽光作用下就會升溫并蒸發為水蒸汽。而太陽落山后,鋁背板因為后襯保溫棉,所以溫度下降較玻璃更為緩慢,所以水汽就凝聚在玻璃表面(如圖1)。但這個推斷引出了兩個問題:
2.1雨水由什么途徑滲入幕墻背板區域內部?
針對這個問題,我們解剖了一個結露嚴重的單元板塊,將保溫棉及背襯鋁板拆除后,把板塊投入浸水池中做浸水試驗,結果未發現有滲漏(詞條“滲漏”由行業大百科提供)情況;接下來我們又拆了一個單元板塊做同樣的浸水試驗,也未發現問題!直到用后來采用了加大浸水深度和延長浸水時間兩項措施后,才出現了新情況:
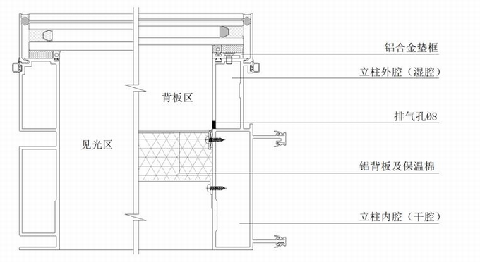
在加大浸水深度時,意外發現排氣孔開始進水,說明此時的浸水深度已經超過排氣孔高度了。我們突然意識到排氣孔也是可能的雨水滲漏途徑。檢查了圖紙,發現排氣孔的位置位于幕墻立柱的外側型腔,且位置靠后。當單元板塊玻璃面朝上平放時,只要外側型腔內部進水,就很有可能通過排氣孔流入背板區域。
為了驗證這一問題是否可能發生,我們用水管往立柱型腔內注水,明顯可見水流自排氣孔大量涌出。但后來意識到此種試驗方式與實際情況不符,隨改用噴頭模擬下雨狀態,則發現排氣孔是否滲水與板塊放平狀態有關:如果板塊頭部低于尾部,則一段時間后排氣孔開始滲水;反之,則并沒有水滲出。在對比了幕墻相關圖紙后發現,該排氣孔位于幕墻立柱的外腔,并且位置靠后。所以當單元板塊平放后,排氣孔就位于幕墻立柱外腔的低水線區域。因此當單元板塊頭部低于尾部時,立柱腔體就會積水,并有可能從排氣孔滲入背板區域。

圖2排氣孔位置示意圖
在標準深度(10cm)的浸水試驗中,當將浸水時長延長后,所拆解的兩個單元板塊都先后發現背板區域的墊框角部接縫出現輕微滲水,但一橫梁之隔的見光區域則沒有任何滲漏。顯然,問題出在墊框上。由于該單元板塊背板區域玻璃比見光區域玻璃厚度薄4mm,所以要靠墊框來調節玻璃面高度。墊框與幕墻立柱之間存在復雜的卡接溝槽,且其周圈密封膠也不好施工,容易出現密封缺陷。在單元板塊的養護過程中,板塊平放,玻璃護邊底部的“排水孔”就有機會成為“進水孔”,所以雨水就可能會滲入到幕墻內部,并聚集在墊框周邊。在質量事故發生的那段時間,幾乎每天都下雨,造成墊框區域始終處于積水狀態,因而,即便是存在微小的缺陷,最后也都可能導致發生了輕微滲漏。

圖3 墊框卡接溝槽示意圖
2.2 排氣孔為什么未能將水蒸汽排出?
從理論上講,排氣孔除了能保持背板區域的空氣壓力平衡外,還能實現該區域的通風作用,從而將潮氣排出。但庫存的起霧單元板塊似乎并沒有因為時間的作用解決起霧問題。為了防止排氣孔及墊框區域仍有積水,我們將單元板塊立起來控干積水后再觀察了一天,結果仍然沒有改善。于是我們又進行了如下的試驗:
甲組,采用壓縮空氣向一側立柱腔體內吹氣。為形成足夠的壓力,我們對立柱下端端口用碎布進行了封堵,以保證該側排氣孔有干燥空氣灌入。理論上講,強制通風應該會立竿見影地解決問題,但經過了近12小時的持續吹氣,背板區域起霧現象才完全消除;
乙組,同樣采用再一側立柱腔體內吹氣,但將背板區上方鋁背板與上橫梁之間的密封膠切掉一小段,結果大概只要了半個小時背板區域起霧的情況就消失了。同樣作為對照的未經任何處理的板塊在室外存放兩天后也僅有極其輕微的改善,基本可以得出該條件下排氣孔不能有效進行通風換氣的結論。
對于這一奇怪的現象我們給不出專業的解釋和數據,只能憑結果反向推測出兩個假設:
A、當腔體的容積與排氣孔的尺寸相差較多的時候,從一側排氣孔進入的空氣傾向于沿最短路徑由另一側排氣孔排出,兩排氣孔連線以外區域的空氣很少被帶動而形成循環;
B、一個小尺寸封閉腔體內的空氣自然流動主要是依靠壓力差,當排氣孔位于同一水平位置時,不會因為冷熱空氣密度不同而產生壓力差,所以也就不能形成持續性的空氣流動。
基于這種假設,相關試驗現象就可以解釋的通:排氣孔位于背板區域的底部,即便采用強制通風,氣流也只在底部兩個排氣孔之間的直線區域流過,而其他區域的空氣甚少受到影響,所以水蒸汽也無從排出。而要想將背板區域封閉空間內的潮氣排出,就必須讓排氣路線盡可能地覆蓋更大的區域,并且還要利用空氣密度差形成持續性的空氣自然流動。
3 “背板區域玻璃起霧問題”對幕墻設計、生產工作帶來的啟示
3.1 要重視墊框構造自有的滲漏隱患
墊框構造本是解決同一單元板塊上安裝不同厚度玻璃的無奈措施;趬|框的安裝可靠性方面的考慮,墊框與幕墻主龍骨的連接構造一般都采用卡接或卡接加螺釘固定的連接方式。但卡接連接構造的接縫既小且復雜,難以用密封膠填充,很難處理到完全無缺陷。所以理想情況下,最好保持同一個單元板塊內只使用一種總厚度的中空玻璃,或是通過中空玻璃結構膠及中空玻璃與幕墻龍骨之間結構膠的厚度進行高度調節,完全不使用墊框。如果必須使用墊框,也建議采用端部“清根”或45度拼接的方式,這樣可以周圈完整的連續密封膠道。有相關文獻介紹,如果在墊框對應部位的卡槽上銑出一小段缺口,并用密封膠填充以阻斷卡槽內可能存在的滲水縫隙,基本上就可以消除滲漏隱患。
3.2 排氣孔的位置選擇
在出現背板區域玻璃起霧的質量問題后,我們也在反思是否排氣孔的工藝設計存在缺陷。為此,我們對比了近幾年來不同項目的排氣孔設計,結果發現:從分布位置上來講,既有在外腔的,也有在內腔置的;排氣孔尺寸最大的10mm,最小的6mm;排氣孔數量有的設置一個,有的設置兩個。沒有什么規律,說明大家對這個小小的工藝構造并沒有引起重視。
從這次質量問題的處理過程,我們意識到排氣孔不僅僅起到氣壓平衡的作用,還是背板區域排除潮氣的重要途徑。根據幾次試驗的情況,我們總結出排氣孔位置選擇的兩條經驗:
第一條經驗:排氣孔盡可能設置到立柱的內腔。在單元板塊平放狀態下時,位于外腔的排氣孔是在低水線位置,而位于內腔的排氣孔是在高水線位置,所以排氣孔位于內腔時,由排氣孔進水的概率就會小很多;

圖4兩種排氣孔位置對比示意圖
其實,單元板塊在工作狀態下,外腔也有進水的可能性。這是因為單元幕墻常見的內部積水直排方案常常導致雨水倒灌。所以目前多是通過立柱前腔排水的改進方案。在這個方案中,上橫水槽內的積水通過其外側的橫向導水槽引導至立柱的前腔,并從立柱下端的開口排到室外。所以業內也形象地將外腔稱為“濕腔”,內腔稱為“干腔”?梢韵胂瘢绻诹⒅摹皾袂弧痹O置了排氣孔,那么上橫水槽中的積水完全可能順其流入背板區域。

圖5上橫梁水槽排水孔及導水槽排水孔示意圖
所以在單元幕墻的型材設計時,要考慮立柱插接位置與背板的關系。一般來說,板塊的立柱插接位置要在背板外側,這樣就可以將排氣孔設置在內腔。但如果條件不允許,立柱插接位置位于背板后側時,也還可以通過在橫梁上設置集水槽,將排氣孔向后引導到內腔。事實上這種設計是非常成功的,其不止是不容易進水,還是快速排水的典范!另外外觀效果也較排氣孔外露的觀感更好,值得推廣。

圖6 利用集水槽將排氣孔布置到干腔
當然,排氣孔也不是完全不能設置在“濕腔”。單元板塊的養護期間只要做好防護遮蔽,就可以避免立柱內腔進水。而在幕墻使用過程中,如果仿照前例,在橫梁上設置下沉的集水槽,并將排氣孔設置在集水槽底部,那么即便排氣孔處有水倒灌,也不會有太大問題,因為積水會自然排出。另外,在排氣孔上安裝一節帶有彎頭的導氣管,也能避免流經立柱前腔的水通過排氣孔倒灌。當然相對于將排氣孔設置在后腔的做法,這個還是更麻煩了一些。
第二條經驗:排氣孔盡可能設置4個,在背板區域的四個角各設置一個,且排氣孔直徑不宜低于8mm。事實上對于這條經驗我們在內部也有異議,主要的擔心是排氣孔位于背板區上端時,在室外側有可能被看到,影響觀感。所以也有建議背板上端的接縫不打密封膠,用于和下端的排氣孔形成空氣對流關系。但這個方案有無可能會導致背板后側的保溫材料受潮?會否在火災狀態下導致防煙封堵失效?這些似乎都是更加棘手的問題,在此不敢妄下結論,只能寄希望于行業前輩和專家們予以解惑了。
3.3 重視單元板塊生產工藝評審與定型
事實上那批問題板塊在返修時花費了很大精力,事后統計返修所用的工時幾乎與重做相當。這說明對于單元式幕墻這種工業化程度很高的產品而言,對缺陷的容忍度實際是非常低的。所以在單元式幕墻正式生產前,需要進行周密、嚴格的工藝評審和定型實驗。這類評審和實驗是有別于工程驗收或四性實驗,其更重要的是關注過程結果而非最終結果。比如從前述的浸水試驗可以看到,常規的浸水實驗其實是很難發現潛在隱患的。因為背板區域滲漏情況不能直接觀察到(受到背板及保溫棉阻擋),輕微滲漏隔著一層玻璃也不見得可以發現。所以在這種情況如何能找出潛在的工藝缺陷?但如果其工作流程是對每項工藝進行評審和驗證,如在驗證組框密封工藝時,就會設計一套針對墊框安裝密封工藝的試驗驗證方案:一組墊框采用45角拼接工藝,另外一組采用直角拼接,但將長邊卡扣的端部要清根。然后制做一批將墊框周邊密封情況完全暴露出來的試件,以比現有浸水試驗更加嚴格的標準進行對比測試,統計相關數據,進行評估,最終確定所要采用的生產工藝。顯然,這種試驗更直接、更準確,比現有的單元板塊浸水試驗更有效,也更容易發現問題。工藝評審與試驗的最終目的是要對相關的工藝方法、工藝參數、工藝標準進行固化,形成生產標準。畢竟我們不能寄希望于通過檢驗手段來控制質量,標準化、規范化的生產才是保障質量的王道。
特別需要說明的是,所有的評審工作的前提是對潛在問題的識別。所以在進行設定評審內容時,要覆蓋加工、存儲、運輸、安裝的各種狀態及需求。
4 結語
一個小小的排氣孔缺陷就能引發出大的質量問題,不難看出工藝設計的重要性。往往一個工藝細節會直接關乎到產品的質量及最終使用體驗。與可以靈活拆裝的構件式幕墻不同,工廠化生產的單元幕墻產品一旦出現缺陷就很難彌補。所以其設計、生產就要按照工業化生產的需求考慮方方面面的影響,堅持走標準化和規范化的道路,以實現穩定可靠的品質保障。
作為一個設計人員,掌握一定的工藝知識是必須、必備的,但更重要的是要遵循規律、尊重科學。這體現在相關的設計工作中尤其是工藝設計時,就是要杜絕似是而非和隨心所欲,要采用成熟可靠的技術,堅持標準和規范的工作流程,為生產出安全可靠的產品奠定基礎。
參考文獻
[1]杜東興 《單元式幕墻構造解析》
[2]譚振培等 《淺談帶隱藏式開啟扇的單元式幕墻各構件的拼接工藝及防水要點》
作者單位:深圳中航幕墻工程有限公司