
在我國建筑門窗領域,一直有著工程和家裝之分,我們通常稱之為工裝門窗和家裝門窗。那么,什么是工裝門窗和家裝門窗呢?
工裝門窗
、籴槍ㄖこ痰拈T窗;
、谝话闶情T窗企業根據設計院、總包等方的要求對整個建筑工程的門窗進行設計、加工、安裝并接受監理、驗收等的門窗工程。
家裝門窗
、 針對散戶,也就是普通老百姓家庭裝修的門窗;
、 一般是門窗企業通過品牌宣傳、經銷商渠道深入到各個區域,通過經銷商門店為老百姓家庭安裝、更換門窗的方式。
說明:本文所說門窗指建筑外門窗。
工裝門窗和家裝門窗的區別
01、工裝門窗和家裝門窗的區別,其實是對門窗的理解不同,或者說理念不同。
工裝門窗更多的是將門窗作為圍護結構(詞條“圍護結構”由行業大百科提供),而家裝門窗則更多地將門窗作為裝飾裝修部品來對待。
圍護結構理念
圍護結構理念更多地強調了門窗作為分隔室內外空間的圍護功能,重點考慮安全(抗風壓、消防、墜落等)、節能(保溫、隔熱(詞條“隔熱”由行業大百科提供)等)、適用(通風、采光等)和耐久(反復啟閉耐久性),而針對這些因素的考慮是通過建筑設計、門窗設計、檢測、監理、驗收等相關標準和制度來實現的。
也就是說,工裝門窗由于受到建筑設計、門窗設計、檢測、監理、驗收等相關標準和第三方監管制度保證圍護結構理念的落實。
裝修裝飾理念
裝飾裝修理念更多地強調了裝飾和裝修功能,在考慮圍護結構基本功能基礎上,重點通過品牌、觀感等吸引客戶購買。由于散單監管難度較大,因此家裝門窗很少受標準規范約束和第三方監管,客戶滿意程度成為唯一評判標準。
換言之,家裝門窗是企業直接為終端老百姓提供的一種產品,缺少標準規范和監管制度的約束,因而裝飾裝修理念成為了家裝門窗的主流。
不同理念對門窗具體要求的差異體現
02、圍護結構和裝飾裝修理念對門窗的具體要求差異有哪些呢?
工程門窗(圍護結構理念)
從建筑工程,也就是從圍護結構理念出發,對門窗的要求,詳見下圖。

從圍護結構理念出發,工裝門窗要考慮門窗的立面效果、模數化、臨空防護、采光、通風、安全、節能、消防、排煙、隔聲、水密等要素,且均有相應指標控制,這些指標由建筑設計、節能審查、門窗設計、檢測、監理和驗收等相關方和制度進行保障落實。
家裝門窗(裝飾裝修理念)
從家庭裝飾裝修,也就是家裝門窗角度,對門窗主要要求如下。

從裝飾裝修角度,門窗則主要考慮基本要求(安全、不漏水、隔聲等)、裝飾裝修要求(材質、顏色、分格等),這些指標僅由終端用戶體驗確定,無第三方介入監管。

長按 / 即刻參觀登記
FBC中國國際門窗
幕墻博覽會
2021.11.02-05
上海
03、工裝門窗和家裝門窗的各自優勢
工裝門窗由于需求方(一般為開發商)、驗收方(質監站)與最終用戶(購房者)訴求不一致,導致部分工程的門窗產品質量把控流于形式,出現買房即換窗的現象。
家裝門窗由于客戶專業度不足,僅能通過品牌、產品觀感和線下體驗來判斷,且門窗產品的選擇范圍受限于門店距離,因而廠家產品質量良莠不齊。

因此,片面地認為工裝門窗或家裝門窗更好說法是不正確的,工裝門窗和家裝門窗均有優劣之分。
04、家裝門窗盲區典型示例
由于工裝門窗受到標準規范和各利益相關方的約束,而家裝門窗主要以終端用戶滿意度來衡量,因此家裝門窗在標準規范層面與工程門窗相比有一定差異。
從工裝門窗角度看家裝門窗有哪些盲區呢?
示例一
工裝門窗從建筑設計和門窗設計角度有宏觀控制要求
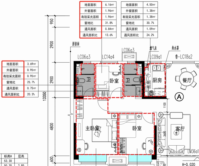
門窗采光和通風是建筑設計的重點,不同房間對窗地比和通風面積比有嚴格的指標要求,見下圖。

同樣,建筑設計對門窗的抗風壓性能和節能性能指標也有明確要求,而門窗設計時需要對建筑設計提出的要求通過測試和計算的方式予以確認,典型的門窗結構計算和熱工計算見下圖。


示例二、抗風壓安全性
對于一個建筑工程,不同地區、不同高度和不同部位的風壓是不一樣的,因而需要予以嚴格計算考慮。以北京和廈門地區20 m和100 m的建筑物為例,抗風壓性能最大相差5倍多,見下表。

而門窗的抗風壓性能則隨著尺寸變化而呈指數變化,以簡化的簡支梁考慮,當門窗從1.5 m×1.5 m增加為3 m×3 m時,其抗風壓性能僅為原來的1/8(非嚴格測算時,嚴格計算時會有一定差異)。

以上述門窗應用為例,極端情況下,門窗抗風壓性能錯配約40倍,可能存在嚴重安全隱患。
示例三、門窗消防安全
我們國家建筑防火設計相關標準和圖集,對某些部位門窗的防火和耐火性能提出了要求,如分戶墻兩側窗戶距離小于一定尺寸時,防火墻設置在轉角時兩側窗戶小于一定距離時,窗戶要具備一定的防火功能,見下圖。

不考慮防火隔離要求,可能存在由于鄰居家失火通過窗戶蔓延的安全隱患。
再比如,防火避難間及外保溫時門窗的耐火性能要求,如下。


試想一下,當我們將這些特殊位置外窗均換為普通外窗,在發生火災時會出現什么情況呢?事故責任又有誰來承擔呢?
工裝門窗對家裝門窗的啟示
05、鑒于工裝門窗和家裝門窗的理念、關注重點存在較大差異,那么工裝門窗對家裝門窗有哪些啟示呢?
視角工程化
視角工程化通過明確每一樘門窗所用建筑的地區、高度、位置等參數,確定門窗需要的抗風壓、氣密、水密、保溫、隔熱等性能指標要求,匹配性能合適的系統產品。
家裝門窗企業應了解門窗相關工程設計(重點是結構設計和熱工設計)、加工制作、安裝驗收等標準規范,從建筑物和圍護結構視角來進行門窗設計。
產品系統化
產品系統化是針對企業的系統產品,從產品族到系列產品,在性能(安全性、節能性、適用性、耐久性等)、功能、品質等方面進行系統設計和研究。
以抗風壓性能為例,需要明確不同系列、不同窗型的典型抗風壓性能指標值,并給出極限使用尺寸,在家裝門窗安裝時根據安裝位置選用。
視角工程化和產品系統化,有助于家裝門窗企業科學合理把控每一樘門窗所在位置的性能要求,在此基礎上提供相應的門窗系統解決方案,在滿足用戶需求的前提下,保障門窗安全、節能、適用和耐久。
總結
工程門窗受標準規范約束和第三方監管,以圍護結構理念為指導;家裝門窗以質量自控和終端客戶滿意為目標,更多地以裝飾裝修理念為指導;家裝門窗需要從圍護結構功能角度看待門窗,而不能孤立地以門窗來看門窗。
在建筑設計、門窗設計、制造安裝、驗收等階段,工裝門窗和家裝門窗有著不同的設計要求、質量控制和驗收方式。從抗風壓安全、窗戶墜落安全、窄邊門窗、保溫隔熱性能、消防安全等角度對工裝門窗和家裝門窗的關注點進行了解讀。
家裝門窗企業應針對不同用戶,明確該建筑物位置對門窗的要求,提供性能匹配門窗產品;簡而言之,家裝門窗行業應通過視角工程化和產品系統化確保外門窗產品符合標準規范要求和用戶使用需求。
門窗企業的
真正出路在哪?
近年來,門窗行業內談論“轉型”、“變革”的聲音明顯增多:工裝門窗企業進軍并開拓家裝渠道,家裝門窗企業不斷進行產品升級,更加注重產品的性能和顧客的體驗感。在市場競爭環境愈發激烈的當下,門窗企業的出路究竟在哪兒?
“他山之石,可以攻玉”,走在行業前列的門窗企業已經為我們提供了思路和經驗:
(以上為部分門窗企業名單,排名不分先后)
這些企業將會帶著最新產品和前沿技術,亮相11月2日-5日在上海舉辦的FBC中國國際門窗幕墻博覽會。在這里不僅可以學習和交流頭部窗企的發展經驗和創新技術,更有上百場同期活動、千余種新品展示,助力企業實現破局與轉型。
值得一提的是,作為亞太門窗幕墻行業技術交流殿堂級平臺——2021FDC中國國際門窗幕墻高級研討會將特別設立“工裝&家裝轉型與技術思考”專場,從設計、研發、應用、性能、安裝等痛點難點,深度剖析“家裝”與“工裝”門窗轉型發展的本質問題,以技術視角切入,探討門窗視角工程化和產品系統化的多渠道可持續發展。
”

“來,下一個頭部企業將會是你;
不來,你的競爭對手將會是一下個頭部企業“