本篇文章內容由[中國幕墻網ALwindoor.com]編輯部整理發布:
未經許可不得轉載
1 前言
1984年中國在北京長城飯店第一個采用玻璃幕墻,成為北京十分亮麗的建筑,拉開了我國建筑幕墻行業發展的序幕。為了促進我國幕墻工程的發展,中國建筑科學研究院成立了專門(詞條“門”由行業大百科提供)的機構,配備了專業人員和檢測設備,對幕墻結構密封膠等關鍵材料性能進行檢驗,還首先主編了我國《玻璃幕墻工程技術規范》(JGJ 102-96)、《金屬與石材幕墻工程技術規范》(JGJ133-2001)幕墻技術規范,主編了《建筑裝飾裝修工程質量驗收規范》(GB50210-2001),《玻璃幕墻工程質量檢驗標準》(JGJ/T 139-2001),《建筑幕墻工程檢測方法與標準》(JGJ/T 324-2014)等很多幕墻相關標準,為建筑幕墻工程質量設計、選材、施工、驗收、檢測、鑒定提供重要的依據。隨著我國建筑技術的發展和建筑材料生產工藝的進步,在眾多科研、設計、施工、材料相關單位的共同努力下,我國建筑幕墻行業實現了從無到有、從模仿引進到全面主導自主創新、從小規模的應用到成為世界建筑幕墻生產和使用第一大國,實現了跨越式快速發展。

由于我國建筑幕墻工程體量巨大,難以避免出現諸多工程質量問題,本文以建筑幕墻按面板(詞條“面板”由行業大百科提供)材料分類為玻璃幕墻、石材幕墻、金屬板幕墻,分別對各種幕墻常見的工程質量問題進行闡述,并對典型質量問題的原因進行分析。
2 玻璃幕墻工程常見質量問題及原因分析
2.1鋼化玻璃自爆
由于近年來隨著建筑幕墻行業的高速發展,各種形式的玻璃幕墻日益增多,愈建愈高,幕墻玻璃在安裝后,無外力影響下產生鋼化玻璃“自爆”的質量問題頻繁出現,導致建設部和很多省市出臺了限制使用玻璃幕墻的規定,嚴重影響了玻璃幕墻的正常發展。
幕墻鋼化玻璃發生自爆的原因是多方面的,幕墻結構的設計、玻璃的加工、運輸、搬運、安裝、惡劣的氣候、溫度、使用的環境等均對玻璃的“自爆”有密切影響。其中鋼化玻璃自爆最主要的原因是玻璃在其原片生產過程中由主料石英砂或砂巖中帶入鎳,由燃料及輔料中帶入硫,在1400℃~1500℃高溫熔窯燃燒熔化形成硫化鎳(NiS)雜質,這種雜質具有冷脹熱縮特性,留在鋼化玻璃中的硫化鎳雜質受外部溫度等環境變化時發生相變,其體積膨脹,處于玻璃板芯張應力層的硫化鎳膨脹使鋼化玻璃內部產生更大的張應力,當張應力超過玻璃自身所能承受的極限時,就會導致鋼化玻璃自爆,從自爆的鋼化玻璃可以找到起爆點處的“蝴蝶斑”,“蝴蝶斑”中心有硫化鎳雜質黑色點(見照片2.1-1~2.1-3)。

2.1-1自爆鋼化玻璃“蝴蝶斑”中心有硫化鎳雜質黑色點

2.1-2電子顯微鏡下的硫化鎳雜質狀態,元素及含量分析取點

2.1-3能譜儀分析硫化鎳雜質及玻璃表面元素及含量
由于硫化鎳的不確定性,因此硫化鎳造成的鋼化玻璃自爆時間也具有不確定性,相關研究資料表明,一般鋼化玻璃生產后3到5年是鋼化玻璃自爆的高發期,目前的科技手段還無法預測何時、哪一塊玻璃將出現“自爆”。但是對鋼化玻璃自爆可以采用以下措施加以預防,將發生自爆的概率降低。
1.在玻璃原片生產過程中,應選擇含硫、鎳元素較少的主料、燃料及輔料,降低硫化鎳的生成,減少鋼化玻璃中硫化鎳的含量。
2.在玻璃深加工階段,增加一道均質處理(HST)工序,即將鋼化玻璃加熱到290℃進行二次熱處理,并保溫至少2個小時再冷卻到室溫,這一過程使鋼化玻璃中存在的硫化鎳等雜質提前完成晶相轉變,讓存在自爆隱患的玻璃主動自爆而被淘汰,留下的未爆裂玻璃在使用過程中發生自爆的概率極低。
3.放棄普通鋼化玻璃,采用超白玻璃,即在原料熔化過程中通過精細的控制,使得超白玻璃相對普通玻璃具有更加均一的成分,其內部雜質更少,從而大大降低了鋼化后的自爆概率。
2.2玻璃幕墻開啟扇脫落(詞條“脫落”由行業大百科提供)
在玻璃幕墻設計中,為滿足建筑通風及消防安全需要,玻璃幕墻大量設置開啟扇,無論是構件式玻璃幕墻還是單元式玻璃幕墻,開啟扇通常為上懸式開啟。上懸式開啟主要采用兩種方案,早期的玻璃幕墻開啟扇采用一種摩擦型鉸鏈(四連桿或五連桿)作為開啟扇承重構件,配合限位風撐(詞條“風撐”由行業大百科提供)實現上懸式開啟;另一種是采用掛鉤式鋁型材,鋁型材作為開啟扇承重構件,配合限位風撐實現上懸式開啟。在實際工程應用中,高層、超高層建筑越來越多,幕墻開啟扇也出現了開啟扇脫落的嚴重質量問題。
(1)摩擦型開啟扇脫落原因
①摩擦型鉸鏈選型沒有經過結構受力計算,不滿足承重要求。
②開啟扇型材壁厚過薄,沒有加強措施,固定(詞條“固定”由行業大百科提供)螺釘位置型材空壁局部破壞,螺釘松動,導致開啟扇脫落。
③連接鉸鏈與鋁型材的緊固件強度(詞條“強度”由行業大百科提供)不足。
早期使用的摩擦型開啟扇脫落問題,主要是設計質量問題,設計人員沒有足夠重視開啟扇受力計算,通常見到一個工程的鉸鏈僅一個型號,局部玻璃面積較大時,開啟扇沒有單獨計算、單獨選型。
(2)掛鉤式開啟扇脫落原因
①限位塊沒有設置,或限位塊強度不足。
在極端情況下(如臺風)限位風撐損壞,開啟扇以很大角度開啟,沒有限位塊限制,容易出現脫鉤現象,導致開啟扇整體脫落。
②開啟扇上橫梁剛度不夠
開啟扇上橫梁除了承受上一塊玻璃的重量外,還有承受開啟扇的自重,所以此橫梁撓度(詞條“撓度”由行業大百科提供)比固定玻璃位置橫梁要大,一旦撓度超過《建筑幕墻》GB/T21086-2007規定的3mm限值,就會存在脫落的風險。
2.3玻璃幕墻滲漏水
玻璃幕墻完工后,使用者最直觀感受的就是滲漏水問題,多年來已成為玻璃幕墻工程中最常見的質量問題之一。玻璃幕墻滲水原因較為復雜,綜合因素多,涉及到設計、材料、施工等各個環節。以下是各環節中常見幕墻漏水主要原因分析及對策。
(1)設計原因
設計與施工協調性差,尤其容易出現在幕墻與主體結構收口部位,相鄰兩個幕墻系統交接部位,幕墻頂部收口部位等,這些特殊部位容易出現因主體結構偏差或幕墻累計誤差而導致原施工圖紙不適用的狀況,需要設計人員與施工人員充分溝通,甚至進入現場實際測量返尺,有針對性地出具收邊收口方案。玻璃幕墻出現滲漏水頻率最高的也是這些特殊部位。
(2)材料原因
密封膠是引起玻璃幕墻滲漏水的主要材料之一,有些工程采用劣質密封膠,注膠一段時間后發生密封膠膠縫起泡、開裂或不凝固等現象,導致幕墻滲漏水;密封膠使用前沒有根據相關標準進行相容性試驗,在實際工程中和材料的粘結性差,粘結部分失效,無法滿足密封要求,造成玻璃幕墻滲漏水。對于鋁型材表面的處理不滿足相關標準的要求,表面涂層產生的附著力(詞條“附著力”由行業大百科提供)低,氧化膜的厚度過薄或過厚,均導致密封膠粘結失效,造成幕墻滲漏水。
(3)施工原因
施工人員專業程度和技能水平對于玻璃幕墻工程的質量有重要影響,在工廠和工地現場,部分工人不根據規定的密封膠注膠流程作業,施工質量不合格,導致密封膠不密實,出現孔洞、氣泡(詞條“氣泡”由行業大百科提供)等問題,造成幕墻滲漏。注膠作業過程中施工人員對密封膠薄厚控制不均勻,部分過薄或是過厚;局部位置不襯墊泡沫棒,使整個膠縫構成三面粘接,限制了密封膠的變形,玻璃和膠的粘接容易形成裂縫開裂,造成玻璃幕墻滲漏嚴重。
施工人員不按圖紙施工,測量放線偏差過大,幕墻上下立柱沒有預留伸縮縫,在外部溫度變化下,立柱發生收縮或膨脹,導致玻璃膠縫開裂,產生滲漏水問題(見照片2.3-1)。

2.3-1某工程因立柱沒有伸縮余量導致玻璃密封膠開裂
施工時的偷工減料也是造成玻璃幕墻滲漏水的主要原因。例如典型的明框玻璃幕墻(詞條“明框玻璃幕墻”由行業大百科提供),滲漏水點出現在橫梁位置,主要原因為室外玻璃鋁壓塊及膠條沒有通常設置,而是設置成長度為100mm,每塊玻璃設置兩塊,壓塊外扣厚度為1.5mm的鋁裝飾線條,鋁裝飾線條與玻璃之間密封膠質量無法保障,幕墻工程未出質保期該位置就出現密封膠開裂導致滲漏水的質量問題。(見照片2.3-2)

2.3-2某明框玻璃幕墻鋁壓塊及膠條沒有通長設置導致膠縫開裂滲漏水
3 石材幕墻工程常見質量問題及原因分析
石材幕墻因外觀精美,自然質感好等獨特的優勢,越來越多地用于各類建筑的外立面。隨著建筑外形日益復雜、新材料(詞條“新材料”由行業大百科提供)新工藝的應用以及用戶對幕墻工程質量要求日益嚴格,存在于石材幕墻工程中的質量問題亟待解決。
3.1石材板塊脫落
(1)材料選擇不合理
面材選擇不合理,天然石材各種顏色、花紋種類繁多,但并不是所有石材都適用于室外復雜環境,應依據相關標準規范,考慮吸水率,彎曲強度等重要參數甄選用料。人造石材色澤均勻,紋案多樣,然而各生產廠家產品的技術和質量標準不統一,國家也沒有推出相應的標準規范行業的發展,導致人造石材的質量良莠不齊。
石材結構膠選擇不合理。施工過程中有很多用云石膠代替環氧樹脂結構膠使用的狀況。原因有兩種:1、施工人員不專業,對膠的性能及用途不了解,存在認知上的錯誤。2、有些施工人員明知故犯,因為云石膠造價低、固化速度快。云石膠是不飽和樹脂(詞條“不飽和樹脂”由行業大百科提供)膠,適用于建筑石材(詞條“建筑石材”由行業大百科提供)的快速定位及拼花、修補、粘結,主要是石材與石材間的粘結用膠。如果使用于石材與金屬掛件的粘結,其粘結強度要遠遠低于石材專用環氧樹脂結構膠。云石膠的固化成型要比環氧樹脂結構膠快,施工比較簡便,價格較低,但其對石材的污染也相對較大。而且云石膠固化后的彈性比專用膠差,這對抵抗疲勞荷載和溫度應力作用很不利。所以必須使用石材專用環氧樹脂結構膠。
(2)連接系統選擇不合理
石材幕墻的連接方式常見的有鋼銷式、短槽式、通槽式、背栓式等,鋼銷式石材幕墻抗剪面積小,在地震環境中極易受損,已不適宜在石材幕墻項目中應用。早期使用鋼銷式連接方式的石材幕墻頻繁出現由于石材鋼銷孔連接處斷裂,導致石材開裂、脫落的現象(見照片3.1-1)。

3.1-1早期鋼銷式石材幕墻鋼銷孔連接處斷裂狀況
為了降低造價,部分施工單位往往擅自將掛件改成斜插式挑掛件,事實上這是一種非常危險的掛接形式,在設計階段就應該加以杜絕。由于在石材背部開斜口,交接部位會形成三角形的石材板塊,這樣的切口本身就極易崩壞,一些施工人員為了方便施工,甚至會只切一些平行的切口插入石材背部,極易造成板塊的滑脫(見照片3.1-2)。

3.1-2 某工程斜插式挑掛件石材脫落狀況
(3)石材掛件連接失效
石材幕墻掛件的材質多為不銹鋼(詞條“不銹鋼”由行業大百科提供)或鋁合金,常見的掛件形式有T型掛件、SE型掛件、L型掛件、背栓等。T型掛件(或蝴蝶型)在石材上下邊部開槽連接,一組掛件要控制上下兩個石材板塊的固定,導致石材只能自上而下或自下而上逐層安裝,無法分層安裝和單獨更換石材。而實際工程中,大部分施工單位為了追趕工期,節約成本,往往采用分組分層安裝石材,這樣一來各組間交接處的收口石材無法安裝進槽,通常的做法是將交接處收口石材的下邊兩短槽沿石材背部切平,短槽切成開放的L型槽口,再注滿云石膠,推入石材將T型掛件與石材快速粘結固定(見照片3.1-3)。云石膠自身沒有韌性,強度不足,又由于不飽和聚酯樹脂與固化劑配方的比例懸殊(通常是100:3),人工施工時不好掌控,一旦比例超過3%,就會導致膠體變脆,降低粘接性能,長期靠云石膠粘結勢必會發生膠(詞條“生膠”由行業大百科提供)體脆裂,導致石材脫落。因此,各地已出臺相關文件要求限制或禁止石材幕墻使用T型掛件系統。

3.1-3 某工程石材背部T型掛件粘結狀況
背栓石材在應用過程中常出現背栓與龍骨的連接失效導致石材脫落的狀況,通常是施工時不按圖施工,操作不規范造成。例如北京某寫字樓石材幕墻工程,自竣工驗收的8年時間已經出現多次石材脫落事件,其脫落原因主要是石材背栓與龍骨沒有按圖紙要求采用螺栓固定,而是采用焊接(詞條“焊接”由行業大百科提供)固定,且焊接質量差,焊縫處開焊導致石材脫落。(見照片3.1-4)

3.1-4石材背栓與龍骨采用焊接連接,連接處開焊脫落
(4)特殊部位及造型石材連接不牢固
石材幕墻常有復雜的裝飾線條和外挑造型,在轉角位置,腰線位置,檐口位置,吊頂區域等特殊部位的連接構造尤其重要。由于這些特殊位置的石材幕墻施工難度大,位置隱蔽不容易檢查到,出現質量問題的概率也最高。
由兩塊石材拼接成L型的轉角石材,采用加強石粘結做法,且通常短邊石材沒有獨立掛件與幕墻龍骨形成可靠連接,經過一定的時間和環境條件作用下,膠很快老化失效,導致短邊石材脫落(見照片3.1-5)。相鄰的石材拼接可以采用粘接,但粘接只能作為保證石材拼接美觀性和密封性的臨時固定,應保證石材幕墻的每一塊石材均有獨立掛件與幕墻龍骨形成可靠連接。

3.1-5 L型轉角石材沒有獨立掛件膠失效脫落狀況
為了與立面效果保持一致,部分工程入口、檐口等部位采用石材作為吊頂材料,早期工程對吊頂及檐口石材不夠重視,石材本身屬于自重較大的脆性材料,設計時也沒有針對吊頂石材設置加固措施,施工時該位置施工作業難度大,也不容易檢查,沒有經驗的施工人員貪圖方便,通常采用斜插件膠粘固定檐口及吊頂石材,導致吊頂石材脫落情況屢見不鮮(見照片3.1-6)。在石材幕墻設計階段應設置單獨的施工技術方案對特殊部位的石材安裝進行加固處理,施工過程中重點檢查特殊部位的施工質量,對于危險性較大的檐口、吊頂石材可采用仿石噴涂鋁板或蜂窩石材替換使用,減小石材脫落風險。

3.1-6某工程因檐口吊頂石材采用斜插件膠粘固定導致大面積脫落狀況
3.2石材幕墻外觀色差大
大面石材安裝前不經過排版,直接上墻安裝,導致立面石材色差嚴重,觀感質量差。天然石材尤其是表面處理(詞條“表面處理”由行業大百科提供)為拋光面的石材面板具有普遍的色差問題,在工程材料使用石材量大的時候,同一品種的石材一般由多個礦山供應,這就造成不同批次進場的石材在顏色、花紋上存在差異;即使是同一個礦山,因為石材開采深度、位置的不同,各批次石材的顏色、花紋也存在著一定的差別。石材排版是指將加工出來的石材面板,按圖紙的平面圖中軸位置,區域、立面、次立面、樓層等部位逐一排列觀察現場效果。如顏色有差異,及時進行調整,更換等。石材排版效果的好壞直接關系到整體立面裝飾效果及觀感質量。

3.2-1石材幕墻未排版導致色差嚴重
4 金屬幕墻工程常見質量問題及原因分析
金屬幕墻因色彩多樣,面材輕質和良好的加工性能,能夠適應各種復雜的外立面裝飾設計等特點,在我國建筑幕墻中廣泛應用,尤其是造型獨特的外立面裝飾工程中應用較多。金屬幕墻所使用的面材主要有以下幾種:鋁復合板、單層鋁板、鋁蜂窩板、防火板(詞條“防火板”由行業大百科提供)、夾芯保溫鋁板、不銹鋼板、彩涂鋼板(詞條“彩涂鋼板”由行業大百科提供)、琺瑯鋼板等。
4.1金屬板塊脫落
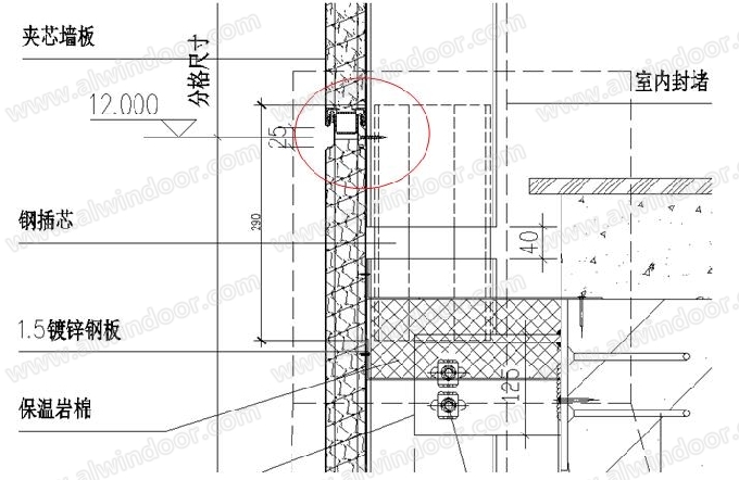
造成金屬板脫落的的主要原因是金屬板和龍骨的連接設計不合理、安裝不牢固。例如下圖顯示的某工程夾芯保溫鋁板縱剖節點,首先鋼立柱中芯柱的長度不滿足規范要求的400mm,其次芯柱與下立柱沒有螺栓固定,更重要的是固定鋁壓塊的自攻螺釘通過上立柱后打入芯柱,當出現環境溫度冷熱交替導致鋼材熱脹冷縮,上下立柱有垂直位移,芯柱與上立柱間的位移將自攻螺釘剪斷,最終導致夾芯保溫鋁板脫落。

4.1 某工程夾芯保溫鋁板縱剖節點圖

4.1-1夾芯保溫鋁板脫落后可見自攻螺釘斷裂在芯柱孔內
4.2金屬板面變形
造成金屬板變形的原因是多方面的,排除金屬板材選用不當,運輸及安裝后受外力破壞等原因,主要原因有:
(1)在金屬板設計及加工時沒有足夠地考慮金屬板受外荷載作用下大撓度的變形影響,沒有按規范要求設置加強筋或加強筋設置不符合要求。金屬板幕墻在使用過程中經過風吹、日曬、雨淋,必然會出現變形現象。
(2)金屬板和龍骨的連接設計不合理,采用金屬板周邊折邊后,將金屬板用螺釘固定在框架龍骨上的結構,單塊金屬板尺寸較大時,受環境溫度影響便會出現線性膨脹量無法抵消,金屬板面應力無法釋放,迫使板塊屈服,在空氣作用下向外出現凸出變形現象。金屬板面變形除了影響視覺效果,也會造成金屬板板面不平整,接縫不平齊、板間密封膠開裂,從而導致金屬幕墻滲漏水問題。因此,在幕墻設計時一定要遵守板塊連接結構完全能夠吸收材料因溫差產生的熱應力和地震產生的平面內變形要求的原則。
4.3金屬板幕墻出現變色、脫色現象
金屬板幕墻產生變色、脫色,主要是由于選用面板表面處理不當造成的。金屬板的表面處理分為粉末噴涂、氟碳噴涂(詞條“氟碳噴涂”由行業大百科提供)、陽極氧化等方式,各種表面處理方式又根據使用環境、面板表面光澤度(詞條“光澤度”由行業大百科提供)等參數分為多種型號,金屬幕墻作為建筑的外裝飾工程應選用抗老化、耐腐蝕性強的優質涂料(詞條“涂料”由行業大百科提供),同時也要從管理上杜絕以次充好、假冒偽劣產品的出現,從材料選擇上杜絕金屬板出現脫色、變色的現象。
5 結語
由于我國建筑幕墻發展過快,相關標準和工程管理對低水平的建筑幕墻工程管控不到位,導致出現諸多工程質量問題,尤其是鋼化玻璃自爆危及人身安全得不到有效解決,已經導致建設部和很多省市出臺了限制使用玻璃幕墻的規定,嚴重影響了玻璃幕墻的正常發展。其他幕墻工程質量問題不解決的話也后患無窮。因此,必須制定更嚴格的標準規范,強化工程質量責任追究制,有效解決建筑幕墻工程質量問題。
為了解決大量現場施工產生的人為質量缺陷,中國建筑科學研究院聯合國內眾多大幕墻公司和相關單位,正在編制中國工程標準化協會標準《裝配式建筑幕墻工程技術規程》,該規程將加強對鋼化玻璃自爆的管控,引入對大型裝配式幕墻設計、選材、加工、組合、安裝等的高標準要求,從根本上解決我國建筑幕墻工程質量問題,升級后的規程為進一步提高我國建筑幕墻工程技術水平創造條件。
參考文獻:
①GB/T 21086-2007,建筑幕墻
②JGJ102-2003,玻璃幕墻工程技術規范
③JGJ133-2001,金屬與石材幕墻工程技術規范
④我國建筑幕墻技術30年發展-黃小坤、趙西安等,《建筑科學》2013年11期
⑤S60框架幕墻系統自攻螺釘抗拉拔性能試驗研究和計算方法分析-曾濱、韓維池等,《工業建筑》2015年11期
⑥U80幕墻系統氣密和水密性能試驗研究-惠存、韓維池等,中國鋼結構協會結構穩定與疲勞分會第16屆(ISSF-2018)學術交流會暨教學研討會論文集
⑦幕墻用密封膠加速老化試驗方法研究-劉軍進,《中國膠粘劑》2018年08期
⑧超大單元式幕墻設計理念與關鍵施工技術-呂偉,《施工技術》2018年S1期
⑨行業標準《既有建筑幕墻可靠性鑒定及加固規程》(報批稿)
作者單位:中國建筑科學研究院有限公司-國家建筑工程質量監督檢驗中心
未經許可不得轉載