本篇文章內容由[中國幕墻網ALwindoor.com]編輯部整理發布:
摘要:近年來,隨著建筑遮陽和外觀造型的需要,建筑幕墻檐口和外側橫向懸挑構件越來越多,突出建筑立面(詞條“建筑立面”由行業大百科提供)可承雪的向上表面的尺寸越來越大,使得建筑幕墻冰墜傷害事故日漸增多,形成了社會公共安全的問題,引起了社會各界的關注。特別是堆積于高層和超高層建筑幕墻上的積雪和冰凌的墜落所產生的危險性和破壞力更大。針對建筑幕墻冰墜帶來安全事故和傷害,本文分析了幕墻冰墜的原因和降低冰墜傷害的措施,通過工程應用實例,設計了幕墻防冰墜的相關試驗方法,對防冰墜的措施和其他待確定的影響因素進行了探討。
關鍵詞: 建筑幕墻;冰墜傷害;幕墻冰墜試驗。

1. 引言
冰害,通常指由冰壩、冰塞、冰山、冰崩等造成水道堵塞和洪水泛濫,撞壞艦船,毀壞水中設施或建筑物,以及飛機、艦艇、電線等積冰帶來的災害,是自然災害之一。然而,落雪堆積于建筑屋檐或挑檐,在特定的條件下結成的冰凌(圖1),在融化過程中的墜落,也可能會對行人造成傷害或損壞建筑構件(詞條“建筑構件”由行業大百科提供)和其他物品,同樣也屬于冰害的范圍。
近年來,隨著建筑遮陽和外觀造型的需要,建筑幕墻檐口和外側橫向懸挑構件越來越多,突出建筑立面可承雪的向上表面的尺寸越來越大(有的甚至超過1.5米),這種建筑構造給落雪堆積和冰凌產生創造了條件,冰害的風險增大。特別是堆積于高層和超高層建筑幕墻上的積雪和冰凌的墜落所產生的危險性和破壞力更大。這種現象在我國的華中、華東以及偏北地區較為常見;夏熱冬冷地區雖然不具備長期積雪的條件,但是在特定氣候條件下,如:凍雨也會形成建筑幕墻表面結冰而形成冰墜。為此,每年各地政府都要發布防范冰凌及其危害的有關通知,并采取

圖1
相應的清除措施。在國外,建筑幕墻上的冰凌危害同樣存在,如2017年10月開業的芝加哥蘋果密歇根大道店開業不久就發生冰墜風險,并在建筑周邊立起隔離警示牌(圖2)。
針對幕墻表面積雪滑落和冰凌斷裂的冰墜給地面人員造成的傷害、車輛損壞和建筑損傷的危害,本文重點探討了建筑幕墻冰凌的形成因素,防冰墜的措施和構造設計,以及有關防冰墜的試驗方法。
2. 幕墻冰墜形成因素

圖2
2.1 氣候條件
幕墻冰墜的形成,其主要的因素之一,是在冬天較長時間的陰冷、潮濕、降雪或凍雨等寒冷氣候條件下,飄落在幕墻檐口或外挑裝飾構件上的雪、凍雨在溫度和壓力作用下逐步形成堅實的具有一定厚度的積雪、冰層或冰凌,當天氣轉暖或幕墻構件表明溫度上升時,堆積的積雪、冰層或懸掛的冰凌開始融化,形成塊狀或條狀的冰塊從幕墻檐口或外挑裝飾構件上墜落。
2.2 幕墻構造
建筑幕墻外側表面存在具有形成積雪積冰的條件也是幕墻形成冰墜的因素之一,如:屋面、雨棚、挑檐、較大的外窗臺和橫向裝飾構件的上表面;等(圖3)。采用向內側傾斜或有組織泛水的以上部位,可以避免或降低墜冰風險,但是在凍害嚴重的情況下,泛水通道可能堵塞,仍然可能在外沿形成冰凌而產生冰墜的可能。而向外泛水且坡度較陡的上表面,雖能減小冰雪堆積的機會,但反之,一旦受凍雨影響,也可能會增加冰塊滑落的風險。
2.3 風
高層建筑表面受風的影響較大,迎風處相對較難形成積雪,但是背風面反而有可能造成集聚,積雪厚度可能遠超過正常降雪量。同時,風對潮濕表面有降溫作用,可能在氣溫不是太寒冷的地區也在幕墻的局部表面形成結冰。另外,強風對不太牢固的冰塊和冰凌有震動破壞作用,可造成冰塊和冰凌的突然墜落。

圖3
2.4 幕墻隔熱(詞條“隔熱”由行業大百科提供)性能
幕墻表面溫度是影響成冰和墜冰的另外條件之一。在室外氣候條件和室內溫度影響下,幕墻表面會有較大的變化,特別是金屬表面。在嚴寒地區,幕墻表面溫度較高,冷雪反而容易粘附幕墻,且隨著表面溫度冷熱變化更易結成冰體,也更容易形成冰凌。氣溫不是太寒冷的地區,當建筑表皮溫度較低時,空氣中的冷濕潮氣和微雨利于在幕墻表面結冰。當幕墻表面受室內溫度影響升高時,會促使冰塊局部融化脫離幕墻表面,造成突然墜落。
3. 幕墻防冰墜傷害設計
目前,有關防冰雪融墜的應用大多集中在艦船、飛機、輸電線、涵洞等,主要手段是采用融雪電纜進行除雪除冰,對于幕墻防冰墜傷害的研究不多。采用融雪電伴熱系統,融雪電纜及控制系統較為昂貴,整體成本較高,在建筑上一般僅用于積雪量較大且可能影響排水的屋面等處,較少用于幕墻立面。如北京中船大廈屋面的采光天棚,就采用了融雪電伴熱系統進行融雪處理,圖4為安裝于采光天棚水槽中的融雪電纜和施工中的采光天棚。


圖4
建筑防冰雪融墜的問題,在國家標準《坡屋面工程技術規范》GB50693-2011中3.2.17條作為強制性條文規定,“嚴寒和寒冷地區的坡屋面檐口部位應采取防冰雪融墜的安全措施。”,并在條文說明中提出采用“攔雪柵欄或加寬檐溝”的安全措施。對于建筑幕墻的防冰墜規定,在現行的幕墻規范中均未有提及,而GB50693-2011提出采用的防冰雪融墜的安全措施也不能完全適用于幕墻的要求,為此應對幕墻防冰墜傷害的措施,特別針對幕墻檐口和橫向裝飾帶的構造設計進行研究和探討。
3.1 減少或避免積雪
1)減小承雪面寬度
在現有的幕墻外立面設計中,由于建筑遮陽和裝飾效果需要,幕墻立面上的橫向水平裝飾構件越來越多,而且外挑尺寸越來越大,這無疑給落雪堆積和冰墜危險的形成提供了條件。在建筑設計允許的條件下,應盡可能地減小橫向水平裝飾構件的承雪面寬度,降低冰墜風險。
2)涂裝防冰雪涂料
防冰雪涂料是一種新型的高科技特種功能涂料,在國內已有較多涂料生產企業在生產類似的產品。
適合多種表面和各種涂裝方法,可常溫自固化,在被保護表面形成30μm的干涂膜,即可防冰雪附著,同時具有抗腐蝕、耐磨損、防老化、表面自潔等復合功能,目前主要用于飛行器,船舶,電力線,電信線等需防冰雪結構。防冰雪涂料在建筑以及幕墻上作為防冰雪的應用尚未見有相關應用實例報道,但作為自潔凈涂料是早有應用。
表1

表2

從防冰雪涂料涂層的性能指標(表1、表2)和試驗結果分析,產品具有良好的理化性能,超低的摩擦系數。與普通的玻璃材料比較,涂層表面表現出了超低的表面能,其相對水的滑落性提高6倍,滑動時間縮短4倍,雪的滑動性提高4倍,滑動時間縮短3倍,這可以大大降低幕墻構件的積雪幾率。從產品性能看,物理性能基本適用于建筑和幕墻,具的防冰雪和自潔的性能。但在該產品的性能指標中,未有產品的耐候性能參數,也未見對外觀的影響,所以在具體使用前,應分析產品的耐老化性能和對外觀影響,尤其是長時間使用是否變色?多長時間需重新涂裝?等問題值得探討。同時幕墻設計宜匹配相應的坡度。
3)承雪面坡度
增加幕墻檐口和裝飾構件承雪面的坡度,是減少積雪

圖5
的主要措施之一。按照國家標準《建筑結構荷載規范》GB 50009-2012表7.2.1屋面積雪分布系數的規定(圖5),當屋面坡度從25o增大到60o時,其雪荷載分布系數由1.0降到0,這也意味著隨屋面(承雪面)坡度的加大,屋面積雪的幾率越小,當屋面坡度大于60o,應該認為不存在不積雪的可能。參照我司參與的一個美國紐約的幕墻設計項目,其橫向鋁合金裝飾線條的角度為50o的大斜面線條,起到了很好的防積雪作用,但其大斜度特征會限制外懸挑尺寸。
如采用放冰雪涂層,依照現有可查閱資料,在未經嚴格試驗確認的條件下,其承雪面臨界坡度約為8度。較緩的坡度,使得大懸挑線條成為可能。
3.2 設置攔雪坎和滴水線
在幕墻檐口或橫向水平裝飾構件臨邊一側設置攔雪坎和滴水線(圖6),其主要原理與GB50693第3.2.17條條文說明中提出的在臨近檐口的屋面上增設攔雪柵是一致的。其在氣溫升高時,冰雪底部融化,成片或塊狀的冰雪受攔雪坎的阻擋,避免沿著檐口或橫向水平裝飾構件的外傾坡度方向墜落;而底部的積水能夠沿著滴水線順利排出。攔雪坎和滴水線的設置,首先要控制好攔雪坎的高度;如果攔雪坎高度過低,積雪超出部分沿外側融化,易形成外掛的冰凌;過高影響外觀,也可能增加積雪幾率。其次是要在攔雪坎底部設計好通暢的排水系統,倒灌到幕墻增加滲漏(詞條“滲漏”由行業大百科提供)風險;也要避免緩慢滴水,下流排出時形成冰凌。


圖6
3.3 融雪電伴熱系統
近年來,我國在融雪電伴熱系統產品的生產有了很大的發展,產品質量有了較大的提高,造價也在不斷下降,這給幕墻用于防冰墜設計提供了較大的使用空間。在幕墻檐口和橫向水平裝飾構件的攔雪坎和滴水線處布置融雪電伴熱系,將極為有利于防冰墜效果的提升。如果能結合泛光等系統,可能進一步降低綜合成本。此問題需多專業配合進一步探討。
4. 幕墻防冰墜檢測方案探討
目前,建筑幕墻冰墜沒有試驗標準,如何通過模擬試驗對有關防冰墜設計的性能進行評價,尚無權威性評判依據,也無法對一些關鍵設計參數進行驗證,如:防積雪坡度、攔雪坎高度、滴水線排水口尺寸和積雪與不同材料的摩擦系數等。為了解決工程實際的需要,我司參考了建工行業標準《建筑幕墻熱循環試驗方法》JG/T 397—2012,制定了相關檢測方案,以便驗證有關防冰墜設計的可行性和實際效果,分析可能出現的不利情況,檢討是否有更優的方案。
4.1 模擬試驗條件
4.1.1 試驗設備要求
試驗設備應滿足《建筑幕墻熱循環試驗方法》JG/T397-2012的要求,設備熱循環能力滿足高溫80 ℃,低溫-20℃,輻照強度(詞條“強度”由行業大百科提供)1250W/m2。箱體內試件周邊需采用絕熱墻體封閉。試驗箱地面需設深色柔性不積水鋪裝,并帶精度為毫米的標尺(用于觀察冰塊尺寸)。
4.1.2 樣品要求
樣品應與實際工程中的截面大小、建筑師認可的材料相一致。樣品的施工及安裝方法也與實際施工現場的安裝相一致。
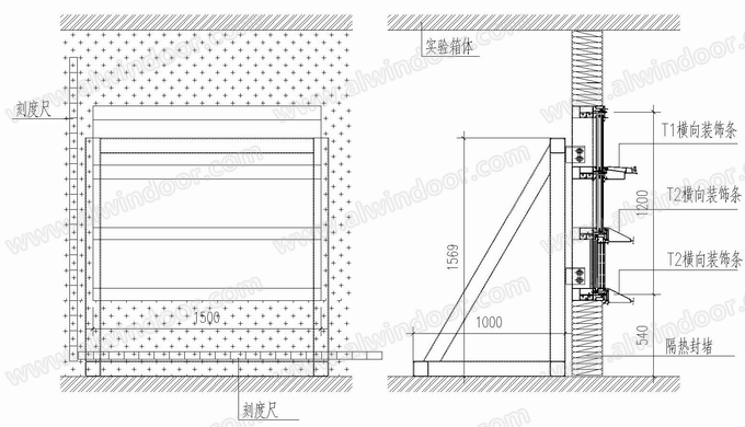
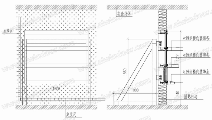
幕墻試件試件分為三組,兩組為設計檢驗組試件(圖7),上面一條采用T1橫向裝飾條,下面兩條T2橫向裝飾條;一組為對照組試件(圖8),上面一條上端泛水坡度約2%;中間一條上端泛水坡度約8%;下面一條上端泛水坡度約12%。

圖7

圖8
4.1.3 材料
人造冰/人造雪:人造冰直接市場購買,人造雪通過冰沙模擬。需提前按三倍用量備貨(本試驗不少于2立方米。),試驗前需在-10℃以下保溫。
4.1.4 觀察設備
采用視頻監控和定時攝影(不少于五分鐘一次)。負責觀察線條上下左右,及負責觀察墜落后冰雪塊體形態的,不少于五個視角。
4.2 試驗過程
4.2.1 試驗準備
試驗前,試驗箱體提前降溫至-10℃,并保持恒定溫度不少于2小時;在橫向裝飾條上側表面模擬自然降雪的積雪過程中(堆積人造冰沙或人造雪),外側可采用透明聚碳酸酯膠板臨時支護,自然堆砌刮平不得壓實,堆雪厚度必須均勻并符合以下尺寸:
1)設計檢驗組,上層分別為:300mm、250mm;中層分別為:200mm、150mm;下層分別為:100mm、50 mm。
2)試驗對照組,上層為:300mm;中層為:200mm;下層為:100mm。
4.2.2 無日照無凍雨工況模擬冰雪融化試驗過程
1)1小時內,將幕墻試件室外側氣溫均勻降低到-10℃,并保持恒定溫度1小時,幕墻試件室內側氣溫保持24℃;
2)1小時內,均勻將幕墻試件室外側氣溫升高至10℃,模擬冰層融化過程。幕墻試件室內側氣溫保持24℃,過程中通過視頻監控系統觀察冰層的融化過程;
3)重復以上1)、2)過程,直至所有冰雪融化。
4.2.3 無日照有凍雨工況模擬冰雪融化試驗過程
1)1小時內,將幕墻試件室外側氣溫降低到-10℃,并保持恒定溫度1小時;
2)每個線條均勻噴淋10ml/平方米的冰水,1小時內將幕墻試件室外側氣溫均勻降低到-10℃,并保持恒定溫度1小時,幕墻試件室內側氣溫保持24℃;
3)1小時內,均勻將幕墻試件室外側氣溫升高至10℃,模擬冰層融化過程。幕墻試件室內側氣溫保持24℃,過程中通過視頻監控系統觀察冰層的融化過程;
4)重復以上1)、3)過程,直至所有冰雪融化。
4.2.4 有日照無凍雨工況模擬冰雪融化試驗過程
1)1小時內,將幕墻試件室外側氣溫均勻降低到-10℃,并保持1小時,幕墻試件室內側氣溫保持24℃;
2)1小時內,均勻將幕墻試件室外側氣溫升高至10℃,室外輻射照度940W/m2,模擬冰層融化過程,幕墻試件室內側氣溫保持24℃。過程中通過視頻監控系統觀察冰層的融化過程;
3)重復以上1)、2)過程,直至所有冰雪融化。
4.3 試驗評價
1)于試驗后匯總試驗結果并生成文字報告(附照片)及視頻記錄;
2)分析冰雪融化規律和冰凌(如有)形成規律,含對應時間和尺度;
3)分析冰凌或融雪滑墜規律,含對應時間和尺度;
4)分析墜落冰雪的傷害風險;
5)當單粒墜落冰塊大于12mm時,應判定防冰墜效果未達標,設計需進行改進。
5.結語
本文通過對幕墻冰墜成因的分析,細化防冰墜設計注意事項,并在具體工程項目上進行了嘗試。受條件所限,部分內容未能充分解決,包括以下方面尚需更深入的研究和探討。
1、氟碳噴涂鋁合金材質,其防雪坡度臨界值在多大角度下不會積雪;
2、防冰雪涂料防雪坡度臨界值,其耐候性和維護周期等因素能否應用于幕墻;
3、試驗溫度等檢測參數如何與具體氣候對應;
4、熱循環時長擬定為1小時,是否合理可行;
5、墜落冰塊應以什么為判定合理,重量或尺寸;
6、融雪電伴熱系統能否與幕墻泛光系統的結合,或是一個更大的課題。
參考文獻
[1] 熊武一、周家法主編,《軍事大辭海·上》[M],長城出版社,2000年5月:第1157頁;
[2] 田發, 蔣海彪. 一種水性雙組份防冰雪涂料及其生產方法:, CN 103045064 A[P]. 2013.
作者單位:深圳市新山幕墻技術咨詢有限公司