本篇文章內容由[中國幕墻網ALwindoor.com]編輯部整理發布:
1.概述
港珠澳大橋澳門口岸管理區項目是舉世矚目的粵港澳三地跨境銜接工程-港珠澳大橋項目的重要配套工程。項目位于珠海拱北南側的珠澳口案人工島上,四面環水,與澳門半島隔水相望,因為工作的原因,筆者非常榮幸參與了本項目的幕墻技術工作。因為它的美麗風采,因為它的獨一無二,雖時過一載,仍值得筆者用文字記錄它的點點滴滴。

圖1 港珠澳大橋珠海、澳門口岸管理區俯視圖
澳門口岸管理區建筑面積超過60萬m²,主要包括一棟6層樓高的旅檢大樓、出入境車庫,以及市政外圍配套設施,建筑幕墻最大高度:46.476m,幕墻類型主要有玻璃幕墻、鋁板幕墻、鋁合金百葉、格柵玻璃等。本文重點闡述旅檢大樓工程中使用的鋁板(詞條“鋁板”由行業大百科提供)幕墻、開縫鋁板幕墻及屋頂鋁板遮陽蓬(詞條“遮陽蓬”由行業大百科提供)等系統。

圖2 旅檢大樓圖片
2.建筑立面鋁板幕墻的介紹
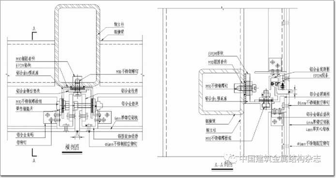
根據本工程建筑設計及構造的要求,外飾面板有鏤空雕花鋁板、實心鋁板兩種,均采用開縫式系統的做法。所謂“開縫式鋁板幕墻(詞條“開縫式鋁板幕墻”由行業大百科提供)系統”,是指在鋁板板塊的接縫處采用不打膠的工藝,通過開縫讓鋁板背后的空氣層能夠順暢的流通,可以起到良好的絕熱及吸聲效果,且在空氣層流通的過程中可以將冷凝水揮發掉。由于接縫處采用不打膠的工藝,減少了鋁板的表面污染,使鋁板表面保持長期清潔。常規采用打膠做法的鋁板幕墻,如果鋁板安裝或精度不足導致縫隙大小不一,可以采用打假膠縫的做法進行彌補,而不打膠的開縫鋁板幕墻只有通過提高安裝精度或設置更多的可調節構件(詞條“構件”由行業大百科提供)來彌補,本工程中,我們在構造設計上考慮鋁板可三維調節性,確保鋁板安裝精度高。幕墻構造節點做法如圖3所示。

圖3
本系統構造特點如下:2.1 因工程地處海島,工程環境復雜,大級別臺風頻發,且海邊腐蝕性特別強,在設計中要重點考慮幕墻安全性、耐久性、美觀性,因此在幕墻系統選材上留有一定的富余量,確保幕墻系統能抵抗十七級臺風,且幕墻構件盡量選用鋁合金型材,確保構件的耐久性。2.2 因立面效果的要求,鋁板分格為2000mmx2000mm,鋁板規格較大,海島風壓(詞條“風壓”由行業大百科提供)大,局部位置風荷載達到5.5kPa,經計算后實心鋁板采用4.0mm,具有中葡特色的鏤空雕花藝鋁板采用6.0mm鋁板,材質均為30003-H24。鋁板采用四涂三烤的表面處理方式,具有很好的抗腐蝕性能,局部立面圖片如圖4所示。

圖4 局部立面圖
2.3 鋁板面板與附框組合做成小單元板塊的形式,板塊的豎直方向通過掛接方式進行固定,橫向通過鋁板附框之間的插接固定,采用這種方法使鋁板的四邊都有固定,且鋁板單元可以自由伸縮變形,提高了鋁板幕墻的抗風壓能力的同時又避免了鋁板出現“鼓肚子”的情況的發生,如圖5所示。

圖5
2.4 在橫剖方向,板塊進出位的調節通過M10不銹鋼螺栓(詞條“螺栓”由行業大百科提供)與鋁合金“U”底座之間的移動調節;在縱剖方向,通過“L”型底座與不銹鋼螺栓端部鋁合金鋸齒墊塊之間咬合移動調節。2.5 為了使用鋁板的加強及安裝更有保證,鋁板與鋁肋及掛件之間均采用直徑6mm不銹鋼沉頭航空鉚釘(詞條“鉚釘”由行業大百科提供)進行機械固定,并根據計算確定鉚釘的間隔及大小。其加工工藝流程為:鋁板表面開沉頭孔→航空鉚釘固定→表面打磨→表面噴涂(詞條“表面噴涂”由行業大百科提供),噴涂完成后,鋁板的外立面效果良好。2.6 因鋁板系統為開縫式,如鋁板通過螺釘直接固定在鋼龍骨上,螺釘處容易耐腐,為避免這種情況的發生,采用在鋼龍骨內預埋鋼錨固套件的加工工藝,鋼錨固套件由圓鋼板與預攻螺紋鋼柱組成,其工藝流程為:鋼龍骨工藝孔加工→鋼錨固套件預埋焊接→鋼錨固套件臨時封口→鋼龍骨熱鍍鋅。待鋼龍骨安裝后,鋁合金底座用帶不銹鋼螺釘與螺紋(詞條“螺紋”由行業大百科提供)鋼柱進行固定,有效地避免了因螺釘直接固定在鋼龍骨上而出現腐蝕,鋼錨固套件預埋如圖6所示:

圖6
3.開縫鋁板及其連接的結構計算介紹
本工程的荷載計算遵循國標荷載規范的同時,還要遵循澳門特別行政區第29/2001號行政法規《建筑鋼結構(詞條“建筑鋼結構”由行業大百科提供)規章(REAE)》、澳門特別行政區第29/2001號行政法規《建筑鋼結構規章(REAE)》。旅檢樓建筑高度為32.0m,風荷載標準值(詞條“標準值”由行業大百科提供):Wk=4.113kpa,結構計算過程中,分別對鋁板幕墻的主次龍骨、鋁板面板、鋁板加強肋、鋁合金U型底座、鋁合金掛件、M10不銹鋼螺栓組、直徑6mm不銹鋼航空鉚釘等均進行驗算。由于版幅所限,下面僅選取鏤空雕花鋁板的計算進行介紹。鏤空鋁板規格為2000x2000mm,面板厚度t=6mm,金屬面板型號3003-H24,f1=100Mpa。荷載根據澳門政府法令第56/96/M號:《屋宇結構及橋梁結構之安全及荷載規章》進行荷載計算:陣風風速標準值:Vkh=46(Hz/10)0.12 +19 ,Vkh =71.856m.s-1 風壓標準值:Wkh = Vkh2/1632 ,得出:Wkh=3.164kPa,而風荷載標準值:Wk= Wkh(Cpe+Cpi),建筑物外墻之外風壓系數Cpe及內風壓系數Cpi可通過查表可得分別為:1.0,0.75。代入公式可得:Wk=5.537kPa。分析得出:利用澳門荷載規范計算出來的風壓比根據國標荷載規范約大30%。根據規范《玻璃幕墻工程技術規范》 JGJ 102-2003,計算出幕墻平面分布水平地震作用標準值:qEK =0.134KN.m-2,荷載組合有:Comby1=1.5 Wk+ 1.3×0.5×qEK , 得出:comby1=8.392 kPa,Combwy=1.0 Wk,得出:Combwy=5.537 kPa,將相關數據導入ANSYE之workbench軟件中,進行面板的分析。荷載設計值作用下面板的最大應力如圖7。

圖7
面板最大應力σa=53.2Mpa

圖8
撓度最大值:df=3.43mm
4. BIM技術的應用
我司BIM團隊依據施工圖按照旅檢大樓、通道樓等各系統類型為依據建立工作集,快速搭建LOD200模型直觀展示幕墻的真實表現,將模型與主體鋼結構、土建模型進行合模后,進行三維可視化、檢查碰撞、模型深化等工作,提前發現問題,并及時解決問題 。然后,用基礎模型結合最終幕墻施工圖的節點圖(詞條“節點圖”由行業大百科提供)深化建模,將所有的幕墻嵌板都通過參數來驅動幕墻表皮,達到自適應;對幕墻每一個桿件加入相應參數,模型構件的參數可以提取加工、定位所需的數據,依據需求制作加工圖、定位圖,此階段模型深度已達到LOD400,這些模型工作,為我司設計外觀擬合、下單、施工管理帶來了極大的方便。下面以旅檢樓屋頂飄帶遮陽棚處為例進行介紹。
4.1 BIM技術在屋頂飄帶遮陽棚處的應用旅檢樓的屋頂飄帶遮陽棚在外立面呈現為流動變化的曲面,造型豐富、視覺沖擊效果比較強,由于構造復雜,技術要求高,工序較多,施工難度增大。為了精準定位下料、實現項目精細化管理,保證工期、質量,我司使用REVIT模型和Rhino模型提取幕墻鋼龍骨構件、面板板塊的加工尺寸及數量、編號,結合現場施工進度分批次運到現場。

圖9 旅檢樓BIM模型
由于漸變的遮陽棚的形態異樣構造與鋼結構有發生交叉關系,使幕墻鋁板的設計、制作加工難度加大,我們采用 Rhino軟件中的插件Grasshopper快速生成鋁板表皮,通過其參數化設計,能非常精準地劃分鋁板表皮分格,同時可以提取鋁板板塊定位信息(空間三維坐標)。并分析曲面存不存在不共面的情況,如果存在不共面的地方,可以把單曲優化成平板。同時可以取出鋁板與鋼架交接截面線,作為此處鋁板銑口依據,通過對該模型的分析得到的數據我們可以看出是否存在異型板塊,這樣為我們提供鋁板加工圖制作提供了大大的方便,并且通過提前擬合,可以確保建筑效果。

圖10 遮陽棚模型分區 圖11 GH電池組
通過上述分析、擬合后,按模型導出來的數據生產鋁板面板,每塊鋁板都按照模型編號進行編碼,并放置在通過BIM模型合理布局的區域。安裝時,先通過模型將面板所對應的編號及位置,轉化為圖紙交到施工隊手中,工人借助現場吊車將面板運送至安裝位置,再通過全站儀進行面板定位,確定已調正位置后,按照一定的間距用螺釘固定在鋼龍骨上。當每一塊安裝完成時,都進行檢查、調整、校正、固定,使其符合質量要求,保證整個遮陽棚的外觀效果。

圖12 遮陽棚施工中照片
另外,在現場的施工管理中,我們利用BIM技術對各個環節進行了施工控制,利用模型虛擬施工中遇到的安全、質量、進度、成本、碰撞問題,并提前采用事前預防、事中監控、事后處理的全過程監控措施,起到了良好的效果,節約了工程成本,保證工程質量和進度。最后,在項目的竣工移交后提交一版本項目LOD500階段竣工模型給總包單位,總包單位對單位的模型進行合模以完成竣工最終模型,為今后幾十年的項目運營維護管理提供數據支持。港珠澳大橋是我國重點戰略性工程,它的重要性不言而喻,為確保項目的整個壽命周期內的可靠性,我們每一個環節都精雕細刻,采用可靠的先進技術進行設計、施工,使得工程的各項性能指標都取得了良好的效果,在2018年9月16日17級臺風 “山竹”中經受住了考驗,得到了社會的認可。隨著科學的發展,技術的進步,幕墻技術也日新月異,我們應充分學習并利用先進的科技手段來分析、解決問題,不斷地研究、不斷應用,不斷地總結,不斷地提高幕墻應用技術,為我國的幕墻技術的進步添磚加瓦。
參考文獻
[1]GB5009-2012 建筑結構荷載規范[S].北京:中國建筑工業出版社,2012.
[2]GB/T51212-2017建筑信息模型應用統一標準[S].北京:中國建筑工業出版社,2017.
[3].JGJ133-2001玻璃幕墻工程技術規范[S].北京:中國建筑工業出版社,2003.
[4]張芹(詞條“張芹”由行業大百科提供).新編建筑幕墻技術手冊[M].濟南:山東科學技術出版社,2003:20-51
[5]李云貴、何關培、邱奎寧.建筑施工BIM應用指南[S]. 北京:中國建筑工業出版社,2007.
[6]T/CBDA-3-2016 建筑裝飾裝修工程BIM實施標準[S]. 北京:中國建筑工業出版社,2016.