1、 工程概況
?诿捞m國際機場二期擴建工程新建旅客航站樓,建設規模為地上4層(局部5層),地下1層,總建筑面積約30萬㎡,建筑高度33.74米。該工程由航站樓中心區主樓、西南指廊、西北指廊、東南指廊、東北指廊五部分組成。航站樓東西向總寬度 750 米,南北向總進深約為 405 米,主樓進深196.75 米,幕墻面積大約11萬平方米(如圖1)。

圖1 項目整體效果圖
本項目幕墻工程主要包括以下幾個系統:
A、主立面大裝飾條(詞條“裝飾條”由行業大百科提供)玻璃幕墻系統,A1子系統:陸側入口玻璃幕墻,A2子系統:空側玻璃幕墻 ;
B、內庭拉索玻璃幕墻系統;
C、中央商業街、指廊高側幕墻系統,C1子系統:中央商業街高側玻璃幕墻;
D、采光帶玻璃幕墻系統,D1子系統:中央商業街玻璃采光帶;
E、首層外幕墻系統,E1子系統:VIP出入口及外幕墻(中心區陸側),E2子系統:中心區遠機位出發及到達玻璃幕墻(不含VIP出發及到達部分);
F、出入口門套(詞條“門套”由行業大百科提供)及雨蓬幕墻系統,F1子系統:陸側三層連橋門斗及玻璃雨蓬、首層地下服務車道出入口雨蓬, F2子系統:陸側中心區首層鋁板門斗,F3子系統:首層陸側和空側VIP雨蓬,F4子系統:中心區登機口門套, F5子系統:陸側中心區二層入口玻璃廳幕墻;
G、幕墻和采光頂內遮陽(詞條“遮陽”由行業大百科提供)系統,G3子系統:中央商業街采光頂固定水平內遮陽;
基本風壓 0.75kN/㎡(50年一遇)
地面粗糙度類別 B類
抗震設防烈度(詞條“抗震設防烈度”由行業大百科提供) 7度(0.15g,基于本工程設有減震措施降低一度設計)
風荷載以風洞試驗報告及規范計算最不利情況取值; 幕墻設計使用年限為25年,幕墻結構設計(詞條“結構設計”由行業大百科提供)使用年限為50年。
2、 A系統主立面大裝飾條玻璃幕墻系統介紹
機場航站樓幕墻具有如下特點:通透性強;無樓層,豎向跨度大;有遮陽、通風、排煙等功能要求。毫無疑問,海口美蘭機場更加注重幕墻的簡潔、通透性,著重強調豎向效果,與其它大型機場航站樓不同的是,本工程未設置大橫梁裝飾條,而采用了外突出大鋁合金立柱玻璃幕墻系統,由大鋁合金立柱承擔主要的玻璃幕墻風荷載,立柱與大間距(9-11米)的鋼橫梁連接,保證了航站樓整個玻璃幕墻外立面的新穎、簡潔、通透,同時實現了玻璃幕墻系統結構、裝飾、遮陽的一體化(如圖2)。

圖2 主立面豎向大裝飾條玻璃幕墻系統效果圖
大裝飾條鋁合金立柱寬度150mm,高度500mm,其中位于室外玻璃面之外的為415mm,室內只有65mm的鋁合金扣蓋,最大程度地節省了室內空間,也較好地提升了室內的視覺效果。從室外看,間距約1800mm、突出玻璃面415mm的大裝飾條形成了一個直紋曲面的立面,實現了建筑的幾何邏輯。由于大裝飾條兼作主要的結構構件,而且由于采用了無橫梁設計,面板固定在左右兩側立柱之上,面板的受力方式為對邊簡支板,本項目無橫梁大裝飾條鋁合金立柱的設計也較大地降低了工程成本(如圖3)。

主立面大裝飾條玻璃幕墻三維圖(圖3)
本項目玻璃幕墻采用豎明橫隱構造形式,豎向大裝飾條鋁合金立柱作為幕墻豎向受力構件(詞條“構件”由行業大百科提供)承擔幕墻玻璃的水平及豎向荷載,本系統玻璃水平寬度約1800mm,高度3000mm,主要玻璃配置為12(雙銀Low-E)+18A+12 鋼化中空超白Low-E玻璃,為保證安全性,旅客可接觸到的玻璃為12(雙銀Low-E)+12A+8+1.52SGP+8 鋼化中空夾膠超白Low-E玻璃;鋁合金裝飾條最大長度為11m,固定在水平鋼梁上,上下兩根鋁合金裝飾條采用長1000mm的鋁合金芯套連接。玻璃幕墻水平采用無橫梁設計,玻璃與玻璃水平連接位置只需要在室內外打密封膠即可,膠縫寬度為20mm,玻璃與立柱之間打硅酮結構密封膠,這種構造體系由于玻璃的嵌固作用使玻璃與立柱之間形成良好的抗側能力(如圖4),便于嚴格的控制側向變形,通過動態風壓試驗證明,模擬15級臺風( 46.2—50.9米/秒 ),相當于側向施加的風壓為1.57 KPa,側向位移為幾乎為0(如圖4)。
根據結構荷載規范計算及風洞試驗報告,本工程建筑幕墻抗風壓變形性能取大值為4級,但實際做試驗按風壓值3.822KPa檢測的幕墻系統的抗風壓性能,完全滿足試驗要求。

動態風壓測試側向位移效果圖(圖4)
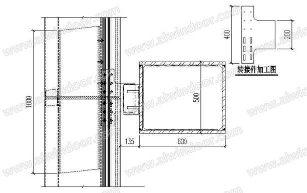
A系統大立面鋁合金裝飾條立柱作為主受力構件,與幕墻水平鋼橫梁采用26mm厚鋼板連接,預先將兩塊豎向鋼板現場放線定位焊接在水平幕墻橫鋼梁上,將單片豎向鋼板與預先焊于水平鋼橫梁的雙鋼板定位焊接,再將此鋼板與鋁合金裝飾條立柱上端通過不銹鋼螺栓組連接,上下立柱之間采用1000mm鋁合金插芯緊密連接,上端立柱的底部與鋼板連接開圓孔,下端立柱頂部與鋼板連接開長圓孔,實現幕墻伸縮變形的同時滿足坐立式立柱的受力形式(如圖5)。

立柱與鋼結構橫梁連接圖(圖5)
3、A系統傳力路徑及鋼柱連接機構設計介紹
幕墻玻璃面板為雙邊固定簡支板,所受到的水平荷載傳遞到大裝飾條鋁合金立柱,所產生的豎向重力荷載通過角碼也傳遞給大裝飾條鋁合金立柱,立柱將荷載通過連接鋼板傳遞給水平幕墻鋼橫梁,再傳遞給大鋼柱,大鋼柱間距18米,玻璃幕墻傳力途徑為:水平荷載—玻璃面板—豎向裝飾立柱—連接鋼板—水平幕墻鋼橫梁—大鋼立柱—頂、底部主體結構。
豎向荷載—玻璃面板—豎向裝飾立柱—連接鋼板—水平幕墻鋼橫梁—大鋼立柱—底部主體結構。
大裝飾條鋁合金立柱大部分位于室外,突出玻璃面約415mm,大裝飾條鋁合金立柱也會傳遞側向風荷載給橫向及豎向鋼結構柱,再加上側向地震作用,鋼結構柱受到的各種荷載需要傳遞到主體結構,底部為主體混凝土結構,鋼柱底部用銷軸及耳板連接(如圖6)。

(圖6) (圖7)
航站樓上部屋頂為網架結構,由于網架結構在周邊存在豎向位移,玻璃幕墻也有沿側向的水平位移,因此玻璃幕墻為了有效地將風荷載傳遞給屋頂主體結構,幕墻鋼柱頂部就需要設計一種能適應以上兩種位移能力又可以傳遞水平風荷載的連接機構(如圖7)。
整體幕墻結構系統上下處于混凝土結構與屋頂鋼網架之間, 剛性較大的混凝土結構與屋頂鋼網架平面(詞條“平面”由行業大百科提供)外體系之間會存在上下變形不一致的問題,幕墻鋼結構與屋頂鋼網架結構不在同一高度,受到的水平風荷載會對網架產生較大的彎矩,屋頂鋼網架能抵抗的彎矩能力有限,對水平軸向方向受力較好,設計時將水平連桿位于網架節點中心連線。這種連接結構能適應上下變形且只傳遞水平軸向力給屋頂網架結構。在側向風荷載和側向地震力作用時,幕墻結構與屋頂網架結構又有相對上下位移且左右方向變形不一致的問題,這種連接結構就要有一定的左右方向轉動且傳力的能力,這就是此種為多向可轉動型連接機構的由來(如圖8)。
此種為多向可轉動型鼓型機構能上下轉動一定的距離,左右轉動一定的距離,傳遞給屋頂鋼網架的只有水平軸向力,不承受幕墻豎向荷載,重力釋放最后傳給混凝土樓板(詞條“樓板”由行業大百科提供)。為了減少網架連接支座局部應力,設計了兩個對應的斜向連接支座,用以分散支座反力。

多向可轉動型鼓型機構連接節點圖(詞條“節點圖”由行業大百科提供)(圖8)
多向可轉動型鼓型機構的設計經過實驗的檢測,完全滿足受力要求,通過100T液壓試驗機檢測,當模擬荷載作用時,試件幾乎完好無損(如圖9)。

多向可轉動型鼓型機構試驗圖(圖9)
4、BIM技術在項目中的運用
本項目設計采用了大量的BIM技術:①建立三維模型,將整個機場的設計思路及效果展示在所有人的面前;②碰撞問題的協調檢查,幕墻的構件與鋼結構單元的布置、與給排水的管線等的交叉問題的解決;③采光頂幕墻整體排水的設計,排水路徑的表達;④A系統等幕墻玻璃及構件的下單統計;為整個工程的設計及實施提供了巨大的支持(如圖10、11、12)。

主立面大裝飾條玻璃幕墻系統BIM模型效果 (圖10)

A系統立面BIM模型局部效果圖(圖11)

采光頂及高側立面BIM模型局部效果圖(圖12)
5 、結語
大型機場航站樓建筑幕墻設計具有結構跨度大、平面空間造型復雜等諸多特點,?诿捞m機場的設計包括通過設計的創新,幕墻各個主次結構桿件及其連接件的認真分析,幕墻結構與主體結構的傳力分析及其連接構造,既要把幕墻結構的荷載安全可靠的傳給主體結構,又要適應主體網架結構的各種位移,將大跨度結構與幕墻技術完美結合,為裝飾形大立柱無橫梁系統再添濃厚一筆,為機場航站樓幕墻工程的復雜結構傳力體系提供新的思路。
參考文獻
花定興,大型機場航站樓建筑幕墻設計關鍵要點分析;《鋼結構建筑工業化與新技術應用》中國建筑出版社2016.4