本篇文章內容由[中國幕墻網]編輯部整理發布:
開放式的鋁板幕墻系統產品由來已久,最初由德國阿魯克邦研發的鋁塑板的外加扣蓋膠條形式的開放式結構體系,由于不是防水結構體系,就需要在鋁板背面增加防水雨布或鍍鋅板來解決結構防水問題,相對來說應用的材料過于復雜,不能通過結構設計(詞條“結構設計”由行業大百科提供)來完成其應滿足的性能要求,同時鋁塑板的角部處理不如鋁單板,鋁單板可以焊接打磨處理,鋁塑板存在二次加工中的一些缺陷,它本身也不是真正的開放式的鋁板幕墻系統。筆者在設計和施工太倉舍弗勒項目就是釆用該系統技術,包括早期的掛件式的鋁單板或是鋁塑板結構系統的應用。總之隨著科技的進步與發展,開放式鋁板幕墻體系的創新也是層出不窮地。
一、釆用鋁單板材料的優勢
國內的一些企業研發也是研究鋁單板式的開放結構系統,鋁單板的優勢是可以任意折彎和焊接,制做各種板型及角部焊接及打磨處理,減少結構上的缺陷,可以控制鋁板對角線的加工偏差及幾何形狀的完整性,鈻單板材料可以增加板型的靈活性的應用,對于實現真正開放式的結構系統設計有很大幫助,同時板型裝飾面表面處理釆用氟碳噴涂(PVDF),三涂二烤工藝來完成,實現裝飾面的膜厚能夠達到大于等于40um,保證其耐候及抗腐蝕(詞條“腐蝕”由行業大百科提供)等性能指針,工廠加工后可以直接運輸到項目現場施工上墻,可以減少加工周期,提高工作效率,實現快速安裝和裝飾效果。
對于鋁板基材(詞條“基材”由行業大百科提供)材質的選擇是有講究的,而且很關鍵,現在許多生產廠商為了搶訂單,過度壓低市場價格而釆用1系列的基材,導致強度、平整度不能滿足要求等一系列問題,因此要求做好這種開放式的鋁板幕墻的裝飾面板,對于供應商最基本的要求是釆用大于或是等于3系或是5系的基材,同時要保證板的厚度要求,這樣就是既可以保證平整度又可以保證強度,實現產品的安全可靠性能。
我們的產品系統現在也是產品創新升級到了一定程度了,需要重新的認真思考,如何實現全部的開放體系,同時還要保證防水性能,主要的難點是女兒墻壓頂板和窗戶洞口的邊部結構處理,需要理論與實踐相結合,通過系統工程理論加以實現,恰恰我們在設計施工博爾豪夫(無錫)緊固件(詞條“緊固件”由行業大百科提供)有限公司新建工廠的一二三期的外墻開放式的鋁板幕墻中得到實現,并得到業主的認可。
二、開放式鋁板幕墻的應用
開放式鋁板幕墻體系研發應用到至今有一段時間了,我們應用該項專利技術產品的項目也有十幾項,卡爾邁耶(常州)有限公司新建工廠、上海博世大廈、江蘇恒立高壓油缸股份有限公司新建工廠、博爾豪夫(無錫)緊固件有限公司新建工廠及技改項目、瓦盧瑞克鋼管廠等德企項目為主要客戶,在項目設計施工中實現了幾個技術難點的突破,實現全部開放式的系統,這對于我們來說是產品品質升級又邁進一大步,所以應當進一步將該產品應用到內資項目中進行推廣,實現產品的品牌提升。


該結構節點為鋁塑板壓蓋結構,橫豎連接方式一樣,太倉舍弗勒、博爾豪夫四期項目均釆用該系統,所以解決防水性能就要釆用鍍鋅板+EPDM的防水雨布,墻體增加100mm厚保溫棉,才能形成一整體結構。

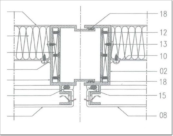
三、開放式的鋁板幕墻的結構形式
該系統為平板結構的開放式鋁板幕墻,其造型設計美觀,對系統的尺寸精度要求很高,具有產品的品質的獨特性。
4
該系統為單元板塊式的開放式的鋁板幕墻結構,由于釆用單元結構板塊,適合中高層建筑上的應用,但價格會比較高,可以大板塊施工和安

該系統也是單元體系開放式的鋁板幕墻結構,由于進行簡化結構,其功能性能保證應當還可以的,主要解決好抗風壓和防水性能。

該結構為我司研發的開放式的鋁板幕墻結構系統,只是許多結構簡單化了,同時也復雜化的一種結構,看似簡單的結構,其中的奧妙很多的。


四、工程案例的應用

博世大廈實體效果

這個圖片主要是卡爾邁耶(常州)有限公司的辦公大樓,也是建筑節能的案例,這個建筑主要釆用開放式的鋁板幕墻系統設計結構,分格為3.0mX0.6mX3.0mm的鋁板,并在窗戶上釆用了窗臺板結構,充分利用鋁板系統解決防滲漏水問題,雨蓬也是釆用開放式的鋁板設計結構,同時門窗也是大固定大開啟,最大開啟窗尺寸做到了1.25mX1.8m的分格尺寸,釆光及通透性特別好的特點。

卡爾邁耶項目辦公樓外入景
江蘇恒立高壓油缸股份有限公司同樣釆用開放式的鋁板幕墻設計理念,分格尺寸比較大為3.0mX0.95mX3.0mm,建筑的設計理念風格與博世相似,面積也比較大。




埃斯維(蘇州)機床有限公司項目中鋁板,全部釆用大分格,標準分格尺寸為6.0mX1.0mX4.0mm和9.0mX1.0mX4.0mm面板尺寸超長,同樣為開放式的設計理念,有些關鍵的技術突破。


該項目為博尓豪夫(無錫)緊固件有限公司辦公樓,同樣釆用了開放式的鋁板幕墻設計系統,實現全部開放式的幕墻結構,大面的分格為2.2mX0.6mX2.5mm的鋁單板,從根本上解決結構性的防水,整體效果簡潔大氣的效果。

以下幾張圖片為與窗接口的節點及項目的整體的效果圖

門衛室及包柱板效果

門牌及辦公樓與玻璃幕墻的效果
結論
通過以上的描述對開放式的鋁板幕墻系統應用有所了解,該產品可以實現全部開放式結構系統,包括壓頂的結構再重新設計與應用,該產品應廣泛應用于辦公樓、寫字樓等項目,是一種值得信賴的產品,只有專業才能創造價值,科技創新改變生活和世界。