一、引言
目前,建筑師在建筑上采用了比較新穎的金屬鎖扣板為裝飾面料,這種體系在歐洲是比較常見的斜屋面做法,具有很好的裝飾性和防水性能。平鎖扣金屬板系統層次感強,視覺效果突出,具有古典建筑風格;系統安裝簡便,用扣件固定在下層支撐結構上,無需繁雜的機械安裝;平鎖扣系統幾乎可以適合在絕大部分形狀的建筑物表面安裝(幕墻和地面的夾角不小于25°)。鎖扣板可以實現建筑設計的幾何多樣化,鎖扣板的材質也有很多選擇,比如鋁板、鋅版、鈦板、不銹鋼板、銅板等,不同的材質配合不同的表面處理,可以實行豐富的建筑效果。通過幾個工程的實踐,平鎖扣金屬板體系、幕墻收邊防水做法等可以在后繼的工程中借鑒、推廣、應用。
二、建筑工程概況:
2.1北京民生美術館工程概況
北京民生美術館項目位于北京市朝陽區北京彩色顯像管廠廠區內,南鄰酒仙橋北路,地屬798藝術區。其結構類型為框架剪力墻鋼筋混凝土、局部鋼結構,地下一層,地上2層,局部3層,總幕墻面積約11852 平方米。由朱锫建筑設計咨詢(北京)有限公司與北京市建筑設計研究院有限公司共同進行建筑設計。建筑在保留了原工業建筑的粗曠,質樸與真實的基礎上,融入了當代藝術的細膩,豪放與奢華,順勢而為,無用之用,將建筑與藝術進行了完美的融合。目前,北京民生現代美術館正在以其開放性、多元性、靈活性成為中國當代藝術的最大公共平臺。
2.1.1北京民生美術館項目幕墻形式的簡單介紹工程基本特點
為了突出建筑的表現力,設計師通過不同的幕墻形式,賦予了陳舊的工業廠房新的生命力。北京民生美術館幕墻項目的幕墻形式主要包括:明框透明玻璃幕墻系統,明框磨砂玻璃幕墻系統,金屬鎖扣板幕墻系統,玻璃采光頂、采光天窗系統,鋁單板金屬幕墻系統以及直立鎖邊金屬屋面系統(詞條“金屬屋面系統”由行業大百科提供)。
2.1.2金屬鎖扣板在北京民生美術館項目上的分布
北京民生美術館項目包括舊樓改造部分和新建部分,建筑師在建筑上采用了平鎖扣金屬板為裝飾面料,在原有的工業建筑改造上,金屬鎖扣板與原混凝土直接收口,預留了原工業建筑的粗獷與質樸;在新建建筑體上及火山口部分,金屬鎖扣板錯落有致的分割效果極具裝飾性。金屬鎖扣板在北京民生美術館上的分布見下圖2.1:

圖2.1金屬鎖扣板的分布效果圖
三、 金屬鎖扣板的系統說明
金屬鎖扣板是通過固定形式的金屬板折邊后相互搭接形成的瓦狀結構,金屬鎖扣板系統按其鎖扣樣式不同具體可分為直立鎖邊系統、內鎖扣系統、平鎖扣系統等。
3.1直立鎖邊系統說明
直立鎖邊金屬面板通過機械加工形成公母扣,然后通過機械咬合或手工咬合成型,使得不同的金屬板塊被聯接,并通過隱藏在內部的扣件將金屬面板與基層固定.直立鎖邊系統是一個傳統的安裝系統, 按咬合程度分為單鎖邊和雙鎖邊兩種形式,通常屋面用雙鎖邊,墻面和吊頂用單鎖邊。
3.2內鎖扣系統說明
內鎖扣系統屬于開放式雨幕體系(即墻體內有通風空間),墻板用隱藏的扣件和螺絲安裝于框架結構之上.連續純凈的平直線條展現出結構性的圖案美感,強調了建筑物的體量和魅力。
3.3平鎖扣系統說明
平鎖扣系統金屬板塊四邊采用簡單的折邊互相咬合,使用隱蔽式的扣件和螺絲安裝,不同方式的板型排布,能夠表達出不同的美學形式.平鎖扣系統分為浮雕式和嵌入式兩種加工形式。平鎖扣金屬板按其形狀又包括方形和菱形兩種。
3.3.1平鎖扣系統的特點及分類
在北京民生美術館項目上應用的金屬板為嵌入式的平鎖扣金屬板,平鎖扣金屬板正面有凸起邊緣,背面有凹向邊緣,結合簡單。特定形式的平鎖扣金屬板由工廠專用設備沖壓形成,精度(詞條“精度”由行業大百科提供)很高。由于平鎖扣金屬板通常來說規格不大,因此通過互相鎖扣可以完成復雜的幾何造型。嵌入式的平鎖扣金屬板按其形狀包括方形和菱形兩種。其基本構造見下圖3.3.1:

圖3.3.1平鎖扣系統經典構造示意圖
3.3.2平鎖扣金屬板與內層的搭接
平鎖扣金屬板與內層的搭接包括防水層、保溫層,吸音層、裝飾層等構造,其基本構造中的鋼板找平層固定在壓型鋼板上,不僅用于平鎖扣金屬板的固定,而且與下層的壓型鋼板可作為系統的面層剛性防水層;平鎖扣金屬板與壓型鋼板之間的防水材料為一道柔性防水層;壓型鋼板下的保溫層,其保溫棉的厚度可根據工程的節能要求設置;室內側可根據建筑需求設置吸音層,吸音層由吸音棉與穿孔板組成;室內側也可設置內裝飾層,內裝飾層可用GRC板或者其他面板完成。
3.3.3平鎖扣金屬板的加工
平鎖扣金屬板可在工廠預先加工成型,由于采用工廠專用設備沖壓形成,其重復精度高、規格一致,可高效成批生產符合要求的金屬鎖扣板,其標準版型見下圖3.3.3:

圖3.3.1平鎖扣成型金屬板(矩形、菱形
3.3.4平鎖扣金屬板的安裝
平鎖扣金屬板的安裝為面板之間上下搭接咬合,就如同傳統瓦式屋面中的瓦片之間的安裝。例如菱形鎖扣板的安裝,菱形板利用金屬扣件固定,板與板之間相互咬合,菱形板的咬邊為上下搭接的關系,利于排水,其構造可形成一道防水體系,其安裝示意見下圖3.3.4:

圖3.3.4平鎖扣金屬板的安裝示意圖
四、 平鎖扣金屬板在本工程中的應用
本工程采用有金屬光澤,抗氧化性好的鋁鎂錳合金板作為金屬幕墻面材。應用的平鎖扣金屬板主要有以下三個體系:
4.1原建建筑墻面上梁柱之間的方形平鎖扣金屬板
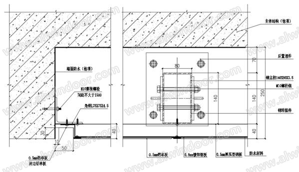
方形平鎖扣金屬板分布于北京民生美術館的南立面東西兩側及庭院東西立面的舊建筑改造部分,位于原建筑梁柱之間。由于原建筑存在較多設備用地腳,單梁吊車支座、軌道地基等原有結構,同時在舊建筑采光窗(詞條“窗”由行業大百科提供)拆除后,建筑洞口存在邊界不齊,形狀不規整,大小尺寸不統一等問題,需要處理好鎖扣板與混凝土的交接。方形平鎖扣金屬板主要是起到裝飾與防水的作用,保溫由原建筑的砌體完成,方形平鎖扣金屬板分布于混凝土之間。墻面方形平鎖扣金屬板的基本節點(詞條“節點”由行業大百科提供)見下圖4.1:

圖4.1墻面方形平鎖扣金屬板的基本節點示意圖
由于不考慮保溫與內裝的效果,此體系并不是常規的做法,需要引起重視的是金屬鎖扣板與周邊混凝土的交接處理方式,如處理不好其交接位置極易出現漏水,我們的處理方式是在砌體上先做沙漿及SBS防水涂料,鎖扣板的防水卷材在邊部與內層防水層搭接,但由于是舊樓改造項目,原結構混凝土表面平整度較差,與金屬鎖扣板之間如果采用對口的方式無法實現比較美觀的效果。通過與建筑師的交流,確定在邊部預留50mm的槽口,金屬板內嵌,這樣既可解決混凝土不整齊的收口問題,又能解決防水層搭接的處理問題。具體做法見下圖4.1.1:

圖4.1.1墻面方形平鎖扣金屬板的收口節點示意圖
方形平鎖扣金屬板在北京民生美術館原有建筑改造上,金屬鎖扣板與原混凝土直接收口,不僅預留了原工業建筑的粗獷與質樸,而且金屬鎖扣板的細膩與精巧也充分的展現了出來。建成后的舊樓改造部分效果見下圖4.1.2:

圖4.1.2墻面方形平鎖扣金屬板的效果圖
4.2新建建筑墻面上的菱形平鎖扣金屬板
菱形平鎖扣金屬板分布于建筑中部新建造型及屋頂火山口部分的立面與斜屋面,其立面的典型的形狀見下圖4.2:

圖4.2菱形平鎖扣金屬板的典型形狀示意圖
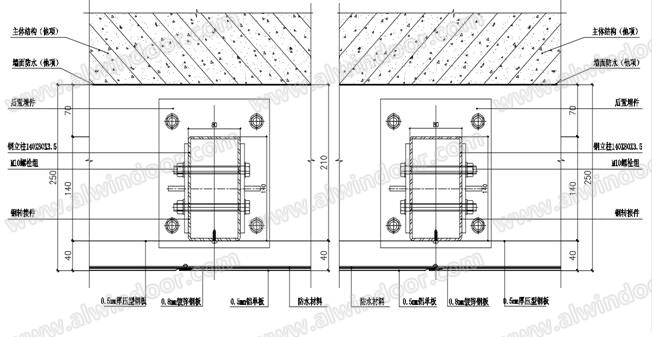
由于新建建筑的外立面的各面之間的夾角各不相同,外形多樣,拐角縱多。但是采用菱形平鎖扣金屬板可解決拐角問題,平鎖扣板在轉角處通過金屬板直接折邊,有連續性,能夠適應各面之間的轉換。由于是新建建筑,需要考慮保溫及室內的處理方式,因此在菱形平鎖扣金屬板后面增加了保溫層,根據需要還可以增加室內吸音層及裝飾層。墻面上的菱形平鎖扣金屬板基本節點做法見下圖4.2.1:

圖4.2.1菱形平鎖扣金屬板基本節點示意圖
菱形平鎖扣金屬板在北京民生美術館現有鋼制結構上的應用,幕墻外形整潔,拐角處理規整,其整體造型完美的呈現在眼前,建成后的新建金屬幕墻效果見下圖4.2.2:

圖4.2.2新建建筑體菱形平鎖扣金屬板的現場圖片
4.3新建建筑斜屋面及吊頂上的平鎖扣金屬板
斜屋面及吊頂位置與立面情況相似,由于新建建筑的外立面與水平面夾角各不相同,同時綜合了立面、屋面、吊頂等多種形式。菱形平鎖扣金屬板可在轉角處通過金屬板直接折邊,能夠適應各面之間的轉換。立面與屋面及吊頂之間的過度自然,建筑物的外形整體性高,能夠將建筑師理想的建筑外形完美的呈現。

圖4.3斜屋面及吊頂平鎖扣金屬板現場圖片
建筑中部新建造型的斜屋面及吊頂部位分布為菱形平鎖扣金屬板,如下圖完工后的效果所示,見圖4.3。
五、 平鎖扣金屬板系統的特性
平鎖扣金屬板系統是比較成熟的墻面與屋面體系,平鎖扣金屬板不僅適用于平直墻面、弧形墻面及屋面系統,還可以用于吊頂等系統,當設計為斜屋面時可適用于25%以上的坡度。平鎖扣金屬板的排布方式也是多種多樣,可適用于橫向、豎向以及菱形排布。平鎖扣金屬板系統外裝飾層上的選擇非常豐富,鋁鎂錳板、鋅板、銅板、鈦鋅板、不銹鋼板等延展性好的、耐候性佳的材料都可以選擇。平鎖扣金屬板的厚度可為0.5、0.7、0.9等,平鎖扣金屬板的規格也可以根據建筑師的要求進行調整。通常的規格在600mm以內,過大的板將導致其平坦度下降,而且由于扣件只能分布于四周,對金屬板的支撐不利,但是可以選擇單方向的加長、增加扣件固定數量并計算后確定規格。由于平鎖扣金屬板加工為標準板,有利于控制每塊板的尺寸誤差,板與板的視覺接縫均勻錯開,比常規矩形分格線更加容易保證平齊,而且面板之間無密封膠,保證了板面整潔的同時,免去了打膠工藝的不利影響。平鎖扣金屬板系統按其連接方式分為浮雕式和嵌入式兩種加工形式,體現出不同的建筑外觀效果。具體的連接方式見下圖5.1:

六、 平鎖扣金屬板系統的相似項目介紹
6.1天津老城廂鼓樓中心街區改造項目
天津老城廂鼓樓中心街區改造項目,建筑面積197015平方米,在該項目的四個地塊中,設計師在屋面采用直立雙鎖邊系統和外墻立面中大量采用了鈦鋅板平鎖扣系統,灰色的色調既呼應了傳統大院的地區特色,同時,金屬的質感也增添了時尚感和現代性,使傳統建筑既能重現往日風采,又能滿足時代要求,進而成為老城廂的歷史文化載體。工程實例見下圖6.1:

圖6.1天津市鼓樓商業街墻面平鎖扣系統實例
6.2天津公館高端服務式公寓項目
天津公館高端服務式公寓項目,建筑面積52400平方米,在該項目中其屋面采用了菱形平鎖扣金屬板,材質為鋁(詞條“鋁”由行業大百科提供)錳鎂合金板及鈦鋅板,顏色為煙霧藍色及天然灰色,天津公館以新一代知識財富階層的生活價值觀為設計導向,菱形平鎖扣金屬板層次感強,視覺效果突出,更增添了天津公館的古典風格及高貴感。工程實例見下圖6.2:

圖6.2天津公館菱形平鎖扣金屬屋面系統實例
除在本國有少量類似工程以外,在歐洲、美洲、澳大利亞及亞洲,從私人住宅到公共建筑,如機場、歌劇院、會展中心、體育館和博物館等,到處都可以看到平鎖扣金屬板的身影。
七、結束語
金屬鎖扣板在北京民生美術館建筑上的應用將建筑師的設計理念完美的展現了出來,并得到了建筑師的認可。歐洲在上世紀就已經大量采用金屬鎖扣板裝飾建筑斜屋面及墻面,在金屬鎖扣板面材的選擇上,銅板、鋅板隨著時間推移而演變出古樸的質感也備受歡迎,平鎖扣系統為建筑學的創新追求打開了一個全新景象,此系統產生的光學效果在大面積的幕墻上尤其顯現。金屬鎖扣板系統給建筑師在建筑效果上增添了更多的選擇,建筑師極富創造的構思可將我們的視覺引領到另一層次。
參考文獻
[1] 《建筑幕墻》,中華人民共和國家標準, GB/T 21086-2007
[2] 《采光頂與金屬屋面技術規程》,中華人民共和國行業標準,JGJ255-2012
[3] 《金屬與石材幕墻技術規范》,中華人民共和國行業標準,JGJ133-2001
[4] 王勇,鄭家玉 《TPO防水卷材在某機場航站樓屋面翻修工程中的應用》,《中國建筑防水.屋面工程》,2011.19
[5] 王德勤(詞條“王德勤”由行業大百科提供)、張洋、陳啟明、廉洪波 《鄂爾多斯博物館雙曲異形金屬屋面的設計》 2010.06
[6] 王德勤、張洋、楊濤 《魯臺經貿中心-會展中心異型金屬屋面》,《建筑幕墻》,2013.01
[7] 楊濤 《北京民生現代美術館幕墻工程的分析與設計》,《建筑幕墻》,2016.04