本篇文章內容由[中國幕墻網]編輯部整理發布:
1 新型建材
近年來,隨著我國綠色建筑的發展及綠色新型建材(詞條“建材”由行業大百科提供)認證工作的推廣,我國新型建材正朝著節約資源、節省能源、健康、安全、環保的方向迅猛發展。作為建筑幕墻主要材料的幕墻面板材料,也在向著輕質、高強、節能、耐火、環保和集成化的方向發展,新型建材已成為建筑幕墻現代化不可缺少的環節。當前,我國建筑幕墻面板和構件材料的選用,已從原先簡單的玻璃、石材、金屬板材發展到各種各樣的人造板材、高性能復合材料和集成構建等,對材料的各種性能要求都有了全面的提高。下面將重點介紹幾種新型的幕墻材料。
1.1 金屬復合板
1.1.1不燃級鋁復合板
鋁塑復合板具有輕質高強、裝飾多樣、加工方便、耐久環保等優異性能,在金屬幕墻裝飾材料中占據著重要地位,目前我國已經成為世界最大的鋁塑復合板生產國和出口國。鋁塑復合板芯材主要為PE材料,其燃燒性能等級較低,耐火性能制約并限制了鋁塑板的發展和應用。特別是近年發生的外墻火災,公安部陸續出臺的系列文件更是限制了包括鋁塑復合板等產品在幕墻裝飾裝飾工程中的使用。國內企業通過材料和工藝創新,陸續研制開發了無鹵阻燃改性聚乙烯芯料、無機礦物質類不燃芯料,生產出B1級鋁塑復合板和建筑裝飾用不燃級鋁復合板。建筑裝飾用不燃級鋁復合板突出特性是燃燒性能達到GB8624-2012規定的A2級,可以不受建筑高度的限制地應用于建筑幕墻等外墻裝飾裝修工程。
不燃級鋁復合板放棄傳統無鹵阻燃改性聚乙烯料取代純低密度聚乙烯作為芯材的方法,采用碳酸鈣、硅微粉、石英砂、珍珠巖、丙綸短纖維、氫氧化鋁(詞條“氧化鋁”由行業大百科提供)、鉬酸鋅、丙烯酸膠等原料組成的無機混合物作為芯材,芯材熱值達到GB8624-2012要求的不大于3MJ/kg,產品滿足標準A2級的要求。不燃級鋁復合板的行業標準正在制定中。圖1為上海虹橋國家會展中心所采用的約十萬平方米的鋁塑防火板幕墻。

圖1
1.1.2鈦、銅、不銹鋼復合板
鈦、銅、不銹鋼有著獨特的金屬質感和不同的耐候特性,一直受到建筑師的喜愛,特別是在歐洲建筑上使用和流傳較早。近年來在我國也開始大量的采用鈦鋅板、銅板和不銹鋼板作為建筑外維護結構的材料,以突出建筑的特性及滿足耐候的要求。鈦、銅、不銹鋼雖不屬于貴金屬,但相比鋁合金材料在建筑上的應用,就顯現了昂貴的一面。所以在建筑外墻面上采用鈦、銅、不銹鋼板時,很少采用實心單板,通常采用小于1mm的薄板。由于面板較薄, 使得建筑表面平整度無法得到有效的控制和保證,同時受限于較小的承載能力,面板尺寸一般較小,影響了建筑立面的裝飾效果。由此而產生的鈦鋅復合板(詞條“鈦鋅復合板”由行業大百科提供)、銅復合板和不銹鋼復合板等,可為建筑的外墻提供更多的新型材料和選擇途徑。鈦、銅、不銹鋼復合板可制成PU芯材復合板、耐火性芯材復合板和鋁蜂窩芯復合板,其生產和產品的性能及加工安裝工藝都非常成熟。圖2為應用于寧波海洋博物館的鈦復合板幕墻。

圖2
1.1.3雙金屬復合板
雙金屬復合板是由兩種或同種材料不同金屬狀態的板材經各種不同連接方法復合而形成的一種新型板材。雙金屬復合板具有單層金屬材料所不具有的物理、化學性能以及力學特性,能兼顧和滿足金屬表面裝飾、強度、剛度、耐久等性能的要求,可節省稀貴材料,降低成本,目前已廣泛應用于化工、電力、機械、船舶、航空等領域并將進入建筑幕墻行業。目前適用與建筑幕墻的雙金屬復合板有不銹鋼復合板、銅鋁復合板、鈦鋼復合板等。
1.2非金屬板
1.2.1 免燒瓷質飾面再生骨料(詞條“骨料”由行業大百科提供)板
再生骨料板是一種全無機、無毒、無味、節能環保、內部致密性高、力學性能和理化性能好的新型建筑用產品。它具有節能環保、再生循環利用率高等優越性。其生產工藝與傳統人造板材相比有著其獨特的優勢,無需經過高溫燒制,也無需經過高壓壓制,在常溫常壓下以建筑物固體廢棄物(含量30%-70%,可選取建筑廢棄中的混凝土塊、硬質石塊、廢磚廢瓷塊、玻璃碎塊,還可選用工業礦渣、粉煤灰等)為主要原料通過化學反應即可成型,節省了大量的能源。同時生產過程中也不會排放粉塵、二氧化碳等污染物,基本上實現零排放生產。
瓷質飾面再生骨料板在技術特征上具有以下特點:
1. 由于采用無機材料,其耐候性、耐酸堿性(詞條“耐酸堿性”由行業大百科提供)表現優異;
2. 放射性達到國家建材A類標準;
3. 莫氏硬度4-7級,抗壓抗折性能優異;
4. 采用專利制花技術,使得每一塊板材質感不一,自然大氣。
其主要理化力學性能見表1。

目前瓷質飾面再生骨料板的研發和生產工藝已經成熟,產品已在建筑中推廣和應用。產品主要用于工業與民用建筑(詞條“民用建筑”由行業大百科提供)工程內外墻面干掛飾面和景觀地面鋪裝,并將作為外墻板在裝配式建筑中起到一定的作用。圖3為安裝在深圳前海萬科項目的瓷質飾面再生骨料板。

圖3
1.2.2 輕質高強陶瓷板
輕質高強陶瓷板是一種全球首創具有輕質、高強、保溫、高仿真等優異功能的新型建筑裝飾材料。產品通過在原料配方里面添加碳化硅(SiC)材料和陶瓷廢固物,使新型陶瓷板在燒制過程中不像普通陶瓷一樣產生收縮,反而是膨脹的,從而使新型陶瓷板在同等板厚的條件下,具有更小的質強比,在尺寸和厚度上比傳統陶瓷板更加容易做到大板面和大厚度。板面尺寸可大于1200mm×600mm,板材標準厚度可達18mm~22mm(個別訂制產品厚度可到25mm)。
新型陶瓷板的容重在1.65~1.95g/cm3之間,雖然材料容重降低了,但仍然保持了較高的抗彎強度值,其最小值R≥28.0(N/mm2),遠高于花崗巖的強度值。通過降低板材容重、增加板材厚度、保持較高的抗彎強度,使得新型陶瓷板降低了玻化程度和脆性(詞條“脆性”由行業大百科提供),在韌性和抗震等安全性能有極大的提高,為擴大產品的適用范圍提供了可靠的性能和質量保證。同時新型陶瓷板還能減輕建筑負載,方便了施工,節約安裝成本等優點。
由于產品配方中引入的大量陶瓷廢固物(廢固物占比15%-50%),從而使新型陶瓷板具有綠色環保的特點。通過采用3D打印技術,可使板面仿真各種不同的石材、陶板等。圖4為仿砂巖系列產品樣板。.

圖4
1.2.3 人造石面板
該產品是最近幾年出現的一種可應用于建筑幕墻的新型板材,其前生是用于臺面的實體面材,后經技術發展和抗老化和阻燃配方處理后,可用于建筑幕墻,在歐洲率先使用,國內也開始試用。
產品以氫氧化鋁為主要填充體,以經過耐老化和阻燃處理后的樹脂為結合體,生產的板材有一定的玉石的質感,色彩豐富,可以進行造型,因此頗具現代風采,在低層的商業建筑等頗受歡迎。圖5為深圳寶安中洲大廈商業裙樓(詞條“裙樓”由行業大百科提供)采用的人造石裝飾線條,外表造型可做到任意扭曲和連續無接口。

圖5
1.2.4 超高性能混凝土板(UHPC)
超高性能混凝土板(UHPC)是一種新型高強度,高韌性,低孔隙率的水泥基材料。它通過在材料中混入有機纖維或金屬纖維、提高組分的細度與活性和使用細骨料等方法,使材料內部的孔隙與微裂縫減到最少,以獲得超高強度與高耐久性。
超高性能混凝土板具有極高的強度、超高的耐久性、耐化學腐蝕性、抗沖擊、耐疲勞、防火和不必二次裝飾的整潔美觀的外表效果。同時還具有一定的自愈能力,通過獨立實驗室的試驗驗證,當板材出現微裂縫時,可利用空氣中的濕度進行水化反應從而對微裂縫進行自我彌合。超高性能混凝土板主要物理力學性能指標見表2。

超高性能混凝土板具有良好的力學性能、耐久性能和裝飾效果,目前開始在我國的建筑幕墻工程項目上應用。圖6為深圳深業上城UHPC幕墻工程,幕墻由2833(高)×1640(寬)UHPC格柵標準單元和3333(高)×750(寬)×20mm(厚)最大UHP板等單元構成。
UHPC格柵標準單元由L型邊框、8根扭曲變截面的豎向格柵、2根40×50的橫桿構成,見圖7。


1.3飾面涂料(詞條“涂料”由行業大百科提供)
1.3.1 免燒釉面涂料
幾千年來,釉作為陶瓷制品的飾面,一直沿用著高溫焙燒的生產工藝。在建筑裝飾中大量采用釉面陶瓷制品的當今,高溫焙燒時所產生的大量能耗,與當現代倡導節能環保的基本 國策顯現出巨大的不和諧和沖突。為此,產生了具有傳統釉面裝飾效果,同時又能大量減少能耗,可涂覆在不同的建筑材料表面并形成各式各樣釉面裝飾效果的免燒釉面制品的涂料,并將廣泛的應用于建筑室內外裝飾。圖8
在常溫非燒結條件下,將免燒釉面涂料施加在纖維水泥板、玻璃、天然石板或鋁板等板材表面,經化學反應固化可在板材表面形成具有釉面裝飾效果及滿足使用性能的釉面飾面層。采用免燒釉面的裝飾板可適用于建筑墻面和地面的室內外裝飾裝修,產品的建筑工業行業標準《建筑用免燒釉面裝飾板》已通過了專家審查并將發布實施。表3為免燒釉面鋁板釉面的理化力學性能指標。圖8為免燒釉面裝飾板視覺效果。


1.3.2 水性納米烤瓷涂料
水性納米烤(陶)瓷涂料是具有綠色環保、無毒健康的新一代涂料,它不產生任何有毒氣味、氣體和對環境及人體有害的物質。它由納米氧化物、著色顏料、無機硅固化劑及助劑等組成,是無機硅單體和無機納米氧化物在原子或分子狀態通過縮合反應成為水性無機的納米結合物。將水性納米烤(陶)瓷涂料涂覆于鋁合金板面,經低溫烘烤(180℃)可形成具有超耐候、抗劃傷、防火不燃、自清潔等特點的低溫釉,其壽命可達30年以上。目前水性納米烤(陶)瓷涂料已用于鋁板幕墻和室內裝飾用鋁單板(詞條“鋁單板”由行業大百科提供)、鋁蜂窩板等金屬裝飾材料(詞條“金屬裝飾材料”由行業大百科提供)的涂裝。表4和表5為報批中的國家建材行業標準《建筑裝飾用烤瓷鋁板》對采用水性納米烤(陶)瓷涂料的烤瓷鋁板提出的性能要求。圖9為采用水性納米烤瓷鋁板的天津地鐵軌道6號線。



圖9
1.4 無機防火保溫一體化板
無機防火保溫一體化板是一種由無機礦物經特殊工藝加工而成的新型防火保溫板,它集防火、保溫、吸聲、隔聲、節能、環保等綜合性能于一體,廣泛的應用于建筑用防火門、各種建筑防火封堵構造和建筑室內節能保溫裝修等。新型防火保溫板主要性能見表5。

當采用該板材構建建筑幕墻層間防火封堵構造時,其構造形式簡單可靠、安裝工藝簡便易行、施工質量易于控制,且具有極高的防火性能。通過實體火災實驗對該形式的建筑幕墻層間防火系統的防火性能進行了測試,在火源功率為1.5MW和3MW的單元式玻璃幕墻實體火災實驗和火源功率為1.5MW和2MW的構件式玻璃幕墻實體火災實驗中,建筑幕墻層間防火系統能夠有效地阻止火焰從燃燒室沿幕墻與外墻之間的空腔以及破損幕墻的外側向觀測樓層蔓延,能夠對幕墻框架的關鍵部位起到保護作用,并且能夠有效阻止火災高溫從燃燒室沿幕墻與外墻之間的空腔和破損幕墻的外側向上層建筑蔓延,避免火場高溫破壞上層建筑物結構和引燃上層建筑物內的可燃物。

圖10
梁底和樓面狀況,層間封板為無機防火保溫一體化板。圖11為燃燒過程中和燃燒后的結果,見下層幕墻的主梁已完全燒毀,而梁底的封堵板依舊保持原有狀態。圖12為單元式幕墻在火源功率為3MW試驗的溫度曲線,當燃燒室溫度約為1200oC時,觀測層(燃燒室上層)仍然處于較低的溫度。


1.5 陶瓷太陽能集熱板
陶瓷太陽能集熱板是一種集幕墻板功能與太陽能收集功能為一體的新型陶瓷板。陶瓷板將吸收的太陽轉變為熱能,加熱板中流過的水。被初步加熱的水進入下一塊陶瓷板繼續加熱,如此通過多塊陶瓷板加熱到足夠溫度的水被儲存在蓄熱水箱中儲存起來,作為供暖或供熱水使用。
它整體為陶瓷材質,表面采用能吸收太陽能的面層,太陽能吸收比可高達93%,日得熱量可達8.6MJ/m2,內部為通水管網,可承受0.1MPa的管內使用壓力,管壁為不滲水的釉面層,每塊陶瓷板各設一個進出水接口。
該產品的最大特點就是將白天被浪費的太陽能以熱水的形式儲存起來,可以極大地節約建筑能源消耗,同時陶瓷產品的超長壽命又為這種節能工程提供了長期壽命。陶瓷太陽能集熱板典型工程應用見圖13。

該產品在必要時還需在水箱中配套適當的輔助加熱裝置,使用中需要注意的是不能在充水的情況下受凍,否則會造成陶瓷板的爆裂。
1.6 智能調光玻璃
智能調光玻璃,它是普通玻璃與液晶調光膜組合在一起形成的一種新型的特種光電玻璃產品。其采用的智能液晶調光膜由兩層柔性透明導電薄膜與一層聚合物分散液晶材料(PDLC)構成。通過外加電場,便可實現調光膜在無色透明與乳白色不透明兩種狀態之間的快速變換。透明狀態下的調光玻璃的透光率高達80%,與普通的玻璃幕墻相差無幾;乳白色不透明狀態下,其霧度高達90%。
智能調光玻璃可用于室內裝飾裝修,也可應用于建筑外墻。調光膜可直接貼在玻璃上使用,該種方式操作簡單,應用廣泛,凡是有玻璃的地方均可采用;也可將調光膜復合在兩層玻璃中間,經高溫高壓膠合形成夾層調光玻璃作為建筑玻璃使用,這種玻璃已有現行標準進行規范《電致液晶夾層調光玻璃》JC/T 2129-2012;采用調光膜同樣可以生產出具有調光作用的中空玻璃。比較原有建筑外墻廣告采用的LED顯示屏,智能調光玻璃具有優越的性能,是未來建筑室內外裝飾的必選產品。
2 設計及應用
2.1人造板及應用
2.1.1石材蜂窩板
1)產品結構及特點
石材蜂窩板是由天然石材(詞條“天然石材”由行業大百科提供)薄板與蜂窩板經膠粘劑粘接復合而成的高科技產品。其飾面石材(詞條“飾面石材”由行業大百科提供)薄板幾乎可以是任何品種的石材,如花崗巖、大理石、砂巖和石灰石等。蜂窩板主要包括了采用鋁蜂窩作為芯材的鋁蜂窩板、鋼蜂窩板、玻纖蜂窩板等。石材蜂窩板的結構見圖14和圖15:

目前,石材蜂窩板基本可分為石材鋁蜂窩板、石材鋼蜂窩板、石材玻釬蜂窩板等。石材蜂窩板的飾面石材厚度,亞光面和鏡面板一般為3~5mm,粗面板一般為5~8mm。蜂窩板的厚度可根據不同的用途和設計要求確定。用作外墻板時,厚度通常在15mm以上。由于飾面石材厚度的減薄,加上蜂窩板結構自身具有重量輕、強度高、剛度好等優點,使得石材蜂窩板既具有石材的表面效果,又具有一般石材不可能具有的性能。它和傳統的石材相比,具有下列優點:
1.重量輕:石材蜂窩板的平均重量約為16kg/m2,幾乎比相當厚度的實心石材輕80%。此重量的減輕可以極大的減少建筑物的重量荷載,降低勞動強度,節省建設成本。
2. 強度高:平面抗拉、層間抗剪、彎曲剛度等力學性能指標值高,抗變形、抗沖擊,20mm的石材蜂窩板的抗沖擊強度約為30mm厚石材的10倍以上。
3.安全性好:受強力沖擊或超荷載的彎曲變形(詞條“彎曲變形”由行業大百科提供)后,石材表面只是局部破裂,不會產生輻射性裂紋,更不會整體破裂、脫落。
4.加工簡便:可使用普通加工工具在現場對需要修整的成型產品進行切割、安裝。能制成各種不同類型的造型,線條流暢、美觀大方。
5.經濟美觀:可以根據建筑需要,選擇國內、外任意的石材面料,特別是強度低、品種稀缺的石材進行復合,既能保持天然石材的主要性能指標,提高耐用年限,又可大大提高石材的利用率,節約天然資源。
6.節能環保:普通實心石材導熱系數為(3.5~1.3)w/m·k,而石材鋁蜂窩板導熱系數為(0.104~0.130)w/m·k,由此可見,石材鋁蜂窩板是一種隔熱節能的材料,同時還具有隔音降噪的性能。

圖15 石材玻纖蜂窩板
2)工程應用
石材蜂窩板在我國以及世界各地的建筑外墻上得到應用,作為一種新型的建筑材料,在應用中需對以下問題加以關注。如防止膠粘劑老化對產品耐久性的影響、不同材料間熱膨脹系數對板材變形的影響、可靠的安裝連接方法、不對稱復合板飾面石材的彎曲強度計算以及石材蜂窩板的主要性能要求和質量控制等。
2.1)產品耐久性
石材蜂窩板通常采用改性環氧樹脂作為膠粘劑,其耐久性是可靠的。我國首座采用石材蜂窩板作為幕墻外裝飾材料的的超高層建筑陜西電信網管大廈(圖16),完工于2001年,經過十七年的使用,從現場拆卸的板塊依舊保持完整和良好的性能,見圖17和表6。

膠粘劑作為高分子材料,在自然環境中使用,其老化是不可避免的事實,在使用過程中如何避免或減緩產品性能的衰減,是工程設計中需要考慮的問題。影響膠粘劑性能老化有兩方面的主要因素,最大的影響紫外線的照射,其次是高溫濕熱的環境。根據石材蜂窩板的使用狀況,紫外線照射對石材蜂窩板的使用耐久性并不會產生影響,因為膠粘劑并不暴露在日光下,產生影響的主要因素是長期高溫濕熱的環境。所以在產品的使用中,防止外部雨水直接浸泡膠粘劑成為主要的因素。因此,石材蜂窩板幕墻宜采用封閉式系統進行設計。當采用開放式系統時,石材蜂窩板周邊應采用封邊處理。同時,要根據板面尺寸、不同飾面石材的性能、風荷載及其它作用的大小,控制好板面的變形,確保板面不因彎曲變形過大而導致飾面石材產生細小裂紋,使得雨水滲透到粘接層,從而影響石材蜂窩板的耐久性能。

圖16

圖17
2.2)承載能力的判定和計算
1.為防止石材蜂窩板飾面石材在風荷載和其它作用的作用下產生細小裂紋或斷裂而影響石材蜂窩板的耐久性能,在判定和計算石材蜂窩板面板承載力時,應將飾面石材開始產生細小裂縫時的承載值作為石材蜂窩板彎曲破壞的極限承載值,而不是將整板所能承受的最大值作為石材蜂窩板彎曲破壞的極限承載值。盡管飾面石材斷裂后石材蜂窩板整體并未產生任何安全問題,且蜂窩板仍然可繼續承受更大的荷載直到蜂窩芯產生失穩或整板斷裂等。
2. 對試驗驗證采用簡支梁(詞條“簡支梁”由行業大百科提供)支承的石材蜂窩板,飾面石材的彎曲應力可采用以下公式計算:








2.3)安裝連接
石材蜂窩板通常采用背面四點支承的安裝連接方法。安裝連接件為特制的異形螺母(見圖19),并通過膠粘劑固化于石材蜂窩板中。通過國家建材檢測中心對單個異形螺母的抗拉極限承載能力的檢測,當鋁蜂窩芯厚度為14mm,兩邊鋁合金板厚度為0.5mm時,其最大抗拉拔力為4.263kN,最小抗拉拔力為3.400kN,平均抗拉拔力為3.706kN;當鋁蜂窩芯厚度為19mm,兩 圖19 邊鋁合金板厚度為0.5mm時,其平均抗拉拔力為6.250kN。由于安裝連接件的承載能力是石材蜂窩板安全應用的關鍵之一,所以安裝連接件的加工和固定均應在工廠中按照一定的工藝要求和質量控制程序來完成,不得在現場臨時埋設,出廠前還應經過產品出廠檢驗方可使用。在工程設計時,尚應對采用產品進行抗拉承載能力的檢測,并以此作為工程設計驗算的依據。
2.4)板面變形控制
隨著建筑裝飾發展的需要,石材蜂窩板的應用越來越趨向于大板塊發展, 板塊面積為2.5m2以上的大板在工程中已常有應用。但石材蜂窩板是由多種材料經膠粘劑粘接而成,它們之間的材料線膨脹系數(α)(見表9)互有差異,在環境溫度變化較大的情況下,特別是在極端寒冷氣候環境條件下,板塊可能由于各種材料的不同變形量而導致石材面板產生整板凹凸的變形現象,影響到建筑的美觀。同時也會在石材面板與蜂窩板的粘接層間形成附加的剪切應力,影響石材蜂窩板的正常使用。為防止上述現象的產生,在工程設計和使用中應控制板塊單邊長度和最大面積。通常板塊單邊長度不宜大于2.0m,最大面積不宜大于2.0m2。

玻璃纖維板與石材板塊的熱膨脹系數非常接近,同時具有很好的力學性能,其模壓板的彎曲強度可達740MPa以上。因此,采用玻璃纖維蜂窩板與石材復合而成的石材蜂窩板可有效的防止板塊的變形問題,并已在國外建筑上已得到推廣應用,如圖20美國紐約曼哈頓金融中心區的巴克利大廈。同時它將有可能成為今后石材鋁蜂窩板的一個發展方向。但由于玻纖蜂窩板相對鋁蜂窩板和鋼蜂窩板的脆性較大,彎曲剛度較小,受載時產生的變形較大,所以在確定其面板尺寸的大小時應更加慎重。

圖20
2.5)應用和設計
石材蜂窩板在幕墻工程的應用和設計中,應根據石材蜂窩板的特點,合理、正確的確定石材蜂窩板的使用范圍和飾面石材厚度與鋁蜂窩板厚度的搭配關系。
1.由于石材蜂窩板石材使用量少,同時通過復合鋁蜂窩板,可以大大提高石材的抗彎能力,對于造價昂貴的石材,或彎曲強度低的石材,如砂巖、石灰石等,可考慮采用石材蜂窩板來降低工程造價和擴大低性能石材的使用范圍。
2. 比較天然石材板材,石材蜂窩板更具有安全性和重量輕的優勢,在建筑的吊頂和傾斜部位,或大面積采用石材幕墻的建筑,可考慮采用石材蜂窩板來提高建筑的使用安全和降低建筑的整體重量。
3. 在設計飾面石材厚度與鋁蜂窩板厚度和選用石材蜂窩板板厚時,應著重考慮石材的各項性能指標,包括彎曲強度、密度、吸水率(詞條“吸水率”由行業大百科提供)和抗凍等。通常光面(如鏡面)飾面石材的厚度不宜大于5mm,粗面(如火燒面)飾面石材的厚度不宜大于8mm。對于材質較好的石材,吊頂用時可將石材厚度降低到3mm。鋁蜂窩板在整體復合板中起到承載和連接支承的作用,所以在石材鋁蜂窩板厚度的設計計算時,要嚴格考慮鋁蜂窩板兩側邊鋁板厚度和鋁蜂窩芯芯格及壁厚尺寸對石材蜂窩板整體力學性能的影響。從安全的角度出發,設計計算石材蜂窩板幕墻的面板時,可忽略飾面石材的抗力作用。
4. 石材蜂窩板飾面石材表面應進行防護處理,以提高石材的耐酸、耐堿能力,同時降低石材吸水率。
2.1.2高壓熱固化木纖維板
1)產品性能及特點
建筑幕墻用高壓熱固化木纖維板(HPL),是由30-40% 樹脂(或阻燃型樹脂)與60-70%木質纖維(或牛皮紙)經充分浸漬混合組成,板材單面或雙面復合有特定顏色或設計紋路的裝飾性面層,面層上面有一層透明涂層,透明涂層經電子束固化技術處理以加強產品長期耐候性能或耐光腐蝕性能,上述成分在高溫 (≥ 150° C / ≥ 302° F) 和高壓 (> 7 MPa) 環境下經壓制后生成了一種高密度無孔勻質板材,其表面是已經與基材整體化的裝飾面層,板材厚度在6mm或以上,采用阻燃型樹脂的板材具有一定的耐火性能。
建筑幕墻用高壓熱固化木纖維板具有良好的理化和力學性能,表10為板材的理化力學性能要求,抗灣強度高、沖擊抗力高、耐熱沖擊、耐老化和耐腐蝕是板材的顯著特點。

板材備有多種裝飾色彩,不同的紋理和不同材質的觀感,如木材、陶瓷和金屬等,見圖21。

圖21
面板加工方便,可自由切割到所需的尺寸和造型等等,以適合使用的要求,見圖22。

圖22
2)工程應用
2.1)面板支承連接形式
高壓熱固化木纖維板幕墻的面板支承連接形式分為兩種,一是穿透支承連接,二是背支承連接。由于高壓熱固化木纖維板的線膨脹系數較大,數值為2.20×105(1/oC),在應用中通常板面面積較大,支承連接點較多,一般超過四個連接點,所以在面板設計的時候,除了要考慮面板的承載能力,尚要考慮適合面板變形的連接設計。
1. 穿透支承連接
1)連接件
穿透支承連接(圖23)的木纖維板和纖維水泥板(詞條“水泥板”由行業大百科提供)面板應采用不銹鋼螺釘、螺栓、不銹鋼開口型平圓頭抽芯鉚釘或釘芯材為不銹鋼的開口型平圓頭抽芯鉚釘固定。螺栓、螺釘和抽芯鉚釘的直徑不應小于5mm。

2)連接件的位置布置
a. 支承連接點應分為緊固點和滑動點,緊固點和滑動點的設置應滿足板材變形的要求,見圖24;
b. 木纖維板幕墻面板的連接點到板邊的距離(c)不宜小于20mm,也不宜超過80mm或10倍板厚;
c.連接點間的最大間距應符合表11的規定:
3)面板安裝
高壓熱固化木纖維板面板安裝時,應滿足以下要求:
a. 每塊面板必須在面板中心位置有一個固定點,其它所有安裝點均應為滑動點;
b. 連接件與面板連接孔間應留有間隙,當連接件直徑為5 mm時,面板中的固定點孔徑為5.1 mm,滑動點孔徑為10 mm;
c. 連接件的頭部與面板接觸位置的周邊搭接尺寸不小于3mm,該部位的剪切應力和擠壓應力應小于面板的抗剪和抗壓強度設計值。當連接件直徑為5 mm時,其頭部直徑不應小于16 mm;
d. 應采用專用輔助工具使連接件頭部與面板的接觸位置離開面板表面0.3 mm,各連接件必須始終處于面板孔洞中心。
2. 背支承連接
1)面板厚度
背面支承連接(見圖25)的木纖維板的板厚不應小于8mm。
2)連接件
背面支承連接的木纖維板宜采用螺釘支承連接,也可采用背栓支承連接。連接螺釘的末端型式應符合現行國家標準《緊固件 外螺紋零件的末端》GB/T 2中末端為“刮削端(SC)”的規定,鋼的組別和性能等級應符合現行國家標準《緊固件機械性能不銹鋼螺栓、螺釘和螺柱》GB/T 3098.6中A4-70的規定。背栓應符《人造板材幕墻(詞條“人造板材幕墻”由行業大百科提供)工程技術規范》JGJ336-2016第3.5.6條的有關規定。
3)連接件的位置布置
a.支承連接點應分為緊固點、滑動點和調節點,緊固點和調節點應置于板的最上端,安裝滑動點的下方支架(詞條“支架”由行業大百科提供),其高度方向的安裝位置應按照2.5 mm/m的變形量進行設置,確保板材向下移動時有足夠的高度,見圖26;
b.支承連接點到板邊的距離不宜小于80mm,也不宜超過10倍板厚;
c. 支承連接點之間的最大間距應符合《人造板材幕墻工程技術規范》JGJ336-2016表6.6.2的規定;


4)面板安裝
a 每塊板應有兩個可調節點。為保持板塊的位置,在調節完板的位置后應在固定點位置使用自攻螺絲(或類似的其它方法)將連接掛鉤(詞條“掛鉤”由行業大百科提供)固定在水平龍骨上;
b 每個連接掛鉤應使用不少于兩個不銹鋼背栓或螺絲固定在面板背面;
c面板背面的預制螺釘孔或背栓孔的形狀和深度應根據錨固件規格及設計要求確定,鉆孔深度宜比板厚小2.5mm,其最大有效錨固長度為板材總厚度減去 3毫米。
2.2)幕墻基本構造
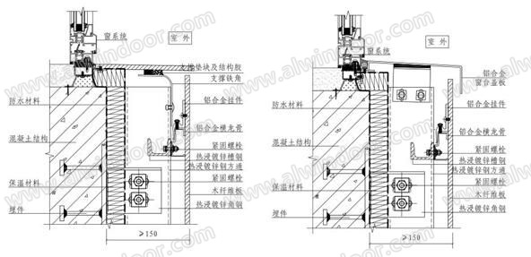
1.穿透支承式高壓熱固化木纖維板幕墻,見圖27。

圖27
2.背支承式高壓熱固化木纖維板幕墻,見圖28。

圖28
3. 面板板縫形式見圖29。

圖29
a)開縫式b)搭接式c)鑲嵌式
尺寸標注說明:a≥10mm;b≥15mm; c≥30mm;d鋁合金≥2.2mm/木纖維板≥3.2mm;
e鋁合金≥2mm/木纖維板≥3mm;h最小80mm,最大10倍板厚;
t板厚,8mm/10mm/13mm。
2.3)面板連接就支承設計計算
1. 面板抗彎計算
在風荷載或垂直于板面方向地震作用下,木纖維板的抗彎設計應符合下列規定:
1)木纖維板面板的最大彎曲應力標準值(詞條“標準值”由行業大百科提供),宜采用有限元方法(詞條“有限元方法”由行業大百科提供)分析計算。四點對稱布置的矩形面板,也可按下列公式計算;


2)面板中由各種荷載和作用產生的最大彎曲應力標準值應按《人造板幕墻工程技術規范》JG336-2016中第5.4.1條的規定進行組合。組合后的彎曲應力設計值不應超過面板材料的抗彎強度設計值f。
2. 面板撓度計算
在垂直于面板的風荷載標準值作用下,木纖維板和纖維水泥板面板的撓度應符合下列規定:
1)木纖維板面板產生的撓度,宜采用有限元方法分析計算。四點對稱布置穿透支承連接的矩形面板,也可按下列公式計算;


2)在風荷載標準值作用下,四點支承木纖維板的撓度限值df,lim宜按其支承點間長邊邊長的1/60采用。
3. 連接點抗拉設計
木纖維板連接的抗拉設計應符合下列規定:
1)在垂直于面板平面的風荷載或地震作用下,單個連接點的拉力標準值宜采用有限元方法分析計算。按周邊對稱布置的矩形面板,也可按下列公式計算:

2.4)適用范圍
阻燃型高壓熱固化木纖維板在外墻應用中的適用高度不大于50m。
2.2 輕質高強陶瓷板及應用
1)產品性能及特點
陶瓷產品作為一種傳統的建筑裝飾材料,早已廣泛的應用于我國民用建筑室內外裝飾。早期的陶瓷產品,由于施工技術和產品自身質量的限制,在建筑上多采用濕貼工藝進行室內外裝飾施工。但室外濕貼施工方式的陶瓷產品在風雨侵蝕、溫度、地震等作用的影響下,易產生泛堿、松動和脫落現象,表面污嚴重,嚴重情況下可造成大量的財物損失和人員傷亡,因而其安裝高度和使用的范圍極其有限,通常用于建筑的裙樓較多,大部分為室內裝飾用。
隨著干掛施工技術的出現、陶瓷生產工藝的提高,以瓷板為代表的陶瓷產品在我國建筑幕墻上逐步得以應用。瓷板產品具有較高的抗彎(抗折)性能,平均彎曲強度(R)≥30.0(N/mm2),最小值(Rmin)≥27.0(N/mm2),遠大于一般花崗巖板材約8(N/mm2)的彎曲強度;吸水率低,平均值ε≤0.5%,遠小于花崗巖板材的吸水率;同時瓷板表面的色彩、圖案和質感可人為控制,特別是在仿石效果方面,更為顯著。由于具有上述特點,瓷板產品替代石材在建筑幕墻上的應用引起了廣泛的關注,為此住建部專門編制了《建筑幕墻用瓷板》JG/T217-2007來規范幕墻用瓷板產品的生產和質量控制,在2016年12月1號實施的《人造板材幕墻工程技術規范》JGJ 336-2016也將瓷板幕墻的設計納入了其中,以加強和規范瓷板材料在建筑幕墻中的應用,并嚴格規定瓷板幕墻用瓷板板厚實際厚度不得小于12mm。
由于受瓷板加工工藝和配方的限制,現有瓷板產品的厚度難以做到很厚,大多在12mm~15mm之間,板面尺寸幅度較小,瓷板產品玻化程度較高,脆性較大。由于板厚較薄,在板材的掛裝位置,加工后的掛裝板厚有的不到4mm,在使用過程中容易產生斷裂,造成板塊脫落下墜的危險,從而限制了瓷板在建筑幕墻的廣泛應用。
與現有建筑幕墻用瓷板相比,輕質高強陶瓷板具有較多的優點,具有更多的應用范圍和安全性。表12為輕質高強陶瓷板與相關幕墻用板的主要性能指標的比較。從表12中可以分析并得到以下結論:
1.輕質高強陶瓷板的彎曲強度介于天然石材和瓷板之間,從力學性能的角度分析,完全可取代天然石材,特別是砂巖和洞石之類的天然石材,同時材料力學性能離散性小,更適合安全應用;

2.比較瓷板,彎曲強度基本相同,但其脆性較低,同時由于采用的板厚較厚,耐撞擊性和抗震性能能更好,使用更趨于安全。圖30為采用輕質高強陶瓷板、樓高為100米的四川眉山心腦血管病醫院,該項目陶瓷板幕墻經過國家建筑工程質量監督檢驗中心抗震試驗臺的檢測,當振動臺臺面輸入人工波加速度半峰值達到0.62g時,幕墻系統未出現任何損壞。
2)工程應用
2.1)建筑幕墻系統
輕質高強陶瓷板在建筑幕墻中的應用可按照《金屬與石材幕墻工程技術規范》JGJ 133進行工程設計和計算。由于輕質高強陶瓷板具有多種表面裝飾效果,如仿石材、仿陶板等,故采用輕質高強陶瓷板設計的建筑幕墻完全可以達到瓷板幕墻、石材幕墻和陶板幕墻(詞條“陶板幕墻”由行業大百科提供)的效果和性能。

圖30

圖31
2.2)點掛外墻板裝飾系統
輕質高強陶瓷板由于具有質輕、高強和厚板的特點,很適用于面板通過掛件直接與建筑 外墻結構點式連接的外墻裝飾系統(《點掛外墻板裝飾工程技術規程》JGJ 321-2014)。點掛外墻板裝飾系統是一種有別于建筑幕墻系統的外墻裝飾形式(圖31,1基體,2找平層,3背栓,4高度調節螺釘,5連接件,6錨栓,7面板,8掛件,9連接螺栓),它省卻了石材幕墻的金屬支承連接構件,在確保工程安全和質量的條件下,可較大幅度的降低工程造價。由于點掛外墻板裝飾系統將外墻板直接固定于外墻上,所以點掛外墻板裝飾系統面板位置可調性較差,墻面平整度調整較難。與幕墻系統的面板比較,點掛外墻板裝飾系統面板可能存在較大的由于安裝調整不到位所產生的應力。因此點掛外墻板裝飾系統對其面板的強度、厚度和脆性有更高的要求,這正是輕質高強陶瓷板適合于點掛外墻板裝飾系統的最主要原因。同時,在采用點掛外墻板裝飾系統時,應嚴格控制用于面板安裝的外墻面基體的結構形式,通常應為鋼筋混凝土剪力墻、鋼筋混凝土梁柱,或經加強處理的實心磚砌體構造。