本篇文章內容由[中國幕墻網]編輯部整理發布:
ICON云端項目位于成都市郊高新區。該綜合體項目旨在為這個城市邊界區域帶來一座綜合性的地標建筑,就像該區域內先期建造的那些地標建筑一樣。



項目從2009年贏得項目競賽開始。競賽組織者——國有企業成都高新投資集團有限公司破例選擇了三家北歐公司參加競賽。
除了芬蘭PES建筑設計事務所,應邀參賽的公司還包括丹麥的Schmidt/ Hammer/Lassen建筑設計事務所和芬蘭的Helin&Co建筑設計事務所。

競賽結果一公布,芬蘭PES建筑事務所就在贏得競賽的基礎上,和中國建筑西南設計研究院有限公司共同合作開展設計。

鑒于項目的體量和緊迫的工期進度表,業主提出設計任務可以分區域進行,由PES負責塔樓(詞條“塔樓”由行業大百科提供)的總體規劃和建筑設計,Helin&Co負責住宅樓的設計。

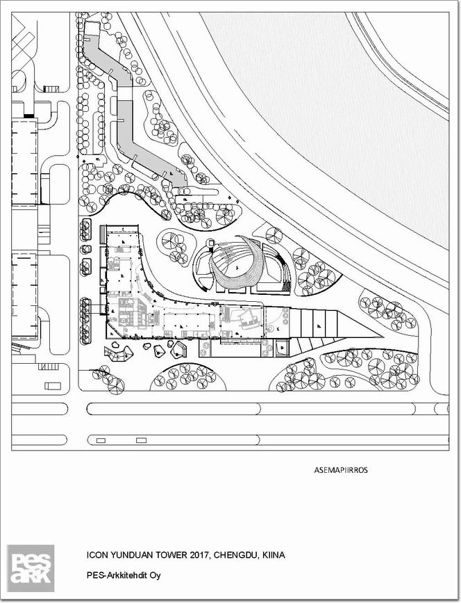
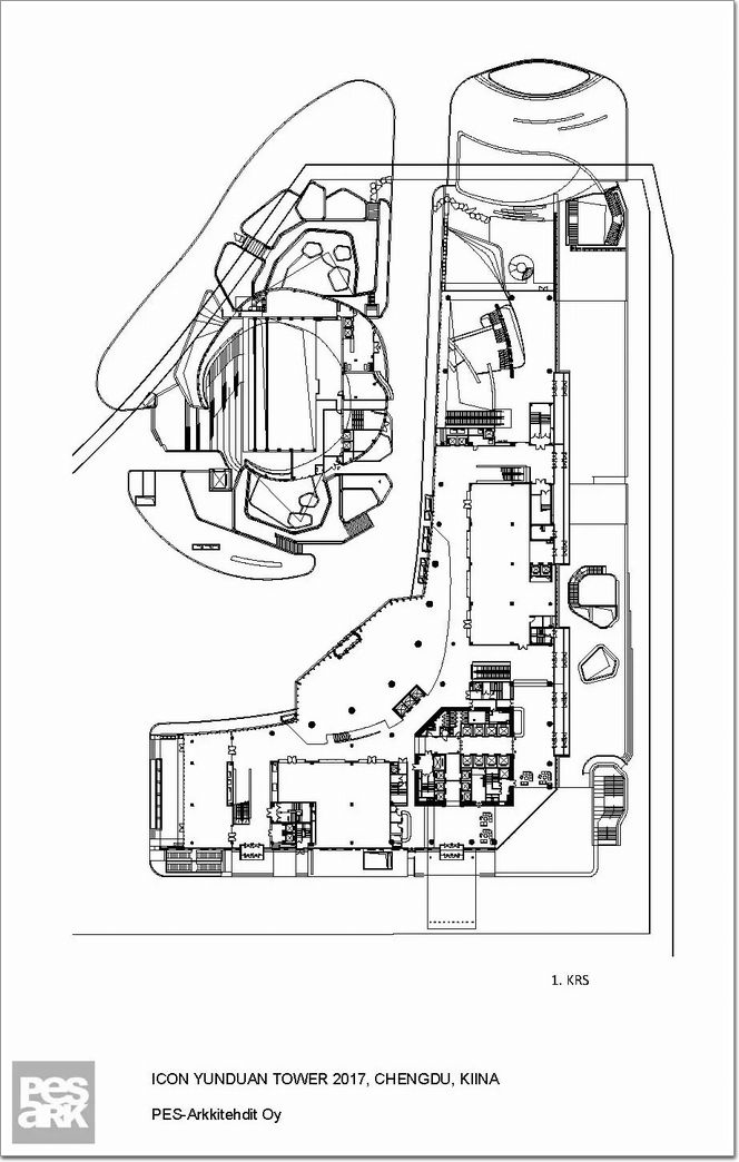
底層平面圖
塔樓的功能也在不斷的變化中,原本單一的辦公大樓被改成了多功能綜合體,除了停車場以外,地下區域配備了水療、5000平米的健身區域以及職工區域。
建筑的第一二層是購物中心,第三四層是特色餐飲,第五層是會議中心,接下去是23層的辦公區域和預留的13層酒店式公寓。塔樓的最高三層包括餐飲、接待和會議區域。



后來,業主決定用一個900座的地下音樂廳來代替水療區域。這是由中方合作伙伴設計的,其中一部分在地下,一部分緊靠建筑。
由于音樂廳的規劃,施工啟動推遲了差不多兩年。最終,在挖了一個覆蓋約4.6公頃區域的18米深基坑后,施工開始了。



建筑的核心用混凝土支撐,包括軸豎井和垂直連接。22米*22米的核心墻厚度為1000毫米。
其余建筑框架由鋼材組成,框架的主要部件包括圓形鋼管混凝土柱和600毫米×110毫米鋼梁組成的9米×9米柱網,120毫米厚的混凝土板運用在柱網的次級梁結構中,基礎結構全方位地應用于整棟建筑中。

剖面圖

47層中的30個樓層在兩側都配備露臺,設有種植樹木和攀緣植物用的種植箱。建筑其它立面上的方格圖案主要由玻璃和填充釉彩元素的陶瓷組成。該建筑的幕墻工程由中建深圳裝飾有限公司負責全程施工,而在建筑膠的選擇上,承建單位十分重視,從產品質量的穩定性、可靠性和售后保障體系等多方面進行考察。經過層層篩選,以及嚴格的相容性試驗,最終選定成都硅寶科技股份有限公司的992、999硅酮結構密封膠(詞條“硅酮結構密封膠”由行業大百科提供)、998硅酮耐候密封膠以及119中性硅酮防火密封膠等產品。

該項目目前的情況是一部分的公共區域已經在使用中,項目的主要租戶將會是歐盟,其目的是想在中國西部地區為歐洲組織和公司設立一個基地。

和中國業主合作最吸引人的部分是,通過具有象征性和富有詩意的建筑形象以及高效率的工作來實現項目。
建筑必須是有故事的建筑,所以同業主一起設計了這樣一個理念,擁有花園般露臺的白色山峰從水面升起穿入云層。
因此,這棟建筑被命名為云端,在云之上。




建筑師:PES-Architects
地址:中國,四川省,成都市,天府大道中段輔路與錦江交匯處
合作方:中國建筑西南設計研究院有限公司
主創建筑師:Tuomas Silvennoinen
設計團隊:Pekka Salminen, Tristan Hughes, Emanuel Lopes, Fang Hai, Satu Ristola, Miguel Santos, Kati Norta, Marcelo Diez, Tiina Juntunen, Uros Kostic, Teemu Kekkonen, Masahide Nakane
建筑面積:160000.0 平方米
項目年份:2017
攝影師:蘇哲維
業主:成都高新投資集團有限公司
顧問:德國a+g燈光設計公司