本篇文章內容由[中國幕墻網]編輯部整理發布:
世界最大的布丁王國總部
坐落在
深圳后海
這棟新大廈,代表著喜之郎以新的面貌回歸
【喜之郎總部大廈】

整體鳥瞰圖
深圳的城市天際線即將迎來一座全新的超高層辦公樓——喜之郎總部大廈,這是由筑博建筑工作室整體規劃設計的集甲級寫字樓、高端商業和生態綠色技術于一體的高品質企業總部綜合體,建成后將成為深圳灣天際線的重要組成部分。

深圳灣天際線:較高的為華潤集團總部大廈,約400 米;較低的為阿里巴巴總部大廈建筑群,約80米。
現場報道
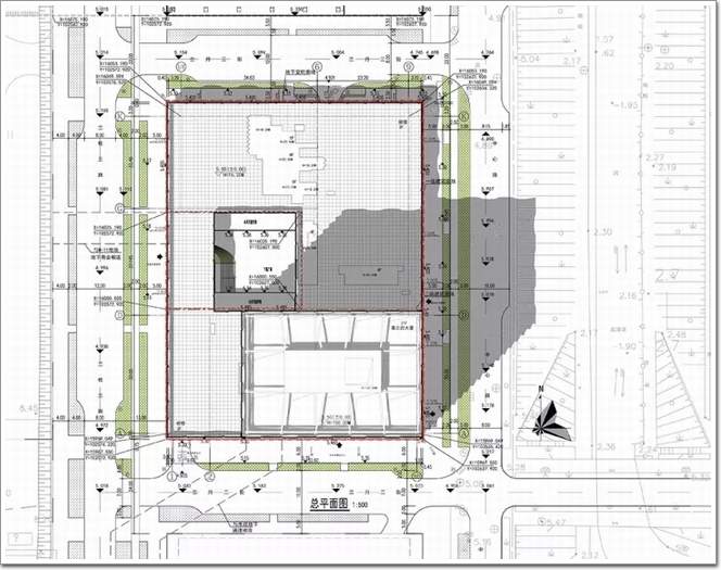
喜之郎總部大廈位于深圳市南山后海中心區,中心路南段西側。周邊即將開發的項目包括深圳灣一號、阿里巴巴、天虹商場、百麗鞋業、海王藥業、中建鋼構(詞條“鋼構”由行業大百科提供)、中鐵南方等總部辦公大樓,高端產業云集。
喜之郎總部大廈預計將于2018年完工并投入使用。
▽ 基地位置及周邊環境


▽ 項目目前進度

▽ 外墻施工效果

▽ 整體工程預計將于2018年完成

方案設計
設計宗旨
設計的宗旨是要體現出喜之郎的企業形象,但是企業理念、文化過于抽象難以視覺化,設計希望用企業品牌帶給人們的第一印象作為建筑形象的切入點。在建筑學上從古至今最具有紀念性的莫過于“獨石建筑”——Monolithic architecture,即以單一純粹的幾何體獲得永恒雄渾的印象,宛若獨石。
喜之郎集團作為食品制造業的表率,內在具備著嚴謹、穩重的企業文化,同時企業產品對外形象又展現出現代、活力的一面。設計團隊希望將兩者結合起來,全面詮釋出喜之郎企業形象。

宛若獨石的企業形象
形體生成
在規劃設計上將塔樓靠東側布置,使項目在城市外部具有更好的可視性,同時將塔樓撐滿南北33米寬度,以獲得最大的觀海面;在流線設計上將車輛出入口布置在南北兩側,車輛就近進入地下車庫,減少對人流的干擾;在空間設計上豐富沿街商業面的層次,營造宜人的步行購物空間。
中部設置東西向公共步行通廊,-1層至3層圍繞下沉廣場和東西通廊組織,通過垂直交通串聯商業空間。

在塔樓西側設置廣場,城市景觀由廣場延伸至辦公大堂,增強主入口的領域感。為了避免塔樓過于纖細,設計將標準層投影面積擴大,再以辦公中庭、空中花園填充塔樓,使塔樓在總面積不變的情況下獲得更多的綠化和交往空間。
塔樓100米以上視野開闊,可將深圳灣方向景色盡收眼底,在塔樓上部景觀絕佳的部分設置較多的大空間觀景區域,下部則較多空中花園以營造內部景觀,提升整體辦公品質。

主入口空間
平面設計
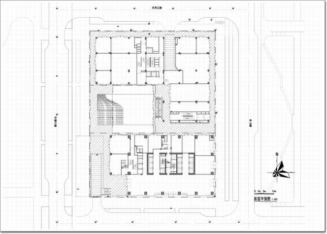
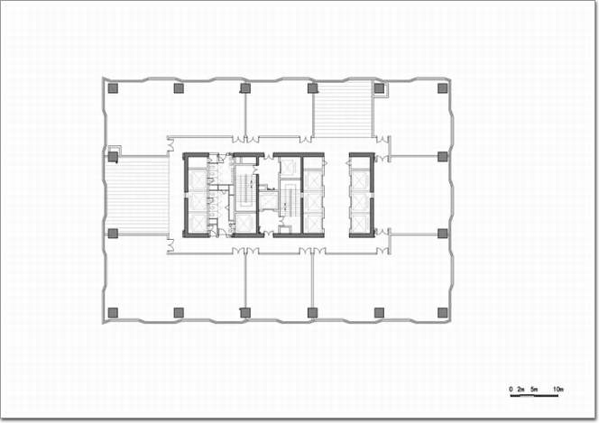
首層大堂與地下室之間設置專用電梯,以提高地上塔樓電梯的運行效率,高、中、低區辦公人員在一層進行分流。首層大堂采用三層通高,氣勢恢宏、邊界通透,實現了景觀在空間上的滲透。辦公層采用合理進深,采光通風良好,平面方整,實用高效。

總平面圖

首層平面圖

標準層平面圖
塔樓東、西、北三側局部設置空中花園,為辦公人員提供多處放松休閑的空間;位于塔樓頂部的高管辦公區及會所與屋頂花園結合,在首層和地下層設有VIP大廳,并設有電梯直達。通過下沉廣場來吸引人群,裙房通過連橋形成回字形流線,讓商業展示面最大化的同時提供適合深圳氣候特點的公共空間。

下沉廣場空間
立面設計
喜之郎大廈采用端正的形體、強調豎向變化的線條的方式來突顯企業穩重、大氣的形象。干凈、利落、挺拔、端莊的姿態體現出一個企業總部所應具備的特征,它能為城市帶來了一種氛圍,讓生活在其中的人們能感受建筑所具有的生命力。項目外立面由北京江河幕墻系統工程有限公司打造,型材(詞條“型材”由行業大百科提供)部分由堅美鋁材提供,玻璃采用南玻集團產品,建筑膠由道康寧提供,五金產品由堅朗提供,強強聯合,給予了大廈完美的外觀和堅固的內在。

立面圖
綠色建筑設計
在幕墻的設計與選材上遵循國家標準,使幕墻玻璃可見光反射率小于0.3;嚴格控制建筑物立面夜景照明亮度和照度,夜晚室外照明使用截光型燈具,減少向天空和附近建筑發射的逸散光;室外燈具中射向水平面以上的光通量控制在燈具設計光通量的10%以下,并合理利用綠化措施控制光污染,使項目達到國家綠色建筑二星級設計標識和深圳市綠色建筑銀級的要求。

設計公司:筑博設計股份有限公司
項目地址:中國,深圳,南山區
用地面積:4726.87㎡
建筑面積:73504.85㎡
設計時間:2014年
項目狀態:建設中
業 主:廣東喜之郎集團有限公司
項目總負責人:馮果川
項目經理:熊林龍
建筑設計團隊:何文彬、張異響、胡馨言、馬凱、林莊、陳拱潮、沈地河、黃雨明、高晶晶
總圖設計團隊:王延枝
結構設計團隊:湯凱峰、何海進、蔡錦晨
機電設計團隊:丁瑞星、侯連建、周青山、密進平、楊莉莉、呂少峰、李濤、楊坤炎
綠色建筑設計合作單位:深圳市越眾綠色建筑科技發展有限公司
BIM合作設計單位:中鐵建設集團有限公司