本篇文章內容由[中國幕墻網]編輯部整理發布:
玻璃窗戶與墻面相接
玻璃窗戶與墻面相接三維示意圖


工藝說明:
1.玻璃物料選樣,無劃痕,無損傷。
2.鋼架基層預埋。
3.U型槽的焊接安裝。
4.彈性膠墊填充。
5.安裝玻璃,透明膠條填充。
6.收口處3mm打膠處理。
7.清理,保護。

籃球專用運動地板
籃球專用運動地板三維示意圖

1、設計時應考慮地板下通風,并在施工圖中繪出地板通風箅子和龍骨骨通風陣位置及大樣;
2、粘結用膠需選用運動用木地板專用膠粘劑
3、詳細技術參數見廠家資料

網絡地板安裝
靜電地板安裝三維示意圖

1、原建筑鋼筋混凝土樓板
2、1:3水泥砂漿找平
3、1:3水泥砂漿抹面壓實趕光,干后臥銅條分格(銅條打眼穿22號鍍鋅低碳鋼絲臥牢,每米4眼)
4、可調節支架系統
5、靜電地板

自流平做法
自流平做法三維示意圖

1、原建筑鋼筋混凝土樓板
2、50厚C10細石混凝土墊層,Φ6鋼筋@150
3、20厚1:3水泥砂漿找平層
4、1.5厚JS或聚氨酯涂膜防水層
5、10厚1:3水泥砂漿保護層
6、20厚1:3水泥砂漿找平層
7、自流平界面劑
8、水泥基自流平砂漿層
9、底涂層
10、環氧樹脂(或聚氨酯薄涂層)

地溝做法
地溝做法三維示意圖

1、最低處增加暗藏地漏且有暗溝防止第 二層防水滲滿
2、原建筑鋼筋混凝土樓板
3、∮50 水管,絲扣固定
4、20厚1:3水泥砂漿找平層
5、1.5厚JS或聚氨酯涂膜防水層(一次防水)
6、10厚1:3水泥砂漿防水保護層(一次防水)
7、灰磚砌筑水溝一次防水完成后做防水保護(厚度依現場實際)
8、30厚1:3水泥砂漿找平層
9、1.5厚JS或聚氨酯涂膜防水層(二次防水)
10、30厚1:3水泥砂漿粘結層
11、10厚素水泥膏
12、防滑磚
13、1.5厚不銹鋼
14、20厚不銹鋼防滑格柵
15、10厚1:3水泥砂漿防水保護層
16、20厚1:3水泥沙漿粘結層
17、地磚(8~12厚,干水泥擦縫)(找坡)

鋁型材軌道門檻制作
鋁型材軌道門檻制作三維示意圖

1、原建筑鋼筋混凝土樓板
2、1:3水泥沙漿找平層
3、改性瀝青防水層,水泥砂漿防水保護層
4、1:3干硬性水泥沙漿結合層
5、10厚素水泥膏(黑/白水泥膏)
6、鋁型材移門(詞條“移門”由行業大百科提供)下軌道預埋
7、石材(六面防護)

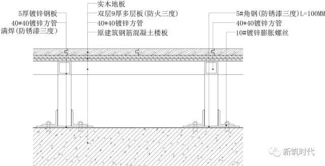
木地板+門檻石+地磚工藝
木地板+門檻石+地磚工藝三維示意圖


2、吊頂
風口與金屬板相接
風口與金屬板相接三維圖示意圖


工藝說明:
1、根據圖紙確認風口的大小和位置
2、根據開好的風口與吊頂的高度確認帆布的大小長短
3、安裝空調系統風管
4、龍骨的安裝
5、風口的安裝

玻璃隔斷與鋁板相接
玻璃隔斷與鋁板相接三維圖示意圖


工藝說明:
1、在頂棚和地面彈出玻璃隔斷的位置線
2、安裝固定下部的錨固件
3、再完成隔斷上部的安裝
4、中間填滿橡皮墊或填充劑
5、最后用密封膠密封

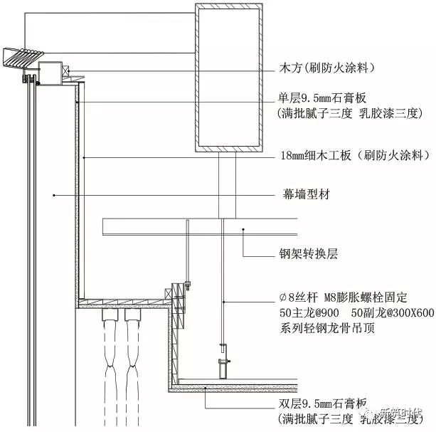
窗簾盒與玻璃幕墻相接
窗簾盒與玻璃幕墻收口節點三維圖示意圖


工藝說明:
1、龍骨吊件與鋼架轉換層焊接固定,連接處滿焊,刷防銹漆三遍
2、50主龍間距900mm,50副龍間距300mm,副龍橫稱間距600mm
3、18mm細木工板刷防火涂料三度,與吸頂吊件采用35mm自攻螺絲固定
4、9.5mm厚紙面石膏板,用自攻螺絲與龍骨固定
5、滿批耐水膩子三度
6、乳膠漆涂料飾面

暗藏燈帶窗簾盒
暗藏燈帶窗簾盒三維圖示意圖


工藝說明:
1、龍骨吊件與鋼架轉換層焊接固定,連接處滿焊,刷防銹漆三遍
2、50主龍間距900mm,50副龍間距300mm,副龍橫稱間距600mm
3、18mm細木工板刷防火涂料三度,與吸頂吊件采用35mm自攻螺絲固定
4、9.5mm厚紙面石膏板,用自攻螺絲與龍骨固定
5、滿批耐水膩子三度
6、乳膠漆涂料飾面

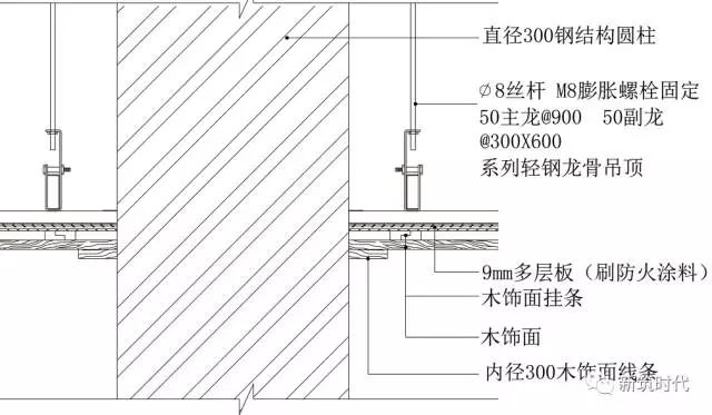
木飾面與鋼結構圓柱相接
木飾面與鋼結構圓柱相接三維圖示意圖


工藝說明:
1.龍骨吸頂吊件用膨脹螺栓與鋼筋混凝土板固定;
2.50主龍間距900mm,50副龍間距300mm,副龍橫稱間距600mm;
3.9mm厚多層板刷防火涂料三度,用自攻螺絲與龍骨固定;
4.木飾面采用掛條固定;
5.加工定制內經300mm,外徑350mm成品木飾面線條,與木飾面固定

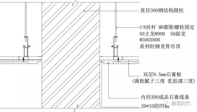
紙面石膏板與鋼結構圓柱相接
紙面石膏板與鋼結構圓柱相接三維圖示意圖


工藝說明:
1.龍骨吸頂吊件用膨脹螺栓與鋼筋混凝土板固定;
2.50主龍間距900mm,50副龍間距300mm,副龍橫稱間距600mm;
3.加工定制成品石膏線條,內經300mm,外徑450mm,預留20*10的凹槽;
4.9.5mm厚紙面石膏板與成品石膏線條用自攻螺絲與龍骨固定;
5.滿批耐水膩子三度;
6.乳膠漆涂料飾面;
注意:留20*10的凹槽

3、墻面
石材與混凝土墻相接
石材與混凝土墻相接三維示意圖

工藝說明:
1.墻面做JS防水層;
2.選用石材18mm,均經過六面防護、晶面處理;
3.塑造石材造型,上下口做3mm倒角;
4.石材安裝前進行打眼,方便銅絲固定(上下共4個眼);
5.鋼筋與石材固定;
6.土建墻體固定膨脹螺栓;
7.鋼筋于螺栓固定,鋼筋成網狀;
8.銅絲栓綁與鋼筋網;
9.石材與墻體之間填充水泥砂漿,即灌漿。

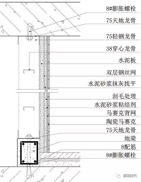
陶瓷馬賽克隔墻工藝做法
陶瓷馬賽克隔墻工藝做法三維示意圖


工藝說明:
1.選用馬賽克,表面平整、尺寸正確、邊棱整齊。
2.上下固定75天地龍骨,上38穿心龍骨完成基層施工。
3.固定水泥板,上雙層鋼絲網。
4.水泥砂漿抹灰找平處理,一定保證平整度(詞條“平整度”由行業大百科提供)。
5.刮毛處理,保證粘結層的附著力。
6.鋪貼馬賽克,完成施工。
7.揭紙、調縫、擦縫。

加氣塊墻石材干掛
加氣塊墻石材干掛三維示意圖


工藝說明:
1.選用石材18mm,均經過六面防護、晶面處理。
2.塑造石材造型,上下口做3mm倒角。
3.加氣塊墻體固定鍍鋅鋼板,一般用8#穿墻螺栓固定。
4.在干掛件無法滿足造型的需求下,采用滿焊5#角鋼轉接件,以調整完成面與墻體的間距。
5.滿焊8#鍍鋅槽鋼豎向。
6.滿焊5#鍍鋅角鋼橫向龍骨。
7.固定不銹鋼干掛件。
8.固定不銹鋼干掛件,AB膠固定石材,完成安裝。
9.近色云石膠補縫,水拋晶面。

藝術玻璃與墻面相接做法
藝術玻璃與墻面相接做法三維示意圖


工藝說明:
1.玻璃物料選樣,無劃痕,無損傷。
2.鋼架基層預埋。
3.鋼架基層焊接。
4.使用結構膠安裝藝術玻璃。
6.安裝完成,清理,保護。
木龍骨干掛木飾面墻面做法
木龍骨干掛木飾面墻面做法三維示意圖


工藝說明:
1.30*40mm木龍骨中距300mm,刷防火涂料三度,用鋼釘與木楨固定,
木楨固定在混凝土墻體內。
2.12mm厚多層板基層找平處理,用鋼釘與木龍骨固定,刷防火涂料三度。
3.木掛條中距300mm,用槍釘與多層板固定,木掛條背面刷膠,且刷防火涂料三度。
4.木掛條背面刷膠與木飾面用槍釘固定。
5.木飾面卡件安裝,木飾面平整度調整。

混凝土隔墻乳膠漆類做法
混凝土隔墻乳膠漆類做法三維示意圖


工藝說明:
1.混凝土隔墻表面清除干凈,墻面滾涂界面劑一遍,素水泥漿一道內摻水重3%~5%的108膠。
2.10厚1:0.3:3水泥石灰膏砂漿打底掃毛
3.6厚1:0.3:2.5水泥石灰膏砂漿找平層
4.滿刮三遍膩子(內摻水重3%~5%的108膠)
5.封閉底涂料一道,待干燥后找平、修補、打磨
6.第三遍涂料滾刷要均勻,滾涂要循序漸進,最好采用噴涂。
