本篇文章內容由[中國幕墻網]編輯部整理發布:
導語:鋁合金門窗經過三十年的國內工程應用,已經成為了國內最主流的門窗,甚至在很多的家裝市場內都可以看到鋁合金門窗(詞條“窗”由行業大百科提供)的銷售門(詞條“門”由行業大百科提供)店,如果您在老街區閑逛,很可能在一個不起眼的角落就能發現一家或數家鋁(詞條“鋁”由行業大百科提供)門窗加工店,它們承接一些小工裝或家裝的活計。這樣靈活而散放的市場環境,造成了鋁門窗施工中諸多的通病,而且這些通病往往在鋁門窗安裝的頭幾個月內不容易被發現其弊端,只有在一定時間后或一些特定的環境,如大風、大雨,日漸變化中顯現,下面中國幕墻網ALwindoor.com分享一系列的鋁合金門窗施工常見通病及防范措施,有則改之,無則加勉吧!
門窗安裝前,洞口未修整到位即進行安裝


鋁合金框拼接時螺絲要打膠

鋁合金窗框制作拼接質量差,易引起漏水

連接片間距60cm、過大

推拉滑撐(詞條“滑撐”由行業大百科提供)的固定(詞條“固定”由行業大百科提供)螺絲已生銹,應采用不銹螺絲
鋁門窗滲漏

業主投訴主要分類比例

滲漏投訴分類比例

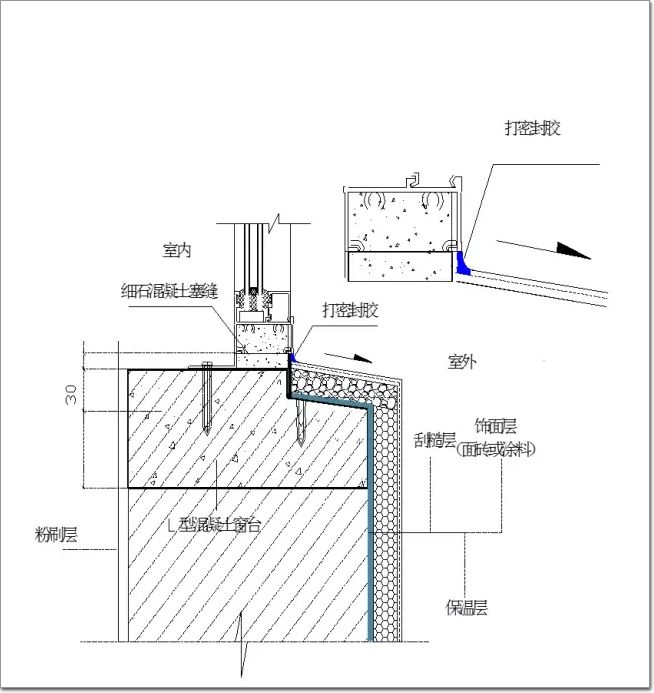
外墻保溫門窗窗臺做法

外墻保溫門窗窗側做法

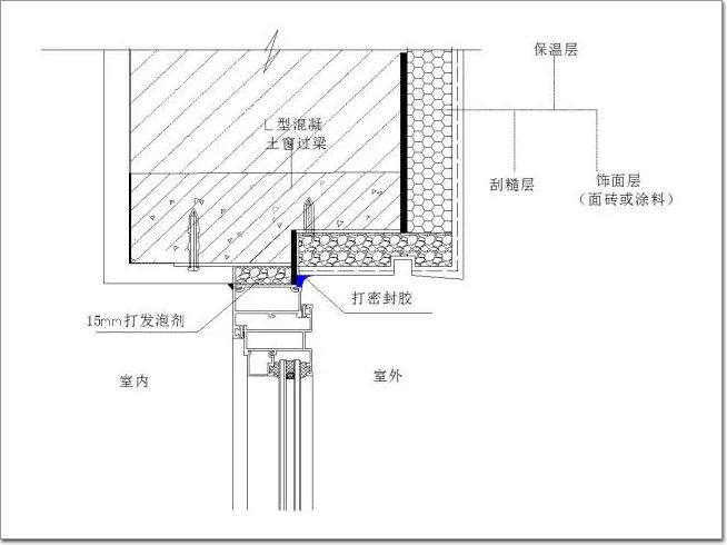
外墻保溫門窗窗天盤做法

露臺門下檻做法

排水孔錯位防臺風措施

窗臺打膠

窗側打膠

窗型材保護木槽做法

窗框貼保護膜

驗收與評定
l鋁合金門窗安裝的允許偏差和檢驗方法(各地區標準不一僅供參考)

鋁門窗施工完成后施工單位自檢合格后報監理部,應由總監理工程師組織,專業監理工程師,施工單位技術人員、工程部專業工程師參加對鋁門窗進行檢查與驗收評定。
分戶驗收時人工淋水逐戶檢查,門窗專業承包商負責試水準備工作和試水工作、由現場專業代表和監理工程師共同監督的情況下對門窗試水檢驗。
遇大風大雨天氣現場專業工程師組織監理對門窗滲漏情況進行逐樘檢查,發現問題及時通知門窗專業承包商維修。
結語:鋁合金門窗的工程施工,已經有較為全面的施工手冊及技術標準,在工程驗收中,也已經形成了較為嚴苛的規定。然而鋁合金門窗的施工中,由于對工程施工及家裝門窗施工人員的培訓及專業教育程度較低,普遍存在一些施工中的通病,這些是在現階段的建筑鋁合金門窗工程市場中無法有效規避的,必須得全行業內投入更大的人力及物力,甚至是全社會能夠更加重視、關注鋁合金門窗行業的發展,提高鋁合金門窗行業的產品價格及工程人員收入,實現鋁合金門窗行業的全面提升。