本文摘自:《建筑幕墻創新與發展》未經許可不得轉載
隨著美國蘋果公司對玻璃結構創造性應用,玻璃結構進入全球民眾視野。從20世紀晚期開始,玻璃結構已在國外發展了30多年,從試探階段進入到廣泛應用的階段[1,2],同時國外對玻璃結構的研究也積累了非常豐富的成果[3]。而國內,對玻璃承重結構的研究比較有限[4-11]。蘋果公司上海旗艦店有力證明了國內的玻璃制造和裝配業具備制造玻璃結構的能力。但對玻璃結構的設計研發,我國還處于試驗和探索階段。

圖1 2014年幕墻年展的玻璃梁(作者拍攝)
為了探討玻璃結構的承載力(詞條“承載力”由行業大百科提供)驗算方法,筆者嘗試運用幕墻和鋼結構的設計方法對玻璃盒子進行結構設計。

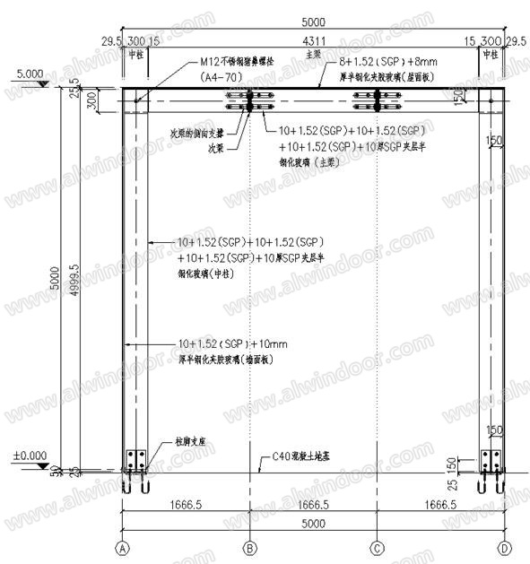
圖2 玻璃盒子平立面圖(自繪圖片)
玻璃盒子為邊長5m的立方體,為簡化方案,忽略門窗的設計。每個玻璃面分三格,玻璃面板尺寸為1.67 m寬×5 m高(長)。綜合考慮設計強度、剩余強度和耐溫性,本項目玻璃均選用半鋼化SGP夾膠玻璃(詞條“夾膠玻璃”由行業大百科提供),玻璃尺寸由結構計算決定,考慮SGP對結構玻璃(詞條“結構玻璃”由行業大百科提供)的作用 [。
玻璃屋面板通過橡膠墊片和硅酮結構膠與相關構件連,將橡膠墊片視為豎向支座,硅酮結構膠視為彈簧支座(其彈簧剛度(詞條“剛度”由行業大百科提供)由結構膠的變型量決定);玻璃墻面板(詞條“面板”由行業大百科提供)通過酮結構膠與玻璃柱連接,通過螺栓與底部支座連接。
玻璃柱的底部為固接,頂部與玻璃梁鉸接。主梁的兩端與玻璃柱鉸接形成主排架。次梁與玻璃柱鉸接形成次排架。次梁與主梁交接處,次梁使用鋼件穿過主梁進行等強連接。

圖3 玻璃盒子結構體系(自繪圖片)
圖注:1為中柱,2為主梁,3為次梁,4為角柱,5為邊梁;A為剛接柱腳,B為梁柱間鉸接,C為次梁接長剛接,D為角柱與邊梁的連接;
假設玻璃盒子處于廣州城區,按50年使用年限進行考慮,其基本風壓為0.5kPa,粗糙度類別為C類。抗震(詞條“抗震”由行業大百科提供)設防類別為“丙類”,抗震設防烈度為7度。
玻璃盒子所在地基為尺寸足夠大的C40混凝土,其抗壓強度(詞條“抗壓強度”由行業大百科提供):
,抗拉強度:
。
玻璃盒子按建筑結構荷載規范GB5009-2012進行荷載取值和組合,玻璃的承載力設計值按建筑玻璃應用技術規程JGJ113-2009取值。根據玻璃幕墻工程技術規范JGJ102-2003和鋼結構設計規范GB50017-2014對玻璃盒子進行強度和撓度驗算。
1玻璃盒子各構件的承載分析
1.1玻璃屋面板的承載分析
在風荷載作用下,中間位置處的屋面板平面外承受豎向風荷載,同時平面內承受墻面板傳遞的水平風荷載。邊緣處的屋面板,三邊與墻面板連接,均承受墻面板傳遞的風荷載。

圖4 屋面板的荷載情況(自繪圖片)
圖中:g為面板自重,q為面板活荷載,W1為豎向風荷載,W2為水平風荷載,Q為集中活荷載
由于硅酮結構膠長度遠大于寬度,寬度方向對玻璃的支承力可以忽略,所以屋面板的水平支座只沿結構膠的長度方向設置。

圖5 屋面板的支座布置(自繪圖片)
圖中:箭頭方向為水平支座設置方向
1.2玻璃墻面板的承載分析
玻璃墻面承受的荷載有五種情況,見圖6。

圖6 墻面板的荷載情況(自繪圖片)
圖中:a)為自重和活荷載組合,b)為中間墻面板自重和風荷載的組合,c)為轉角墻面板自重和風荷載的組合,d)為中間墻面板自重、風荷載和地震作用的組合,e)為轉角墻面板自重、風荷載和地震作用的組合。
Gw為墻面板自重,gr為支承屋面板的重量,q為支承屋面板承受的面活荷載,Q為支承屋面板承受的集中活荷載,w1為支承屋面板的豎直風荷載,w2為墻面板直接承受的水平風荷載,w3為支承轉角墻面板的水平風荷載,qEK為墻面板直接承受的地震荷載,qEK1為支承轉角墻面板的地震荷載
玻璃墻面板的支座布置見圖7,具體的設置見表1。

圖7 墻面板的支座布置(自繪圖片)

1.3玻璃排架的承載分析

圖8 玻璃主排架的荷載情況
圖中:a)為自重和活荷載組合,b) 為自重和風荷載組合(順風向)c) 為自重和風荷載組合(側風向)d)為自重、風荷載(順風向)和地震作用組合e)為自重、風荷載(側風向)和地震作用組合
玻璃主排架承受荷載的情況有五種,見圖8,其受荷寬度為1666.7mm。由于不了解結構膠與玻璃共同作用的機理,以及玻璃面板有效寬度的選取辦法,所以本文不考慮玻璃面板對玻璃排架(梁柱)的抗彎作用,只考慮玻璃面板對玻璃柱梁的側向支撐作用時,玻璃梁不會發生彎扭失穩,玻璃排架不發生側向失穩。
在主排架失效時,次排架會代替主排架,成為主承重骨架,因此次排架的荷載情況與主排架相同。次排架的計算簡圖如圖9,假設次梁為三段玻璃構件剛接而成的接長梁。

圖9 次排架計算簡圖
2玻璃盒子的承載力驗算
本文選擇SAP2000對各構件進行有限元分析,得到各構件的最大應力最和撓度值。
2.1玻璃面板的承載力驗算
通過SAP2000運算,屋面板選用8+1.52(SGP)+8mm厚半鋼化夾膠玻璃(有效厚度為16.05mm),墻面板10+1.52(SGP)+10mm厚半鋼化夾膠玻璃(有效厚度為21.07mm),驗算結果見表2,圖10-圖13。


圖10 屋面板的應力分布圖

圖11 屋面板的撓度分布圖

a) 自重和活荷載組合b) 自重和風荷載組合c) 自重、風荷載和地震組合
圖12 墻面板的應力分布圖

圖13 墻面板的撓度分布圖
2.2玻璃排架的承載力驗算
經驗算,玻璃梁柱均選用高度為300mm的10mm+1.52mm(SGP)+ 10mm厚夾層半鋼化玻璃,最大應力值見表3,彎矩圖見圖14,圖15。最大撓度值見表4,變形(詞條“變形”由行業大百科提供)圖見圖16,圖17。

圖14 不同荷載組合的主排架的彎矩圖

圖15 不同荷載組合的次排架的彎矩圖


表中:a)為自重和活荷載組合,b) 為自重和風荷載組合(順風向)c) 為自重和風荷載組合(側風向)d) 為自重、風荷載(順風向)和地震作用組合e) 為自重、風荷載(側風向)和地震作用組合。軸力欄中正值為拉力值,負值為壓力值

圖16 不同荷載組合的主排架的變形圖

圖17 不同荷載組合的次排架的變形圖

表中:a)為自重和活荷載組合,b) 為自重和風荷載組合(順風向)c) 為自重和風荷載組合(側風向)
3玻璃盒子剩余強度分析
玻璃結構中,玻璃構件的破壞存在不可預見性、突發性和不可避免性。所以必需考慮玻璃構件破壞后,結構的安全性。除非極端情況,玻璃盒子一般只會產生局部構件破壞,所以本文只考慮某一構件破壞對玻璃結構的影響。
由于玻璃選用SGP的夾膠玻璃,根據制造商提供的實驗證明[13],即使玻璃面板破碎,也會保留在原位,玻璃骨架承受荷載沒有改變。只是破碎構件不再承受荷載,荷載將傳到其相鄰的玻璃構件上。
當中間面板破壞時,對玻璃結構影響不大。當邊角面板破壞時,會影響相鄰玻璃面板,要求進行相關面板的強度復核。當中柱破壞時,與之連接的梁退出工作,與之組成排架的另一中柱成懸挑構件,需要進行強度復核。當主次梁破壞退出工作時,屋面板的支承情況有改變,但不會引起面板破壞,與之相連的中柱成懸挑構件,需要進行強度復核。因此,玻璃盒子的剩余強度驗算包括:缺少支撐的玻璃墻面板的強度復核,和懸挑中柱的強度復核。由于構件破壞后,有臨時支護才可上屋面檢修,所以剩余強度驗算不考慮1kN的屋面檢修集中荷載。
3.1玻璃墻面板的剩余強度驗算
結構膠軸向與面板平行的轉角墻面板為不利墻面板,對其進行剩余強度驗算,自重和風荷載組合視為墻面板剩余強度驗算時的最不利荷載組合,最大應力值見表5。

圖18 不同支承下墻面板的應力分布圖
3.2玻璃屋面板的剩余強度驗算
屋面板的支承構件破壞情況有五種。圖19a為短邊處墻面板失效,屋面板支承減少,與屋面板和失效墻面板連接的墻面板傳來的荷載增加。圖19b為次梁失效有兩種情況,次梁直接失效,中柱失效導致次梁失效。后一種情況會使屋面板承受墻面傳來的水平荷載增大,作為驗算的對象。圖19c為長邊處邊緣墻面板失效,此時,其分析與圖19a情況相似。圖19d為長邊處中間墻面板失效。圖19e為主梁失效。經驗算,屋面板的最大應力值,見表6。

圖19 屋面板剩余強度時的支座情況

注:a)為短邊處墻面板失效,b)為次梁失效,c)和d)為長邊處墻面板失效,e)為主梁失效

圖20不同支承下屋面板的應力分布圖
3.3玻璃排架的剩余強度驗算

圖21 玻璃柱破壞可能情況(自繪圖片)
玻璃柱破壞有三種可能情況,如圖21。情況一,支承主梁的中柱破壞,相應玻璃面板變為三邊支承,該主排架上的另一中柱視為懸挑構件,玻璃主梁承受的荷載傳遞到玻璃次梁上,次排架變為主排架承擔荷載。情況二,支承次梁的中柱破壞,相應玻璃面板變為三邊支承,該次排架上的另一中柱視為懸挑構件,相應的次梁退出工作。情況三,角柱破壞,即面板破壞。

圖22 玻璃梁破壞可能情況(自繪圖片)
玻璃梁破壞有三種可能情況,如圖22。情況一,主梁破壞,相應玻璃面板荷載由次梁承受,相連的中柱成懸挑構件。情況二和情況三,均為次梁破壞,玻璃面板受荷支承減少,但不會引起面板破壞,相連的中柱成懸挑構件。因此,排架結構的剩余強度驗算就是玻璃中柱的懸挑驗算。

圖23 懸挑柱的荷載情況
基于上述分析,懸挑柱的不利荷載情況出現在主排架另一中柱失效,有兩種荷載情況,一是自重和風荷載組合(迎風),二是自重、風荷(迎風)和地震的組合。經驗算,最大應力值見表7。

圖24 不同荷載組合的次排架的彎矩圖

表中:a)為自重和風荷載組合(順風向),b)為自重、風荷載(順風向)和地震作用組合,軸力欄中正值為拉力值,負值為壓力值。
4玻璃盒子連接節點設計
面板的連接和玻璃柱腳的連接設計與幕墻相同,此處不再詳述,只對梁柱連接,次梁接長連接進行介紹。為保護玻璃梁柱,在玻璃柱梁的兩面各增加一片玻璃,作為柱梁的保護層(犧牲層),因此實際玻璃梁柱為4×10mm厚SGP夾層半鋼化玻璃。
玻璃主排架的梁柱連接構造圖見圖25。玻璃梁和玻璃柱做成榫眼(詞條“榫眼”由行業大百科提供)和凸榫形式,鍥在一起,通過1顆等級為A4-70的M12不銹鋼豬鼻螺栓固定,玻璃的開孔直徑為25mm,詳見圖26。

圖25 玻璃梁柱連接構造圖

圖26 梁柱連接處的螺栓節點圖
次梁接長構造圖,見圖27。次梁遇到主梁時需要斷開,通過鋼連接件穿過主梁(主梁上開∅25×80mm的長圓孔)進行接長連接。鋼連接件當于次梁的一部分,承受相應的段的荷載和內力。鋼件通過螺栓與主梁連接,對次梁接長節點起側向支撐作用。



圖27 次梁接長構造圖
5小結
本文運用彈性力學,對玻璃盒子進行傳統理論上的結構設計,嘗試探討玻璃結構設計的方法。本文按荷載傳遞過程依次對玻璃面板、玻璃排架、玻璃節點進行強度和剛度的驗算。并且根據玻璃脆性的特點,嘗試提出玻璃盒子剩余強度分析的思路和驗算方法。玻璃盒子方案圖見圖28-圖32。各構件驗算結果見表8。

本文玻璃盒子的結構設計只停留在理論計算階段,沒有經過實驗進行復核,也不能較全面考慮玻璃結構在實際工程中可能遇到的問題(如門窗洞、排水、防雷、備管線布置等),不一定能真正反映玻璃結構的實際受力情況。只能是玻璃結構設計的一種嘗試性的探討,為國內玻璃結構的研發提出一些想法,希望能引起國內同行的關注,使玻璃結構能在國內發展起來。

圖28 玻璃盒子立面圖

圖29 玻璃盒子平面圖(地面)

圖30 玻璃盒子平面圖(梁高)

圖31 玻璃盒子剖面圖(主梁)

圖32 玻璃盒子剖面圖(次梁)
參考文獻
[1] 史蒂西, 施塔伊貝,巴爾庫等. 玻璃結構手冊[M]. 白寶鯤, 厲敏, 趙波. 大連: 大連理工大學出版社, 2004: 53, 274-278.
[2] Eckersley O’Callaghan [EB / OL ]. 點擊查看 http://www.eocengineers.com/#projects
[3] Ouwerkerk E. Glass columns: a fundamental study to slender glass columns assembled from rectangular monolithic flat glass plates under compression as a basis to design a structural glass column for a pavilion[D]. Netherlands : Master of Science program of Civil Engineering at the Delft University of Technology. Faculty of Civil Engineering and Geosciences; 2011.
[4] 王元清, 石永久, 吳麗麗. 點支式玻璃建筑應用技術研究[M]. 北京: 科學出版社, 2009
[5] 陳峻(詞條“陳峻”由行業大百科提供),張其林,陶志雄等. 四邊簡支玻璃面板模爆法的試驗研究[J]. 結構工程師, 2012(2)
[6] 石永久, 鄧曉蔚, 王元清. 駁接式玻璃結構建筑及其玻璃板承載性能分析[J]. 工業建筑. 2005, 35(2), 11-15
[7] 王元清, 張恒秋, 石永久. 面內受彎玻璃板承載性能的有限元分析[J]. 建筑結構, 2008, 38(2): 100,120-122
[8] 王元清, 張恒秋, 石永久. 面內受彎玻璃板的承載及穩定性(詞條“穩定性”由行業大百科提供)試驗研究[J]. 清華大學學報(自然科學版), 2006, 46(6): 773-776
[9] 王元清, 張恒秋, 石永久. 玻璃承重結構的工程應用及其設計分析[J]. 工業建筑, 2005, 35(2): 6-10
[10] 王元清, 張恒秋, 石永久. 玻璃承重結構的設計計算方法分析[J]. 建筑科學, 2005, 21(6): 26-30
[11] 王元清, 張恒秋, 石永久. T型組合受彎玻璃板的承載性能[J]. 建筑科學與工程學報, 2006, 23(3):
[12] JGJ102-2012(報批稿), 玻璃幕墻工程技術規范[EB / OL ]. 點擊查看 http://www.docin.com/p-792285879.html
[13] kuraray [EB / OL ]. 點擊查看 http://kuraray.tpk6.de/sentryglas2015/en/