本篇文章內容由[中國幕墻網]編輯部整理發布:
為了更好的加強砼結構鋁合金門窗框安裝的成品保護,及防止門窗側面的滲漏現象,根據多年來的實踐經驗總結,將砼結構外墻鋁合金門窗框的施工工藝進行了更新升級實行“后塞法施工工藝”,現將砼結構后塞法施工工藝做法如下:
施工準備:
1、主體施工時應充分考慮到建筑做法因素。按施工圖紙做法,調整洞口尺寸,根據保溫層的厚度,計算增加門、窗側面的洞口放大尺寸,按調整后的洞口尺寸、洞口位置、標高(詞條“標高”由行業大百科提供)對施工人員進行技術交底。
2、施工層厚度確定:刮糙層厚度為10mm,保溫層厚度為25mm,粘結層厚度為5mm,抗裂砂漿厚度為5mm,頂、兩邊框與墻體洞口打發泡劑間隙為8 mm,下框與窗臺處的間隙為20mm,洞口尺寸與邊框每邊預留間隙為25mm,窗臺坡度為15%,約15~20 mm。窗頂鷹嘴坡度為10%。
3、防水材料采用水泥滲透性防水涂料(詞條“防水涂料”由行業大百科提供),門窗框與墻固定連接件采用固定在內墻單面。
施工流程:
門窗洞口企口預留——洞口抹灰——第一道防水層施工——保溫層施工——外墻抗裂砂漿及玻纖網格布施工,內墻門窗護角抹灰——第二道防水層施工——門窗框安裝——門窗框與墻體之間間隙處理——門窗框與墻體處密封膠施工——外墻膩子、涂料施工
施工工藝:
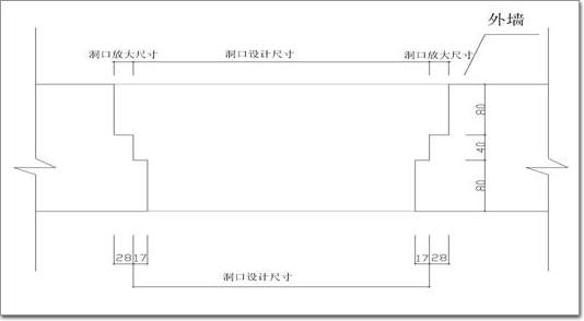
一、洞口主體施工時預留(施工時應具體根據設計做法的要求套用下列公式)
洞口放大計算公式如下:
1、門窗洞口兩側面放大尺寸=側面刮糙厚度(10mm)+外墻保溫層厚度(25mm)+粘結層厚度(5mm)+抗裂砂漿厚度(5mm)+邊框與墻抹灰層打發泡劑間隙(8mm)-門窗安裝時間隙(25mm),10+25+5+5+8-25=28 mm見圖1。

圖1 洞口側面基本尺寸圖
2、門窗洞口上框處放大尺寸=刮糙及找坡厚度(10mm)+外墻保溫層厚度(25mm)+粘結層厚度(5mm)+抗裂砂漿厚度(5mm)+鷹嘴厚度(10mm)-門窗安裝時間隙(25mm), 10+25+5+5+10-25=30mm 見圖2。(注:鷹嘴的具體尺寸根據成品塑料(詞條“塑料”由行業大百科提供)條尺寸而定)

圖2 洞口上框基本尺寸圖
3、門窗洞口下框處放大尺寸=刮糙及找坡厚度(10~25mm)+外墻保溫層厚度(25mm)+粘結層厚度(5mm)+抗裂砂漿厚度(5mm)+下邊框與窗臺表面嵌水泥砂漿間隙(20mm)-門窗安裝時間隙(25mm),25+25+5+5+20-25=55mm見圖3。

圖3 洞口下框基本尺寸圖
把墻體洞口處做兩個臺階方式,詳見圖4。
即分為:門、窗框內側臺階,寬為80mm,門窗框安裝位置臺階寬度為了40mm門窗框外臺階寬度視墻體寬度而定(200-80-40=80mm)。

圖4 洞口兩個臺階做法
二、洞口側面刮糙:
1、門、窗洞口兩側邊刮糙要求:兩側鋪貼保溫層位置處采用10厚1:2.5水泥砂漿刮糙,并用木蟹抹平壓實,與門、窗邊框處的企口處采用17厚1:2.5水泥砂漿刮糙,分兩遍成活,并用木蟹抹平壓實;見圖5。

圖5 洞口側面刮糙示意圖
2、門、窗上框處刮糙要求:頂部鋪貼保溫層位置處采用10厚1:2.5水泥砂漿刮糙,并用木蟹抹平壓實,與門、窗邊框處的企口處采用17厚1:2.5水泥砂漿刮糙,分兩遍成活,并用木蟹抹平壓實;見圖6。

圖6 洞口上框刮糙示意圖
3、門、窗下框處刮糙要求:頂部鋪貼保溫層位置處采用10~25厚1:2.5水泥砂漿刮糙找坡。見圖7。

圖7 洞口下框刮糙示意圖
4、施工時注意事項:抹灰施工時應先刷混凝土界面劑,施工時應該嚴格控制好抹灰厚度、平整度、垂直度(詞條“垂直度”由行業大百科提供),防止因超厚或未達到抹灰厚度等影響下道工序的施工。
三、第一道防水層施工:洞口刮糙施工完成后,在刮糙面施工第一道防水層,為了防止刷油性防水層會造成抹灰層空鼓,現采用水泥滲透性防水涂料作為防水層,防水施工高度要求是:外墻面在護角處向墻體方向涂刷15cm,內墻面在護角向墻體方向涂刷5cm;見圖8

圖8 第一層防水示意圖
四、門、窗側面保溫層施工:若外保溫采用保溫板作保溫材料,所有的門窗側面保溫板采用專用粘結材料,施工時將保溫板伸入框內與框斷橋處連接,確保保溫效果,保溫板粘貼時采用滿漿鋪貼,拼縫時的接頭縫也應是坐漿,防止點貼而產生滲漏。見圖9

圖9 外墻保溫層做法示意圖
五、外墻抗裂砂漿及玻纖網格布施工,內墻門窗護角抹灰:保溫層施工完成后張貼網布,貼網布時窗角四周斜貼150mm寬300mm長加強層。抹5厚抗裂砂漿面層,內墻門窗護角采用13厚1:2.5水泥微膨脹砂漿抹灰,見圖10

圖10 抗裂砂漿做法示意圖
六、第二道防水層施工:為了更好的防止外墻抹灰產生滲漏現象,現采抗裂砂漿表面用水泥滲透性防水涂料作為防水層,防水施工高度要求是:外墻面在護角處向墻體方向涂刷15cm,內墻面在護角向墻體方向涂刷5cm;見圖11

圖11 第二層防水做法示意圖
七、門、窗框安裝:門、窗框與墻體連接采用固定片厚度應大于或等于1.5mm,最小寬度應大于或等于15,其材質應采用Q235-A冷軋鋼板(詞條“鋼板”由行業大百科提供),其表面應進行鍍鋅處理。門、窗框的固定件固定在門、窗墻體洞口位置的內側,等待門、窗框安裝完畢后再1:2.5水泥微膨脹砂漿將預留40*80凹槽補平,見圖12 。

圖12 連接件位置示意圖
八、門、窗框與墻體之間間隙嵌實:門、窗在下框及兩側邊框自下框向上20cm范圍內采用1:2.5水泥微膨脹砂漿嵌實。其余兩側邊框和頂框處采用發泡劑嵌實,見圖13。

圖13 連接件整體布置及嵌縫示意圖
九、門、窗框與墻體處密封膠施工:所有門窗框外側處全部采用密封膠,為了保證打膠質量及美觀,密封膠寬度不大于10mm,在打膠前用單面膠帶貼門窗側邊處控制密封膠寬度,等待打膠結束后再撕掉單面膠帶,見圖14。

圖14 窗側部位大樣圖

圖15 窗項部位大樣圖

圖16 窗臺部位大樣圖
十、外墻膩子、涂料施工:待整個樓棟的門窗安裝結束后方可外墻涂料施工,為了確保外涂料質量,所有的外墻、門窗側邊均要批外墻水泥膩子,然后再刷外墻涂料。

