本篇文章內容由[中國幕墻網ALwindoor.com]編輯部整理發布:
隨著建筑節能保溫的不斷發展,各類新型的節能門窗在現代建筑工程中的大量應用,建筑門窗(詞條“建筑門窗”由行業大百科提供)工程目前安裝方式(即先裝法)安裝的門窗,質量通病不可避免經常發生,后裝法是在施工過程中針對質量通病不斷實踐積累產生,并在工程中得到了推廣應用。現對其結構形式、特點以及施工過程中體現出來的優點與傳統門窗安裝施工進行對比、闡述和探討。

1 目前建筑門窗工程先裝法安裝中存在的問題
1.1 門窗安裝配套材料不完善
1)目前門窗在安裝中的連接件(詞條“連接件”由行業大百科提供)規格多樣僅連接鐵片按厚薄大小區分就有七、八種。
2)門窗框與建筑結構嵌縫彈性(詞條“彈性”由行業大百科提供)材料單一,僅聚氨脂發泡劑一種無可選性。
1.2 門窗與主體結構(詞條“主體結構”由行業大百科提供)連接牢固不可靠
1)目前大型門窗大量在設計中出現,門窗抗風壓計算和主要受力分析僅僅考慮門窗框材的受力,未考慮其連接是否牢固可靠,只有取得材質和安裝質量的統一質量穩定安全系數,才能保證整體安全。
2)門窗安裝涉及到與不同材料墻體連接,不同的材料墻體需采用不同的安裝配套材料來固定。具體安裝施工中存在不區分或難區分材料墻體,而采用統一安裝配套材料來固定,沒有針對性,造成固定不牢固等缺陷。
3)窗臺及門下細石砼澆筑往往在窗框安裝后施工,存在預留洞口空隙過大,安裝構件太短固定不到或土建抹灰時末將鐵件固定,即抹灰掩蓋,導致安裝不牢固現象。
1.3 門窗安裝滲漏(詞條“滲漏”由行業大百科提供)水問題
1)門窗框四周水泥砂漿抹灰因有框料阻擋使抹灰不到位或框安裝時有墊塊末拆除,產生空鼓、裂縫等導致墻體滲漏水。
2)嵌填聚氨脂發泡劑前未把縫內的垃圾清理干凈,縫隙大小不均勻,有超過15mm縫隙沒有另外打底,打完發泡劑沒有檢查,有漏打、空隙、不密實現象,從而發生滲漏水。
1.4 門窗安裝成品保護問題
1)鋁的化學性能決定了鋁門窗必須考慮抗腐蝕問題,在門窗框安裝后再進行土建施工如抹灰、窗臺澆筑等,容易保護膜破損,導致鋁材腐蝕氧化。
2)門窗框安裝后土建項目基本未完成。在后續土建施工過程中,門窗框的下框還要受到挑板等重物的擠壓或粉刷時人為踩踏,最后導致保護膜破損,材料變形等影響門窗扇安裝質量。
1.5 在技術水平和設備的問題
與歐美、日本等國外經濟發達國家的門窗安裝技術相比較,在設計理念、新產品研究開發、材料品種質量、制作安裝的設備及專業安裝隊伍培養方面都存在著較大的差距。相關工工藝標準及規范修訂周期過長,使得一些剛剛出臺,頒布實施的新工藝標準和規范,就已經不能適應當前建筑門窗安裝發展的最新需求。

2 后裝法安裝工藝
2.1 后裝法概念
門窗后裝法施工是在砌筑墻體時按照門窗的尺寸(是門窗的洞口尺寸,不是門窗的加工尺寸)預留出門窗的洞口,等內外墻的抹灰基本完成后,再安裝門窗框。
2.2 后裝法方法
門窗后裝法方法是通過副框式預埋件與墻體連接的或設置多點式鐵件與膨脹螺栓預置連接。
2.3 后裝法工藝
副框或多點式預埋件進場,查水平線,劃垂直線、進出線,洞口對位,清潔洞口,并在固定的砼塊處安裝副框或預埋件,隱蔽檢查驗收,土建配合高標準粉刷門窗洞口后,在副框靠室外周邊打第一度硅膠,安裝門窗框牢固后注打泡沫膠(發泡膠)將門窗框與墻體間的縫隙填充密實,再在門窗框室外打第二度硅膠,在內側打硅膠,再安裝門窗內扇。
2.4 后裝法的技術要點
1)必須搞好門窗安裝與土建施工的配合。明確土建配合施工內容,使配合有針對性,土建施工要按設計要求確保門窗洞口的尺寸的準確性和洞口周邊的粉刷質量。如洞口寬度、高度誤差挑窗±5mm,平窗±10mm,洞口對角線誤差5mm。在門窗安裝前配合檢查尺寸及三線(垂直線、水平線、進出線),同時要檢查整個立面門窗框體在水平線和垂直線符合設計圖紙要求。
2)在門窗框安裝前檢查副框或多點式預埋件安裝質量,并清潔框邊縫隙室外一側打第一度硅膠,做好第一道防滲漏水措施。門窗框安裝好后室外打第二度硅膠,形成第二道防水屏障。打硅膠時注意周邊保護(用膠粘帶蓋住窗框及墻面,在硅膠表干時,再撕掉),接槎順直,平滑有弧度,保證打膠質量。

3 后裝法的優點
3.1 安裝材料配套
副框式預埋件與墻體連接的或設置多點式鐵件與膨脹螺栓(詞條“螺栓”由行業大百科提供)預置連接,適用各類墻體,施工簡單無須安墻體材料區別固定。
3.2 施工周期短
由于門窗框扇安裝可一次性連續安裝,現場施工倉庫占用少,大大減少了搬運堆放的現場工作量,施工工期有效縮短,一般可縮短施工工期10%。
3.3無二次污染符合綠色環保要求
門窗框安裝等內外墻的抹灰基本完成后再施工,避免抹灰濕式作業施工造成的二次環境污染,不必考慮包保護膜防污染,節約了包保護膜費用和土建施工帶來污染產生的返工費用。滿足綠色環保建筑的要求。
3.4 防滲漏水克服了質量通病
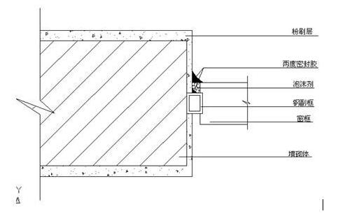
后裝法不需有門窗框的情況下填塞縫保證了粉刷質量整體性預防了門窗框底滲漏水,副框和門窗框的二度硅膠增加防水屏障有效地克服了空鼓滲漏水等質量通病,減少后遺糾紛。如圖所示:

3.5 符合節能要求
增加了副框使框內外冷熱橋在框管腔內斷開形成封密隔斷空腔達到了保溫節能要求。
3.6 保證了強度
后裝法中的副框一般采用鋼質材料且預埋式安裝,不會產生連接不牢固現象,并增加門窗框料的受力強度。

4 后裝法在工程中的應用
門窗后裝法施工則是品質細節工藝的又一提升不可謂不好,看似簡單的抹灰與安裝門窗施工前后工藝調整,但其中還是隱含著不少奧妙的,在實際施工雖其成本增加了一點,但最大好處能大大減少由于粉飾、嵌縫工序造成門窗材料表面的污損和變形,有效保護材料表面;也基本解決了最頭疼的水泥嵌縫不密實導致墻體與窗框之間滲漏水的問題。如某工程是高檔群體別墅,外墻采用干掛石材,門窗內外材質不一致本易在墻體與窗框之間產生滲漏水,而且本工程采用的是新門窗系統(詞條“門窗系統”由行業大百科提供)材料需定制周期長,給門窗安裝施工工期很短。由于因施工的不可持續性,傳統的安裝方法難免發生門窗材料表面的污損和破壞如石材施工和抹灰,其框子與墻體之間縫隙通過粉刷解決,密封防水也會帶來質量通病,并且材料原因會影響工期延。經過研究討論本工程采用了后裝法施工,不但解決了工期問題,還有效防范了外墻石材與窗框的接縫的滲漏水。
5 結語
總之,通過實踐證明,門窗工程后裝法對比傳統的安裝方法具有無比的優越性,盡量采用后裝法對我們預防門窗滲漏水,對節能環保、施工工期等都將有積極的影響。
參考文獻
[1] 鋁合金門窗技術規范
[2] 鋁合金門窗的安裝與防滲水
[3] 標準洞口鋁合金門窗安裝施工處理要點