在當下的建筑中,玻璃幕墻的運用之廣相信大家都是有目共睹的。所以,玻璃幕墻一直是我們討論的重點。從最初的玻璃幕墻介紹、到玻璃幕墻的分類、再到玻璃幕墻的清洗和護理方式等等,這些都是我們已經討論過很多遍的問題。但是,我們從來沒有認認真真全面的為大家帶來過這些玻璃幕墻的安裝施工內容。所以,今天就為大家帶來常見的全玻璃幕墻(詞條“全玻璃幕墻”由行業大百科提供)的安裝施工步驟,希望能夠對大家有用!
施工機具:電動吸盤機
一、施工準備
(一)技術準備:技術資料收集,現場土建設計資料收集和土建結構尺寸測量,設計和施工方案確定。
(二)材料及機具準備:主要材料質量檢查(玻璃的尺寸規格是否正確,金屬結構構件的材質是否符合設計要求,構件是否平直,加工尺寸、精度、孔洞位置是否滿足設計要求)、主要施工機具檢查、搭腳手架。
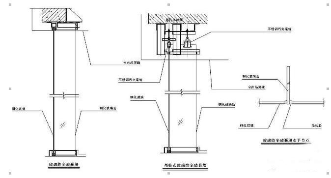
二、吊掛式全玻璃幕墻安裝施工
(一)放線定位
1.測量放線
(1)幕墻定位軸線的測量放線必須與主體結構的主軸線平行或垂直,以免幕墻施工和室內外裝飾施工發生矛盾,造成陰陽角不方正和裝飾面不平行等缺陷。
(2)要使用高精度的激光水準儀、經緯儀,配合用標準鋼卷尺、重錘、水平尺等復核。對高度大于7m的幕墻,還應反復2次測量核對,以確保幕墻的垂直精度。要求上、下中心線偏差小于1~2mm.
(3)測量放線應在風力不大于4級的情況下進行,對實際放線與設計圖之間的誤差應進行調整、分配和消化,不能使其積累。
2.放線定位
全玻璃幕墻是直接將玻璃與主體結構固定,那么應首先將玻璃的位置彈到地面上,然后再根據外緣尺寸確定錨固點。

(二)上部承重鋼構安裝
(1)注意檢查預埋件或錨固鋼板的牢固,選用的錨栓質量要可靠,錨栓位置距離鋼筋混凝土構件邊緣要滿足設計要求,鉆孔孔徑和深度要符合錨栓廠家的技術規定,孔內灰渣要清吹干凈。
(2)每個構件安裝位置和高度都應嚴格按照放線定位和設計圖紙要求進行。最主要的是承重鋼橫梁的中心線必須與幕墻中心線相一致,并且橢圓螺孔中心要與設計的吊桿螺栓位置一致。
(3)內金屬扣夾安裝必須通順平直。要用分段拉通線校核,對焊接造成的偏位要進行調直。外金屬扣夾要按編號對號入座試拼裝,同樣要求平直。內外金屬扣夾的間距應均勻一致,尺寸符合設計要求。
(三)下部和側邊邊框安裝
要嚴格按照放線定位和設計標(詞條“設計標”由行業大百科提供)高施工,所有鋼結構表面和焊縫刷防銹漆。將下部邊框內的灰土清理干凈。在每塊玻璃的下部都要放置不少于2塊氯丁橡膠墊塊,墊塊寬度同槽口寬度,長度不應小于100mm.

(四)玻璃安裝就位
1.玻璃吊裝
(1)再一次檢查玻璃的質量,尤其要注意玻璃有無裂紋和崩邊,吊夾銅片位置是否正確。用干布將玻璃的表面浮灰抹凈,用記號筆標注玻璃的中心位置。
(2)安裝電動吸盤機。電動吸盤機必須定位,左右對稱,且略偏玻璃中心上方。
(3)試起吊。電動吸盤機必須定位,然后應先將玻璃試起吊,將玻璃吊起2—3cm,以檢查各個吸盤是否都牢固吸附玻璃。
(4)在玻璃適當位置安裝手動吸盤、拉纜繩索和側邊保護膠套。
(5)在要安裝玻璃處上下邊框的內側粘貼低發泡間隔方膠條,膠條的寬度與設計的膠縫寬度相同。

2.玻璃就位
(1)吊車將玻璃移近就位位置后,使玻璃對準位置徐徐靠近。
(2)上層工人要把握好玻璃,防止玻璃在升降移位時碰撞鋼架。利用吊掛電動吸盤的手動倒鏈將玻璃徐徐吊高,使玻璃下端超出下部邊框少許。此時,下部工人要及時將玻璃輕輕拉入槽口,并用木板隔擋,防止與相鄰玻璃碰撞。另外,有工人用木板依靠玻璃下端,保證在倒鏈慢慢下放玻璃時,玻璃能被放入到底框槽口內,要避免玻璃下端與金屬槽口磕碰。
(3)玻璃定位。安裝好玻璃吊夾具,吊桿螺栓應放置在標注在鋼橫梁上的定位位置。反復調節桿螺栓,使玻璃提升和正確就位。
(4)安裝上部外金屬夾扣后,填塞上下邊框外部槽口內的泡沫塑料圓條,使安裝好的玻璃有臨時固定。
4
(五)注密封膠
(1)所有注膠部位的玻璃和金屬表面都要用丙酮或專用清潔劑擦拭干凈,不能用濕布和清水擦洗,注膠部位表面必須干燥。沿膠縫位置粘貼膠帶紙帶,防止硅膠(詞條“硅膠”由行業大百科提供)污染玻璃。
(2)要安排受過訓練的專業注膠工施工,注膠時應內外雙方同時進行,注膠要勻速、勻厚,不夾氣泡。注膠后用專用工具刮膠,使膠縫呈微凹曲面。
(3)耐候硅酮嵌縫膠的施工厚度應介于3.5~4.5mm之間,膠縫的寬度通過設計計算確定,最小寬度為6mm,常用寬度為8mm,對受風荷載較大或地震設防要求較高時,可采用10mm或12mm。
(六)表面清潔和驗收
將玻璃內外表面清洗干凈,再一次檢查膠縫并進行必要的修補。
施工注意事項:
吊掛式全玻璃幕墻由于系無框架幕墻,而且單塊玻璃面積也較大,因此,施工時應特別注意以下幾點:
*玻璃磨邊。玻璃的加工一定要將上下端磨平,不要因上下端不外露,而忽視了質量要求。玻璃在生產和加工過程中,存在有內應力。玻璃在吊裝中下部要臨時落地受力;在玻璃上端有吊夾銅片,局部應力很大。如果邊緣不平整,玻璃在使用中復雜的外力和內應力共同作用下容易產生裂紋。
*玻璃的包裝。由于玻璃尺寸較大,一般每2塊裝1木箱,木包裝箱一定要牢固,設計好吊裝點。玻璃在包裝箱內除四周要用聚苯乙烯泡沫板塞緊外,玻璃和玻璃之間也不能簡單用紙張分隔,一定要用雙面巾聚苯乙烯泡沫板塞緊。玻璃包裝箱在運輸、吊裝過程中,里面的玻璃不能有移動。尤其要注意貼有吊夾銅片的端面分別放置在兩頭,要防止它們受外力的沖擊,而導致玻璃破裂。
*內外夾扣設計。在設計玻璃內外夾扣和邊框時,要密切與其他專業施工配合,要防止在安裝好玻璃幕墻后,其他專業施工又在上方焊接或在夾扣上鉆孔。因為其他專業施工隊不了解玻璃幕墻的特殊構造,只考慮自己專業施工的方便,而焊接火花焊渣飛濺到玻璃上會造成玻璃不可恢復的損害。其他專業施工人員更應注意防止工具物件墜落,以免造成玻璃破裂。