本文摘自:《建筑幕墻(詞條“建筑幕墻”由行業大百科提供)創新與發展》未經許可不得轉載
隨著人們對建筑裝飾美觀要求的不斷提高,越來越多的現代建筑開始使用玻璃護欄。在對建筑室外玻璃護欄(以下簡稱玻璃護欄)的工程設計中,設計師通常會直接采用現行的荷載規范、工程設計規范以及部分產品標準對其構配件的采用、結構分析以及功能設計等方面進行綜合考慮。雖然國內現行規范對室外建筑護欄的建筑設計要求及安全規定已具備,但可全國通用并且覆蓋各常見結構形式的玻璃護欄工程技術規范目前仍處于缺失狀態。因此,從事玻璃護欄工程設計的從業人員應當掌握相關專業知識及經驗,而理清該領域的關鍵設計技術要點,是保證玻璃護欄的結構安全,以及能否滿足正常使用功能的前提。以下就建筑室外玻璃護欄設計中的技術重點進行分析和案例說明。
1 建筑室外玻璃護欄的結構形式
為對其結構性能進行進一步的研究,本文對現行的國內外規范標準(國外主要為英、美標準)進行分析,再結合國內的實際使用情況,以玻璃欄板的固定方式分類,常見的玻璃護欄大致可分為以下三大類。
1.1框支承玻璃護欄
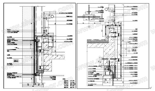
玻璃欄板鑲嵌固定于護欄系統內所形成框體之中,形成框支承面板結構,玻璃欄板所受的荷載可完全傳遞到其相鄰的扶手、立柱、邊框等受力構件,再由這些構件傳遞給建筑物主體結構。玻璃面板主要用于實現安全防護功能,不作為支承結構。如圖1,2,3,4所示。

圖1 四邊支承玻璃護欄圖

圖2 兩邊支承玻璃護欄——單片玻璃鑲嵌

圖3 兩邊支承玻璃護欄——多片玻璃鑲嵌

圖4 三邊支承玻璃護欄
1.2點支承玻璃護欄
玻璃欄板通過點支承的方式固定于護欄系統,玻璃欄板所受的荷載由點支承裝置
和支承結構承受并傳遞至建筑主體結構,如圖5,6所示。和框支承玻璃護欄相似,點支承玻璃欄板也主要起到安全防護作用,并非系統的支承結構。

圖5 四點支承玻璃護欄

圖6 四點夾持支承玻璃護欄
1.3玻璃結構護欄
玻璃結構護欄(又稱全玻璃護欄,Freestanding Glass Balustrade或Structural Glass
Balustrade),是一種采用玻璃作為主要受力構件,玻璃欄板既直接承受外部荷載又將荷載傳遞至主體結構的護欄形式。因此,玻璃面板集圍護功能與支承作用為一體。如圖7,8所示。

圖7 玻璃結構護欄1

圖8 玻璃結構護欄2
2 結構設計所依據的標準和規范
目前,國內的玻璃護欄一般按建筑物外圍護結構(詞條“圍護結構”由行業大百科提供)進行結構設計。在實際工程中,國內玻璃護欄的結
構設計通常會按照《建筑結構荷載規范》GB 50009的規定執行,同時還應遵從《建筑玻璃應用技術規程》JGJ113、《玻璃幕墻工程技術規范》JGJ102等相關行業規范以及地方標準等的要求。本文將涉及到玻璃護欄結構安全的主要現行標準及規范整理如表1所示。

表1 國內玻璃護欄結構設計的主要適用標準及規范依據
鑒于專門(詞條“門”由行業大百科提供)的國家級或行業性玻璃護欄技術標準目前還處于空白狀態,國內部分地區為了更細化這一領域的技術要求,也出臺了相關的地方標準,進行玻璃護欄設計也可以參照執行,如《重慶市建筑護欄技術規程》(DBJ50-123-2010)。綜上所述,現階段玻璃護欄的結構設計主要以《建筑結構荷載規范》(GB 50009)和《建筑玻璃(詞條“建筑玻璃”由行業大百科提供)應用技術規程》(JGJ 113)為標準依據,即可覆蓋到大部分民用建筑工程的需求。
國內部分涉外的玻璃護欄結構設計,還有可能參照英、美、澳標準執行,本文也將其歸結如表2。

表2 英國、美國、澳大利亞玻璃護欄結構設計的主要適用標準及規范依據
3 兩類常見玻璃護欄的結構分析
某項目位于廣州市海珠區,由裙樓及A、B兩棟塔樓組成,總建筑面積19.2萬平方米,總建筑高度A棟159.4米,B棟133.5米,塔樓結構形式為框架核心筒結構。幕墻工程包括:A棟塔樓由隱框單元式幕墻及豎明橫隱單元式幕墻,B棟豎明橫隱單元式幕墻及東西面凹槽部位豎明橫隱框架式玻璃幕墻;裙樓由框架式幕墻、全玻幕墻、鋁板幕墻、玻璃雨棚及其他幕墻系統組成。其中建筑室外玻璃護欄均位于塔樓樓頂及裙樓女兒墻位置,塔樓部位的室外玻璃護欄用途均作為其外側玻璃幕墻的防護結構,裙樓則有部分直接承擔女兒墻功能,以滿足裙樓樓頂人員活動的需要。
本工程基本風壓Wo = 0.55kN/㎡,地面粗糙度(詞條“地面粗糙度”由行業大百科提供)取B 類,地震設防烈度:7度,設計基本地震加速度值:0.1g。
3.1點支承玻璃護欄受力分析
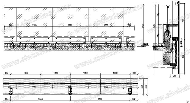
裙樓玻璃護欄采用點支承玻璃護欄的結構形式,玻璃欄板為四點支撐,欄桿有獨立扶手抵抗沖擊荷載;計算標高按裙樓最大標高17.3m,玻璃配置為10+1.52pvb+10mm夾膠玻璃。玻璃欄板寬度1195mm,欄板高度1150mm。施工圖大樣及節點圖如圖9、10所示。

圖9 裙樓室外玻璃護欄大樣圖

圖10裙樓室外玻璃護欄節點圖
玻璃護欄結構的受力分析,其重點在于玻璃欄板能否滿足工程的結構安全需要,而常規玻璃護欄的立柱、扶手等部件的結構計算均可采用普通懸挑或簡支梁模型,按現行規范要求進行結構設計及力學驗算即可,本文不再贅述。本項目采用有限元軟件ANSYS對裙樓室外玻璃護欄進行受力分析,采用shell63單元,按照國際單位制尺寸建模。計算模型取單片10mm玻璃加載,面荷載為1600N/m2;約束為四點約束。模型豎直方向為Y方向,垂直玻璃面為Z方向,平行玻璃面為X方向。按照點式支撐結構特點:約束點分布為左上點約束X,Y,Z三個方向平動,右上點約束Y,Z兩個方向平動,左下點約束X,Z兩個方向平動,右下點約束Z方向平動。模型如圖11所示。

圖11裙樓室外玻璃護欄面板結構分析模型
分析計算結果如圖12、13、14所示。

圖12 裙樓玻璃護欄面板正面強度(單位Pa)

圖13 裙樓玻璃護欄面板背面強度(單位Pa)
根據玻璃材料特點取第一主應力(詞條“應力”由行業大百科提供)結果,強度值為13.6MPa,10mm鋼化玻璃邊緣強度為59MPa,
強度滿足要求。從計算結果可以得出點式玻璃欄板的強度最大值通常發生在四個支撐點和玻璃邊緣區。
由模型還可算得風荷載作用變形為3.718mm。按照國內幕墻規范JGJ102要求點式玻璃的變形限值取支撐點間距較長邊的1/60,所以變形限值為1035mm/60=17.25mm。3.718mm<17.25mm,如圖14所示,變形滿足要求。

圖14 裙樓玻璃護欄面板風載變形分析
3.2玻璃結構護欄受力分析
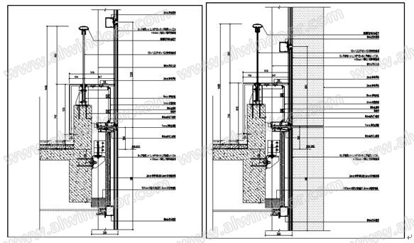
塔樓玻璃護欄玻璃欄板為底部支撐,玻璃頂部抵抗沖擊荷載;計算標高按塔樓最大標高159.4m,玻璃配置為10+1.52pvb+10mm夾膠玻璃。欄板寬度1200mm,總高度800mm,入槽深度240mm。塔樓護欄大樣圖如圖15所示。

圖15 塔樓室外玻璃護欄大樣圖

圖16 塔樓室外玻璃護欄節點圖
護欄玻璃面板同樣采用有限元軟件ANSYS進行受力分析,采用shell63單元,按照國際單位制尺寸建模,模型如圖17所示。

圖17 塔樓室外玻璃護欄面板結構分析模型
上一頁12下一頁