本文摘自:《建筑幕墻創新與發展》未經許可不得轉載
1 發展具有自主知識產權的高端建筑門窗產品
自我國經濟改革開發以來,我國新型建筑門窗系統技術的發展,包括鋁合金門窗、塑鋼門窗、復合材料門窗、多功能一體化門窗等產品都是通過引進、模仿、制造的方式在逐步發展。盡管產品種類和產能的增量每年都在發生巨大的變化,但卻很少有通過自主研發的、具有自主知識產權、具有高附加值和經濟效益的高端門窗產品出現。這與我國建筑門窗大國的地位不符,同時也將嚴重影響我國建筑門窗行業在未來的發展。要在建筑門窗系統技術通過自主研發出新的系統技術和產品,必須大力開發對建筑門窗標準、基礎理論、原理、構造、材料、加工設備、制造工藝、安裝技術、檢測方法、配套技術服務等方面的研究和開發,理清并科學的制定我國建筑門窗系統技術和產品自主研發、創新發展的方向和實施的路線,方能擺脫我國建筑門窗系統技術和產品長期引進、模仿、制造的單一模式。在我國經濟轉型發展時期,我們應通過提升自主研發的能力,形成真正的中國制造的高端建筑門窗產品來改變現有的格局,并向世界輸出中國的門窗技術和產品,開拓業界的新領地。
1.1 高科技含量的建筑門窗
1)適用于被動式建筑的超低能耗高效節能門窗
被動式超低能耗建筑門窗是指適用于被動式超低能耗建筑的外門窗,其發展和應用在我國剛剛開始。根據我國住建部建筑節能標識申報和認證結果所提供的資料顯示,我國節能門窗的傳熱系數已接近1.3W/m2k,有個別產品甚至低于此值,可達0.8W/m2k左右,但大部分節能門窗的傳熱系數均在1.8-2.2 W/m2k之間。比較起國外的同類產品,被動式超低能耗建筑外窗的傳熱系數低于0.8W/m2k的要求,我們仍有較大的差距。目前,我國住建部頒布被動式超低能耗綠色建筑(居住建筑)外窗傳熱系數的要求,根據我國氣候分區不同在0.7-2.0 W/m2k之間。為達此目的,我國超低能耗高效節能門窗在降低傳熱系數、提高節能效果和改善室內使用環境性能方面,除了在玻璃選用上采取措施外,尚需在框架材料及其構造、保溫隔熱材料及其構造、密封材料及其密閉構造和通風換氣方式等進行全面的探討和深化設計。圖1為實測傳熱系數為1.3W/m2k的生態木塑鋁復合窗節點及等溫線圖。
2)適應于各種極端氣候下的高性能門窗
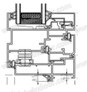
我國東西南北跨越了許多不同的氣候帶以及各種類型的使用環境,北到黑龍江的漠河,極端寒冷的氣溫在冬季可達到零下43Co以下;南到南沙島礁,高溫濕熱以及嚴酷的腐蝕環境;東到沿海地區,特別是偏北的沿海地區,即要防風防雨,尚要節能保溫;西到大西北及新疆地區,強烈的沙塵暴和寒冷的狀況等等,這些都需要開發出具有獨特適應性能的門窗來給予應用。以往模仿某一地區的某種窗型,采用單一門窗類型、單一構造形式、單一框架材料、單一安裝方式設計的門窗企圖在我國不同的氣候帶打天下的作法已不能滿足我國建筑門窗的需要。在嚴寒地區,我們應注重門窗的節能保溫性能,結合嚴寒地區多處于嚴重霧霾和沙塵地帶,尚需要考慮門窗的通風換氣和空氣過濾功能;對于南方高溫地區,需通過降低門窗太陽能得熱系數,提高門窗隔熱性能來保證門窗在夏季具有良好的節能性能;由于我國沿海地區跨越的氣候帶較多,門窗的性能和構造設計比較復雜,難度較大,通常應以抗風、防水為主,通過選用不同的窗型和開啟形式來兼顧和解決門窗的節能保溫和通風等問題,同時還要考慮沿海地圖2區高腐蝕環境對門窗使用壽命的影響。圖2為具有高抗風、高水密性能和遮陽裝置(內置中空玻璃百葉),適用于我國南方沿海地區用鋁合金門窗節點圖(詞條“節點圖”由行業大百科提供)。


3)適用于互聯網的智能門窗
智能控制和互聯網技術的迅猛發展有力的催生和推動智能門窗的發展,未來的智能門窗將在家居安全、舒適性和節能等方面有較大的發展。智能門窗可通過與氣象信息的連接和自然的感應,預測天氣的變化,自動調節和啟閉門窗的開啟狀態,防止門窗或室內家居在突變的天氣狀況下遭受到不必要的意外損壞和安全事故;與煙感燃氣檢控裝置聯動,當檢測到煙感、煤氣、有害氣體等信號時,智能控制器內微電腦自動發出相應的控制指令,將窗戶自動開啟、發出警聲并自動將警情發送到指定的電話或手機和聯控保安中心;當盜賊接近窗戶時,門窗智能控制器內微電腦發出防盜控制指令,自動將窗戶關閉并發出報警聲音和信號;采用智能手機可人為的預先遠程調控窗戶以及遮陽裝置的啟閉,達到調控室內溫度和空氣新鮮度的目的,同時也可達到節能的效果。智能門窗未來的發展有賴于智能產品和控制技術在門窗上的深度融合和應用,通過利用互聯網的通信技術,將為智能門窗的應用提供更為便捷和廣闊的市場潛力。圖3為智能門窗的控制終端和效果圖。

4)多功能集成門窗
多功能門窗在歐洲以及世界其他地區都有很好的應用,在我國的應用也不是新的產品,但由于造價偏高而一直沒有得到較好的發展。多功能門窗一般是指將具有不同功能的產品組合到同一個門窗框架之內或同一個門窗洞口之內具有多種功能的門窗產品,如將遮陽百葉與門窗組合、通風器與門窗組合、保溫卷簾與門窗組合、防塵紗窗與門窗組合、通過調節不同使用狀態來改變門窗使用能的門窗等等。隨著居住建筑對舒適性和節能要求的提高,更多關注產品性能和質量的用戶將是這一產品的需求和擁有者。圖4為帶有高性能除塵功能通風器的門窗。

5)裝配式門窗(單元門窗)
隨著居住建筑產業化的發展,裝配式門窗的產生和應用是必然的結果,也是未來門窗發展的主要方向之一。裝配式門窗也可稱之為單元式門窗,其主要特點是在門窗的裝配和安裝上與現有門窗有較大的區別。它將利用采用精準的施工方法所預留出來的門窗洞口,如采用鋁合金(詞條“鋁合金”由行業大百科提供)模板等進行混凝土施工,或PC板塊預留出來的門窗洞口,采用機械設備在施工現場將已預制完成的整體門窗在預留洞口上進行裝配式安裝,以達到提高工程質量、施工效率和門窗產品工業化的水平。
6)耐火門窗
我國《建筑設計防火規范》GB50016-2014的實施,對建筑門窗的耐火性能提出了新的挑戰。在我國現有建筑門窗中,除了鋼質門窗的框架材料能滿足耐火完整性不宜低于1.00h的要求外,其他種類的門窗卻難以達到此要求。目前,各種新型防火材料發展迅速,如防火膨脹密封條、膨脹型防火板(詞條“防火板”由行業大百科提供)材、防火棉條、B1級防火硅酮膠、吸熱型防火灌注料、防火玻璃(詞條“防火玻璃”由行業大百科提供)墊片、阻燃性聚氨酯(PU)泡沫膠等,為提高門窗的整體耐火性能提供了良好的條件。我們可通過采用不同的新型防火材料和復合技術,在保留原有門窗外觀特性和性能的條件下,使鋁合金門窗、塑鋼門窗和鋁木復合窗的框架材料在耐火性能有一個大的提高,結合采用新型防火玻璃,在保持傳統門窗的外觀效果、抗風壓(詞條“風壓”由行業大百科提供)、氣密、水密、節能基礎上,使門窗的整體耐火性能達到一個新的水平,以滿足建筑設計防火的要求。
7)新型五金(詞條“五金”由行業大百科提供)配套件
我國高性能門窗的開啟形式經過多年的使用總結,目前集中在外平開窗、內開內倒窗、平開門、提升推拉門、平移門窗(滑拉)。其他開啟形式的門窗,或由于傳統系統的構造或性能缺陷(如:氣密水密性不足的推拉窗、折疊門);或由于難以滿足綠建要求通風(如:外平推窗);或由于國內沒有五金配套件而在國內建筑設計采用較少(如:提升窗、中懸窗、),固采用較少。但是隨著建筑功能及人性化的需求,許多新的門窗系統必將進行全面的研發,而所有的研發很大程度需要新型五金配套件的支持和配合。例如排煙窗,以往通常采用上懸窗來代替,但按照最新綠建和消防排煙的相關要求,上懸窗的通風量和排煙方式已不可能適應使用要求,日后使用必將受到限制;而中懸窗、高性能推拉窗、配合消防電控系統的下旋窗則有可能需求增長,但相應的五金配套件去十分稀缺,急需要對相關的五金配套件進行研發和生產。同時,五金配套件的質量也是影響建筑門窗安全、質量和性能的關鍵部件,必須給予極大的重視。
8)門窗標準及設計基礎研究
要推動各項高科技含量門窗的發展,必須不斷的提升門窗產品的標準水平,開展門窗設計基礎理論的研究,特別是影響門窗各項性能的原理和構造的研究。我國現在在高尖端門窗產品落后于世界發達國家,其主要差距也就在于我們的門窗產品標準與國外尚有一定的差距,在基礎理論、原理和構造研究等方面未能有進行資金和人員的大力投入,門窗系統的開發大部分處在跟隨模仿的階段,其結果就是技術和產品水平的落后。為此,在門窗未來發展中,誰在門窗性能上優先采用高標準,誰在門窗設計基礎的研究上有更多的投入,誰能真正掌握和開發出先進的具有自主知識產權的門窗產品,誰將能更好的主導和引領門窗產品的市場。
1.2 提升建筑門窗的產品質量
高質量門窗產品需要完善的產品設計作為保障。除了門窗系統的性能和構造設計外,高質量門窗設計主要還包括了門窗配套件、工裝工藝和安裝工法的設計及其實施。促進門窗質量的提升必須在這幾方面下功夫。
1)配套完整和精細化的配套件設計
高質量的門窗離不開完整、精細和高質量門窗配套件的設計和應用。影響門窗質量的配套件不僅僅只有啟閉執手、鎖閉器(詞條“鎖閉器”由行業大百科提供)、滑撐(合頁、滑輪)和膠條,其中許多對門窗整體質量具有同等意義而又容易被忽視的配件,如門窗用連接件(角碼、插接件、固定件)、密封件(復合型膠條、整體教條)、附件(墊塊、堵頭)、標準件(螺釘、自攻釘)等,都需要在每一個配件的力學、壽命、尺寸、外觀、材料上進行準確精密的設計,使每一個配件都能在門窗的相應位置發揮最佳的作用,門窗質量才能做到配套完整和盡善盡美。
2)完善穩定的門窗工裝工藝設計
完善穩定的門窗工裝工藝對門窗性能和外觀效果有重大的影響,F有的門窗加工,由于門窗產品缺乏標準化,品種變化多,因而難于形成相對完善,特別是穩定的門窗加工、裝配工藝程序,給門窗加工質量和裝配精度(詞條“精度”由行業大百科提供)帶來較大的負面影響。建立完善穩定的門窗加工、裝配工藝,應包括系統化和標準化的門窗產品設計、齊全的材料明細、固定的工裝工藝流程和崗位設置、準確的零件加工和整窗工裝設計圖、配套的加工設備和工裝工具等,對于同一系統同一系列的門窗,不管其規格有何變動,其對應的工裝工藝是不可隨意變動的,這將能有效的提高門窗質量及其穩定性,確保門窗產品的高質量水平。
3)裝配式的門窗安裝工法設計
門窗安裝一直是影響我國門窗質量的難題,目前普遍存在的門窗雨水滲漏、產品表面防護不好、安裝效率低下等都與門窗的安裝方法有不可分割的關系。隨著門窗產業工業化發展的需要,同時也為了解決安裝質量對門窗性能帶來的不良影響,設計新型的裝配式門窗安裝構造和安裝工法是確保提升門窗整體質量的關鍵一環。將門窗設計成為在工廠內整體加工和裝配完成,并在窗框預留可供裝配式安裝的搭接槽口的單元式門窗,同時設計出可供不同氣候環境和不同墻體的洞口構造(包括既有門窗的改造)使用的門窗附框,在建筑室內外完成表面施工后,依照規定的安裝工法將門窗在現場進行整體安裝,將能非常有效的避免現有施工方法給門窗質量所帶來的不良影響。
2 建立完善的建筑門窗產品認證和評價體系
產品認證是國際通行的產品質量保證模式,是構成國家質量技術基礎的支柱。產品認證在國外已有上百年的發展歷史,上世紀50年代已普及到所有工業化國家。隨著貿易國際化,市場全球化的進程,從上世紀70年代起,產品認證已從發達國家的內部實施變成了跨國貿易互相認可的方式,成為國際貿易中消除非關稅壁壘的一種手段,促進了國際貿易的發展。為此,國際標準化組織專門成立了合格評定委員會指導產品認證。因此產品認證也是中國與國際接軌的必然選擇。隨著我國改革開放的不斷深入和社會主義市場經濟的不斷發展,加快發展第三方檢驗檢測認證服務,不斷增強檢驗檢測認證機構的權威性和公信力,為提高產品質量提供有力的支持保障服務具有十分重要的意義。
門窗質量認證在歐洲發達國家已有近半個世紀的歷史,但在中國卻是開創性的事業。為了滿足建筑門窗行業發展的需要,順應當前行業提升產品功能、性能和質量的迫切要求,從供給側發力促進行業產業結構調整和轉型升級,必須加快我國建筑門窗質量認證的進程。門窗認證體系結構主要包括三方面:
1)門窗用主要材料的認證。制造門窗所用的主要材料有主型材、五金件、密封材料和玻璃等,其質量的優劣和穩定性,對最終的門窗產品質量有重要影響;
2)門窗系統技術評價。門窗系統技術評價旨在對某一門窗系統的研發設計成果(而不是門窗產品的制造質量)進行預見性的技術評價。即,基于定量(檢測和計算數據)和定性分析,對門窗產品的適用范圍、使用性能及其持久性,對組成門窗的材料質量和對門窗產品的制造與安裝等進行預見性的綜合評價;
3)門窗產品認證。實際是根據門窗系統技術評定的要求,對門窗產品實施質量進行認證。主要包括:型式試驗,制造現場抽取樣品檢測或檢查,市場抽樣檢測或檢查,企業質量保證體系審核,獲得認證后的后續跟蹤檢查等內容。
門窗系統技術評價是門窗認證體系的重要一環,為確保建筑門窗認證的開展,建立完善的建筑門窗系統技術的評價體系,是促進和確保我國建筑門窗健康發展的首要關鍵環節,它將在提高我國建筑門窗系統設計能力、產品質量水平以及推動高端建筑門窗產品的應用起到重要的作用。建筑門窗系統技術評價體系的形成,首先應是評價標準體系的形成。我國目前在建筑門窗產品方面已有一系列較為完善的產品標準體系,包括GB/T 8478《鋁合金門窗》、GB/T 28887 《建筑用塑料窗》、GB/T 28886 《建筑用塑料門》、GB/T 20909《鋼門窗》、GB/T 29734.1 《建筑用節能門窗第1部分:鋁木復合門窗》、GB/T 29734.2 《建筑用節能門窗第2部分:鋁塑復合門窗》、GB/T 29498 《木門窗》、JG/T464 《集成材木門(詞條“木門”由行業大百科提供)窗》等,與之配套使用的建筑門窗產品性能檢測方法和工程技術標準,包括JGJ 214 《鋁合金門窗工程技術規范》、JGJ 103《塑料門窗工程技術規程》、JGJ 362《塑料門窗設計及組裝技術規程》等。在這一系列標準中,主要包含了對建筑門窗產品設計性能、加工和安裝質量的要求及產品性能和質量檢驗檢測方法,其對我國現有的建筑門窗產品質量和工程安全使用的管控起到了重要的保證作用。這一系列標準可對建筑門窗的產品性能、加工和工程安裝質量在技術層面上進行較全面的評價,但尚未能完全包含其它方面的綜合評價,如產品經濟性和適用性等。作為建筑門窗產品的全面、綜合的評價標準體系,將包括對產品性能適用性、可靠性、耐久性、裝配性、實用性、可維修性、性價比、外觀效果等方面的評價,以真實的界定不同建筑門窗產品的實際水平和使用價值,同時客觀指導建筑門窗的建筑設計單位和使用單位能正確的選用和使用不同的建筑門窗產品。
目前在我國尚未有完善的建筑門窗產品認證機構從事建筑門窗產品的評價和認證工作,F在仍在開展和進行的是住建部建筑節能性能標識的建筑門窗節能標識認證,全國各主要省份和大城市的建筑門窗幕墻檢測機構基本為檢測和認證單位,各單位的檢測和檢查驗證結果經住建部建筑節能性能標識專家委員會專家審查通過后給以認可并發出專項的節能標識。除此之外,其他符合我國國情的建筑門窗認證活動還沒有真正開展起來。隨著建筑產業化的發展,建筑門窗的生產方式將會發生極大的變化。門窗將由原來依工地現場訂制,加工制作施工一體的工程,轉變為依設計需要,選型、批量采購的工業產品,產品的制作加工與安裝完全分離成不同的單位負責。從而使產品認證及相關的出廠質檢變得尤為重要。門窗產品認證正是配合建筑產業化的一個必要的工作。因此,通過學習引進國外認證機構開展門窗認證的經驗,結合我國建筑門窗行業發展的實際需要,按照國務院有關完善認可認證管理模式的要求,加快建筑門窗產品認證和評價體系的建立和實施,以達到夯實建筑門窗質量技術基礎和提升門窗行業產品供給能力和水平,促進門窗行業技術進步的目標。
3 推動建筑門窗產業的工業化
建筑門窗工業化是我國建筑門窗未來發展的方向,它將有力的促進現有門窗產業從傳統工業模式向技術密集的高新技術型產業發展,增強產業可持續發展的能力;加快產品更新換代,提高產品和工程質量;充分發揮技術和人力資源優勢,提高工作效率和經濟效益;降低資源消耗,減少環境污染,達到綠色環保的發展目的。
3.1 構建完善的建筑門窗標準化體系
建筑門窗標準化體系是建筑門窗工業化的基礎,它涵蓋了建筑門窗洞口尺寸的模數化、建筑門窗產品的系統化和建筑門窗產品規范化應用等一系列與標準化相關的基礎工作,構建完善的建筑門窗標準化體系應從這主要的三個方面展開。
1)大力宣傳和推廣建筑門窗洞口尺寸設計模數化
自上世紀我國進行改革開放以來,在大規模的經濟建設中,建筑模數標準化和建筑門窗洞口模數化的概念和應用在建筑設計中已經非常淡薄,執行力度極低。在建筑設計中,不規范的、任意的建筑門窗尺寸設計和要求,給標準化和系統化的建筑門窗產品設計帶來了嚴重的影響,對建筑門窗的工業化產品生產和安裝帶來極大的阻力,使建筑門窗工業化失去了發展的基礎。因而宣傳和執行建筑模數標準化標準,強化建筑門窗洞口尺寸設計模數化在建筑設計中的應用,是構件完善的建筑門窗標準化體系的首要工作,是實現門窗工業化的基礎和保證。目前,我國涉及到建筑模數標準化和建筑門窗洞口模數的標準還不完善,現行標準僅有GB/T50002-2013《建筑模數協調統一標準》;GB/T5824-2008《建筑門窗洞口尺寸系列》以及GB/T 30591-2014《建筑門窗洞口尺寸協調要求》,且均為推薦性標準,實行力度有限。因而應在建筑設計中對嚴格實行建筑模數標準化設計和建筑門窗洞口尺寸設計模數化進行廣泛的標準宣貫,強化標準的執行力度。同時也應采取一些必要的強化措施,如編制相關的強制標準來確保建筑模數標準化設計和建筑門窗洞口尺寸設計模數化的實施,以達到加速推動建筑門窗工業化的發展。
2)設計和生產完善配套的建筑門窗產品
完善配套的建筑門窗系統化、系列化產品,是實現建筑模數標準化設計和建筑門窗洞口尺寸設計模數化的保障,它為建筑設計在進行建筑門窗設計的選型提供了適合規范要求的系列產品。近年來,隨著建筑門窗系統設計概念的不斷提升,我國建筑門窗產品系統設計和配套的產品系列化越來越多,產品性能和質量正在不斷的提高,但整體的技術水平還有待提高,真正完善和配套的門窗系統不多,門窗系統的開發仍處于模仿的發展階段。為滿足構建完善的建筑門窗標準化體系的需要,我們應著力通過對建筑門窗基礎理論、原理、構造、材料、加工設備、制造工藝、安裝技術、檢測方法、配套技術服務等方面的研究,開發具有自主知識產權、具有高附加值和經濟效益的完善配套的建筑門窗產品,這樣才能滿足構建完善的建筑門窗標準化體系的需要。
3)搭建并形成系統化的門窗產品技術服務信息平臺
搭建并形成系統化的門窗產品技術服務信息平臺,目的是通過倚重大數據時代和BIM技術的發展,將國內外先進的門窗系統產品向整個建筑業進行推廣應用,確立完善配套的建筑門窗產品在我國建筑領域里的地位,逐步淘汰落后的門窗產品,并通過平臺來指導和規范建筑門窗產品全生命過程中各個環節的標準程序,包括產品的開發、工程應用中的門窗系統選型和設計、門窗產品加工和安裝、產品質量控制和監管、原材料的供應、產品使用過程的維修維護技術等,使建筑門窗產品從開發、生產建造到應用的全過程真正形成一個完善、標準的運作系統。在這一技術服務信息平臺下,通過大量數據所形成的各種數據庫,包括各種門窗系統的系列產品、適用于不同產品和工程的精準設計軟件、產品原材料采購指引、加工工裝和安裝工法指南、產品質量控制和檢驗檢測方法和產品使用維護維修技術手冊等,使得門窗產品的加工、建造和應用更加簡易、可靠和標準,為進一步提高建筑門窗工業化水平創造新的基礎。
3.2 實施工業產品化的門窗生產方式
門窗產品生產工業化是指用工業產品的生產方式,采用現代化的機械加工設備,標準的穩定的生產工藝和工裝方法,高水準的質量標準和嚴格的質量檢驗保證體系在工廠全過程的控制和生產門窗產品。
1)采用現代化的機械化加工
手工作業或部分采用機械加工的門窗生產方式在以往的門窗生產過程中是一種常規的傳統方式,許多的門窗產品甚至到了施工現場才最后拼裝出來的情況也不為少見。這種傳統建筑產品生產方式所生產的門窗產品往往精度低質量差,給門窗的使用帶來了許多不良的后果。采用現代化的精密的機械化加工和裝配,產品從門窗原材料進廠到成品完整包裝出廠的工業產品化門窗生產方式已在門窗行業中逐步實施,這將大大的提升產品的質量和工作效率,并向門窗工業化邁出堅實的一步。
2)設計編制標準穩定的門窗生產工藝和工裝方法
傳統的門窗生產方式,由于在門窗系統設計的過程中,基本沒有進行門窗產品的配套加工設計,造成了門窗生產加工工藝和工裝方法的缺失,給門窗產品的加工和裝配帶來了很大的影響,再加上門窗產品形式不穩定,變化多,人員換崗頻繁,門窗產品的質量得不到有效的保障。因而在未來的門窗產品設計時,我們應強化門窗產品加工工藝和工裝方法的研究和設計,并開發出各種有效的工藝和工裝機具來確保門窗產品的加工質量。
3)實行高標準的嚴格質量檢驗體系
門窗質量檢驗標準是控制門窗質量體系的技術保證之一,在我國現行的門窗產品標準和工程技術規范中已有門窗產品的質量檢驗方法和要求。作為面向未來的門窗產品,將會有更高的技術要求,特別是在門窗整體加工和裝配精度、門窗配套件的采用和質量、門窗的安裝質量等方面都應在現有水平上有所突破,這都將依賴高標準門窗產品質量檢驗體系的建立和嚴格實施。
3.3推進門窗產品機械化施工及工法制定
要實現建筑門窗工業化,推進門窗產品安裝施工機械化是不可缺少的環節。通過設計新型可裝配門窗系統和配套的門窗安裝施工工法,是改變門窗產品在現場進行構件裝配并安裝的傳統建筑門窗安裝方法,實現門窗產品安裝施工機械化的必要途徑。
1)研發機械化施工的門窗系統
預制裝配式建筑構件是我國建筑產業化的鼓勵發展方向,也是建筑門窗產業工業化的發展方向,它是滿足建筑施工機械化的必要條件。門窗產品實施施工機械化同樣需要研發具有可在施工現場進行整體門窗裝配式安裝的門窗產品系統,它首先應是自成一體的單元式門窗,且在門窗框架預留有與建筑結構預留安裝構件相互連接的裝配槽口。門窗可采用機械設備進行整體吊裝并按照設定的工法直接與建筑結構預留構件簡潔、方便和可靠的連接固定來完成門窗的安裝。
2)設計標準的安裝施工工法
目前我國尚未有完善成熟的門窗安裝施工工法,門窗洞口與預埋窗框的連接、預埋窗框與門窗框架的連接和密封方法在設計和施工中都存在較多的問題,其中洞口與門窗框架周邊雨水滲漏就是突出的現象。為此,我們應針對不同的地域和氣候環境,不同構造的外墻立面(如具有外墻外保溫的外墻立面)設計出不同的門窗框架與建筑結構預留連接構件間的裝配技術和配套的施工工法,確保門窗產品安裝質量并滿足門窗產品機械化施工的需要。
3.4 建設全面的門窗信息化管理系統
產品信息化是工業化的標志之一,我們通過BIM技術的推廣和應用,規范性的逐步搭建并形成系統化的門窗產品技術服務信息平臺。利用互聯網渠道,大力推廣經過認證和評價系統鑒定的配套完善的建筑門窗產品信息,介紹產品的品牌、性能、材料、生產制造工藝、安裝工法、質量要求、選用指南等,使得標準化程度高、應用多、國內公認的優質門窗產品能更容易為用戶所認識和接受,確保生產企業更容易掌握高質量門窗的生產制造技術和施工管理,以達到淘汰低劣產品,減少非標產品,降低生產和建造成本,促進建筑門窗的整體發展。同時應根據建筑門窗在工程設計、加工、施工、運營維護全生命期內的特點,制定出基于BIM技術之上的建筑門窗BIM工程管理應用技術和標準體系,包括基礎設計和施工模型、細化設計和加工及施工模擬、施工進度管控和專業協調、材料及成本的管理與控制、運營過程的維護和維修等信息模型,使信息化的管理系統更好的助推建筑門窗產業在工業化的道路上得以更快的發展。
4 結語
隨著我國經濟建設的現代化,國家綜合實力的增強,人民生活水平的提高,現有的建筑門窗產品已不能滿足建筑節能環保和生活居住環境的需要。推動具有我國自主知識產權的高性能、高質量新一代建筑門窗產品是必然的趨勢和發展的方向,我們應在現有的基礎上,不斷總結經驗并依照我國的國情,設定發展的目標,在建筑門窗技術和系統研發不斷創新發展,沿著建筑門窗工業化的道路闊步前進。
參考文獻
[1] 萬成龍,王洪濤(詞條“王洪濤”由行業大百科提供),單波,閻強.我國被動式超低能耗建筑用外窗熱工性能指標研究及實測分析.見:中國金屬結構協會鋁門窗幕墻委員會.2016年年會論文集.北京:中國建筑金屬結構協會鋁門窗幕墻委員會,2016
[2] 劉萬奇.中國門窗認證的現狀和發展.北京:中國建筑金屬結構協會,2016
[3] 杜繼予.我國建筑門窗發展方向的探討.深圳:中國建筑金屬結構協會構配件委員會,2014
[4] 杜繼予.建筑幕墻門窗產業工業化探討.上海:中國建筑金屬結構協會,2013