本篇文章內容由[中國幕墻網]編輯部整理發布:
1、天然材質、光亮晶瑩、堅硬永久、高貴典雅;
2、耐凍性:石材在潮濕狀態下,能抵抗凍融而不發生顯著之破壞者,此性能稱為耐凍性。巖石孔隙內的水份在溫度低到攝氏零下20時,發生凍結,孔隙內水份膨脹比原有體積大1/10,巖石若不能抵抗此種膨脹所產生的力量,便會出現破壞現象;
3、抗壓強度:石材的抗壓強度會因礦物成份、結晶粗細、膠結物質的均勻性、荷重(詞條“荷重”由行業大百科提供)面積、荷重作用與解理所成角度等因素,而有所不同。若其他條件相同,通常結晶顆粒細小而彼此粘結一起的致密材料,具有較高強度。
橋苑藝舍項目幕墻工程是涵蓋了石材幕墻、玻璃幕墻、金屬幕墻、門窗的綜合性幕墻工程。其中石材幕墻施工難度非常高,施工工藝、安裝人員技術要求都十分嚴格,具體施工難點主要體現在:石材研習社stone5A
1.一般幕墻工程,幕墻厚度為50mm左右,而橋苑藝舍項目要求石材厚度為100mm,有些部位甚至厚度達到了200mm-600mm,這是鳳凰山首例采用如此多種規格厚度的石材進行幕墻施工的工程。



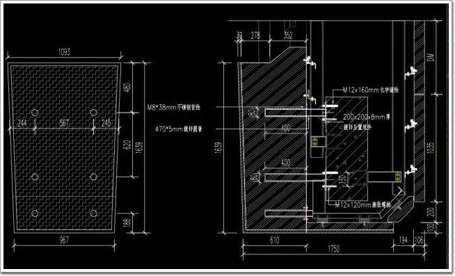
△ 北立面8-7軸門頭位置(大樣編號:FS11-002),具體節點做法詳見節點FS9-108和節點FS11-201a

△ 首、二、三層石材柱造型(節點FS9-108所示):選用100mm厚花崗巖石材,M8不銹鋼背栓(詞條“背栓”由行業大百科提供)連接

△ 門頭鎖芯石造型(節點FS11-201a所示):選用600mm厚花崗巖石材,共8個,分布在三層各個門頭,單個重量有1噸多,使用Φ70*5mm鍍鋅圓管+ M8不銹鋼背栓連接,施工中采吊車進行吊裝。

△ 樣板墻
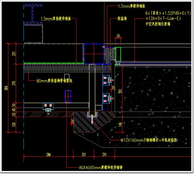
2.幕墻石材要求異形面非常多,其中最具挑戰的還屬窗花。本工程共有31套窗花(大窗花25套,小窗花6套),其中每套大窗花的整體厚度達400mm,重量約為2噸,分部于四個立面,窗花使用M12×160mm的化學錨栓進行錨固。由于窗花較重,數量又多,又分布于不同樓層,這給窗花的后續安裝帶來了一定的難度,安裝過程中我方使用了360噸位的吊車進行吊裝,并進行了多次加固。


△ 窗花石材,橫剖節點做法(節點編號:FS6-108)

△ 窗花石材,橫剖節點做法(節點編號:FS6-210)

△ 現場切割(詞條“切割”由行業大百科提供)、拼接窗花


△ 窗花的安裝、維護清理工作
3.在第2-3層間排布了15根直徑為1米大圓柱,柱子石材厚50mm,每根柱高約7.5米,由幾節不同尺寸的小柱子拼接而成,因質量要求高,每節柱子之間采用了密拼工藝,無縫對接!
△ 現場吊裝安裝圓柱
4.本工程窗系統打破了常規做法(未使用鋼副框連接系統),窗戶采用上下支點式固定方式,其中W15窗型為組合窗:是由5樘單元窗,1樘約6㎡單元窗、2樘帶開啟的單元窗、2樘轉角單元窗組合而成。其中W15-1窗戶尺寸約達到六平方米,這給后續的安裝工作帶來了一定的難度,后經多種試驗、實踐和對工具的改裝,及吊裝設備配合施工完成窗戶整體的安裝工作。




△ 現場W15窗戶吊裝

△ W15窗戶、門頭石及窗花安裝完成實景圖
5.對安裝工人的技術要求非常高,背栓孔定位受造型影響,難以精確,需嚴格按照圖紙設計的尺寸切割安裝。

△ 現場對異型石材(詞條“異型石材”由行業大百科提供)的切割
6.石材要求非常高,注重石材的厚重感和立體感,石材造型太多,出展開圖復雜,很多節點用常規的二維平面CAD圖難以表現,必須用三維立體建模,用三維BIM立體系統對圖紙節點進行設計,才能對這種復雜的節點理解到位。


7.為保證幕墻不出現色差,對于石材的色差控制也是極其嚴格,在石材到場后先預排板篩色差,上墻后整體觀察,再將出現色差的石材進行標記、拆除、更換,直至石材墻面基色一致。

△ 現場石材篩色標記、拆除


