本篇文章內容由[中國幕墻網]編輯部整理發布:
由中國建筑金屬結構協會、歐洲門窗協會等單位主辦,中國建筑學會、中國土木工程學會指導的“中國國際門窗幕墻博覽會暨中國國際建筑系統及材料博覽會(簡稱“FBC”)”,11月7日(展覽時間:11月7日-11月10日)在上海新國際博覽中心盛大揭幕。10萬㎡的超大規模展出面積將吸引超過600余家國內外大型知名企業前來參展。以下是由中國幕墻網ALwindoor.com ,中國門窗配套材料網Windoor168.com為您采集到的現場報道:

展會開幕式
開幕式結束后,主辦方中國建筑金屬結構協會領導,攜同行業專家蒞臨和平鋁業展臺指導工作,并對和平鋁業過硬的產品品質和優質的服務給予了高度評價,同時也對和平鋁業未來的發展之路給予了最誠懇的建議及肯定。

協會領導、行業專家蒞臨和平鋁業展位參觀指導照片
本屆FBC致力于為亞洲市場提供全面的、高端的建筑系統解決方案;為展商與觀眾提供豐富多彩的同期會議及論壇活動,從關注中國的城市可持續發展、未來智慧城市的建筑規劃、設計和建造等,到建筑工業4.0一站式解決方案、智能生產等核心方向,是房地產開發商、建筑師、規劃師、工程技術專家、材料生產企業不可錯過的視聽盛宴。

和平鋁業展臺
和平鋁業作為優秀的鋁型材(詞條“鋁型材”由行業大百科提供)精深加工(詞條“深加工”由行業大百科提供)企業,借助此次展會更是與鋁型材產業鏈上下游企業強強聯合,推動鋁型材產業集群與原材料供應端的深度融合,以實現行業企業合作共贏,帶動整個鋁加工產業升級發展,并大力促進地方經濟社會發展。
新技術、新工藝、新趨勢!門窗幕墻行業的路在何方……中國幕墻網ALwindoor.com 熱點解讀系列之:黃圻(詞條“黃圻”由行業大百科提供)談“2017年度門窗幕墻行業當前現狀與發展趨勢”
經過多年的努力和打拼,和平鋁業憑借產品的過硬品質,以及在市場中所展現的優異成績,與國內許多大型工程攜手合作,助力眾多門窗、幕墻工程項目,包括雁棲湖APEC國際會議中心、北京城市副中心、北京CBD核心區正大中心、陽光保險金融中心、三星中國總部大廈、騰訊總部大廈、隆福大廈,以及入圍2017-2018年度中國幕墻網大型讀者調查活動的東陽國際中心項目等等。

和平鋁業展臺
本次和平展臺,展出多款系統門窗展品,體現“智能、時尚、遮陽、安全、高性能”五大關鍵詞,和用在北京城市副中心A3、B3項目中的十字樣板、幕墻窗樣板以及北京CBD陽光保險金融大廈單元體十字樣板等,也重磅亮相本屆展會。60余名專業的講解人員做熱情周到講解,和平門窗幕墻系統及單元體幕墻板塊等展品不僅吸引了全國各地上千專業觀眾熱切關注,還有來自權威媒體的采訪和報道。經過三天的奮戰,和平展臺多款經典產品已售出,展臺持續火熱。

PBD 60高檔平開門型材圖
功能:門聯窗風格,專用拼樘內連接件連接,拼接密封效果好,外觀整齊。 門底框低檻、無檻設計,實現無障礙通行; 對開假中挺封堵、門擋邊封堵、門檻角部封堵、中梃角部注塑件、膠條(詞條“膠條”由行業大百科提供)膠角、排水(詞條“排水”由行業大百科提供)孔蓋等附件完整配套設計,提高了門扇的密封性能及門體外觀效果同。均衡等腔穩定結構與重要受力部位增強設計。

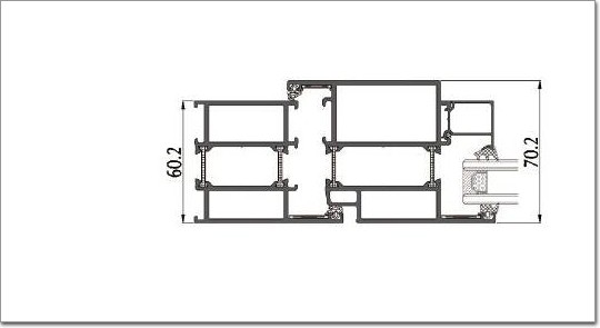
PBW70系列隔熱鋁合金系統窗
功能:三腔三道密封,框扇等溫線同位設計,采用等壓原理密封提高了整窗密閉性能,雨水披板、滴水線及框扇貫穿的排水通道形成完整排水系統,均衡等腔穩定結構與重要受力部位增強設計使產品具備更好強度要求;多腔室與柔性連接設計結合三玻兩中空玻璃使產品具備良好隔音降噪性能;歐標槽口設計,滿足國內、外五金配套使用,使產品滿足更多個性化需求。

P60內傾側滑門
功能:適用于開門空間不足的場所,采用歐標C槽槽口設計,滿足國內、外五金配套使用;配用不同規格隔熱條,滿足更多性能設計要求;不同寬度的邊框、扇框、梃、扣條組合可以滿足不同裝修方式需要; 采用優質三元乙丙膠條密封,保證產品密封及保溫性能,同時提升產品隔音降噪性能,實現更高的節能功效; 鋁合金框扇受力部位加強設計,角部采用專用連接件注膠連接,優質、專業的五金配附件設計安裝,產品使用靈活穩定,結實耐用。
和平鋁型材產品豐富,涉及面包括建筑型材、工業型材、裝飾型材、通用型材等千余種產品,被廣泛應用于IT、地產、太陽能、機械制造(詞條“機械制造”由行業大百科提供)以及軌道交通等多個行業,作為主導產品的建筑型材,至今已經成功服務了數萬個工程。和平產品代表著品質和行業標準,它秉持著“標準化•精細化•零缺陷”的質量理念和“專業•專注•專心”的服務理念,并憑借科學的管理、先進的理念和優秀的文化,始終邁著矯健的步伐,以無所畏懼的勇氣和敢于爭先的信念,屹立行業發展的潮頭,為振興民族品牌而激情奮斗!
展會期間,喜訊不斷,捷報連連!
2017年11月9日,在美麗的衡水湖畔—衡水市迎賓館,和平鋁業舉行了落戶武強的簽約儀式。這是和平鋁業繼燕郊基地、大廠基地之后的第三個基地,該基地的成功選址和簽約,是和平鋁業又一次重大戰略決策,意義深遠。

簽約儀式現場
出席簽約儀式的有:集團董事長郭濤、副總裁彭英紅,鋁材廠總經理靳云雁、常務副總郭大龍以及生產基地副總、各生產廠長;各銷售公司總經理、經理;和平幕墻總經理及項目部總經理等人。衡水市委書記王景武、市長呂志成、副市長王偉、武強縣委書記侯桂寧、縣長張雙翼、縣委常委、縣人大、縣政協等市、縣領導出席了簽約儀式。

參加簽約儀式的領導、嘉賓合影
和平鋁業第三基地落戶在衡水武強,一方面因為企業經營、生產和發展的需要,需要進一步擴大產能、擴大場地。更重要的是環渤海經濟圈、京津冀協同發展、雄安新區建設等國家大計正在實施,和平鋁業當更好的融入國家的大發展當中。最終選址武強,也緣于郭濤董事長參與家鄉建設、繁榮家鄉的樸素情懷。從和平鋁業創業初始到現在,公司有幾百名武強籍員工,有的甚至是一家三代一直追隨和平。他們參與和見證了和平鋁業從小到大的發展歷程,具有武強千年古縣艱苦奮斗、勤勉嚴謹的優秀品質。該基地是和平鋁業意義深遠的再一次戰略性投資。
與此同時,和平良好的品牌形象,誠信的經營理念,幫助企業贏來了入圍“門窗幕墻行業建筑型材首選品牌”評選的機會,并有幸攜手2017年度中國超級幕墻工程(詳見下表),強勢入圍2017-2018年度第13屆門窗幕墻行業“首選品牌、喜愛工程”讀者投票評選活動。通過近十萬名活動參與者的票選,AL-Survey將成為年度市場品牌推廣與產品銷售、服務質量的晴雨表。

本次入圍的“2017年度中國最具代表性幕墻工程”(詳見下表)
中國門窗幕墻行業大型讀者調查活動暨“我最喜愛幕墻工程”評選(以下簡稱“AL-Survey”), 自2005年創立以來,迄今已連續舉辦十余年。AL-Survey作為中國建筑金屬結構協會主辦、中國幕墻網承辦的一場建筑品牌饕餮盛宴。堅持“沒有黑馬,實至名歸”的評選風格,已成為廣大房地產開發商、設計院以及行業專家、顧問咨詢公司等讀者群體進行品牌選擇和產品選購的重要參考依據。而每屆的“我最喜愛幕墻工程”評選,更是以其“新、奇、高、大”的入圍標準,被喻為“魯班獎”的前哨站!

第13屆AL-Survey門窗幕墻行業大型讀者調查入圍工程
本屆活動于2017年8月,以協會“門窗幕墻行業數據申報工作”的形式,進行品牌的入圍征集。在入圍品牌名單公示完成后,將于2017年12月正式啟動網上投票和專家評審,直到2018的3月1日結束,而排行榜單公布及頒獎典禮,將在3月10日的廣州年會上舉行。

第13屆AL-Survey門窗幕墻行業大型讀者調查活動
鮮花需有綠葉的襯托,每一項偉大幕墻的工程背面,都離不開優秀“材料供應商”的專業的技術、專注的服務,在此,預祝知名工程(企業)、品牌材料供應商,順利通過ALSurvey檢驗,向行業,向社會大展風采!
和平的優秀眾所周知,和平人多年的奮斗已然讓今天的和平品牌成為該行業的佼佼者,在未來,和平將繼續奮勇直前,為和平進步,和諧發展,和美生活的目標共同努力。
最后,預祝AL-Survey活動取得圓滿成功!,并期待調查結果能真實有效的反映2017年度本行業各板塊市場的銷售、品牌狀況,為廣大行業讀者、消費者、采購者提供權威的品牌選用、購買指南。并為廠家的市場策略、宏觀的行業發展研究提供了有價值的參考數據。與此同時,也期望由和平鋁業助力的超級工程能最終捧回大獎。
視頻:三分鐘了解AL-Survey