本篇文章內容由[中國幕墻網ALwindoor.com]編輯部整理發布:
1 單元式幕墻防水原理
幕墻產生雨水滲漏現象,必須具備三個條件,第一是水,如下雨等。第二,水的運動途徑,如縫隙等;第三,水運動的動力,如:重力 、動能、表面張力、毛細作用、氣流和壓力差 ,其中壓力差是造成幕墻接縫漏水的主要原因。對于壓力差產生的雨水滲漏,如果使室內的壓力大于或等于與室外壓力,即使有縫隙存在,雨水也不會進入幕墻內部。傳統防水方式是盡量在接縫處減少可能存在的開口,利用各種密封膠、膠條對接觸縫進行封堵。現代單元式幕墻則利用等壓原理對雨水進行疏導,將水引出墻體。為了達到等壓,我們將部分接縫開放,使腔體氣壓與外側達到平衡。同時,等壓腔不是一個完全通氣的空間,必須將它限制在一定范圍內,合理的尺寸及間隔,才能更有效地產生等壓效應。等壓原理是單元式幕墻防水設計的核心。下面介紹沿海地區兩種典型的單元式幕墻排水系統,結合實際工程案例進行分析,僅供大家參考。
2 分層排水式方式排水
“分層排水”的單元式幕墻系統:雨水被第一道膠條阻擋,大量雨水會因自重而下落。在一定的壓力下,可能會有少量雨水進入前腔,這些雨水因自重而下落由單元板(詞條“單元板”由行業大百科提供)塊的底部排出。只有在很大壓差下,前腔雨水才會進一步越過第二道密封膠條進入后腔,因此后腔雨水量非常少,這些進入后腔里的雨水也會在自重的作用下通過鋁合金橫料上專門設計的排水小孔排出到前腔,最后徹底排出。這種分層排水單元式幕墻系統的單元板塊間設置了多道膠條,能完全切斷雨水匯集線路,使雨水能夠按單元板塊分塊各自排出,大大減小了雨水不斷積聚而帶來的滲漏可能,同時單元板塊上所有型材的連接螺釘孔、螺帽(詞條“螺帽”由行業大百科提供)及為安裝螺釘在型材上開的工藝孔都要求用密封膠進行密封處理,保證板塊有良好的防水密封性,這種分層排水形式單元式幕墻的防水性能安全可靠,在沿海地區廣泛采用。
深圳投行大廈、華潤大涌E座塔樓等多個幕墻工程,地處臺風和大雨頻發的沿海地區,且均為高層和超高層建筑,對防水性能要求很高,采用了這種分層排水的單元式幕墻系統。單元體公母立柱、橫梁之間采用三道具有防水功能的三元乙丙膠(詞條“三元乙丙膠”由行業大百科提供)條進行密封防水處理,構成前部一個基本等壓的開口及內側兩個完整的等壓腔,有效地進行防止雨水的進入(系統示意圖如下:圖1、圖2、圖3、圖4)。

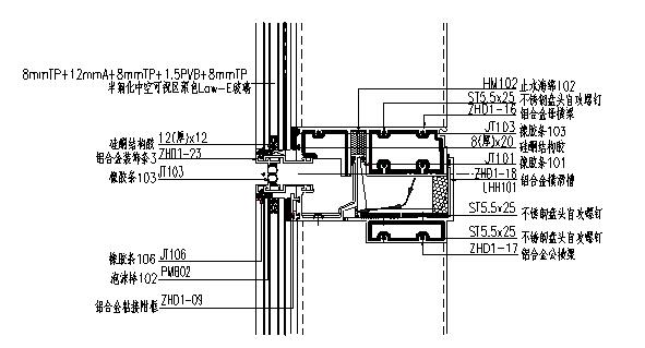
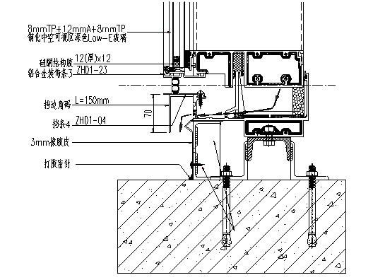
圖1 系統示意圖

圖2系統示意圖

圖3系統示意圖

圖4 三維排水示意圖
華潤大涌E座、投行大廈等幕墻項目分別于2013和2014年完工,到目前為止未發現滲漏現象,防水效果非常好。
這種排水方式優缺點:這種排水方式優點在于能將進入單元腔體的水通過每一層單元板塊上橫梁進行排出,這樣就保證了即使在較多雨水進入腔體的情況下,都能快速的將雨水排出;分層排水方式幕墻前端采取的是防塵(詞條“防塵”由行業大百科提供)膠條,可以通過揭開膠條方便、快速檢查排水孔是否有堵塞現象。缺點在于因為每層排水,需要在防塵膠條處開孔,可能導致開孔處進入灰塵雜物堵塞排水孔,影響排水;另外,雨水排出后容易在玻璃表面形成流水痕跡,影響外觀。
3 立柱直排方式排水
直排式單元式幕墻系統:當雨水經過第一道膠條時,大量雨水會因自重而下落。很少量雨水在一定的壓力下進入前腔,橫梁前腔位置的雨水也會向兩側流淌,到達立柱位置,雨水會因自重而下落,向下一層匯集。而當少量的前腔雨水在較高壓力下進一步越過第二道密封膠條進入后腔時,幕墻上橫梁后腔前端設置一道排水小腔,橫梁加工時,在避開橫向滑槽位置兩側開孔至排水小腔,將進入后腔部分的雨水通過排水孔排到排水小腔,再通過排水小腔向橫梁兩側流淌至立柱前腔位置,雨水因自重而下落至下一單元板塊,在向下一層匯集。按照此規律,每層重復如此排水方式。所有雨水匯集到最底層單元板塊下方的前部接水排水槽之后向室外排出。
深圳中航商業中心高度超過200米,幕墻約5萬平方米。地處臺風大雨的沿海地區,防水要求高,采用了這種直排方式排水系統。最外層對碰擠壓式橡膠條相對于分層排水系統的披水式膠條阻水功能較強,可以更有效的阻擋雨水及雜物的進入腔體內部。運用直排式幕墻系統。前后端膠條密閉形式與分層排水系統幕墻是相同的,只是更改了雨水的匯集及分散渠道。最后端的氣密膠條及中間層的水密膠條同樣起到很大作用。此種系統前端也做成凹槽水槽形狀,能有效的匯集雨水向兩側立柱處排水。廣州某建筑高度高達500m以上,同樣使用的是此種排水方式的單元幕墻。經過實際工程驗證了此系統的可行性。如今這種排水方式也受到幕墻行業廣泛采用。(系統示意圖如下:圖5,圖6和圖7)。

圖5系統示意圖

圖6系統示意圖

圖7系統示意圖
深圳中航商業中心項目于2013年完工,至今未發生任何一處雨水滲漏情況,水密性(詞條“水密性”由行業大百科提供)能非常好。
這種排水方式優缺點:這種單元式幕墻排水方式優點在于排水線只到立柱前端,能保證一些有外觀需求的幕墻設計更靈活的滿足外觀要求。同時排水的過程中不會使得幕墻玻璃面留下水漬,幕墻表面干凈。缺點在于由于排水孔位置在后腔前部,導致不易檢查排水口的堵塞情況,不利于幕墻漏水原因的檢查。所以要求板塊組裝及現場安裝要注意安裝前查看排水孔是否堵塞。
綜上所述,通過對兩種單元式幕墻排水方式的闡述,兩種方式各具優缺點。分層排水的系統應用項目更多一些,但直排式系統也是一個成熟的系統。實際應用時,需針對不同工程的要求,進行比較選擇。有外觀限制,不能分層外排的可選擇直排式。對于型材截面有限制如寬度尺寸較小時,可以采用分層排水方式。
參考文獻
[1] 中華人民共和國建設部, 玻璃幕墻工程技術規范(JGJ102-2003), 中國建設工業出版社
[2] 趙西安, 建筑幕墻工程手冊, 中國建設工業出版社
[3] 施梅英, 單元式幕墻防排水設計, 石油化工建設
[4] 蔡志新, 單元式幕墻的選材與控制, 房材與應用