本篇文章內容由[中國幕墻網]編輯部整理發布:
項目名稱 : 成都遠洋太古里
占地面積:約70,800平方米
總樓面面積逾25.1萬平方米
零售街區(逾10.6萬平方米 )
博舍(擁有100間客房的都會風尚酒店(逾1.52萬平方米)
擁有42間客房的服務式公寓(逾7,600平方米)
辦公樓(逾12.3萬平方米)
建筑方案:TheOvalPartnership
幕墻顧問:Eco Face International
燈光顧問:LightingPlannerAssociates,
Eco Face International
室內設計顧問:ElenaGalliGialliniLtd and Spawton Architecture

成都遠洋太古里(Sino-Ocean Taikoo Li Chengdu)坐落成都中心地帶,是太古地產和遠洋地產攜手發展的開放式、低密度的街區形態購物中心,呈獻一個由街道、里巷、廣場交錯組成的都會休閑中心,成都遠洋太古里保留一片低密度開闊空間,陽光與雨露、鳥語與花香,種種體驗營造直接而與眾不同的世界,為顧客提供創新及充滿個性的購物及休閑體驗。
項目由A、B、C三個地塊組成,包含30棟2~3層防古建筑組成,其亮點在于:保留古老街巷與歷史建筑,再融入2-3層的獨棟建筑;川西風格的青瓦坡屋頂與
格柵配以大面積落地
玻璃幕墻;成都遠洋太古里既傳統又現代,營造出一片開放自由的城市空間,建筑在反映“老成都”深厚人文內涵的同時也兼具了洋氣與時尚的現代屬性。
實景圖:


太古里建筑風格為新中式風格時尚街區;多元化的戶外空間,結合廣場和街道的尺度,易形成宜人的商業氛圍;商業街區獨棟建筑體融合周圍保留古跡歷史建筑川西農居風坡屋頂造型、建筑主體深褐色主調色彩搭配等細節,包括2F連廊的地面鋪裝均采用
石材,歷史懷舊感凸顯,與周圍古建融為一體。項目已于2015年4月24日盛大開幕。


EcoFaceInternational 作為成都遠洋太古里項目的幕墻設計顧問、燈光設計顧問,同時負責了部分項目管理,物料管理和BV、AV設計工作,以下為本項目的幕墻實景圖片及幕墻設計解析:





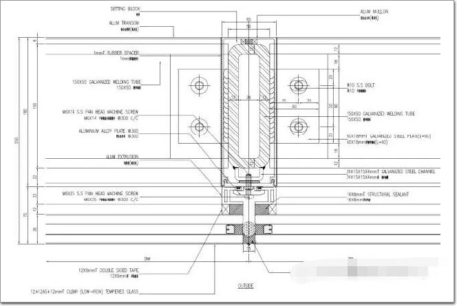
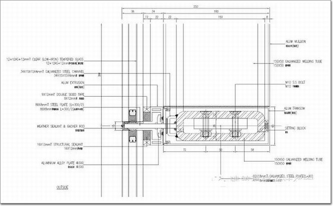
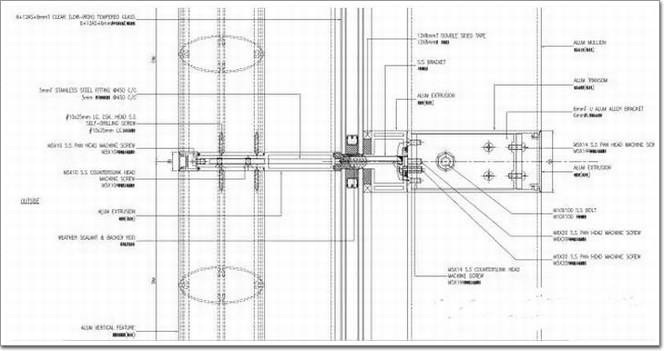
1、一、二層店鋪幕墻
外立面一層、二層幕墻均以落地玻璃+層間鋁板格柵的形式組成,玻璃采用雙12mm 中空(詞條“中空”由行業大百科提供)超白鋼化玻璃,底部3m高區域采用無龍骨設計,使幕墻整體效果更加通透、簡潔;層間與豎向分格墻采用深灰色鋁單板+外層銅灰色裝飾格柵作為防古建筑設計。
幕墻節點圖1:
幕墻節點圖2:
幕墻節點圖3:
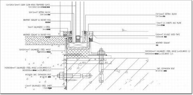
2、三層、屋檐幕墻
外立面三層幕墻主要以鋁單板+鋁合金(詞條“鋁合金”由行業大百科提供)格柵與玻璃+鋁合金格柵兩種形式結合,屋檐、屋面采用防木紋蜂窩鋁板與川西風格的青瓦坡屋頂結合,在現代建筑上完美添加了古建的元素。
幕墻節點圖1:
幕墻節點圖2:
3、陶土板幕墻
面材選用18mm厚陶土板(石板灰色),陶土棍格柵(石板灰色)。支撐采用熱鍍鋅鋼龍骨,專用的陶土板掛件系統安裝,不銹鋼彈片限位,并通過不銹鋼螺釘調節掛裝高度。
幕墻節點圖1:
幕墻節點圖2:
三維立體圖:
4、不銹鋼拉桿玻璃雨蓬
本雨篷為整個項目的亮點,布置在一層通往二層連廊的七個自動扶梯上。雨篷整體外形獨特,采用立柱+拉索、拉桿(詞條“拉桿”由行業大百科提供)的自平衡系統,避免了雨篷結構過于笨重的缺點;立柱及橫梁采用全不銹鋼結構,立柱作為雨篷重力支撐,十字形不銹鋼立柱鑲嵌菠蘿格木材做外裝飾,很好的隱藏了立柱的金屬質感,感覺更為輕盈;拉索、拉桿作為雨篷平衡、穩定系統,使雨篷更加簡潔。
幕墻節點圖:
