(3)副框與墻體間縫隙塞縫:
用干硬性水泥砂漿密實填塞副框與洞口間縫隙,并在四周陰角處抹圓角;砂漿達到一定強度后取出臨時固定木楔,并用干硬性水泥砂漿密實補填該縫隙。
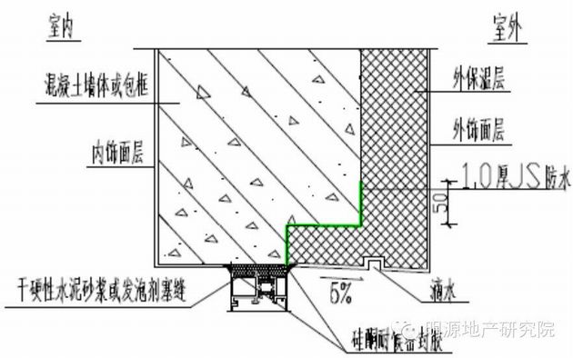
(4)涂刷JS防水:
待干硬性塞縫砂漿干燥后,在洞口外側四周分多遍涂刷 JS 防水,須保證其厚度不小于1.0mm,防水必須全壓副框且涂刷到過門窗洞陽角50mm處,詳見節點圖。
(5)外飾面施工:
JS 防水干燥后,按照外飾面做法施工外飾面層。外飾面完成面與副框頂平齊。
(6)安裝門窗框:
外飾面完成后,采用自攻螺釘將門窗框與副框進行固定,自攻螺釘擰入鋼副框兩個壁厚,擰入前必須打入密封膠。
(7)門窗框與副框間縫隙打發泡膠:
在門窗框和副框間縫隙中打發泡膠,打發泡膠前應先將縫隙清理干凈,并將門窗框與洞口間的纏繞保護膜撕去,多余的發泡膠應在其固化前用手或專用工具壓入縫隙中,嚴禁固化后用刀片切割。
(8)打窗外密封膠:
外飾面完成并干燥后在外飾面與門窗框交接處的陰角處打中性硅酮密封膠,高度應壓門窗框不小于5mm。
(9)門窗扇及玻璃、五金配件安裝:
門窗扇及玻璃應在室內墻體表面裝飾工程開始前安裝完成。
五金配件采用自攻螺釘固定,并在擰固前打密封膠,安裝的五金配件應結實牢固,使用靈活。
注意:墻身為砌體時不能直接在砌塊上涂刷JS 防水,待發泡膠固化后開始抹底灰,并對洞口四周進行粉刷收頭。抹底灰前應對基層墻面進行處理,保證底灰與墻體粘結牢靠,底灰不得空鼓、裂縫。
五、有企口、無副框的門窗節點構造
當飾面較厚時,為避免飾面壓門窗主框過多和因飾面過厚而產生空鼓裂縫,可采用無副框有企口的方式。這種方式可提高門窗邊的防滲漏效果。
當墻體為混凝土墻時,企口必須與混凝土墻同時澆筑;當墻體為砌體墻時,門窗周邊必須現澆鋼筋混凝土(詞條“鋼筋混凝土”由行業大百科提供)窗框,且先砌墻后澆框,其具體做法參照總說明。
1、節點圖

側口節點做法

下口節點做法
2、構造做法
(1)安裝固定片
門窗框與墻體一般采用固定片連接,固定片以1.5mm厚的鍍鋅板裁制,長度根據現場需要進行加工。首先將固定片安裝到門窗框上,采用直徑3.2mm的鉆頭在門窗框上鉆孔,然后將十字盤頭自攻螺絲M4x20mm擰入,不得直接捶擊釘入。
固定片距門窗框角部的距離不大于200mm,其余部位的固定片中心距不大于400mm,且均勻分布。
(2)門窗框就位安裝
采用金屬膨脹螺栓或射釘,將已安裝好的固定片與洞口四周進行固定,固定時應按對稱順序,先固定上下框,然后固定邊框。臨時定位可用木楔固定。
(3)門窗框與墻體間縫隙處理
作法一:門窗框與墻體四邊縫隙采用干硬性水泥砂漿塞縫;
作法二:門窗框底邊及兩側邊上翻 150 高范圍采用干硬性水泥砂漿塞縫,上邊及兩側邊剩余部分采用打發泡膠塞縫無論采用干硬性砂漿還是發泡膠塞縫,塞縫必須保證密實。干硬性水泥砂漿塞縫前必須先將縫隙清理干凈,并將門窗框與洞口間的纏繞保護膜撕去。
打發泡膠前應先將縫隙清理干凈,并將門窗框與洞口間的纏繞保護膜撕去,發泡膠須滿填縫隙,超出門窗框外的發泡膠應在其固化前用手或專用工具壓入縫隙中,嚴禁固化后用刀片切割。發泡膠固化后取出臨時固定的木楔,并在其縫隙中打入發泡膠并用專用工具壓入縫隙中,同樣不得在固化后用刀片切割。
(4)涂刷JS防水
待底灰干燥后,在洞口外側四周分多遍涂刷JS防水,須保證其厚度不小于1.0m,防水必須壓門窗框不小于5mm且涂刷到過門窗洞陽角50mm處,詳見節點圖。
(5)保溫層施工
JS防水干燥后,按照保溫層做法要求施工保溫層。
(6)外飾面施工
按照保溫層上的外飾面層做法施工外飾面。外飾面與門窗框交接處須留不小于6mm×6mm的密封膠槽。
(7)打窗外密封膠
外飾面完成并干燥后在外飾面與門窗框交接處的預留膠槽內打中性硅酮密封膠。
(8)門窗扇及玻璃、五金配件安裝
門窗扇及玻璃應在室內墻體表面裝飾工程開始前安裝完成。五金配件采用自攻螺釘固定,并在擰固前打密封膠,安裝的五金配件應結實牢固,使用靈活。
(9)內飾面施工
按照內飾面做法施工內飾面層。
(10)打窗內密封膠
內飾面完成并干燥后在內飾面與門窗框交接處的陰角處打中性硅酮密封膠(毛坯房可以省略)!就辍
上一頁123下一頁