該項目沒有在鋼梁預置(詞條“預置”由行業大百科提供)支座肋板,所有的支座都需要現場焊接。因此設計師設計了一種結構簡單,焊接量相對少,對主體變形影響最小的做法。在水平梁側布置雙三角撐,并把它們水平連接起來。把單元幕墻的掛接底座直接焊接在雙三角撐的最前端。這種結構有效分散了支座反力(詞條“支座反力”由行業大百科提供),減輕結構自重,減少焊接量,對結構梁的影響最小。(如圖 3)

單元幕墻的掛接底座采用一般常見的鋼加工件,通過角鋼加肋作為主體,在前端增加限位裝置,限制板塊水平和垂直方向位移。由于掛鉤為鋁合金材質,因此需要在掛接接觸位置加設不銹鋼墊片(詞條“不銹鋼墊片”由行業大百科提供)。(如圖 3)
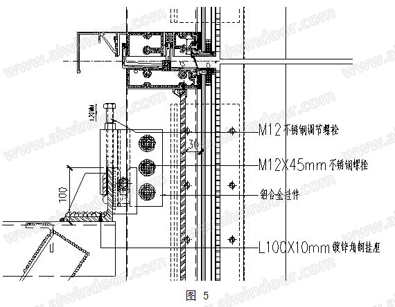
鋁合金掛鉤為鋁擠壓型材,為了滿足大型板塊的受力要求,在掛鉤處采用了延長接觸面措施,同時加長了掛鉤的前端截面,保證板塊受力安全。限位裝置通過在掛鉤側部設計螺母槽,利用不銹鋼螺栓進行板塊單側鎖緊,既限制了左右水平移動,也限制了上下垂直移動,而且這種固定方式非常穩固,即使在地震作用下也不會失效,比以往很多項目所用的螺釘頭限位法實用很多。掛鉤的上下調節用的是幕墻慣常的螺栓調節方式,即在掛鉤截面處開螺紋孔,再擰入螺栓調節。(如圖 4,圖5)


鋁合金掛鉤通過三顆螺栓固定在立柱上,并在固定部位的立柱內側加設加強插芯,開口型材系統只需在板塊外側上螺絲即可,閉口型材系統需要在螺栓部位的板塊外側開工藝孔,在固定完畢后將工藝孔加密封膠帽,并打膠(詞條“打膠”由行業大百科提供)固定密封。
層高4.8米以上板塊采用閉口型材雙支座做法,第二支座同樣采用雙角鋼懸挑,并和第一支座的斜撐搭接起來。由于第二支座不承受重力,水平力比第一支座更大,因此采用和第一支座相同的掛座系統。
4.2 大裝飾線設計問題
該系統外觀形式為豎向大裝飾線條,橫向隱框,裝飾條外觀尺寸為250mm*80mm,屬于常規尺寸。一般設計單元式幕墻大裝飾線條需要注意以下問題:
4.2.1注意裝飾線條是否存在冷橋
冷橋,主要是指在建筑物外圍護結構與外界進行熱量傳導(詞條“傳導”由行業大百科提供)時,由于圍護結構中的某些部位的傳熱系數明顯大于其他部位,使得熱量集中地從這些部位快速傳遞,從而增大了建筑物的空調、采暖負荷及能耗。
一般常見的裝飾線冷橋現象有兩種:一種是裝飾線與立柱通長連接,這種情況裝飾線相當于立柱的延伸,冷橋影響非常大,解決方法是采用PA66穿條或者注膠型材,確保裝飾線的鋁型材沒有和室內部分鋁型材連通。
另一種是裝飾條通過分段的連接板與立柱連接,連接板最好用不銹鋼材質,用鋁合金的話就需要加強隔熱措施。因為鋁合金的導熱系數是160 W/m.K,而不銹鋼是17 W/m.K,雖然相對于PA66的0.3 W/m.K來說還是非常高,但由于分段的緣故,按照型材長度方向的比例換算,對整體傳熱系數的影響相對不大。不過為了盡可能提高整體隔熱性能,我們在連接板的兩邊加設橡膠墊塊,阻擋冷橋的同時,降低震動噪音。
4.2.2裝飾線條的連接件采用材質和固定方式
本項目外裝飾線連接件采用鋁合金材質,雖然力學性能和隔熱性能不如不銹鋼,但在計算通過的前提下,采用鋁合金可以合理降低成本,并且通過合理設計型材,鋁合金能在固定穩定性上優于不銹鋼。
大跨度用閉口型材由于閉口構造原因,連接件不能使用內嵌卡入式,只能采用機絲固定,我們采取了加密布置連接件的方法(@900mm)來解決受力問題。
4.2.3如何保證上下裝飾線條的垂直度
裝飾線條由于垂直度、加工誤差、施工誤差等原因使上下兩層的裝飾線不能完全對口,造成外觀不筆直,傳統做法是類似構件式幕墻立柱一樣采用大插芯插接,但由于裝飾線條內腔過大,造成插芯型材費用高。現在一般做法是在裝飾線頭部設計銷釘孔,上下裝飾線采用銷釘限位。銷釘選用應注意尺寸合適,以保證固定端能鎖死,插接端能上下自由活動,保證裝飾線的位移能力。
上一頁1234下一頁