4.0≤fk<8.0MPa時,最小厚度40mm。
抗彎強度標準值fk是其試驗平均值減去1.645倍標準差。當這個數值小于試驗最小值時,按試驗最小值采用。
板材厚度的允許偏差為+2mm,-0mm,不允許負偏差。
6.13.9板材的尺寸
洞石強度低,因此板材的尺寸不宜過大,一般應控制在1.0㎡以內。
不宜采用細長的條狀石材,這種石板在運輸、安裝過程中很容易折斷。石材的變成比最好在1:2以內,不宜超過1:3 。
6.13.10表面處理
洞石吸水性很高,應采用防水涂料(詞條“防水涂料”由行業大百科提供)使其吸水率降至1%以下。
采用注膠板縫的石材幕墻,石板可以只做外表面大面防水;采用開放式板縫時,石材應進行六面防水。
孔洞較大、孔洞數量太多的洞石,宜進行封孔處理。
防水處理要在全部槽、孔機械加工完畢、清潔和干燥后再進行。
四、14m高全玻幕墻
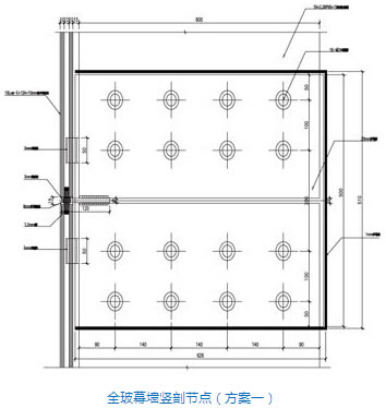
1、14m高全玻幕墻分布及分格
14米高全玻幕墻分布在建筑北面的一層入口處,玻璃肋高度14.18米,寬度600mm;面板玻璃分格寬度2160mm,高度方向分為3塊,從下往上依次為4700mm、5300mm、4000mm。面板及玻璃肋均采用超白鋼化玻璃(詞條“鋼化玻璃”由行業大百科提供)。面板玻璃配置為:10low-e+12A+10鋼化中空玻璃。

玻璃肋方案一采用三片相接的19+2.28PVB+19超白鋼化夾膠玻璃;三片玻璃肋從下往上依次為4700mm、5300mm、4000mm(不計入槽深度及吊掛的封修高度)玻璃肋接縫與面板玻璃接縫在同一高度同一位置,為幕墻顧問方案。



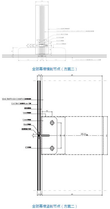
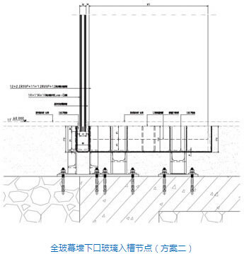
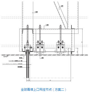
方案二采用單片12+2.28SGP+12+2.28SGP+12超白鋼化夾膠玻璃,單片玻璃高度達14.18米,為建議方案。玻璃肋采用吊掛形式,最上一塊面板玻璃采用吊掛形式。面板通過固定在玻璃肋上的不銹鋼板承托固定。



2、幕墻設計需考慮的因素
2.1全玻幕墻能適應主體結構(詞條“主體結構”由行業大百科提供)的變形;
2.2需考慮玻璃肋、面板玻璃及其它附件材料的自重;
2.3需考慮風荷載(詞條“風荷載”由行業大百科提供)、地震荷載、施工荷載(詞條“荷載”由行業大百科提供)對玻璃幕墻的影響;
2.4需考慮吊掛件的承重能力及與玻璃肋及面板玻璃的連接,玻璃的局部承壓能力、吊掛處的摩擦力;
2.5需考慮自重、溫度作用下的玻璃變形要求;
2.6需考慮硅酮結構膠(詞條“硅酮結構膠”由行業大百科提供)的承載能力及受力形式;
2.7需考慮玻璃肋連接處的彎矩、剪力、玻璃局部承壓能力,連接螺栓(詞條“螺栓”由行業大百科提供)計算;
2.8玻璃開孔處的構造處理;
2.9玻璃吊夾處的構造處理;
坐落于天津市河西區友誼路與平江道交口,地處文化廣場的核心位置,總建筑面積2.8萬平方米,臨湖而建,建筑外觀簡潔大方,極富現代氣息,內部設施完善。
2.10《玻璃幕墻工程技術規范》JGJ102-2003規定高度大于12米的玻璃肋,需進行平面外的穩定計算。
3、兩種設計方案比較
從材料選用及技術角度比較,兩種方案采用面板相同,均為10low-e+12A+10鋼化中空超白玻璃,面板分格也相同。不同的是面板后部玻璃肋的做法及選用。方案一采用的是三片相接的19+2.28PVB+19超白鋼化夾膠玻璃,玻璃連接處采用不銹鋼板+不銹鋼螺栓群連接。連接處需要承受自重作用,同時還要承受風荷載及地震作用產生的彎矩及剪力。因幕墻跨度高達14米,連接處的自重、彎矩及剪力均較大,節點荷載較大;玻璃的局部受到的壓力也是非常大的,為了承受各種作用,連接處的螺栓布置較多,玻璃肋相應的開孔也較多。設計及施工稍有不慎,對于脆性材料的玻璃來說,局部應力較大,也相對更加集中,增加了玻璃自爆的可能性。方案二玻璃采用單片12+2.28SGP+12+2.28SGP+12超白鋼化夾膠玻璃,玻璃肋為整片玻璃,無連接節點,整體性更好。玻璃肋上只開兩個承受面板玻璃自重的玻璃孔,開孔數量相對于方案一大幅減少,且玻璃孔的局部壓力也較小,玻璃因為應力自爆的可能性大幅降低。提高了玻璃結構的安全性。方案夾膠玻璃中間膜采用的是SGP,而非PVB,采用SGP夾層的優點: 撕裂強度是一般PVB膜的5倍,硬度是PVB膜的30-l00倍。低變形率時,SGP夾層玻璃表現為彈塑料特性而PVB為超彈塑性,而高變形率時,PVB 變硬并成為彈塑料特性,SGP在整個范圍內剛性較高。SGP夾層玻璃和同樣厚度的單片玻璃多少乎有相等的彎曲強度。同其他中間膜夾層玻璃相比,SGP夾層玻璃有更高的強度性能和剛性,能有效地減少玻璃厚度,特別是有益于點式支撐玻璃。H.P.Whitc實驗室和標準國家研究所的性能測試表明,用相同厚度的 SGP膜制成的夾層玻璃和聚碳酸酯制成的夾層玻璃性能相當。SGP膜夾層玻璃具有更好的保安防范性能。比如采用2.3mm厚的SGP膜制成的夾層玻璃能成功抵擋高達200kPa(30psi)過壓的爆炸。方案二優于方案一。
上一頁123下一頁