3.3 連接系統的施工情況
從上一節的安裝實現過程可以看出:1)轉扣式鋁合金玻璃幕墻橫梁快速安裝系統既實現了立柱先安裝調試完成后再安裝橫梁;2)安裝橫梁的方式簡單巧妙,與行業內常用的結構形式有著本質的區別;3)可以無序安裝橫梁,方便拆卸更換橫梁。所以此結構施工非常的方便快捷。
3.4 結構體系工程造價情況
此結構的型材用量和附件用量與傳統螺栓角片結構形式幾乎一致。但是由上面對此結構的安裝過程的分析,此結構在造價方面的優勢卞要體現在減少了加工和施工的勞動力成本。
通過以上對系統特點的分析可以看出,轉扣式鋁合金玻璃幕墻橫梁快速安裝系統在結構受力、材料加工、安裝施工、成本控制等方面均表現出較優異的性能。
4 轉扣式鋁合僉玻璃幕墻橫梁快速安裝系統實施舉例
本系統幾乎適用于所有框支撐構件式玻璃幕墻,包括隱框結構、明框結構、橫明豎隱和豎明橫隱結構。下面將對明框和隱框結構的一種實施方式舉例說明。
4.1 明框玻璃幕墻實施方案
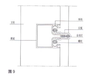
明框玻璃幕墻實施的龍骨連接方式與前文所描述的幾乎一致。只是為了托住玻璃,橫梁的凸出部位較長,壓板的形式也相應的做一些調整(見圖9)。

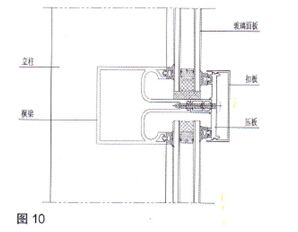
明框玻璃幕墻實施的玻璃板塊的安裝就和目前行業內常見的結構形式完全一樣了(見圖10)。

4.2隱框玻璃幕墻(詞條“隱框玻璃幕墻”由行業大百科提供)實施方案
隱框玻璃幕墻實施的龍骨連接方式就與前文所描述的完全一致(見圖11)。

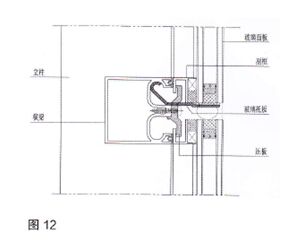
隱框玻璃幕墻實施的玻璃板塊的安裝方案也和目前行業內常見的結構形式幾乎一致。但是需要強調的一點是玻璃托板采用了一種比較可靠的形式。玻璃托板不僅在豎直方向與副框配合提供了板塊的定位,而且可靠地承受了玻璃板塊的重力,使粘結副框與玻璃的結構膠不承受豎直方向的剪力(見圖12)。

以上為轉扣式鋁合金玻璃幕墻橫梁快速安裝系統在明框玻璃幕墻和隱框玻璃幕墻上實施的一種形式。同理可得,在橫明豎隱和豎明橫隱玻璃幕墻上也完全適用。所以本專利系統適用于所有框支撐構件式玻璃幕墻。
5 結語
綜上所述,轉扣式鋁合金玻璃幕墻橫梁快速安裝系統的可行性上來講是完全可以實現的,而且系統從多方面體現出較優異性能,并且適用于所有框支撐構件式玻璃幕墻。
所以,轉扣式鋁合金玻璃幕墻橫梁快速安裝系統作為一種新型的鋁合金玻璃幕墻橫梁連接系統,在幕墻行業內有著相當的競爭力。期待著此結構在實際工程中的完美表現。【完】
上一頁12下一頁

[摘要]介紹新金橋大廈高層、大面積單元懸掛式玻璃幕墻的安裝施工技術及質量保證措施。
[關鍵詞]高層建筑裝修工程單元懸掛玻璃幕墻安裝方法勞動組織預防措施。
1、工程概況
新金橋大廈位于上


玻璃幕墻作為建筑物的圍護結構,其主要功能是擋風、擋雨、遮陽、保溫、隔熱、隔音等,同時,作為圍護結構,又直接受到風、雨、地震力的直接作用,因而其安全性又十分重要。我們在安裝幕墻中一定要杜絕其不安全因素,保證幕墻足夠安全。所以在監控幕墻安裝