五、工藝流程

六、操作要點
(一)、測量放線
1、以結構邊梁控制線作為幕墻安裝基準線,向外放出10cm作為借出線,將各轉角作為豎向控制基準點,按照幕墻設計分格將每條立柱中線基準點引到首層和頂層的借出線上。再用激光經緯儀將每條立柱的垂直線引到每層幕墻預埋鐵件上。
2、幕墻分格軸線的測量放線應與主體結構放線相配合,立柱與結構連接點水平中軸線的放測應以±0.000水準點為基點用高精度水準儀和鋼尺把每層樓幕墻水平中軸線引測到預埋鐵件上,從而在每個預埋件或附近形成十字交叉基準線,見圖5,并以此檢查預埋件實際偏差值。

3、在風力大于四級時,不能進行測量。而且測量應每天定時進行。
(二)、預埋件(后置件)的施工
預埋件加工必須嚴格按照設計圖紙加工制作,其鋼板尺寸偏差在-3~0mm范圍內,錨筋長度尺寸偏差在0~10mm范圍內。預埋件應做熱浸鍍鋅防腐處理。
主體結構施工時,按照圖紙要求準確放置預埋件,并將錨筋與結構主筋焊牢。主體結構驗收完畢后,根據所放基準線對預埋件進行全數檢查,預埋件標高偏差不應大于10mm,預埋件的位置偏差不大于20mm,垂直度偏差不應大于1mm。對不符合安裝要求的預埋件,采用后置件補充。后置件采用化學螺栓或膨脹螺栓固定,要求定位、鉆孔、養護,嚴格按操作工藝要求進行。
預埋件施工完畢應做現場抽樣檢驗,抗拉和抗剪強度均應滿足設計要求。測量放線后對于不符合安裝要求的預埋件,補充后置件。后置件采用化學螺栓或膨脹螺栓固定,要求定位、鉆孔、養護,嚴格按操作工藝要求進行,施工完畢按規定做拉拔試驗。
(三)、龍骨安裝
1、立柱安裝
幕墻豎料應嚴格按照設計尺寸下料,對同一樓層在設計時常采用同規格的豎龍骨,預埋件也在統一標高位置上,故接口套芯和鐵碼可在豎料加工過程中安裝在豎龍骨上,為防止電化學腐蝕,需采用橡膠絕緣墊分格兩種金屬。在建筑物轉角處應安裝鋼絲錘準線,用以控制和調整因預埋件埋設角度偏差造成的豎龍骨安裝轉角偏差,分區豎料安裝完畢后應用激光經緯儀進行垂直度檢測,調整完畢后將鐵碼與預埋件及連接螺栓禁錮電焊固定并做防腐處理。幕墻縱向變形縫應在上下兩根豎料接口出統一留設。
立柱安裝應符合下列規定:立柱安裝標高偏差不應大于3mm,軸線前后偏差不應大于2mm,左右偏差不應大于3mm。相鄰兩根立柱安裝標高偏差不應大于3mm,同層立柱的最大標高偏差不應大于5mm,相鄰兩根立柱的距離偏差不應大于2mm。
2、橫梁安裝
鑒于同一樓層的豎料規格相同,橫料應在同一水平面上,橫梁與立柱連接螺栓孔可在下料時統一成孔,這樣,橫梁與立柱連接形成框架時可不必重新量距。橫梁安裝時應由下而上進行,當安裝完一層時,應用水準儀檢查,按質量要求校正后方可固定。
3、在已安裝好的龍骨上劃出中心線,并在龍骨的中心線上按照安裝間距鉆螺釘孔。
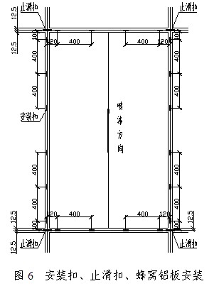
4、在橫梁的中心線兩端上方安裝止滑扣(必須確保兩止滑扣工作面在同一水平面),在垂直龍骨端上安裝兩止滑扣(必須確保兩止滑扣工作面在同一鉛垂面上),見圖6。

(四)、避雷系統安裝
1、根據圖紙設計在樓層安裝均壓環,并與主體引出線連接,最小面積48mm2圓鋼或扁鋼,扁鋼厚度不低于4mm,焊縫長度大于75mm。
2、導線材料、型材表面應除掉保護膜進行連接。立柱插芯位置要有跨接安裝件。
3、幕墻防雷體系與主體防雷體系之間連接情況電阻檢測,電阻值小于10歐姆。
(五)、層間防火層安裝
1、防火層必須外包1.2mm以上厚度鍍鋅鐵皮,內填50mm~100mm防火材料。
2、根據設計要求:樓層豎向應形成連續防火分區,特殊要求平面也應設置防火隔斷。樓板處要形成800cm高的防火實體。
(六)、蜂窩鋁板安裝
撕下背板保護膜將隔離墊片貼在龍骨上,將蜂窩鋁板貼向龍骨,其自重由水平止滑扣承擔;在對應的螺釘孔上裝上安裝扣和螺釘(此時安裝扣是非緊固狀態),調整板的位置緊固上邊的安裝扣;繼續按以上方法安裝下面另一塊板,確保所有的板在同一平面上。
(七)、泡沫填充條及耐候密封膠施工
1、充分清潔板材間間隙,不應有水、油漬、灰塵等雜物,應充分清潔粘結面,加以干燥。
2、泡沫條填充時應連續,抹膠處應連接密實;貼膠帶紙牢固密實,轉角及接頭處連接順暢且緊貼板邊。膠帶紙粘貼時不允許有張口、脫落,不順直等現象。
3、打膠的厚度不能太薄或太厚,既保證了膠逢的防水性能又能夠使膠縫達到光亮、美觀。
4、打膠后,應在膠快干時及時將膠帶紙清理干凈,并立即處理因撕膠帶時碰傷的膠表面。
上一頁123下一頁

摘要:隨著外層維護系統的不斷創新和突破,建筑外掛裝飾板在越來越多的建筑中采用,并且形式日益多樣,筆者有幸參與了深圳保利劇院屋面及幕墻部分裝飾鋁板的施工,本文從測量、下料、安裝、調整等多個角度,將外掛施工技術進行總結以做為行業內交流。
關鍵