


該套幕墻系統的開啟窗是亮點,如圖3、圖4所示,在硅谷亮城項目上,幕墻的分格是2100×975mm,板塊比較重,采用承重比較大的重型五連桿;開啟扇處的邊框與固定扇部位的邊框一模一樣,外視內視效果相當簡潔,美觀;開啟扇框采用隔熱型材,采用四道膠條進行密封,所以該處的隔熱性能、水密性能、氣密性能,基本接近固定扇部位的性能;開啟扇的底邊和頂邊框分別有三個鎖點,在開啟扇關閉時,六個鎖點把開啟扇扣得相當緊密,保證幕墻的各項性能。
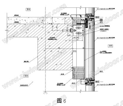
該套半單元式幕墻框架系統安裝與普通玻璃幕墻基本相同,安裝節點如圖5、圖6所示,埋件用卡釩式
預埋件表面
熱鍍鋅處理,配T型特制不銹鋼
螺栓M16×50,用鋼件夾持井字
框豎龍骨,鋼件與型材接觸部位用2mm厚絕緣墊塊隔開,連接螺栓采用M12×65不銹鋼螺栓連接,螺栓與型材接觸處墊2mm厚
不銹鋼板,來加強該處鋁型材的強度,起墊片作用,不銹鋼板與型材接觸面處去掉
噴涂層,涂上導電密封膠,使之與大樓的防雷系統有效的連接上(Φ12熱鍍鋅
圓鋼焊接,一端連接防雷預留點,另一端連接到連接鋼件),滿足防雷的要求。層間的做法根據建筑立面效果的要求不同,有各種做法,由于左右兩邊框是閉合腔,上
下兩豎龍骨留15mm寬的伸縮縫,縫處打上普通密封膠用來密封,型材腔內用素材鋁合金插接,按規范要求,用250mm長鋁合金插芯,能滿足要求。由于層間用的是
中空玻璃,跟通透的部位一樣,所以不需要做
保溫處理,但是要是用單層玻璃的做法,就需要用襯板夾
保溫玻璃棉進行層間保溫處理,該硅谷亮城項目只襯有根據建筑師要求顏色的3mm厚
鋁塑板,鋁塑板與玻璃的距離盡可能遠,且在幕墻副框下部開有兩個孔,兩側面副框頂部各開有一個孔,作為通氣孔,由于襯板與玻璃中間的空氣是流動的,所以能保證玻璃在太陽直曬的時候不至于內部空氣膨脹壓力加大而使玻璃爆裂。層間采用1.5mm厚
鍍鋅鋼板填100mm厚防火
巖棉進行封堵,幕墻連接系統處于防火構件保護之中,縫隙處用防火膠密封。采取以上設計可以阻止火、煙經過縫隙向上蔓延(串火),如圖6所示。
綜合以上所述,每一種幕墻系統都是有自己的優缺點,該隔熱半單元式幕墻系統介于框架式幕墻與單元式幕墻之間的一種幕墻結構體系,既跟單元式幕墻一樣能在工廠里進行加工組裝,板塊安裝簡單、迅速、工期短、能更換面板,且成本也比較低,稍微比普通框架式幕墻高一點。該套幕墻系統在平面內變形性能與主體結構的層間變位幾乎相同,所以能很好的滿足抗震和層間變位的要求,但也有其自身的缺點,在小面的和有轉角的部位安裝有一定的困難。
參考資料
[1]《玻璃幕墻工程技術規范》JGJ102-2003
[2]《
建筑玻璃應用技術規程》JGJ113-2009
[3]《
石材幕墻');callServer('金屬與石材幕墻');">金屬與石材幕墻工程技術規范》 JGJ133-2001
上一頁12下一頁