本篇文章內容由[中國幕墻網ALwindoor.com]編輯部整理發布:
摘要:本文通過《邢臺銀行綜合營業樓》幕墻工程項目為工程案例,詳細介紹了構件式玻璃幕墻設計的過程。《邢臺銀行綜合營業樓》建筑幕墻工程,主要以框支承為主的全明框玻璃幕墻、半隱框玻璃幕墻、金屬鋁板幕墻(詞條“鋁板幕墻”由行業大百科提供),部分肋支撐吊掛玻璃幕墻等。通過《邢臺銀行綜合營業樓》幕墻工程案例,詳細闡述了構件式全明框玻璃幕墻、半隱框玻璃幕墻立柱、橫梁的設計及立柱、橫梁連接的設計要點。本工程為預埋件,在預埋件(詞條“埋件”由行業大百科提供)設計過程中,認真研究了當前建筑幕墻所用到的預埋件種類、規格,并對預埋件設計做了詳細的分析。
當下國家對建筑節能有嚴格的規定,在節能設計過程中,嚴格按照河北地區要求及該地區所處的氣候環境進行設計。構件式玻璃幕墻(詞條“構件式玻璃幕墻”由行業大百科提供)整體熱工K值(幕墻實際K值約1.65W/㎡.K)滿足建筑設計(建筑設計要求幕墻K值約1.71 W/㎡.K)要求。對幕墻防噪音及隔聲等情況的設計,也做了具體的闡述。河北邢臺地區抗震設防烈度按7度設計,建筑幕墻的面板與建筑幕墻的骨架間采用防脫、防滑設計。抗震設防的基本思想和原則按 “三個水準”為抗震設防目標。建筑幕墻的防火設計嚴格按照《建筑設計防火規范》和《高層民用建筑設計防火規范》的相關規定執行。建筑幕墻設計的規范化、標準化,在某種程度上,決定的建筑幕墻產品的品質和質量,同時,也提高了建筑本身的藝術品味。
關鍵詞:構件式,框支承,玻璃幕墻,建筑幕墻,規范化,標準化
引言
隨著時代及建筑幕墻行業的發展,建筑幕墻設計的標準化、規范化應用日趨廣泛。但是,在建筑幕墻設計過程中對建筑幕墻規范、標準的應用,層出不窮,亂想重生,同時建筑幕墻設計圖紙對規范、標準的貫徹也五花八門。針對上述情況,本文通過實際工程案例,對建筑玻璃幕墻在設計過程中,應注意到的具體細節、部位進行簡要闡述。
本文對構件式玻璃幕墻橫梁、立柱以及連接的螺栓,橫梁、立柱接觸部位應注意的事項,做了歸納總結。同時也對玻璃幕墻的構造設計應滿足要求,做了歸納總結。
通過《邢臺銀行綜合營業樓》工程案例,逐步對玻璃幕墻設計進行深入闡述、歸納,從預埋件、立柱、橫梁、防火、節能、抗震設計等進行了綜合分析。列明設計要點,展現設計圖紙對照,總結設計經驗。
建筑幕墻設計的規范化、標準化、程序化,是建筑幕墻行業實現工業化生產,提高建筑幕墻產品品質和質量的有效手段,也行建筑幕墻行業發展的重要方向。
本文通過《邢臺銀行綜合營業樓》工程案例設計經驗總結,為建筑幕墻設計工作盡一份幕墻工作者的責任心。
一、工程概況

邢臺銀行綜合營業樓位于河北省邢臺市邢東新區邢州大道以北、興盛街以南、濱河東路以西。邢臺銀行綜合營業樓建筑幕墻由中國建筑設計研究院有限公司設計,建筑面積106596.31㎡,其中地上建筑面積78743.83㎡,地下建筑面積27852.48㎡,是一類高層公共建筑。建筑幕墻面積61000㎡。包括:構件式玻璃幕墻、構件式金屬鋁板幕墻、吊掛全玻幕墻、玻璃采光天窗、金屬鋁板玻璃雨棚、不銹鋼玻璃欄板等。主要以構件式玻璃幕墻(半隱框和全明框)、金屬鋁(詞條“鋁”由行業大百科提供)板幕墻為主。
二、構件式幕墻設計
1、構件式玻璃幕墻概念:
構件式玻璃幕墻是指在現場依次安裝立柱、橫梁和面板的框支承建筑玻璃幕墻。構件式玻璃幕墻依據外在表現形式可分為全隱框和半隱框(橫明豎隱和豎明橫隱兩種)及全明框三種。根據國家相關規定,全隱框玻璃幕墻按條件使用。
2、構件式幕墻設計原則及要求:
依據玻璃幕墻工程技術規范(JGJ102-2003)要求,構件式幕墻設計應滿足如下基本原則和要求:
(1) 立柱截面主要受力部位的壁厚應符合《玻璃幕墻工程技術規范》JGJ102-2003 中第6.3.1條的規定。
(2)橫梁截面主要受力部位的壁厚應符合《玻璃幕墻工程技術規范》 JGJ102-2003 中第6.2.1條的規定。
(3) 立柱、橫梁等主要受力部位應采用螺釘連接時,數量不應少于2個,且連接部位應局部加厚,厚度不應小于螺釘的公稱直徑。
(4) 立柱橫梁的連接應考慮溫度變化引起的不同型材或型材與螺釘之間的擠壓,避免幕墻異響,可采用柔性墊片隔離。
(5) 上、下立柱之間應留有不小于15mm的縫隙,閉口型材可采用長度不小250mm的芯柱(詞條“芯柱”由行業大百科提供)連接,應與上下立柱緊密配合。開口型材上柱與下柱之間可采用等強型材機械連接。立柱接縫宜封閉防水。
玻璃幕墻除應滿足上述規定外,還應滿足如下要求:
(1) 玻璃應采用安全玻璃。
(2) 安全玻璃的最大許用面積應符合《建筑門窗(詞條“建筑門窗”由行業大百科提供)幕墻用鋼化玻璃》JG/T455的規定及《建筑玻璃應用技術規程》JGJ 113-2015表7.1.1-1的規定。
(3) 玻璃邊緣應進行磨邊和倒角處理,其倒棱的棱寬應不小于1mm,不應有裂紋和缺角。
(4) 鋼化玻璃應均質處理,建議采用超白鋼化玻璃。
(5) 非點支承的夾層玻璃建議采用半鋼化玻璃或普通浮法玻璃。
(6) 單片玻璃厚度不應小于6mm,夾層玻璃的單片厚度不宜小于5mm。夾層玻璃和中空玻璃的單片玻璃厚度相差不宜大于3mm。
(7) 離線Low-E鍍膜玻璃膜面應朝向中空氣體層,在線Low-E的膜面可以暴露于空氣中。
(8) 幕墻玻璃之間的拼接膠縫寬度應能滿足玻璃和膠的變形要求,并不宜小于10mm。
(9) 幕墻玻璃表面周邊于建筑內、外裝飾物之間的縫隙不宜小于5mm。
(10) 當與玻璃幕墻相鄰的樓面外緣無實體墻時,應設置防撞設施。
(11) 硅酮結構密封膠和硅酮建筑密封膠必須在有效期內使用。
三、明框玻璃幕墻設計
1、明框玻璃幕墻設計要點:
(1) 中空玻璃合片膠可采用聚硫膠,也可采用硅酮建筑密封膠。
(2) 立柱和橫梁中所采用的隔熱條、玻璃壓板應通長布置。
(3) 傾斜幕墻時,壓板固定螺釘端部及相鄰壓板對接處應采用硅酮建筑密封膠密封。
(4) 玻璃入槽深度應符合《玻璃幕墻工程技術規范》 JGJ102-2003 中表9.5.2和表9.5.3的規定。
(5) 隔熱條不應承擔玻璃自重。
(6) 玻璃與托條之間應采用硬橡膠墊塊襯托,墊塊數量應為2個,厚度不應小于5mm,每塊長度不應小于100mm。
2、明框玻璃幕墻設計圖:
依據上述設計原則和要求,《邢臺銀行綜合營業樓》玻璃幕墻工程立柱、橫梁設計如下圖:

四、豎明橫隱玻璃幕墻設計
1、豎明橫隱玻璃幕墻設計要點:
(1) 玻璃與鋁型材粘結必須采用中性硅酮結構密封膠。
(2) 硅酮結構膠寬度不應小于7mm,厚度不應小于6mm,不應大于12mm,寬度宜大于厚度,但不宜大于厚度的2倍。
(3) 同一工程應采用同一品牌的硅酮結構密封膠和硅酮建筑密封膠配套使用,中性硅酮結構密封膠的設計使用年限不宜低于25年。
(4) 鋁型材與結構膠粘結處表面應采用陽極氧化或鉻化處理,當采用氟碳噴涂處理時,應先涂一層專用底漆。
(5) 粘結板塊的硅酮結構膠不應長期處于單獨受力狀態,中空玻璃的二道密封應采用硅酮結構密封膠。
(6) 中空玻璃合片結構膠的位置應與附框粘結的結構膠重合,當采用大小片構造時應當確保一對邊位置的結構膠重合,中空玻璃的二道密封應采用硅酮結構密封膠。
(7) 固定玻璃壓板的螺釘間距宜小于300mm。
(8) 每塊玻璃的下端宜設置玻璃托條,托條應能承受玻璃的重力荷載作用,且長度不應小于100mm、厚度不應小于2mm、高度不應超出玻璃外表面。托條上應設置襯墊。
(9) 出入口的上方不應采用隱框幕墻,大于100米以上的建筑不宜采用隱框幕墻,外傾斜、倒掛的幕墻不得采用隱框幕墻。
(10) 連接玻璃附框的結構膠及中空玻璃合片膠應經計算并在圖紙中注明尺寸。
(11) 由于板塊過大,硅酮結構膠采用高強結構膠時,應組織專項論證后方可使用。
2、豎明橫隱玻璃幕墻設計:
依據上述設計原則,《邢臺銀行綜合營業樓》幕墻工程豎明橫隱玻璃幕墻立柱、橫梁設計如下圖:

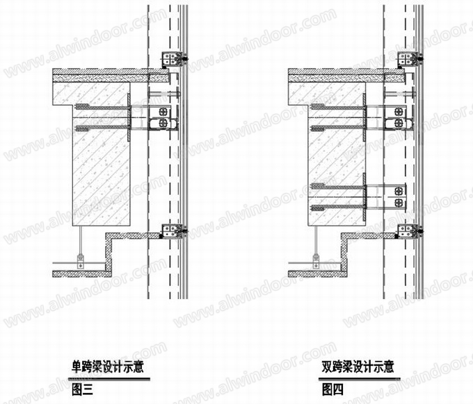
五、幕墻連接設計
1、幕墻連接設計要點:
(1) 多層或高層的幕墻立柱與主體結構的連接形式宜采用多跨鉸接。
(2) 采用雙跨,其長短跨比宜不大于10,雙跨的第二個支點應設計豎向長圓孔。

(3) 立柱下端支承時,應作壓彎構件設計,對受彎平面內和平面外作受壓穩定計算,立柱應考慮其長細比。
(4) 在自重標準值作用下,水平受力構件(如橫梁)在單塊面板兩端跨距內的最大撓度不應超過該面板兩端跨距的1/500,且不應超過3mm。
(6) 上、下立柱之間應留有不小于15mm的縫隙,閉口型材可采用長度不小于250mm的芯柱連接,金屬、石材幕墻芯套長度不應小于400mm,芯套與立柱應緊密配合。
(7) 立柱與主體結構之間每個受力連接部位的連接螺栓不應少于2個,且連接螺栓直徑不宜小于10mm。
(8) 橫梁可通過角碼(詞條“角碼”由行業大百科提供)、螺釘或螺栓與立柱連接。角碼應能承受橫梁的剪力,其厚度不應小于3mm。
(9) 輕質填充墻不得作為幕墻的支承結構。
2、幕墻連接設計圖:
依據上述設計原則及本工程特點,《邢臺銀行綜合營業樓》幕墻工程立柱與主體結構連接形式如下圖:

六、幕墻埋件設計
1、預埋件設計簡述
幕墻承受的荷載最終通過埋件傳遞到主體結構上,所以埋件的設計至關重要。幕墻用埋件包括預埋件和后置埋件,預埋件包括平板預埋件、槽型預埋件、板槽預埋件。預埋件的設計使用年限應與主體結構保持一致,不宜低于50年。后錨固連接設計的設計使用年限不宜小于30年。

2、平板預埋件

3、平板埋件設計要點:
(1) 幕墻用平板預埋件按照《玻璃幕墻工程技術規范》JGJ102中附錄C和《金屬與石材幕墻工程技術規范》JGJ133中附錄C的相關規定進行設計,同時應滿足《混凝土結構設計規范》GB50010中9.7條的相關規定。
(2)雨篷、采光頂、大型鋼結構的預埋件應參考《混凝土結構設計規范》GB50010中的9.7條及相關規定。
(3)平板預埋件的錨板宜采用Q235B、Q345B級鋼,錨筋應采用HRB400或HPB300級鋼筋(詞條“鋼筋”由行業大百科提供)。
(4)錨板厚度應根據其受力情況按計算確定,且宜大于錨筋直徑的0.6倍。錨筋中心至錨板邊緣的距離c不應小于錨筋直徑的2倍和20mm的較大值。
(5)受剪平板預埋件的直錨筋可采用2根,其他受力直錨筋不宜少于4根,且不宜多于4層;其直接不宜小于8mm,且不宜大于25mm。預埋件的錨筋應放置在構件的外排主筋的內側。
(6) 直錨筋與錨板應采用T型焊。對HPB300級鋼筋宜采用E43型焊條,對HRB400級鋼筋宜采用E55型焊條。當錨筋直徑不大于20mm時,可采用壓力埋弧焊或手工焊,壓力埋弧焊宜采用HJ431型焊劑;當錨筋直徑大于20mm時,宜采用穿孔塞焊。當采用手工焊時,焊縫高度不宜小于6mm及0.6d,d為錨筋直徑。
(7)當錨筋的拉應力設計值小于鋼筋抗拉強度設計值fy 時,其錨固長度可適當減小,但不應小于15倍錨固鋼筋直徑。
4、槽式預埋件

5、槽式埋件設計要點:
(1)金屬槽可由鋼板折彎,鑄件(詞條“鑄件”由行業大百科提供),鍛件(詞條“鍛件”由行業大百科提供)制成。槽式預埋件應采用碳鋼材質,所用材料各項性能指標不低于Q235號碳鋼,鋼槽壁厚應不小于2mm,表面應進行分件熱浸鍍鋅處理,鍍層厚度不宜小于55um。
(2) 配套T型螺栓鋼材材質應為:8.8級碳鋼,表面應進行熱浸鍍鋅處理,鍍鋅(詞條“鍍鋅”由行業大百科提供)層厚度不宜小于45um,單個T型螺栓和單根錨筋的受拉及受剪設計值不應超過其抗拉抗剪承載力設計值。
(3)槽式預埋件的槽身與腿部應采用冷連接(無焊接)設計,確保預埋槽腿部無焊接殘留應力,并且避免酸洗時酸液殘留在焊接縫內導致的鍍鋅層問題。
(4)槽式埋件承載力標準值由產品型式檢驗報告或認證報告提供。
(5) 槽式埋件組件設計,應分別對拉力和剪力引起的槽式預埋件及混凝土結構強度進行校核,并驗算剪力復合作用。
(6) 槽式埋件需要考慮平行于槽體長度方向剪力時,不應采用僅依靠T型螺栓與鋼槽卷邊之間的摩擦力來抗剪,螺栓應焊接定位或采用其他防滑移措施。
(7)槽式預埋件廠商必須提供有實驗依據的預埋槽安裝偏拉后的修補措施。
(8) 為了避免漏漿,槽式預埋件槽內要填充密封條(詞條“密封條”由行業大百科提供)(不能使用海綿等不密軟質封材料),兩端要有端蓋封口。填充物應為環保低密度聚乙烯(LDPE)材料,且配有易拉條設計,方便拆除。
(9)槽式預埋件的動載性能和遇火時的承載力設計,應通過相關的認證測試。對有抗震設防要求的幕墻建筑,槽式預埋件宜采用帶齒牙卷邊優化槽體,及與之配套的帶齒牙T型螺栓。
(10)槽式預埋件的混凝土基材(詞條“基材”由行業大百科提供)厚度應不小于1.5hef,且不小于200mm。槽式預埋件的有效錨固深度不得小于90mm;兩個錨筋間的最小間距不小于100mm,最大間距不大于250mm。槽式預埋件與混凝土構件的最小邊距C1和C2均應不小于50mm。hef為槽式埋件的有效埋深。
6、后置埋件

7、后置埋件設計要點:
(1)后錨固連接設計的設計使用年限不宜小于30年。
(2) 后置埋件設計與構造應按照《混凝土結構后錨固技術規程》JG145的規定,且應采取防止錨栓螺母松動和錨板滑移的措施。
(3)在抗震設防區應采用適用于開裂混凝土的錨栓。普通化學錨栓不應用于重要的或受力較大部位的錨固連接。
(4)錨板厚度應按照現行國家標準《鋼結構設計規范》GB 50017進行設計,且不宜小于錨栓直徑的0.6倍,受拉和受彎錨板的厚度尚宜大于錨栓間距的1/8;外圍錨栓孔至錨板邊緣的距離不應小于2倍錨栓孔直徑和20mm。
(5) 每個連接節點不應少于2個錨栓。
(6)錨栓直徑應通過承載力計算確定,并不應小于10mm。
(7)后置錨栓應進行承載力現場試驗,現場檢測極限承載力應當大于設計值的2倍。
(8)錨栓的有效錨固深度不應小于60mm,有效錨固深度不應包括裝飾層或抹灰層。
(9)防火分區位置的后置埋件應采用后擴底型錨栓進行固定。
(10)普通化學錨栓的有效錨固深度不大于20d,d為錨栓直徑。
(11) 擴底型錨栓和化學錨栓的最小間距s≥6d,最小邊距c≥6d,d為錨栓直徑。
(12)擴底型錨栓的混凝土基材厚度h不應小于2hef,且h應大于100mm,hef為錨栓的有效埋置深度。
(13)化學錨栓的混凝土基材厚度h不應小于hef+2d0,且h應大于100mm,hef為錨栓的有效埋置深度,d0為鉆孔直徑。
《邢臺銀行綜合營業樓》主要為框支撐構件式幕墻,另外還包括部分幕墻鋼結構及金屬鋁板玻璃雨蓬,依據項目這些特點,建筑幕墻主要采用平板式預埋件,后期由于施工偏差,采用部分后補埋件,后補埋件固定采用擴底型錨栓。

七、幕墻防火設計
1、幕墻防火設計要求:
1.建筑幕墻的防火設計應符合現行行業標準《建筑設計防火規范》GB50016和《高層民用建筑設計防火規范》(GB50054)的規定
2.建筑幕墻的防排煙設計應符合現行行業標準《建筑防排煙系統技術標(詞條“技術標”由行業大百科提供)準》GB51251的規定
2、具體設計要點如下:
(1)幕墻與每層樓板、隔墻(詞條“隔墻”由行業大百科提供)處的縫隙應采用防火封堵材料封堵,當采用防火巖棉(詞條“巖棉”由行業大百科提供)或礦巖棉封堵時,其厚度不應小于100mm,并應填充密實。樓層間水平防排煙帶的巖棉或礦巖棉采用厚度不小于1.5mm的鍍鋅鋼板承托。承托板與主體結構、幕墻結構及承托板之間的縫隙填充防火密封膠。
2.同一幕墻單元,不宜跨越建筑的兩個防火分區。
3.消防救援窗的凈高度和凈寬度均不應小于1.0米,下沿距室內地面不宜小于1.2米,間距不宜小于20米且每個烽火分區不用少于2個。設置位置應與消防車登高操作場地相對應。并應設置可在室外易于識別的明顯標志。
4.建筑高度大于54米的住宅建筑(詞條“住宅建筑”由行業大百科提供)每戶應有一間房間應靠外墻設置可開啟外窗,外窗的耐火完整性不宜低于1.00h,該房間的門宜采用乙級防火門。
5.建筑外墻上、下層開口之間應設置高度不小于1.2m的實體墻或挑出寬度不小于1.0m、長度不小于開口寬度的防火挑檐;當室內設置自動噴水滅火系統時,上、下層開口之間的實體墻高度不應小于0.8m。當上、下層開口之間設置實體墻確有困難時,可設置防火玻璃墻,但高層建筑的防火玻璃墻的耐火完整性不應低于1.00h,多層建筑的防火玻璃墻的耐火完整性不應低于0.5h。
6. 建筑外保溫和外墻的裝飾層材料的燃燒性能等級應符合《建筑設計防火規范》GB50016第6.7條的規定。
7. 公共建筑內建筑面積大于100㎡且經常有人停留的地上房間應設置排煙設施。可采用機械排煙或自然排煙窗(口);
8. 建筑空間凈高小于或等于6m的場所,當采用自然排煙窗(口)時,其排煙有效面積不小于該房間建筑面積的2%。
9. 采用自然通風方式的避難層(間)應設有不同朝向的可開啟外窗,其有效面積不應小于該避難層(間)地面面積的2%,且每個朝向的面積不應小于2.0㎡。
10. 避難層應設置直接對外的可開啟窗口或獨立的機械防煙設施,外窗應采用乙級防火窗。
11. 自然排煙窗(口)應設置手動開啟裝置,設置在高處不便于直接開啟的可開啟外窗應在距地面高度為1.3m~1.5m的位置設置手動開啟裝置。
12. 外墻上設置自然排煙窗(口)應在儲煙倉以內,但走道、室內空間凈高度不大于3m的區域的自然排煙窗(口)可設置在室內凈高度的1/2以上。
13. 自然排煙窗(口)的開啟形式應有利于火災煙氣的排出。
14. 自然排煙窗(口)宜分散均勻布置,且每組的長度不宜大于3.0m。
15. 當采用自然排煙方式時,儲煙倉的厚度不應小于空間凈高度的20%,且不應小于500mm,儲煙倉底部距地面的高度應大于安全疏散所需的最小清晰高度。
16.走道、室內空間凈高不大于3m的區域,其最小清晰高度不宜小于其凈高的1/2,其他區域的最小清晰高度應按下式計算:
Hq=1.6+0.1·H'
式中:Hq——最小清晰高度(m);
H'——對于單層空間,取排煙空間的建筑凈高度(m);對于多層空間,取最高疏散樓層的高度(m)。
17. 自然排煙窗(口)開啟的有效面積計算如下:

當采用百葉窗時,窗的有效面積為窗的凈面積乘以遮擋系數,根據工程實際經驗,當采用防雨百葉時系數取0.6,當采用一般百葉時系數取0.8。
18. 緊靠防火墻兩側的門、窗、幕墻之間最小邊緣的水平距離不小于2.0m的范圍內未設置不燃燒實體墻,采取設置乙級防火窗來實現防火要求。建議防火分區位置玻璃幕墻室內側設置實體墻。

19.建筑幕墻的防火性能取決于其構件材料的燃燒性能和構件的耐火極限。幕墻所使用的所有材料均要求采用耐燃或不燃型材料。
《邢臺銀行綜合營業樓》幕墻工程防火等級為二級,不低于1小時防火時效。防火巖棉的密度不小于150Kg/m3,防火層防火巖棉厚度不小于100mm。層間防火采用雙道防火設計。

八、幕墻防雷設計
1、幕墻防雷設計依據
建筑物按防雷要求分為三類,其中第一類主要是屬于具有爆炸危險環境的建筑物,如使用或儲存炸藥、火藥、起爆藥等爆炸物質的建筑物等,常見的建筑幕墻的防雷分類主要是屬于第二類或第三類。建筑幕墻的防雷措施主要是防直擊雷。防直擊雷不僅要考慮頂層直擊雷,還要考慮側向直擊雷。
2、防雷設計要點:
1. 建筑幕墻的防雷設計應符合現行行業標準《建筑防雷設計規范》GB50057和《民用建筑電氣設計規范》JGJ/T 16的規定。
2. 幕墻的金屬框架一般不單獨作防雷接地,而是利用主體結構的防雷體系,與建筑本身的防雷設計相結合。所以幕墻的金屬框架應與主體結構的防雷體系可靠連接,并保持導電(詞條“導電”由行業大百科提供)暢通。
3. 二類防雷建筑高度不大于45m時,三類防雷建筑高度不大于60m時,建筑幕墻主要是防頂層直擊雷,不需要考慮側向直擊雷。
4. 幕墻的立柱宜采用柔性導線上、下連通。在主體建筑有水平均壓環的樓層,立柱的預埋件或固定件可采用圓鋼或扁鋼與水平均壓環焊接連通,形成導電電路,焊縫和連線應涂防銹漆。扁鋼截面不宜小于5mm x 40mm,圓鋼直接不宜小于12mm。
5. 當采用后置埋件埋設時,應在每兩層用φ12鋼筋設一道幕墻避雷鋼筋,與主體避雷鋼筋連通,采用焊接的形式,避雷鋼筋的焊接長度不小于6d,d為鋼筋的直徑。
6. 隔熱型材的內外側金屬型材應連接成電氣通路。
7. 幕墻立柱在套芯連接部位、幕墻與主體結構之間,應按防雷連接材料截面的規定連接。詳見下表

8.構件連接部位有絕緣材料覆蓋時,應采取措施形成有效的防雷電氣通路。
9. 金屬幕墻的面板及其它外露金屬部件,應與支承構件形成良好的電氣貫通。支承結構應與主體結構的防雷體系連通。
10. 利用自身金屬材料作為防雷接閃器的幕墻,其壓頂板宜選用厚度不小于3mm的鋁合金單板,截面積應不小于70 mm2。
11. 單元式幕墻型材有隔熱構造時,應以等電位金屬導體連接其內外側金屬材料,每一單元板塊不少于兩處。
12.單元板塊橫豎向型材均設有密閉橡膠條時,型材插口拼裝連接處應采用等電位金屬材料跨接,形成良好的電氣通路。
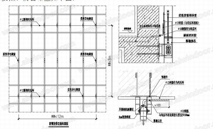
《邢臺銀行綜合營業樓》幕墻工程防雷按二類防雷等級設計,滿足上述防雷設計要點。防雷布置如下圖:

《邢臺銀行綜合營業樓》幕墻工程根據規范的分類和建筑物特點,幕墻防雷設計為二類防雷;幕墻防雷自身形成防雷體系,與主體結構的防雷體系可靠連通。幕墻的金屬框架應與主體結構的防雷體系可靠連接,連接部位應清除非導電保護層,安裝防雷導線前應先除掉接觸面上的鈍化氧化膜或銹蝕,去除表面粉末噴涂層。建筑在45m以上采取防側擊雷措施,主體結構每兩層(小于8m)設置一圈直徑不小于12mm圓鋼;每二層橫向鋼橫梁導通,豎向(小于12m)導通(如上圖),橫向再與主體引出線連接導通(小于8m),防側擊雷措施中作為接閃器的幕墻網格不大于12米X8米。在女兒墻頂部、檐口處、挑檐處均應設置均壓環,并將雨棚、懸挑金屬構件與均壓環可靠連接;采用直徑為12mm圓鋼將鋼立柱均壓環相連,焊接時采用對面焊,搭接(詞條“搭接”由行業大百科提供)長度不小于100mm,焊縫高不小于6mm,外露表面二道防銹漆處理。立柱之間采用銅質導線連通,銅質導線截面積不小于25mm2,接觸面積不小于150平方毫米。均壓環與作為防雷引線的立柱相連接間距不大于12m,在轉角部位將立柱設計成引下線,安裝完成后,沖擊接地電阻不大于10歐姆。玻璃幕墻位置,埋件應與主體防雷外甩點可靠連通,水平間距控制在10m以內。幕墻立柱最上端和最下端及中間每隔約8m處均通過預埋件與防雷引下線連接,金屬構件所有中間斷開處用25mm²編織軟銅線連接。
依據上述原則及處理措施,本工程幕墻防雷滿足規范要求的二類防雷等級設計要求。
九、幕墻節能設計
1、幕墻節能設計要點:
1. 建筑幕墻節能根據建筑熱工要求進行設計,建筑沒有要求的情況下,應滿足國家標準和當地地方標準的規定。
2. 中空玻璃四周封邊宜采用暖邊間隔條。
3. 空氣層采用氬氣或真空。
4. 采用低輻射鍍膜玻璃,如單銀、雙銀、三銀。
5. 采用三玻兩腔中空玻璃。
6. 立柱、橫梁、開啟扇宜采用隔熱鋁型材,其工藝宜采用穿條(詞條“穿條”由行業大百科提供)或注膠。
7. 用穿條工藝的隔熱型材,其隔熱材料應使用PA66(詞條“PA66”由行業大百科提供)GF25(聚酰胺66+25%玻璃纖維),用注膠工藝的隔熱型材,其隔熱材料應使用PU(聚醚型聚氨酯)材料。
8. 非透明部分背后應設計保溫材料。
9. 玻璃的U值和遮掩系數根據熱工計算的結果取值。
10. 夏熱冬暖,夏熱冬冷、溫和地區的建筑各朝向外窗(包括透光幕墻),均應采取遮陽措施,東西向宜設置活動外遮陽,南向宜設置水平外遮陽。
11. 甲類公共建筑外窗(包括透光幕墻)應設開啟窗扇,其有效通風換氣面積不宜小于所在房間外墻面積的10%,當透光幕墻通風受限制時,應設置通風換氣裝置;乙類公共建筑外窗有效通風換氣面積不宜小于窗面積的30%。
12. 嚴寒地區建筑的外門應設置門斗,寒冷地區建筑面向冬季主導風向的外門應設置門斗或雙層外門。夏熱冬暖,夏熱冬冷和溫和地區建筑的外門應采取保溫隔熱措施。
13. 當公共建筑入口大堂采用全玻幕墻時,全玻幕墻中非中空玻璃的面積不應超過同宜立面透光面積(門窗和玻璃幕墻)的15%。
14. 嚴寒、寒冷、夏熱冬冷地區建筑的玻璃幕墻宜進行結露驗算。
《邢臺銀行綜合營業樓》工程建筑體形系數0.10,各朝向窗墻比:東0.63,南0.55,西,063,北0.56。依據《河北省公共建筑節能設計標準》》(DB13(J)81-2016)和《綠色建筑評價標準》GB/T50378-2019中綠色建筑二星標準及建筑設計要求,建筑玻璃幕墻整體K值不大于1.71 W/㎡.K,建筑玻璃幕墻按照1.70取值。依據上述情況,采取如下技術措施:
(1)中空玻璃采用暖邊間隔條。
(2)中空玻璃空氣層沖氬氣處理。
(3)中空玻璃為兩道雙銀低輻射鍍膜玻璃,內片玻璃為超級保溫膜。
(4)立柱、橫梁、開啟扇均采用隔熱鋁型材。
(5)隔熱型材中其隔熱材料為PA66GF25(聚酰胺66+25%玻璃纖維)。
(6)非透明部分背后設計100mm厚保溫材料。

依據上述技術措施,玻璃K值約1.3 W/㎡.K,建筑玻璃幕墻整體設計值為1.65 W/㎡.K,滿足綠建二星和當地規范要求。
十、幕墻抗震設計
根據抗震規范要求,《邢臺銀行綜合營業樓》工程采用七度抗震設防設計。幕墻的面板與骨架間采用防脫、防滑設計。抗震設防的基本思想和原則按下列“三個水準”為抗震設防目標:
第一水準:當遭受低于本地區抗震設防烈度的多遇地震影響時,一般不受損壞或不需修理可繼續使用。
第二水準:當遭受相當于本地區的抗震設防烈度的地震影響時,可能損壞經一般修理或不需修理仍可繼續使用。
第三水準:當遭遇高于本地區抗震設防烈度預估的罕遇地震影響時,不致于倒塌或發生危險及生命的嚴重破壞。
十、結 論
《邢臺銀行綜合營業樓》幕墻工程,地處河北省邢臺市,地面粗糙度為C類,建筑幕墻設計使用年限為25年,抗震設防烈度為7度 ,建筑高度為120米,建筑標準層高為4.2米。 裙樓標準層高5.1米,建筑玻璃幕墻與金屬鋁板包柱間隔、公用幕墻立柱,綜合考慮金屬鋁板包柱進深及建筑高度問題,構件式玻璃幕墻型材選用170/180/220系列鋁合金立柱,型材局部受力壁厚為5mm。橫梁局部受力壁厚為4.0毫米,型材截面為閉腔式設計。幕墻立柱采用單跨和雙跨梁兩種設計方式。通過有限元力學分析,能夠滿足本項目的設計要求。

本工程幕墻選用平板預埋件,平板埋件為300x250x12mm鋼板,錨筋為φ12mm鋼筋。部分漏埋,錯埋的埋件采用后置埋件,埋板為300x250x12mm鋼板,表面熱侵鍍鋅,全部擴底錨栓固定。

本工程幕墻防火等級為二級, 防火時效不低于1小時。防火巖棉的密度為150Kg/m3,防火層防火巖棉厚度為100mm。層間防火層采用雙道防火措施。防火密封膠密封。
本工程幕墻按二類防雷等級設計,滿足上述防雷設計要點。
本工程幕墻抗震按為7度抗震設防設計。幕墻的面板與骨架間采用防脫、防滑設計。
建筑玻璃幕墻整體設計值為1.65 W/㎡.K,滿足綠建二星和當地規范要求。
參考文獻
[[1]] 《玻璃幕墻工程技術規范》 JGJ102-2003
[2] 《建筑門窗幕墻用鋼化玻璃》 JG/T455-2015
[3] 《建筑玻璃應用技術規程》 JGJ 113-2015
[4] 《建筑幕墻》 GB/T 21086-2007
[5] 《鋁合金結構設計規范》 GB 50429-2007
[6] 《玻璃幕墻光學性能》 GB/T 18091-2000
[7] 《建筑結構荷載規范(詞條“建筑結構荷載規范”由行業大百科提供)》 GB 50009-2012
[8] 《建筑物防雷設計規范(詞條“建筑物防雷設計規范”由行業大百科提供)》 GB 50057-2010
[9] 《建筑設計防火規范》 GB 50016—2014
[10]《公共建筑節能設計標準》 GB 50189-2015
[11]《民用建筑熱工設計規范》 GB 50176-2016
[12]《鋼結構設計規范》 GB 50017-2003
[13]《嚴寒和寒冷地區居住建筑節能設計標準》 JGJ 26-2010
[14]《夏熱冬冷地區居住建筑節能設計標準》 JGJ 134-2010
[15]《夏熱冬暖地區居住建筑節能設計標準》 JGJ 75-2012
作者單位:中國建筑設計研究院有限公司建筑帷幕設計咨詢中心