本篇文章內容由[中國幕墻網ALwindoor.com]編輯部整理發布:
律動的美妙音符|上海國際傳媒港項目具有建筑外立面造型復雜、面板種類繁多、外觀細節要求嚴格等特點,項目包含框架式玻璃幕墻、單元式玻璃幕墻、鋁板幕墻、鋁合金吊頂、雨蓬、欄桿、百葉、金屬屋面等幕墻系統。項目的重難點在于——錯位雙曲面單元式幕墻的設計與施工。

本文將通過介紹工程的錯位雙曲面單元式幕墻的設計、加工與吊裝,特別是錯位雙曲面單元幕墻構造設計、板塊的組裝、玻璃面板靜壓冷彎(詞條“冷彎”由行業大百科提供)等技術,對單元式幕墻的設計、加工與施工,提供新的思路及管理辦法,也為今后類似工程的實際應用,提供重要參考價值。

1、工程概況
上海國際傳媒港的工程代號:上海黃浦江南延伸段WS5單元188S-M-1地塊項目,位于上海市徐匯區,地塊北臨龍文路、南臨規劃九路、西臨云謠路、東臨龍騰大道,幕墻面積約3.4萬平方米。項目分為M1、M2、M3、M4共4棟樓。M1為Imax影院,建筑高度29.85米,共4層;M2為辦公樓,建筑高度39.85米,共7層;M3為辦公樓,建筑高度39.85米,共7層;M4為商業裙樓,建筑高度23.85米,共3層。(如圖1.1、圖1.2)

圖1.1上海黃浦江南延伸段WS5單元188S-M-1地塊幕墻工程效果圖

圖1.2 項目各棟樓分布平面示意圖
錯位雙曲面單元式幕墻分布于M2樓及M3樓,兩棟樓的南北立面均呈雙曲面造型,其中,M2樓南立面、M3樓北立面在層間位置向內退一段距離,內退的距離從弧形中間向兩邊逐漸減小,并且每層的完成面向內傾斜,從而形成內傾內退的錯位雙曲面幕墻造型;類似地,M2樓北立面、M3樓南立面,在層間位置向外凸出一段距離,凸出的距離從弧形中間向兩邊逐漸減小,并且每層的完成面向外傾斜,從而形成外傾外凸的錯位雙曲面幕墻造型。(如圖1.3、圖1.4)

圖1.3內傾內退造型的錯位雙曲面幕墻效果圖

圖1.4外傾外凸造型的錯位雙曲面幕墻效果圖
2、錯位雙曲面單元式幕墻的設計
2.1、外觀設計特點
M2、M3外立面為帶豎向大裝飾線條的錯位雙曲面幕墻,裝飾線條表面設置不同顏色且呈一定規律分布,結合層間進退變化的造型,形成優美的曲線效果。(如圖2.1)

圖2.1M2樓效果圖
M2、M3樓對稱分布,幕墻構造形式一致,區別在于兩者南北立面錯位尺寸的大小,下面以M2樓為例進行介紹。
M2樓南立面,3層以上為內傾內退的錯位雙曲面幕墻:采用400mm寬的鋁合金(詞條“合金”由行業大百科提供)裝飾線條,幕墻豎向為往上每層內退一定距離,內退的距離從弧形中間(最大距離927mm)向兩邊逐漸減小,同時幕墻面向內傾斜,從而形成向內錯位的雙曲面幕墻。
M2樓北立面,3層以上為外傾外凸的錯位雙曲面幕墻:采用400mm寬的鋁合金裝飾線條,幕墻豎向為往上每層外凸一定距離,外凸的距離從弧形中間(最大距離538mm)向兩邊逐漸減小,同時幕墻面向外傾斜,從而形成向外錯位的雙曲面幕墻。
M2樓東、西立面,3層以上為帶400mm寬鋁合金裝飾條平面幕墻,其與南北立面的錯位雙曲面幕墻聯合成整體,使整個建筑外裝飾效果更協調,不同顏色的裝飾線條相互輝映、極具動感。
2.2、錯位雙曲面幕墻分析
M2南北面的錯位雙曲面幕墻,通過建筑造型分析,幕墻中每個分格的立柱(詞條“立柱”由行業大百科提供)傾斜角度不一樣,且弧形退臺(凸臺)的尺寸從中間向兩邊逐漸減小,同時還需配合立面不同高度的裝飾線條,若采用傳統的CAD建模模擬,將耗費大量的人力且不便于模型的檢查校核,因此,本項目的錯位雙曲面幕墻采用BIM技術--犀牛+Grasshopper參數化技術進行應用。
首先,根據建筑要求建立幕墻表皮,并進行幕墻板塊劃分(如圖2.2)。

圖2.2M2南立面錯位雙曲面幕墻表皮模型
其次,本項目3層以上采用單元式幕墻進行設計,雙曲面幕墻整體由每個傾斜進退造型的單元板塊組成,單元板塊存在翹曲值。通過編制參數化模塊,根據設計要求設定幕墻板塊翹曲值的區間,軟件將會自動對每個曲面板塊進行翹曲值分折,以不同顏色進行區別(如圖2.3),紅色板塊顯示的是翹曲值超出設定數值范圍的板塊,綠色板塊為設定數值范圍內的板塊。
。

圖2.3錯位雙曲面板塊翹曲值分析圖
最后,經分析,若單元板塊的翹曲值過大,將使得單元板塊難以設計及加工。通過編制參數化模塊,使幕墻面整體圓滑過渡,重新生成模型,達到最終能夠滿足建筑外觀要求的效果(如圖2.4)。

圖2.4 錯位雙曲面板塊擬合圖
2.3、幕墻系統構造
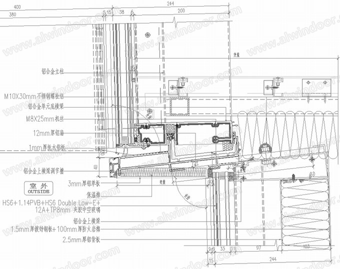
本項目M2樓南北立面,由于傾斜弧形的雙曲外立面造型,且上下單元板塊之間存在錯位,如果采用傳統的平板單元板塊拼接弧形幕墻、層間錯位部位采用構件式幕墻的形式,將使得幕墻的雙曲面效果將變得生硬、不自然,且錯位部位的連接復雜、施工工序變得繁瑣、安裝成本較高、工期較長、幕墻整體精度(詞條“精度”由行業大百科提供)難以控制。因此,經過反復研究論證,結合幕墻造型及參數化模型分析,我方設計了一種錯位雙曲面單元式幕墻系統,將錯位部位的退臺(凸臺)與立面單元板塊設計為一個整體,玻璃面板通過靜壓冷彎附在雙曲面單元框架上,形成錯位雙曲面單元式幕墻板塊。(如圖2.5)
2.3.1 雙曲面單元主框架連接
通過幕墻造型及參數化模型分析,單元板塊的兩支立柱傾斜角度不一樣,從板塊平面投影看,兩立柱與頂底橫梁(詞條“橫梁”由行業大百科提供)形成一定的角度(角A、角B、角C、角D),板塊頂部玻璃面板線與底部玻璃面板線形成最大距離(L5)(如圖2.6);從板塊側面投影看,板塊左右側玻璃面板線之間形成最大翹角尺寸距離(L5)(如圖2.7),本項目翹角尺寸(L5)最大值為10mm。單元板塊中的主橫梁均為直線材料,通過拼接,形成傾斜內退(外凸)的雙曲面的單元板塊框架。

圖2.5 錯位雙曲面單元板塊構造大樣示意圖

圖2.6板塊平面投影相關控制尺寸示意圖

圖2.7板塊側面投影相關控制尺寸示意圖
2.3.2 玻璃面板裝配設計
面板采用HS6+1.14PVB+HS6 Double Low-E+12A+TP8mm 夾膠中空玻璃(詞條“夾膠中空玻璃”由行業大百科提供),由于單元板塊的框架為傾斜內退(外凸)的雙曲面造型,框架翹角最大10mm,需對玻璃面板進行靜壓冷彎處理,使玻璃面板適應雙曲面框架造型,形成雙曲面的玻璃面板。經分析,玻璃面板在靜壓冷彎荷載作用下玻璃最大應力(詞條“應力”由行業大百科提供)為0.894MPa(如圖2.8),在水平荷載作用下(靜壓冷彎荷載與水平荷載疊加)玻璃最大應力為13.689MPa,因此玻璃面板滿足設計要求(如圖2.9)。

圖2.8 靜壓冷彎荷載作用下玻璃應力分析圖

圖2.9水平荷載作用下玻璃應力分析圖
玻璃面板靜壓冷彎后,通過單元板塊立柱豎向的鋁合金扣蓋進行扣接壓緊,扣蓋扣壓后,通過有效的螺釘連接,使扣蓋與主龍骨連接更加牢固,增強對玻璃面板冷彎的扣壓效果。(如圖2.10、圖2.11)

圖2.10玻璃面板構造節點圖

圖2.11玻璃面板靜壓冷彎后現場安裝效果:投影圖像均為扭曲效果
2.3.3 錯位雙曲面單元板塊插接構造
傾斜的幕墻板塊與錯位的退臺(凸臺)組合一起,形成一體化的內傾(外傾)退臺(凸臺)的錯位雙曲面單元式幕墻系統。
(1)內傾退臺的錯位雙曲面單元式幕墻系統:公立柱的插翅與立柱腔體形成整體,與母立柱進行插接。由于板塊公立柱帶有豎向大裝飾線條,插翅與腔體設計成一體,充分利用插翅的功能且形成閉腔型材(詞條“型材”由行業大百科提供),增強立柱抗變形能力及穩定性。(如圖2.12)

圖2.12錯位雙曲面單元式幕墻橫向構造節點圖
豎向插接位置,單元板塊頂橫梁由上橫梁、上橫梁調節槽、鋁扁組成一體。鋁扁兩端通過螺栓將上橫梁與上橫梁調節槽連接,調節槽在上橫梁后方,每個板塊設置三個鋁扁連接件;鋁扁下方設置保溫棉+鍍鋅鋼板,鋁扁上方鋪設1.2mm厚披水鋁板,鋁板搭接處設置0.6mm防水雨布(寬度為300mm),上橫梁與上橫梁調節槽退臺表面為3mm厚鋁單板。退臺截面的寬度通過鋁扁的長度進行調整,以適應漸變的弧形退臺尺寸。
上層單元板塊的底橫梁與下層單元板塊的頂橫梁進行插接,便完成內傾內退造型的錯位雙曲面單元板塊豎向插接。(如圖2.13)

圖2.13錯位雙曲面單元式幕墻豎向構造節點圖(內傾內退造型)
(2)外傾凸臺的錯位雙曲面單元式幕墻系統:公母立柱的插接原理與內傾退臺的錯位雙曲面單元式幕墻一致。
豎向插接位置,單元板塊頂橫梁由上橫梁、上橫梁調節槽、鋁扁組成一體。鋁扁兩端通過螺栓將上橫梁與上橫梁調節槽連接,調節槽在上橫梁前方,每個板塊設置三個鋁扁連接件;鋁扁上方設置保溫棉+封口鋁板,上橫梁與上橫梁調節槽凸臺表面為3mm厚鋁單板(詞條“單板”由行業大百科提供)+背襯保溫棉。凸臺截面的寬度通過鋁扁的長度進行調整,以適應漸變的弧形凸臺尺寸。
上層單元板塊的底橫梁與下層單元板塊的頂橫梁進行插接,便完成外傾外凸造型的錯位雙曲面單元板塊豎向插接。(如圖2.14)

圖2.14錯位雙曲面單元式幕墻豎向插接標準節點圖(外傾外凸造型)
2.3.4 支座設計
采用掛軸式單元幕墻支座,通過埋件、支座、掛件等掛軸式支座系統部件的配合,可實現單元板塊的三維方向及各種角度調整,具體如下:
(1)支座底板開有豎直方向的螺栓安裝長圓孔,槽式埋件與支座底板間通過連接螺栓進行左右、上下位置調節;
(2)鋼支座連接板與用作掛軸的不銹鋼(詞條“不銹鋼”由行業大百科提供)螺桿的連接處,設有水平方向長圓孔,以此可調整不銹鋼螺桿掛軸的進出位置,進而消除土建結構在進出位的誤差;
(3)連接螺栓、螺桿與底座鋼板(詞條“鋼板”由行業大百科提供)之間的鋼墊片固定(詞條“固定”由行業大百科提供);
(4)通過預置在單元掛件中的調節螺釘對單元板塊高度進行微調。同時,還需要將預置于掛件一側,調整掛軸螺桿上的定位鎖緊螺母,用于定位掛件、防止單元板塊在外力作用下沿掛軸螺桿發生大幅度左右位移。(如圖2.15)

圖2.15錯位雙曲面單元式幕墻支座節點圖
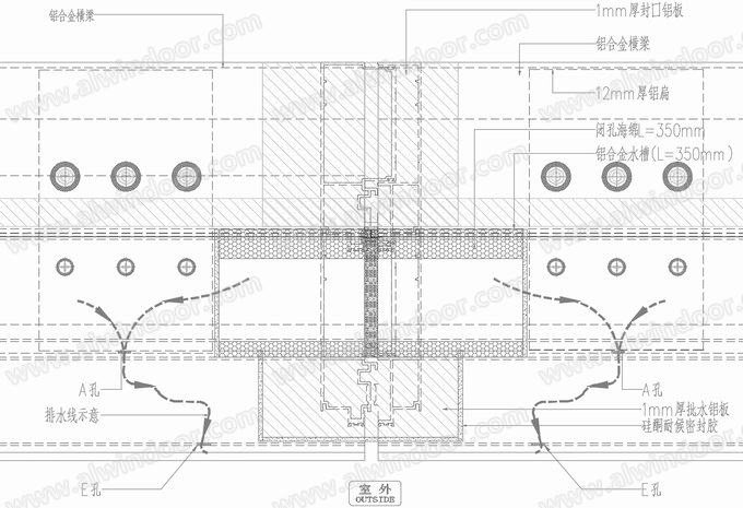
2.4、單元系統防排水設計
本項目單元系統大致的排水路徑如下:
進入第二道等壓腔的水通過單元上橫梁調節槽的A孔進入前端排水腔,然后順著橫梁前端排水腔先后通過B孔、C孔、D孔(內傾退臺)或E孔、F孔(外傾凸臺)排到室外。(如圖2.16~2.18)

圖2.16單元排水線路豎向示意圖(內傾退臺造型)

圖2.17單元排水線路豎向示意圖(外傾凸臺造型)

圖2.18單元排水線路橫向示意圖
3、單元板塊提料及加工
3.1、單元板塊提料
完成錯位雙曲面單元式幕墻系統設計后,利用犀牛+Grasshopper建立的參數化模型,進行下一步的幕墻提料工作。
(1)直接參數化生成幕墻的構件實體,然后再對主體結構(詞條“主體結構”由行業大百科提供)邊緣進行建模,進行不同專業的碰撞檢測,找到幕墻面板、龍骨(詞條“龍骨”由行業大百科提供)與結構干擾的地方,進行幕墻面的調整。(如圖3.1)

圖3.1參數化生成實體模型
(2)單元板塊尺寸不一,構件種類規格很多,利用參數化批量地生成了面板、立柱、橫梁等的主要構件的詳細的加工圖(工廠加工級別),大大提高工作效率。(如圖3.2~3.5)

圖3.2參數化生成鋁龍骨加工圖

圖3.3參數化生成單元板塊的尺寸數據圖

圖3.4參數化生成面板的加工數據

圖3.5參數化生成面板的加工圖
3.2、單元板塊加工
3.2.1錯位雙曲面單元式幕墻龍骨的拼接
錯位雙曲面單元式幕墻,為內傾弧形退臺或外傾弧形凸臺造型,單元板塊的重難點為主橫梁框架及退臺(凸臺)部位的拼裝。(如圖3.6)

圖3.6錯位雙曲面單元板塊
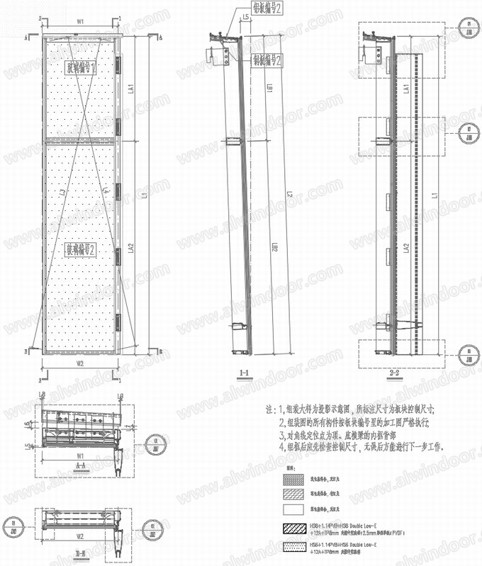
通過參數化模型分析,并結合加工廠的單元組裝要求,我們對板塊加工的各個尺寸變量進行嚴格控制,制定一個板塊參數表。板塊的加工必須按照表中的參數進行切割拼裝。
退臺(凸臺)位置,上橫梁調節槽與上橫梁的連接,各連接板連接螺栓必須做好密封防水處理,保證兩者為一個密封完整的整體。退臺(凸臺)錯位部位連接鋁扁后,錯位上下的保溫及防水功能必須按加工圖要求進行,板塊加工過程中任一環節都必須嚴格把控。(如圖3.7~3.9)

圖3.7單元板塊組裝圖

圖3.8單元板塊面板編號及參數表

圖3.9單元板塊部分型材加工圖
3.2.2玻璃面板安裝
錯位雙曲面單元式幕墻板塊,根據參數表的控制尺寸,確認板塊玻璃進行靜壓冷彎的翹角值,本項目的錯位雙曲面單元板塊玻璃面板最大翹角為10mm。通過豎向鋁合金扣蓋扣壓對玻璃面板進行靜壓冷彎,為防止玻璃回彈力使得扣蓋扣壓力不足,采取扣座與立柱之間穿機制螺釘來增強對玻璃面板的扣壓力,保證滿足設計要求。玻璃靜壓冷彎穩定后打注板塊橫向隱框結構膠,按規范要求對結構膠養護成型,再安裝室外側護邊、扣條、膠條等小部件,板塊發車前應再次檢查板塊是否有變形松動。(如圖3.10)

圖3.10玻璃面板組裝節點圖
3.2.3 單元板塊的密封設置
(1)單元板塊立柱與玻璃面板頂底部打注結構膠,與橫向隱框通長的結構膠在角部位置形成一體密封。在立柱前端與玻璃面板之間,隔熱條內側抹密封膠。板塊排水孔較多,需逐個進行鉆孔并進行復查,避免遺漏開孔導致排水不暢。(如圖3.11)

圖3.11單元板塊局部密封組裝節點圖
(2)45度交圈的膠條切45度角,采用烙接或者用專用膠水進行蘸接,同時需保證連接的可靠性;
(3)膠條長度必須達到設計要求,安裝時應拉直,理順,且不能出現少穿、漏穿、膠條過短的情況;
(4)膠條安裝完成后,需要有固定措施,防止運輸或由于熱脹冷縮影響,而出現膠條松垮或出現搭接不連續的情況出現;如,在穿有膠條的鋁型材(詞條“鋁型材”由行業大百科提供)上下端膠條槽口處用鉗子把鉗出印記,固定膠條,或采用萬能結構膠水分段涂膠水,將膠條固定在鋁型材上。
4、錯位雙曲面單元式幕墻的施工
4.1、單元板吊裝系統設置
(1)板塊定點堆放
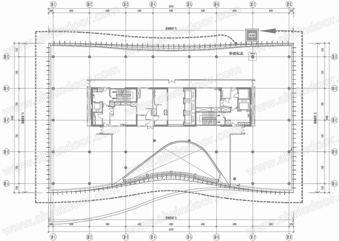
M2、M3樓的單元板塊運到施工現場后,按要求分區域堆放,然后逐層進行安裝。因此,在使用軌道進行施工之前,根據現場實際情況,在M2、M3樓二層平臺設置一個堆放點,并進行轉運、吊裝單元板塊。
(2)板塊吊裝
整個外立面幕墻工程的單元板塊安裝,我司利用軌道施工系統進行單元板塊的吊裝,在屋頂層設計單軌道吊裝系統進行板塊的安裝。(如圖4.1)

圖4.1 單軌道吊裝單元板塊圖
4.2、單元板塊吊裝
4.2.1 總體吊裝方案
(1)單元板塊安裝時,在板塊存放區使用液壓車將單元板塊從板塊存放架轉運到平板車上,然后將平板車推到吊裝位置。
(2)單元板塊室外面向上,室內面向下。由專用卷揚機(詞條“卷揚機”由行業大百科提供)(懸挑機)放下吊繩,吊裝人員將吊繩與單元板塊固定好,指揮人員指揮專用卷揚機操作工緩慢起吊提升,嚴格控制提升速度,防止單元板塊與結構發生碰撞,造成表面的損壞。
(3)垂直吊裝時要配合使用導軌線(作為單元板塊在吊裝過程中防止板塊擺動的保險繩索用)拉緊單元板塊,吊運到安裝單元板塊指定層。然后換鉤進行水平吊運,水平吊運采用軌道電動葫蘆將板塊就位安裝。單元板塊在工廠里預制完成,每件板塊上有生產合格證及板塊的編號、規格,施工人員按板塊編號圖進行安裝,板塊總體吊裝按此進行。(如圖4.2)

圖4.2M2單元板塊安裝順序示意圖
4.2.2 板塊具體吊裝方案
(1)、板塊吊裝前的準備。
a、檢查準備吊裝板塊的完好性,核對板塊標號;
b、專用卷揚機、軌道電動葫蘆及導軌線就位;
c、安裝單元板塊吊裝夾具(將固定在主立柱或主方管上作為吊點)并經確認其可靠性;
d、確認對講機通話的可靠性;
e、確認所有參與吊裝人員已指定位置。
(2)、板塊吊裝過程
a、板塊吊裝過程由板塊吊裝上一層的指揮人員負責指揮;
b、板塊在吊裝過程應確保所有經過層都有人員監控,防止板塊在風力作用下與樓體發生碰撞。
(3)、板塊的插接就位;
a、板塊吊裝至單元板塊掛點與轉接件高度之間相距250mm時,命令板塊停止吊裝,找準就位點,進行板塊的掛接;
b、板塊掛件就位到掛座后,在控制左右接縫尺寸的情況下命令板塊繼續吊裝。此時,由板塊安裝層人員借助操作平臺負責單元體掛件與轉接件的對接,板塊安裝層人員負責上、下兩單元板塊的橫向插接;
c、在每層板塊單元頂橫梁和泄水腔外側安裝披水鋁板,披水鋁板搭接處鋪設防水雨布(內傾退臺單元板塊),披水鋁板板必須完整打注膠(詞條“注膠”由行業大百科提供)密封;當膠條有搭接時將增加附加層保證膠條的連續,同時在附加層兩側端部注耐候膠密封;
d、確認單元板塊的掛點,左右插接,上、下插接都已安裝到位后,拆除吊具,進行板塊調整;
e、借助水平儀通過調整高度的調節螺栓,實現板塊掛件高度方向的微調,從而實現整個板塊的標高調整,并且可通過轉接件上的長圓孔螺栓實現板塊進出位的調整,待調整完畢后進行螺栓的鎖緊工作;
f、本項目設計的單元板塊與結構連接節點,可實現三維六個自由度方向的調整。

圖4.3 錯位雙曲面單元式幕墻現場安裝圖

圖4.4 外傾外凸造型單元板塊現場安裝

圖4.5內傾內退造型單元板塊現場安裝
5、結束語
上海黃浦江南延伸段WS5單元188S-M-1地塊項目,現已完成所有單元板塊的安裝,本項目的錯位雙曲面單元式幕墻系統,獲得國家發明專利“一種錯位雙曲面單元式幕墻”,及實用新型專利“一種階梯形式的單元幕墻”等多項認可。

第16屆AL-Survey門窗幕墻行業大型讀者調查活動
同時,本項目由幕墻承建企業——金剛幕墻集團有限公司,選送入圍2020-2021年度“我最喜愛幕墻工程”工程獎評選活動。建筑整體通過立面的內傾斜和外傾斜,從而形成外傾外凸、內傾內退的錯位雙曲面幕墻造型,配合顏色不同,但又有一定規律的豎向大裝飾線條勾勒下,相互輝映、極具動感!光影侓動之間,像一架城市的鋼琴,而絡繹不絕的人們行走其間,仿似一個個跳動的音符,共同彈奏出一曲曲美妙的樂章。期待項目在工程評選活動中,取得好成績,再獲新殊榮!
項目相關信息:
所屬城市:上海
幕墻承建:金剛幕墻集團有限公司
高度:39.85米
建筑面積:10.04萬平方米
幕墻類型:玻璃幕墻+金屬幕墻
幕墻面積:3.68萬平方米
幕墻造價:8200萬元
型材品牌:興發
玻璃品牌:信義
密封膠品牌:陶熙
五金品牌:諾托
隔熱材料品牌:泰諾風(隔熱條)
作者單位:金剛幕墻集團有限公司