標簽:文化建筑設計方案
設計時間:2007年
建筑面積:76759平方米
深圳當代藝術與城市規劃展覽館因耗資近10億元人民幣而備受各界關注,該項目包括地上五層、地下二層“兩館”總建筑面積約8萬平方米,處于深圳黃金地段,距離深圳市政府辦公大樓很近。面向社會公眾定位于推廣新銳藝術、展示城市的各種規劃設計。其中,當代藝術館展示面積14000平方米,城市規劃展示面積11000平方米,是展示城市規劃和發展歷程的窗口,也是公眾參與城市規劃和家園教育的重要場所。
該項目外幕墻工程由國內著名的幕墻企業深圳方大傾力打造,共享開放的設計理念,現代時尚、高效環保節能,從規劃設計到建筑細節,無一不體現極強的人文關懷與情感寄托,整體造型極富空間感,給人置身于四維空間的錯覺。在整個項目中,幕墻形式多樣化,包括:外層穿孔不銹鋼板(詞條“不銹鋼板”由行業大百科提供)+內層玻璃幕墻系統、玻璃幕墻系統、大面開縫石材幕墻系統、屋面石材幕墻+直立鎖邊系統、金屬屋面+直立鎖邊系統、金醒面+內層玻璃幕墻系統、屋頂鋼格柵(詞條“格柵”由行業大百科提供)系統、屋頂直立鎖邊系統、主入口曲面幕墻系統、主入口雨篷、主入口框架幕墻和門斗、勺子處幕墻等,如此多種的幕墻形式,施工復雜,其難度可想而知。
當然,過硬的工程必須要有過硬的材料來支撐,否則也只能淪為“豆腐渣”工程。在配件材料方面,承建商也選擇了國內首屈一指的大品牌,型材來自于在國內外有著無數經典工程(如迪拜大廈、美國加州聯邦政府大廈等)的廣東堅美,隔熱材料則選擇了作為門窗幕墻配件龍頭企業的廣東合和,這樣的強強聯手,預示著國內又一處經典工程的誕生。
理念
我們的設計試圖建立個體意識與建筑空間之間的深度聯系。借以傳達空間藝術與其他藝術本源的相通。人的內在需要與人的外在體驗促使人通過建筑空間、繪畫或者音樂這些所謂的藝術來表達自我與世界。空間已不單單是用來描述一個外在而靜止世界的單向工具,它已經在闡述一種物體與世界發生相互滲透、互相消解的關系。

深圳市當代藝術館與城市規劃展覽館-圖1
肌理
基地位于深圳市中心區北側。毗鄰圖書館、音樂廳、中心書城、少年宮等重要的城市公共建筑。網格狀的都市紋理編織起該區域內各種公共事件。在建筑與場所之間尋找一種詩意關系成為我們設計的起點。方整的體量強化城市肌理。引入斜向線性元素增加各種敘事的可能。這些隱含的“線索”以一種張力的姿態放射到周圍環境中,從而構建出建筑與城市空間戲劇化的聯系。

深圳市當代藝術館與城市規劃展覽館-圖2
切割
建筑實體被“空間線”一次次切割,逐步形成虛空與物質、內部與外部之間的空間交織體。
裂變
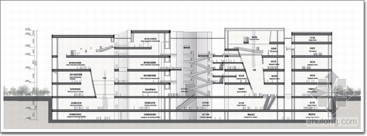
切割創造出水平面的裂變:傾斜、穿插的裂縫構筑成連續、復雜的虛空,以及分隔出來的塊狀功能腔體。城市空間與建筑空間在地上、地下以拼圖方式構筑成動態的漸變關系。大的裂口成為中央公共空間。巨大的空中架通廊分割出當代藝術館、城市規劃館、與輔助功能三部分。

深圳市當代藝術館與城市規劃展覽館-圖3
虛空
中國幕墻網工程庫gck.alwindoor.com正式收錄深圳當代藝術與城市規劃展覽館工程,敬請關注對該工程進展、幕墻技術、材料應用等相關資訊的動態更新!
深圳當代藝術與城市規劃展覽館是深圳中心區最后一個重要大型公共文化建筑,位于中心區中軸線即中心書城的東側、少年宮的南側,建筑面積近9萬平方米,是深圳“十二五”期間60個標志性重大建設項目之一,項目用地面
公共空間在虛空中縱橫交錯。參觀流線以兩條線索進行組織。藝術館與城市規劃館主要流線以中央交通體組織,清晰而連續。虛空中不斷穿插的橋為參觀帶來另外一種詩性的體驗。水平的變化與垂直的切割創造出蒙太奇的視覺深度。期間所有的不期而遇和不同層面上的活動者之間的相互觀望成了這個舞臺上上演的劇目。

深圳市當代藝術館與城市規劃展覽館-圖4
構筑
建筑幕墻要完美維護并構筑出設計師在公共空間以及建筑物之間線條及建筑元素,需要高超的施工能力以及大量專業設備(詞條“設備”由行業大百科提供)。深圳市方大建筑裝飾工程有限公司在此次工程施工中,通過創造性的應用建筑與設備的的合理布局,在施工過程中多次組織設計與施工組織人員會議,逐步解決工程難題,并在幕墻與建筑鋼結構的連接及穩定性上使用了多項新技術、新工藝,最終出色的完成了建筑幕墻與藝術的整體結合。

深圳市當代藝術館與城市規劃展覽館-圖5