第一章、中海紫御公館簡介紹
中海紫御公館位于北京崇文區陶然亭橋的東側,緊鄰南二環路,建筑高度71.35m,整個建筑以“英倫風情”為主題,借用經典英倫風格建筑的“角塔”及“雙筒塔”建筑造型,結合現代表現手法,細節勻稱而豐富,高層建筑(詞條“高層建筑”由行業大百科提供)的體量分布-通過戶型的凸窗及陽臺的對稱布局,自然而然地體現出英倫風格的“雙筒塔”的構圖關系。歷久彌新的全石材外立面,經百年風霜依然華麗莊重,精雕細琢之中,那份由內而外的華貴雍容款款落座。建筑細部典雅且精致規整而有序,整體風格含蓄典雅。同時本工程對外墻裝修上也提出更高的要求,采用先進的節能環保幕墻體系,幕墻玻璃采用LOW-E充氬氣的配置,幕墻體系采用雙層外呼吸系統,屋頂采用BAPV光伏發電系統,因此可以說,本工程是一座科技含量高、低碳環保的綠色建筑。本工程圖片效果圖如下:

工程施工中照片:

第二章、幕墻系統介紹
本工程幕墻類型主要有:雙層熱通道外循環幕墻、隱藏式開啟明框玻璃幕墻系統、屋頂BAPV光伏電站等系統、以下將分別介紹:
第一節、雙層熱通道外循環幕墻介紹:
雙層熱通道幕墻分為兩種,一種為封閉式內通風幕墻,也稱作雙層熱通道內循環幕墻。封閉式內通風幕墻從室內的下通道吸入空氣,在熱通道內上升至上部排風口,從吊頂內的風管排出。這一循環在室內進行,外幕墻完全封閉。另一種為開敝式外通風幕墻,也稱作雙層熱通道外循環幕墻。與內通風幕墻不同的是,開敝式外通風幕墻是在層間位置開敝,在室內可根據季節開敝或封閉,內層幕墻采用中空玻璃;外幕墻采用單層玻璃,設有進風口和排風口,利用室外空氣進入熱通道,并帶走熱量,從上部排風口排出,減少太陽輻射熱的影響,節約能源。它無須專用機械設備(詞條“機械設備”由行業大百科提供),完全靠自然通風,維護和運行費用低,是目前國內應用最廣泛的形式。
由于考慮本工程位于二環邊上,噪音比較大,且根據立面的需要,將西立面設計為雙層幕墻。雙層幕墻的卓越性能突出在可以調節不同季節帶來的不同氣候條件下的室內環境,比如對:光照、冷熱、空氣流動、噪音等環境條件進行調節而不需要特別復雜的高技術設備(詞條“設備”由行業大百科提供)或耗用額外的能源來達到同樣的目的。它對提高幕墻的保溫、隔熱、隔聲功能起很大的作用,比單層幕墻采暖時節能40%-50%。制冷時節能40%-60%。本項目采用的是雙層熱通道外循環幕墻,外層為明框玻璃幕墻,內層隱框玻璃幕墻,并留有檢修門,中間形成600mm寬熱通道,外層玻璃采用12mm鋼化玻璃,內層玻璃采用6T+12A+6T(LOW-E)鋼化中空(詞條“中空”由行業大百科提供)玻璃。外層幕墻的上兩端,設有電動控制進風和排風裝置。冬天:關閉外通風幕墻系統的進出風裝置,雙層幕墻中間的雙層換氣(熱通道內的空氣)由于陽光的照射,溫度升高,像一個溫室,形成溫室效應。這樣有利于提高內側幕墻的表面的溫度,減少了建筑物用于冬季采暖的設備運行費用;夏天,雙層幕墻中間的熱通道內溫度很高,這時可打開通道內上下兩端的排氣、系統的進出風裝置,熱通道內的空氣內由于熱煙囪效應產生自下而上的氣流,從下進氣口進入的氣流,在熱通道內通過熱量交換后從上出氣口排出,這種自下而上的氣流運動,帶走了通道內的熱量,這樣可以降低內側幕墻的外表面溫度,減少空調制冷的負荷,節約了能源,降低了能耗。可以通過控制熱通道中的自動遮陽百葉角度來控制通道內接受太陽光的強弱,在夏季,自動遮陽百葉關閉,把陽光阻擋在內層幕墻外,其遮陽效果要優于室內遮陽措施。
循環式雙熱通道玻璃幕墻氣流動效果如下:

1、雙層熱通道外循環幕墻工作原理:
夏天通過電動控制系統開啟進出風口的電動百葉,利用通道內煙囪效應產生的壓力差使通道內的空氣快速流通,帶走室外太陽的輻射熱量,形成一道阻止室外熱空氣傳入室內的屏蔽墻,降低室內溫度;冬天通過電動控制系統關閉進出風口的電動百葉,利用溫室效應,使通道內的空氣通過吸收室外太陽輻射熱量,溫度升高,形成一道阻止室外冷空氣傳入室內的屏蔽墻,提高室內溫度;同時可以通過開啟內層推拉門,實現向室內輸送新鮮空氣或向室外排除污濁空氣的目的,完成室內外的通風換氣。春天和秋天,將層間百葉與內層門開啟,將室內與外界面溝通。運行圖示如下:


2、雙層熱通道外循環幕墻防水設計:
本工程為雙層外呼吸式幕墻,外層幕墻是防水的主要屏障,所以外層幕墻的防水設計由為關鍵,外層幕墻為單元式系統,利用雨幕和等壓原理實現結構防水,由多道密封膠條構成等壓腔并通過迂回渠道與外界連通,保持腔內外空氣壓力趨于均衡,滲入幕墻內部的少量水能通過積水膠墊在每一層順暢排出。變傳統的密封膠堵水為導水,能有效保證氣密性和水密性。
在進風口處,經由開啟百葉進入通道內的少量水分可以直接排出室外;在出風口處,經由開啟百葉進入通道內的少量水分掉落到與之相對應的下層出進風口頂封板上,由頂封板向兩側通過進風口排出室外。
進入熱通道少量雨水排水組織路線圖如下:

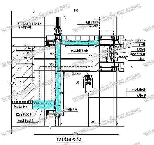
3、雙層幕墻防火設計:
因為熱通道內有自然空氣的流動而使得雙層幕墻的防火成為系統設計的重點和難點,防火系統除了必須考慮內層幕墻的層間防火以外,還必須考慮熱通道的防火分區,使得某一個區域失火以后,進入到熱通道內部的煙霧不會隨意蔓延至整個外幕墻。內層幕墻的防火采用了常規做法:采用1.5mm鍍鋅鐵板承托和100mm厚的防火保溫棉共同組成一條連續的層間防火帶,滿足1小時耐火極限要求。而熱通道的防火分區則必須考慮豎向和水平向兩個方向,使得每一個防火區在整個立面上與其它防火區完全分離,并盡可能的減小防火區的面積。在水平方向我們以9.8m的柱間距為水平防火分區,該位置的豎向龍骨和支撐系統全部保護在鍍鋅鋼板和防火巖棉中間(如下圖)。

而豎向一般是以一層為一個防火區,但由于該項目采用的是交錯式進、出風的氣流導向設計方式,同一層間其進出風口間隔布置,進氣時,防火鋼板布置在排氣口的下端,如下圖:

出氣時,防火鋼板布置在排氣口的上端,如下圖:

因此,熱通道處的層間防火帶呈上下凹凸狀——位于進風口的下部、出風口的上部,支座位置全部被鍍鋅鋼板和防火巖棉包裹。這樣嚴密的防火系統設計既保證內外層幕墻均層層防火,又確保失火情況下層與層、柱與柱之間不出現“串煙”的現象。
4、雙層熱通道外循環幕墻防雷設計:
本項目的建筑物防雷設計,不僅考慮頂層雷擊,由于外立面出現金屬裝飾線條,還要考慮側向雷擊。合理的防雷措施將使建筑維護結構免受雷擊,達到安全使用功能。按照GB50057-94《建筑物防雷設計規范》中防雷分類等級,本工程按二類防雷標準進行設計。
a、 本工程幕墻橫向每隔三層設計置一道φ12鋼筋均壓環,縱向每個軸線(軸距為9.8m)處幕墻立柱上下連通;
b、 兼作避雷網的豎向立柱的室外裝飾線與外層幕墻的鋁立柱保證導電連接暢通;
c、 橫縱避雷通路交叉處通過幕墻與主體的連接鋼角碼及鋼支座連通,形成9.8mx11.61米避雷網;
d、 在幕墻避雷網節點處,用¢12鋼筋把幕墻避雷網與主體避雷鋼筋引出點連通,使幕墻避雷網通過主體避雷網實現接地;
e、 幕墻龍骨與連接件接觸面除去粉末層,且加設1mm不銹鋼墊片,防止電化腐蝕(詞條“腐蝕”由行業大百科提供);
f、 幕墻φ12鋼筋均壓環與支座鋼板以及主體避雷引出鋼筋通過焊接連接;
g、 焊接時要求雙面施焊、焊接長度不少于100mm,焊接處刷兩道防銹漆(詞條“防銹漆”由行業大百科提供),形成幕墻均壓環與建筑物主體防雷體系的有效連接。
5、雙層幕墻灰塵清理設計:
考慮到北京風沙比較大,除了考慮外層幕墻的清潔方案還需要考慮通道內的灰塵清理,設計時需要在室內設置平開門,一方面作為春、秋兩季自然通風的開啟扇,另一方面作為清潔檢修門以便人可以進入通道內清洗,另外考慮了通道內層間構件可拆卸的需求,可快速、方便進行裝卸、清洗,室內圖片如下:

第二節、隱藏式開啟明框幕墻系統
南北主立面采用明框幕墻系統,豎向外挑550mm寬130mm裝飾扣蓋,為了保證建筑的立面效果,外幕墻的開啟扇采用了隱藏式開啟,即將常規的開啟框與鋁龍骨一體化設計而開啟扇則內陷,使開啟扇位置與固定扇位置的室內外可見面效果一樣,看不到附加的窗框和窗扇,建筑效果非常簡潔、美觀。裝飾線位置開啟做法如下:

裝飾線的設計需要考慮不影響開啟扇的開閉功能、確保所有膠縫寬度一致,同時滿足建筑的美觀和安全要求——尺寸大小不變、不露釘。因此,我們用鋼板做主傳力結構,根部與龍骨螺栓連接,端部與擠壓成型的鋁合金裝飾線螺栓連接,確保每一個連接部位的安全可靠。然后用鋁板遮住連接鋼板,使得從外觀看,整條550mm長的裝飾線同一種顏色和材質,形成整體。即滿足建筑裝飾效果,不影響開始功能,同時又兼作建筑豎向遮陽系統。
考慮到施工的方便性,本系統還采用了小單元的做法,玻璃的板塊與鋁合金(詞條“合金”由行業大百科提供)副框在加工廠粘接(詞條“粘接”由行業大百科提供)組成小單元,到現場只要進行掛接、打膠就可以,大大的提高施工的速度,保證工程工期。
第三節、屋頂光伏幕墻發電系統介紹
為了響應北京市建設綠色、生態、低碳城市的要求,本項目按照綠色建筑設計概念,不僅僅考慮了熱工性能絕佳的雙層外呼吸幕墻系統、豎向外遮陽系統用以減低建筑空調能耗,還設計了屋面光伏發電(詞條“光伏發電”由行業大百科提供)系統,用以補充建筑自身電力消耗,在夏季,建筑處于強日照環境時,由于大量制冷設備的使用形成電網用電高峰,而這時也是光伏陣列發電最多的時候。因此,在公共辦公大樓中使用太陽能光伏發電可以有效地削減建筑高峰用電,從而緩解高峰電力需求,起到削峰填谷的作用。
北京太陽能資源處于我國第三類地區,太陽能日照資源適合太陽能光伏(詞條“太陽能光伏”由行業大百科提供)項目實施及推廣。本項目利用了330平米的空置的建筑屋頂面積,安裝了225塊240Wp的單晶硅光伏組件,形成發電總功率為54.0kWp的光伏系統,按照北京環境條件,設計電池板朝向為正南,按照并網發電系統考慮最佳傾角為35度,此條件下年均日照輻射量為1536.65kWh/m2,為避免自身遮擋,根據計算前后排相距為3052mm。使用5臺容量為11KW的高效單相并網逆變器,接入小區八號樓低壓配電柜,向小區八號樓用戶交流負載輸送電能,最佳年發電量約為每瓦每年發電1.23度電,整個系統年發電量為6.642萬度電。每年可省燃油1.73萬升或節省標準煤23.9噸,這也意味著少排放66.2噸的二氧化碳,0.784噸的二氧化硫和0.286噸氮氧化物。同時減少因火力發電產生的18噸粉塵,節約26.57萬升凈水。工程完工后整體圖片如下:

本系統終端設計成具有友好的人機互動功能,采用LCD液晶顯示屏,可監測和顯示系統直流工作電壓和電流、交流輸出電壓和電流、功率、功率因數、頻率、故障信息以及環境參數(如輻射照度、環境溫度等),統計和顯示日發電量、總發電量等信息,并可打印報表。另外,系統還具有過壓、失壓、過載過流、漏電、短路保護功能,并網逆變器內置的電網保護裝置具有防孤島保護單元(MSD),能有效地防止孤島效應。作為建筑屋頂光伏電站專項設計,不僅要滿足光伏電站外觀效果和建筑效果的統一、電站本身承受外荷載(詞條“荷載”由行業大百科提供)的抗傾覆和抗變形(詞條“變形”由行業大百科提供)能力,還需要對建筑自身混凝土屋面的結構、防水、保溫等功能影響以及系統本身的清潔維修、耐久性等細節問題加以重視。同時最大限度的優化我們的設計方案,合理選用各種材料,把不必要的浪費消除在設計階段,降低工程造價,為業主節約投資。
未來10年中國要以每年1%-2%的城市化進程增長率來完成發展中國家的城市化進程,而建筑作為城市的血肉,正不斷消耗著土地和資源。同時由于人們對生活條件和居住舒適度的要求不斷增加,導致建筑變成一只長著大嘴不斷吞噬自然環境資源排泄污水垃圾有害氣體的怪物。綠色建筑已成為未來新建建筑的設計目標,全面推行勢在必行。提高建筑物維護結構自身的保溫隔熱的能力和使用可再生能源是降低建筑使用能耗的最要途徑。研究越來越低的系統傳熱系數是高檔門窗幕墻的重要考核指標,而光伏發電已成為可再生能源利用的主要發展趨勢,常規電站包括荒漠光伏電站遠離能源消費,往往需要長距離輸送電力,造成資源的多重浪費。而利用屋頂發電,可以實現“屋面上產電、屋面下用電”的零距離理想狀態,避免長距離輸電的成本和損失;同時也易于化解大電網的電力供應安全問題。我國已建建筑的建筑面積大約400 億m2,其屋頂面積約40 億m2,而新建建筑以每年8%至10%的比例增長,建筑屋面將是光伏系統應用最適宜的最巨大的場地,不僅可有效利用屋頂資源,而且簡單易行。愿新技術的應用給越來越多的建筑披上綠衣。