本篇文章內容由[中國幕墻網]編輯部整理發布:
隨著鋼結構工程在我國廣泛的應用,鋼結構金屬屋面的應用也與日俱增。金屬屋面的防水,除了屋面板材自身帶有防水功能外,許多屋面節點(詞條“節點”由行業大百科提供)如穿屋面鋼柱、排煙天窗等節點的防水處理更是至關重要。這里結合重慶國際博覽中心金屬屋面的施工對該技術的材料選用、施工工藝、技術要點等做簡單的介紹。
金屬屋面隨著大型鋼結構工程的廣泛應用也變得日益普遍,其自身結構特點能有效的起到防水作用,但對于建筑外塊飾結構和金屬屋面交接節點就必須重新處理,出屋面鋼管柱和天窗等節點通過鋁板或不銹鋼板制作的異形防水、披水件,有效的防止雨水從柱頭、天窗邊等屋面的縫隙間漏入室內,這頊技術具有施工速度快、操作簡便、結構變形小、防水效果佳、維修方便等特點。

1工程概況
重慶國際博覽中心項目位于重慶市渝北區悅來鎮陽光社,整個項目規劃區平面呈帶狀,北東一南西向展布,外形為一只展翅欲飛的蝴蝶(見圖1)。整個建筑東西寬約800m,南北長1500m,總占地約1.3km2,由展館區、 酒店、多功能廳、會議中心、商業(及庫房)區等五部分組成,總建筑面積約為60萬m2。
本工程為雙層屋面體系,上層為大面積鋁格柵(詞條“格柵”由行業大百科提供)結構,下層為金屬屋面體系。金屬屋面面積約14萬平方米,采用直立鎖邊鋁鎂錳金屬屋面。為支撐鋁格柵結構,共有1380個支撐鋁格柵結構的短柱及樹杈柱穿出屋面和天溝邊檐口。另為滿足消防要求,共設有318個自動排煙天窗。
2施工工藝
2.1工藝原理
穿屋面鋼柱、大窗以及天溝、檐口處防水節點通過鋁板或不銹鋼等金屬制成異性防水、批水板材,將鋼柱、天窗包住,并結合耐候密封膠將所有縫隙填充的方法完成防水節點。
穿屋面鋼柱防水節點采用剛性防水節點。使用兩塊異性泛水板將鋼柱包住,下泛水板與屋面板鋁焊連接,上泛水板使用抱箍并結合耐候密封膠完全密封,兩塊泛水板扣接。為進一步加強防水節點效果,在節點上方加鋼板防雨罩,避免雨水從兩泛水板扣接處進入室內。
天窗防水節點工藝原理大體與穿屋面鋼柱防水節點相同,均采用兩塊異性泛水板將天窗周邊包住。天窗迎水面下泛水板與屋面板鋁焊連接,其他三面采用角鋼支架將雨水引流至完整的400mm寬板跨內。上泛水板插入玻璃鋁型材骨架內,并使用內后密封膠完仝密封。在上方加防雨罩保證防水效果。
天溝、檐口處防水節點采用批水件遮擋雨水,批水件與天溝、檐口骨架使用防水鉚釘固定,在鉚釘固定處打密封膠。

3 防水節點技術
3.1穿屋面鋼管柱防水節點
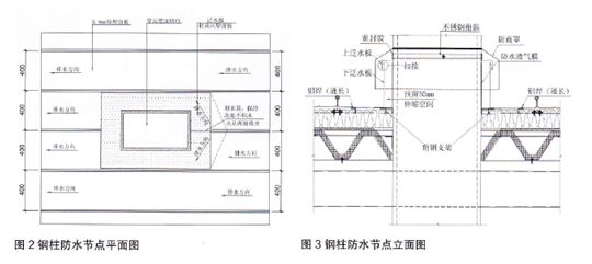
3.1.1對于穿屋面柱,其防水節點完成后與屋面是一體的,節點具體做法如圖2、圖3所示:

為保證泛水板與屋面板焊接(詞條“焊接”由行業大百科提供)質量,選用與屋面板材質相同的鋁鎂錳合金板材作為泛水板材料。用L30×3角鋼制作角鋼支架,焊接在鋼柱上,分別支撐在下泛水板折角(90度)處及焊縫處,作為下泛水板和焊縫處的支架。注意迎水面支架安裝標高(詞條“標高”由行業大百科提供)略高于背水面,保證迎水面不積水。
將加工成型的下泛水板包鋼柱,開始下泛水板與屋面板的焊接,注意焊接時焊縫的質量,不可出現夾渣、裂紋等質量缺陷。安裝下泛水板時,要保證鋼柱外皮與泛水板之間保留50mm伸縮空間,保證屋面板在熱脹冷縮時,防水節點能同面板同時單方向移動,避免鋁焊縫被拉裂導致漏水。
開始上泛水板安裝,注意上泛水板與下泛水板是否完全扣接。上端使用不銹鋼抱箍與鋼柱連接,連接處使用耐候密封膠密封縫隙。最后安裝鋼板防雨罩。防雨罩采用2mm厚不銹鋼板在工廠壓制成型。
3.1.2為保證檐口處的整體美觀性,檐口位置樹杈柱穿鋁單板處防水節點打耐候密封膠處理(見圖5)。具體做法是:在柱上焊接角鋼支托保證2mm厚鋁單板在此處不會存在變形,鋁單板邊緣與樹杈柱外皮預留5~8mm間隙,在間隙處打耐候密封膠。為保膠的密封性,要求打膠高度不得小于5mm,打膠寬度不得小于15mm。

3.2天窗防水節點
對于屋面采光排煙天窗,考慮到屋面板的熱脹冷縮,將其節點設計成一邊焊接三邊搭接的的形式,即迎水面與屋面板鋁焊連接,兩側邊和背水面通過角鋼支架和Z型支架將泛水板與屋面板搭接。另在泛水板上方使用披水板覆蓋,防止雨水吹入泛水板內形成漏水。
迎水面:為保證泛水板與屋面板的可焊接性及焊接質量,選用與屋面板材質相同的鋁鎂錳合金(詞條“鎂錳合金”由行業大百科提供)板材壓制成型泛水板。在焊縫下方加設角鋼支架,角鋼支架略高于屋面板,避免焊縫位置長期積水。焊縫距離泛水板里面要大于100mm,保證迎水面的雨水分流速度(見圖6)。

兩側面:兩個側面泛水板安裝前先安裝泛水板支撐件,支撐件與天窗龍骨(詞條“龍骨”由行業大百科提供)焊接固定,泛水板搭在支撐件上,通過防水鉚釘與支撐件固定,防水鉚釘處打密封膠完全密封,防止毛細水進入(見圖7)。

背水面:背水面泛水板通過Z型壓件與天窗骨架固定,并在與屋面板交界處沫擋水條,避免在暴雨時由于屋面板排水速度緩慢雨水倒流至屋面板內,擋水條與泛水板便用防水鉚釘固定(見圖8)。
在天窗轉角處,泛水板相互搭接,使用防水鉚釘固定,并在搭接邊用耐候密封膠完全密封(見圖9)。
3.3其它防水節點
3.3.1天溝節點防水
對于任何形狀的金屬屋面來說,在天溝檐口板肋下不可避免地會出現縫隙,這是防水的重點位置之一。對于此處節點,采取以下辦法:
3.3.1.1在屋面板下端設置不銹鋼壓塊擋雨,并在屋面板頭處設置鋁合金泛水板,將泛水板與天溝折邊固定,防止漏水。同時,可形成檐口滴水,使屋面雨水順其滴入天溝,防止滲漏。
3.3.1.2為了防止屋面出現回水現象,板端頭向里側15mm要使用折彎工具將其折彎。
3.3.1.3在檐口端部設滴水片與屋面板之間,塞入與屋面板板型一致的泡沫密封條,
使板肋形成的縫隙能夠被完全密封,防止因風吹灌入雨水。
3.3.2山墻節點防水
屋面山墻位置往往是承受風壓(詞條“風壓”由行業大百科提供)最大地方,且此處屋面板在山墻側沒有其他屋面板咬合,容易脫離鋁合金支座。在承受較大風力時,常常發生屋面板被掀掉的情況,對屋面防水造成破壞。
重慶國際博覽中心一座集展覽、會議、餐飲、住宿、演藝、賽事等多功能于一體的現代化智能化場館,
位于重慶兩江新區的核心——悅來會展城,總建筑面積60萬平米,是全球前十、國內第二、西部最大
的大型場館。
考慮上述問題,在山墻處增加一個固定壓件,以保證屋面板安全性,同時,此壓件與屋面板之間還應允許有一定的相對滑動,以免在屋面板在熱脹冷縮過程中遭到破壞(見圖11)。

4 結語
重慶國際博覽中心項目金屬屋面出屋面鋼管柱防水節點共計1380個,天窗防水節點共計318個,另有大量天溝、檐口等防水節點。通過泛水板包邊以及使用耐候密封膠密封縫隙等防水處理方法,很好地解決了這些節點的防水問題,并取得了良好的建筑效果,值得同類工程借鑒。【完】