1 前言
筆者注意到,推拉窗無論在辦公寫字樓,還是在民用住宅等建筑上采用越來越少了。絕大多數建筑采用的都是平開窗—— 塑料平開窗、鋁合金斷熱平開窗等幾種平開窗。
1.1鋁合金推拉門窗的興起
在我國,鋁合金行業起步于上世紀七十年末、八十年代初,是從國外引進的技術。鋁合金推拉門窗最早得到加工制作和應用。
在鋁合金門窗出現之前,我國建筑門窗一直采用的是木制門窗,木制平開門窗是我國傳統門窗。后來鋼制平開門窗曇花一現,使用比較少,還沒等到大規模應用起來,就被鋁合金推拉門窗取代了。鋁合金推拉窗是當時全新的門窗產品,新奇的事物,高檔的產品。對新事物的追求是人們思維習慣,所以形成了企業發展創新的理念。
當時誰家要是安裝使用上了鋁合金推拉窗,就非常有經濟實力了。掃的富裕家庭甚至把推拉門窗用在室內裝修上,用推拉窗作衛生間的門、牢內隔斷,方顯豪華和氣派。用推拉門窗進行室內裝修檔次在當時顯得很高。
人們的觀念是會隨時代的發展而改變的。現在誰家要是用推拉窗做室內裝修,那就顯得沒檔次、不倫不類的了。當然現在也有用鋁合金做室內隔斷的,但那是真正用鋁合金做的室內隔斷,視覺效果相當美觀、漂亮。型材外形精致,表面迸行了仿木噴涂,價格很貴,屬于高檔隔斷。
鋁合金推拉窗在上世紀九十年代在我國得到廣泛應用,當時無論公共辦公建筑,還是民用住宅基本上都使用鋁合金推拉門窗。
推拉門窗的型材是全鋁合金的,也就是現今所說的普通鋁合金推拉門窗。人們主要看中它的鋁合金材質。型材顏色大多為鋁合金銀白氧化,接著出現了帶點顏色的棕色氧化,在當時一般人很難接受彩色噴涂門窗,很少采用。再后來又出現了電泳涂漆`木紋熱轉印、彩色粉末噴涂、氟碳噴涂工藝,門窗色彩開始豐富起來。如今艷麗彩色噴涂門窗司空見4貫,銀白氧化卻很少采用了。
1.2鋁合金推拉門窗的低迷
本世紀初,能源問題被全世界所關注,國家強令推廣節能塑料門窗。塑料門窗的出現,普通鋁合金推拉門窗遭受了打擊,處于低迷狀態。當時新建建筑絕大多數采用的是塑料門窗,鋁合金推拉門窗所占市場份額較少。鋁合金推拉門窗低迷主要有三個原因:其一是政策要求;其二是市場競爭激烈,極力降低成本,追逐利潤,鋁合金推拉門窗產品的質量越來越低,用戶不再喜歡了;其三是塑料門窗新產品,窗塑料門窗采用的高分子型材,節能性要比鋁合金門窗強很多。
塑料門窗最初也是從推拉門窗興起的,足見當時人們喜歡推拉窗。 后來出現的平開窗,都比同材質的推拉窗性能好,于是平開窗興盛起來。
1.3鋁合金斷熱平開窗興起
普通鋁合金平開窗的節能性不符合國家節能要求,將逐步被淘汰。為不使鋁合金窗就此消亡,聰明的人們發明了斷橋鋁型材,它的出現給鋁合金窗注入了新的生命力,極大地促進了鋁合金門窗的發展。鋁合金斷熱平開窗相比塑料平開窗節能性能相近。鋁合金斷熱平開窗的型材更精致、性能好、強度高、經久耐用`環保、可回收利用,而塑料同樣強度外型尺寸大、易老化、不可降解、不可回收利用。斷橋鋁型材的優點非常明顯,鋁合金斷熱平開窗的應用有大于塑料平開窗趨勢。高檔住宅建筑較多用鋁合金斷熱平開窗。
綜上所述,人們更喜歡鋁合金窗。
1.4鋁合金推拉窗的優勢
無論是鋁合金窗,還是塑料窗,都是平開窗逐步取代推拉窗,這是不睜的事實。其根本原因,就是現有推拉窗性能相比平開窗差很多。
但筆者認為,相比平開窗,鋁合金推拉窗(包括塑料推拉窗)優勢有三點:其一是安全性:推拉窗比平開窗安全。推拉窗開啟扇有上、下滑道限制,除非人主動摘卸,不可能自動脫落。而平開窗僅由兩個合頁固定,連接部位的強度是有限的,開啟扇下沉或脫落現象時有發生,或造成嚴重的安全事故。
其二是開啟扇平面內變形性能:推拉窗開啟扇平衡穩固地安裝在上下滑道間,不會因自重發生平面內變形。平開窗開啟扇安裝是一端固定、一端自由的懸臂式。很容易發生平面內變形,出現掉角現象,即自由端在重力作用下下沉,影響使用或美觀。推拉窗更突出的優勢就是開啟使用時不占空間。因而特另刂受用戶的青睞。
2.鋁合金推拉窗性能低的原因
而現今推拉窗的使用市場占有率不如平開窗,就是因為現有的推拉窗水密性能、氣密性能比平開窗的低。對推拉窗的粗制亂造,敗壞了推拉窗的聲譽,用戶就只好忍痛割愛而使用平開窗了。為扭轉這種局面,我們有責任和義務,想方設法把具有優勢的推拉窗性能搞上去,為用戶提供好的產品,滿足用戶需求。推拉窗會重新門庭若市,占有應占有的市場份額,還將處手主導地位。
若想提高推拉窗性能,就必須先找到性能低的原因。筆者以鋁合金推拉窗為對象,通過學習和思考,有如下幾點想法:
2.1立面形式
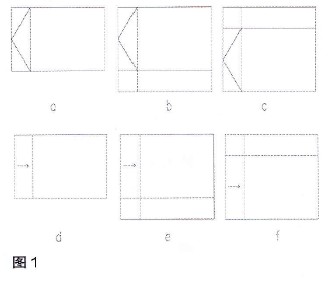
眾所周知,固定窗比開啟窗性能更好。平開窗一般來講開啟扇不能很大、固定窗比占整窗面積很大比例。如圖1中a、b、c所示。特別是現代的建筑師格外追求寬敞通透的視覺效果,固定窗所占整窗的面積比率越來越大。

而推拉窗現在一般均做成雙扇推拉、三扇推拉或者四扇推拉。大的洞口(如陽臺),也是采用雙推拉、三推拉窗拼裝在一起而成。即使有固定扇也只是將不想開啟的推拉窗扇固定,不讓其開啟。可以說推拉窗整窗都是開啟扇。因此推拉窗比平開窗極容易發生雨水滲漏現象,空氣滲透量也大,性能就低。專業人員以量評定質量,用戶憑感覺和視覺判定窗的好壞。例如看到窗戶滲水了、感覺窗戶漏風了,就會說窗戶質量有問題。所以說窗戶必須高性能,盡可能不漏水、不漏氣。
2.2窗整體結構設計不合理
很多推拉窗結構設計時沒有研究如何更好地防水防漏氣,而只顧結構簡單、加工簡單、方便,少開模具。這樣,成本費用固然很低,但其性能也一定彳鄖氐。
2.3密封材料
一般推拉窗均采用毛條密封,而平開窗一般采用膠條密封。采用毛條密封比采用膠條密封的防漏水、防漏氣性能差很多。加片毛條,比傳統的毛條質量好,但還是不如膠條。一方面是由于兩種密封條安裝部位結構明顯不同,毛條的密封性不及膠條的密封性i另一方面是由于兩種密封條主體材質、結構原因。氣密要間隙足夠小就行,而水密要求無間隙。
2.4密封道
密封道連續封閉、密封效果才能好。由于結構原因,平開窗很容易形成連續密封道;而推拉窗結構較復雜,密封道不容易連續。不容易連續就不想辦法解決了,知難而退,因而,造成推拉窗不如平開窗性能好的結果。更有甚者,有的廠家的推拉窗產品的密封條根本沒起作用,形同虛設,這樣的產品依然提供給用戶,這是侵犯用戶的合法權益,對用戶極端不負責任,更影響推拉窗產品的聲譽。
3.提高推拉窗性能的途徑
根據上述總結分析的推拉窗比平開窗性能低的原因,可相應提高推拉窗的途徑有:31立面形式設計立面形式與平開窗類似,可采用小開啟、大固定形式。這就需要開發出能制作固扇的推拉窗結構系統。如圖1中d、 e、 f所示。
3.2推拉窗結構體系設計
利用雨幕原理,使推拉窗在一定范圍內具有一定的結構防水功能。例如,增加雨水透過阻力,使雨水向室內流動越來越難。設置高低差結構。在無密封條的條件下,使推拉窗發生漏水現象就需要一定的壓力,以提高水密性。推拉窗下框設計非常關鍵。如圖2所示。

3.3密封材料
推拉窗密封條全部改用膠條密封。傳統推拉窗密封條之所以一般采用毛條,主要由于推拉窗開啟時,開啟扇與密封條之閭滑動摩擦。毛條與開啟扇之間的滑動摩擦力要比膠條與開啟扇之間摩擦小。為了減小開啟力,因而采用毛條密封,也降低了推拉窗的性能。當推拉窗開啟扇與膠條密封條相對滑動時,為降低摩擦力可對膠條進行表面光滑處理。或者采用類似平開窗密封方式。關閉時,開啟扇與密封條緊密接觸從而密封。開啟時,二者分離,不產生摩擦。
在確保膠條斷面形式前提下,盡量降低膠條硬度,降低啟閉力。還要增加膠條壓合量,彌補加工誤差缺陷以及自身`型材變形,增強密封性(見圖4)。

3.4五金件
推拉窗要實現類似平開窗密封方式,就需要研制類似平開窗的鎖閉結構五金件;還要研制新型滑輪。這種滑輪能夠推拉窗扇在鎖閉結構作用下向膠條靠近,如圖3所示。當然方法有很多,五金件生產企業誰領先擁有了此類的產品,誰就贏得了市場。
3.5膠條位置設計
膠條位置可按圖2圓圈標注位置進行設計。與平開窗密封類似。這樣,膠條也可以利用鎖具或其他構件鎖緊,膠條的壓合量是可調的。可以彌補由于膠條密封位置不平直及加工誤差,增加密封性能。
3.6膠條結構設計
膠條結構設計時,應多考慮利用外界的風壓壓緊斷面形式,風壓越大密封越嚴(見圖4)。

3.7密封道
應特別考慮能使密封道連續封閉的結構設計,提高密封性能。我研究過日本生產推拉窗,人家考慮特別細,容易出現問題之處,都有解決辦法。曰本用戶沒有推拉窗性能低于平開窗性能的概念,多數用推拉窗。
3.8推拉窗加工設計
加工設計全面考慮各處對推拉窗密封性能的影響,構件間交接縫隙設置彈性膠墊或施膠密封處理。排水孔形狀、尺寸、位置合理設計。下圖5為按上述思路繪制的推拉窗下框節點圖。

4.結論
通過上述途徑,筆者很負責任的說,推拉窗性能會有很大提高。而且不低于平開窗性能。推拉窗性能提高了,又有其自身優勢,用戶能不喜歡嗎?鋁合金窗一直是用戶的最愛。節能是一項基本國策。新開發的門窗系統必須符合國家的相關法律法規標準規范要求。所以筆者呼吁應大力發展斷熱鋁合金推拉窗。
推拉門窗當今所處的狀況,對于業內企業來講是— 個機遇。但機遇與挑戰并存。機遇就是誰領先拿出了高性能的推拉窗產晶,誰就會在市場競爭中占的先機,贏得市場,獲得收益。挑戰就是如何提高推拉窗的性能。期望本文有助于此項工作,發揮專業技術人員的智慧,經過業界同仁不懈努力,定會找到更多更好的途徑和方法。
推拉窗也是復雜的系統。開發人員應具有扎實、深厚的理論基礎,豐富的實踐經驗。需要開發人員從宏觀到微觀、全面系統對比、分析`反復考量。更需型材`玻璃、五金件、密封材料、門窗生產廠家等單位通力協作、密切配合。最終才能生產出用戶用著開心`看著喜歡、人人喜聞樂見好的推拉窗產品。
參考文獻:
[1] GB/T58⒛ -2008 建筑門窗術語
[2]GB/T571062008 建筑外門窗水密、氣密、抗風壓性能分級及檢測方法
(作者單位:中國建筑金屬結構協會門窗配套件委員會專家組、沈陽遠大鋁業工程有限公司)